315 Chapel St. (D09-04-24-0003)#
Summary#
| Application Status | Inactive |
| Review Status | Heritage Permit Issued |
| Description | Application for new construction at 315 Chapel Street, a property designated under Part IV of the Ontario Heritage Act |
| Ward | Ward 12 - Stéphanie Plante |
| Date Initiated | 2024-02-15 |
| Last Updated | 2024-12-20 |
Renders#
Location#
Select a marker to view the address.
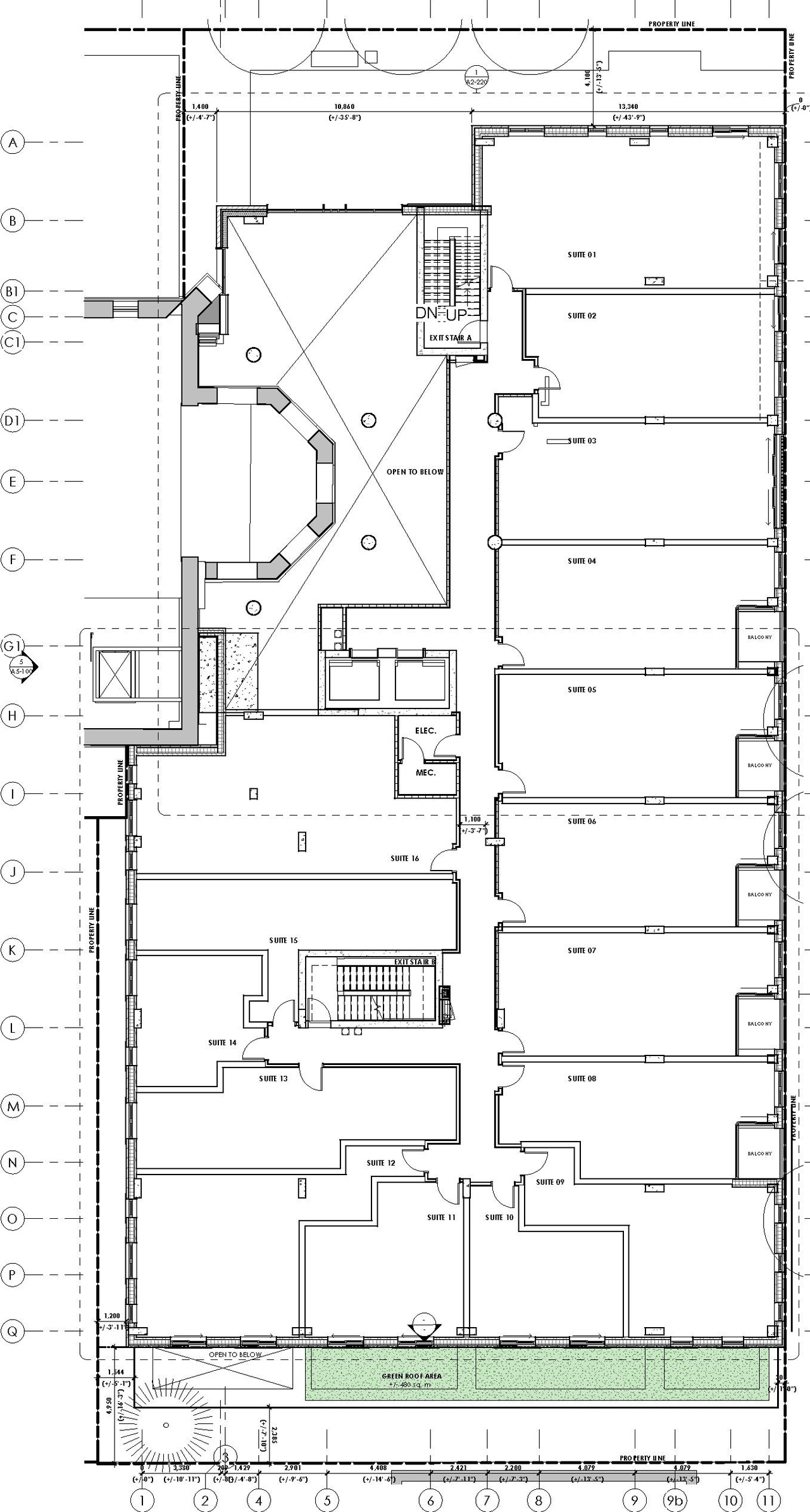
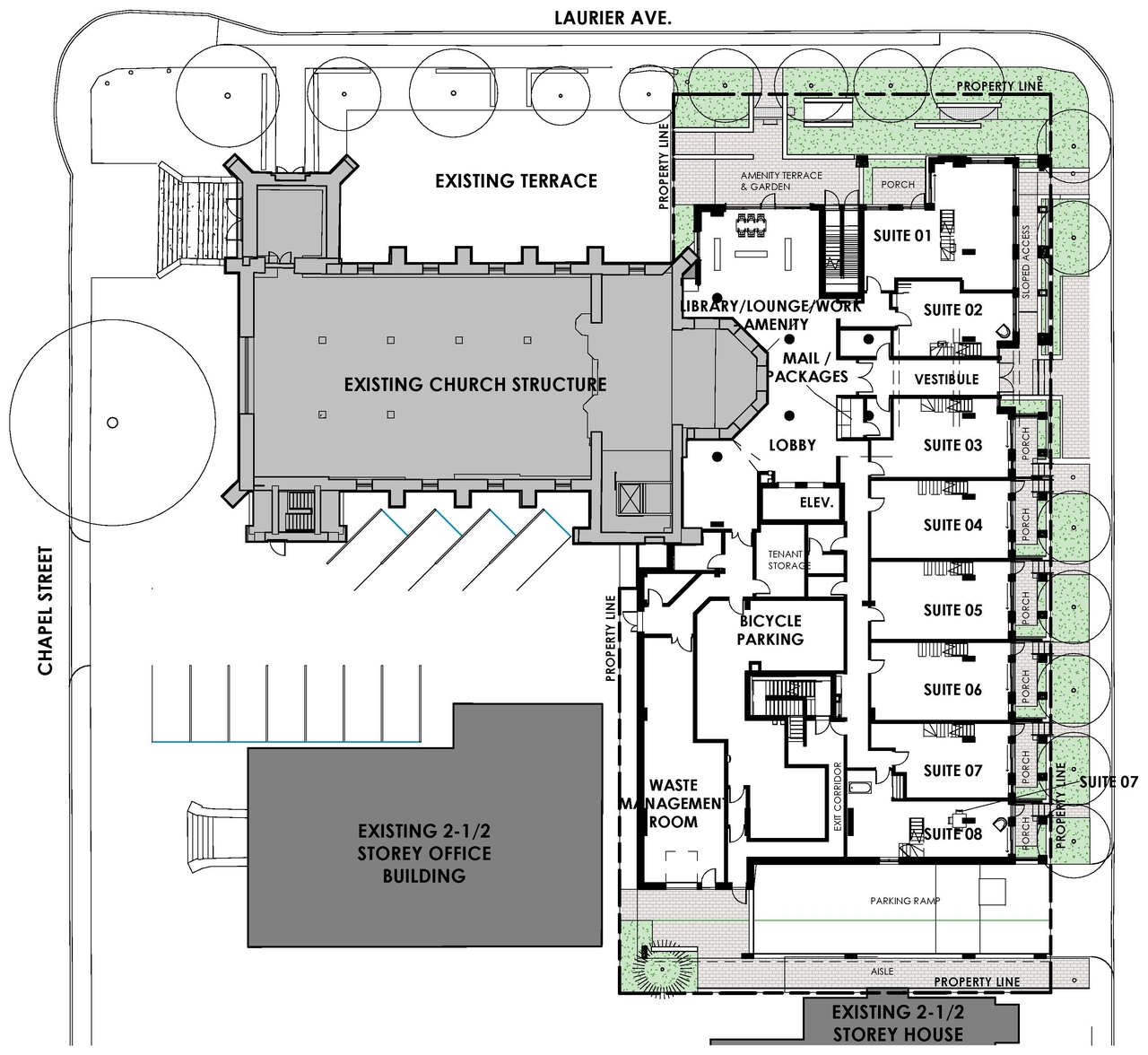
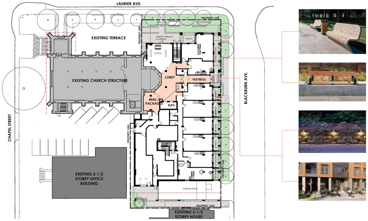
Site Plans, Elevations and Floor Plans#
Documents#
| Type | Document |
|---|---|
| Architectural Plans | 315 Chapel Street - Site Plan and Elevations |
| Design Brief | 315 Chapel Street - Design Brief |
| 315 Chapel Street - Heritage Impact Assessment |
















































