114 Richmond Rd. (D09-04-23-0042)#
Summary#
| Application Status | Active |
| Review Status | Report in Progress |
| Description | An application to alter the former Sisters of the Visitation Monestary at 114 Richmond Road, a property designated under Part IV of the Ontario Heritage Act |
| Ward | Ward 15 - Jeff Leiper |
| Date Initiated | 2023-08-22 |
| Last Updated | 2023-08-22 |
Renders#
Location#
Select a marker to view the address.
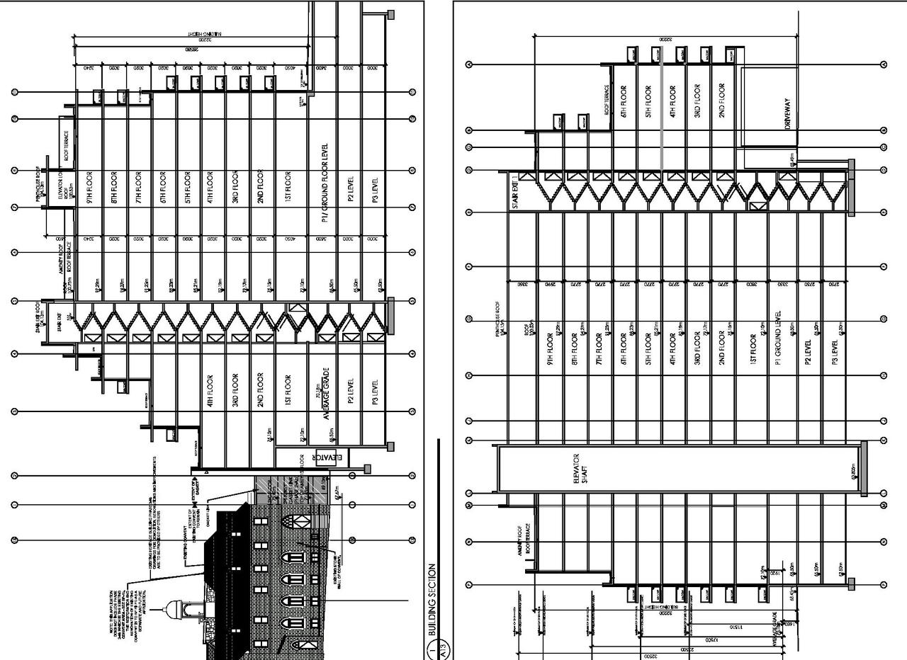
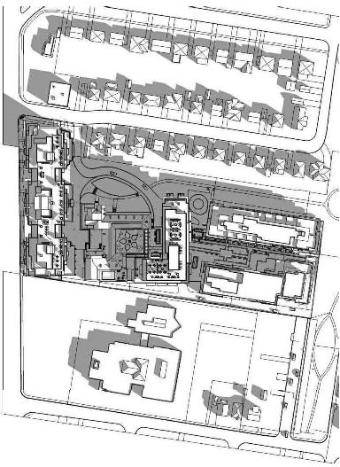
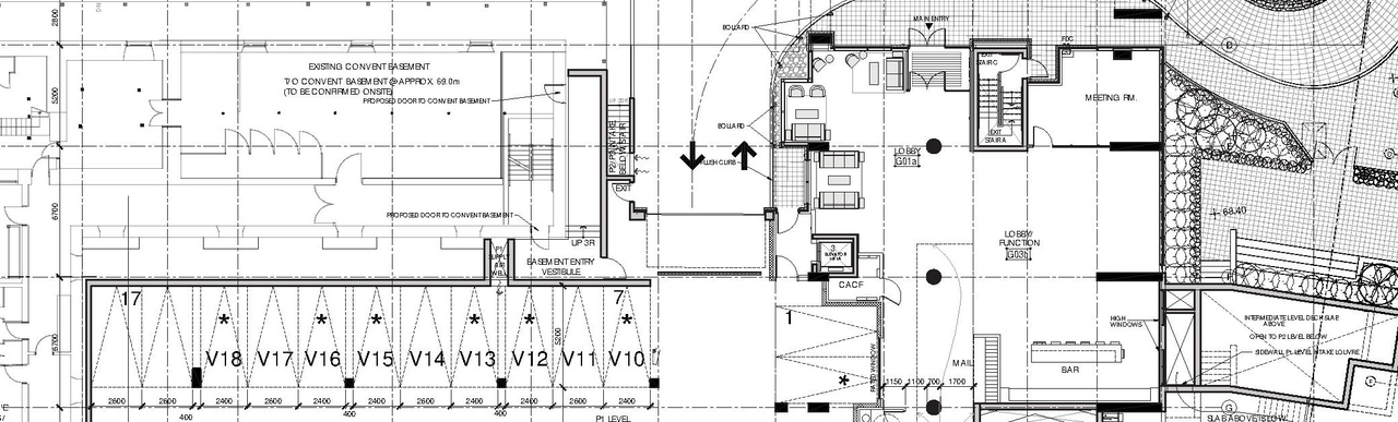
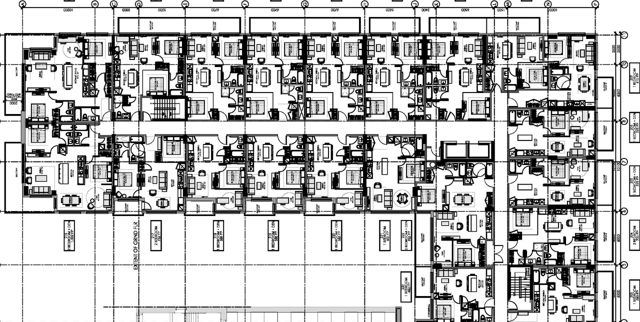
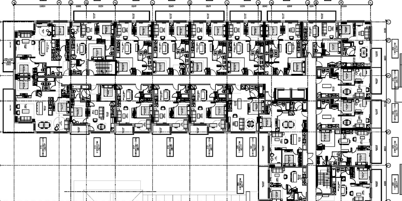
Site Plans, Elevations and Floor Plans#
Documents#
| Type | Document |
|---|---|
| Architectural Plans | 2023-08-22 Site Plan |
| Architectural Plans | 2023-08-22 Elevations & Materials |
| Architectural Plans | 2023-08-22 Conservation Plan |
| Design Brief | 2023-08-22 Design Brief |
| 2023-08-22 Heritage Imapct Assessment |






















