267 O’Connor St. (D09-04-20-0013)#
Summary#
| Application Status | Active |
| Review Status | Report Completed |
| Description | Application for New Construction at 267 O’Connor Street, designated under Part V of the Ontario Heritage Act, as part of the Centretown Heritage Conservation District |
| Ward | Ward 14 - Ariel Troster |
| Date Initiated | 2020-10-28 |
| Last Updated | 2026-01-29 |
Renders#
Location#
Select a marker to view the address.
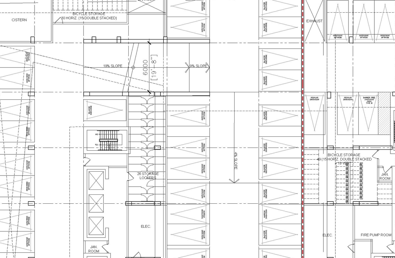
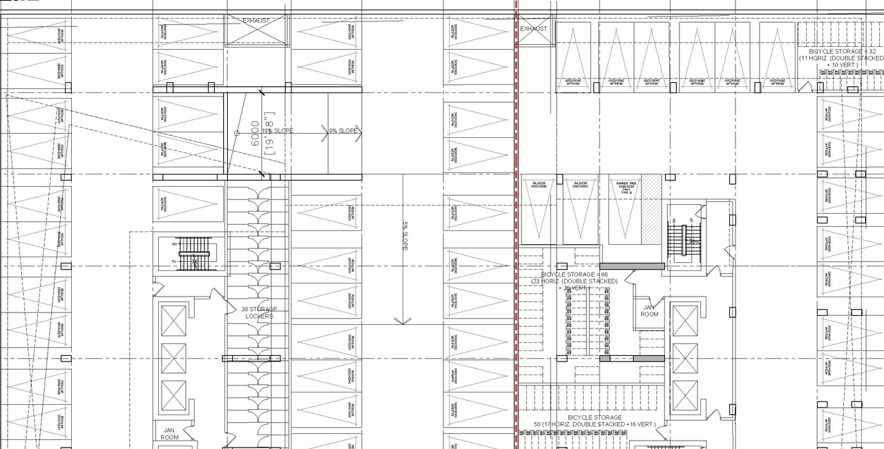
Site Plans, Elevations and Floor Plans#
Documents#
| Type | Document |
|---|---|
| Architectural Plans | 2026-01-27 - Site Plan - D09-04-20-0013 |
| Architectural Plans | 2026-01-27 - Landscape Plan - D09-04-20-0013 |
| Architectural Plans | 2026-01-27 - Building Elevations - D09-04-20-0013 |
| Design Brief | 2026-01-27 - Design Brief - D09-04-20-0013 |
| 2026-01-27 - Heritage Impact Assessment - D09-04-20-0013 |

































