320 Bren-Maur Rd. W. (D07-12-25-0142)#
Summary#
| Application Status | Active |
| Review Status | On Circulation; Initial Submission Review |
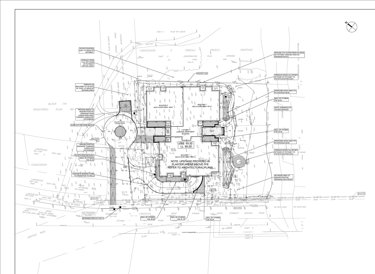
| Description | The City of Ottawa received a Zoning By-law Amendment and Site Plan Control application to construct a three-storey, low-rise apartment building with 35 dwelling units and a one-storey underground parking garage, and two surface parking spaces. Road modifications to Bren-Maur Road West are proposed. |
| Ward | Ward 24 - Wilson Lo |
| Date Initiated | 2025-11-03 |
| Last Updated | 2025-12-09 |
Renders#
Location#
Select a marker to view the address.













