5431 Fernbank Rd. (D07-12-25-0141) #
Summary #
| Application Status | Active |
| Review Status | Circulation Package Prepared |
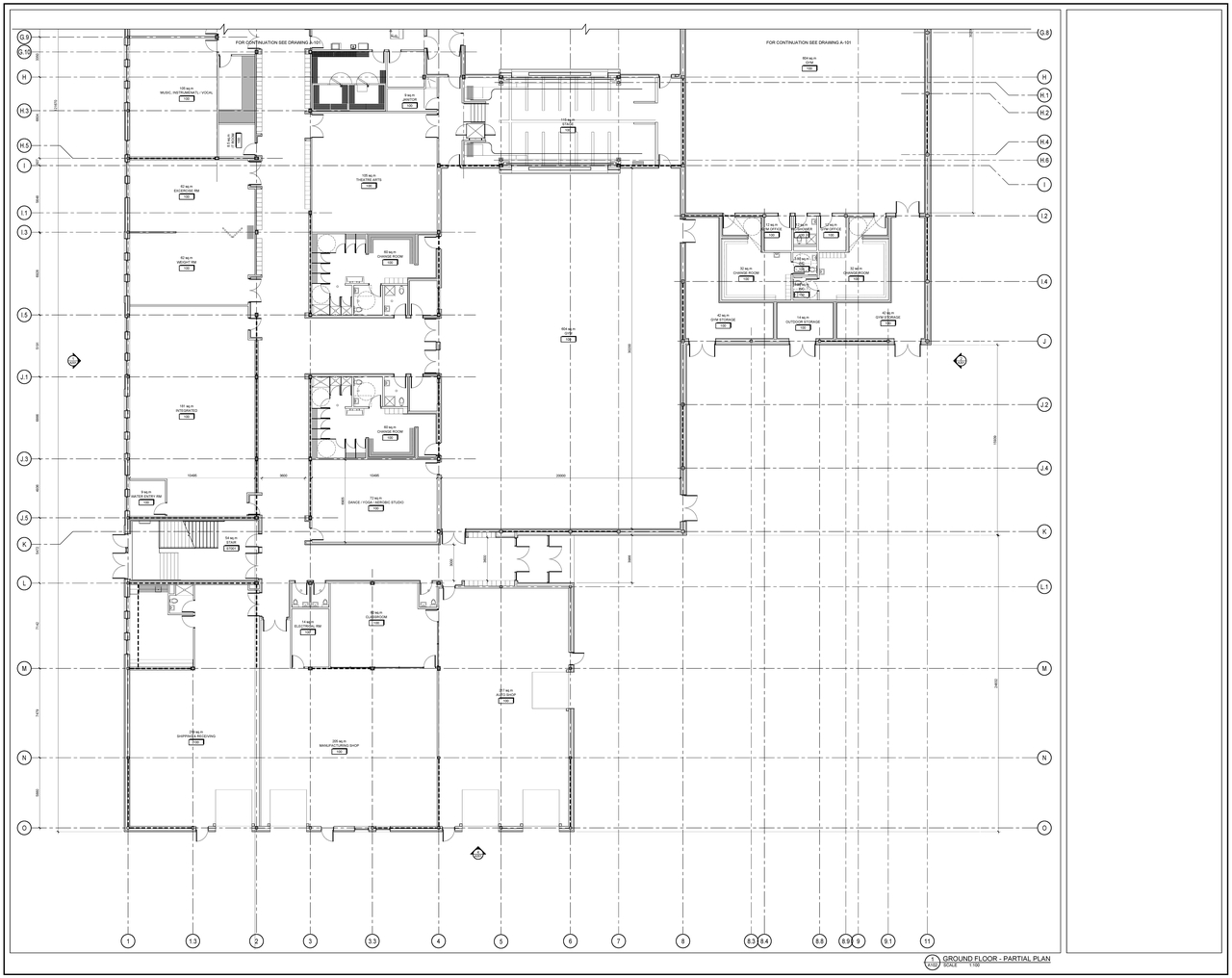
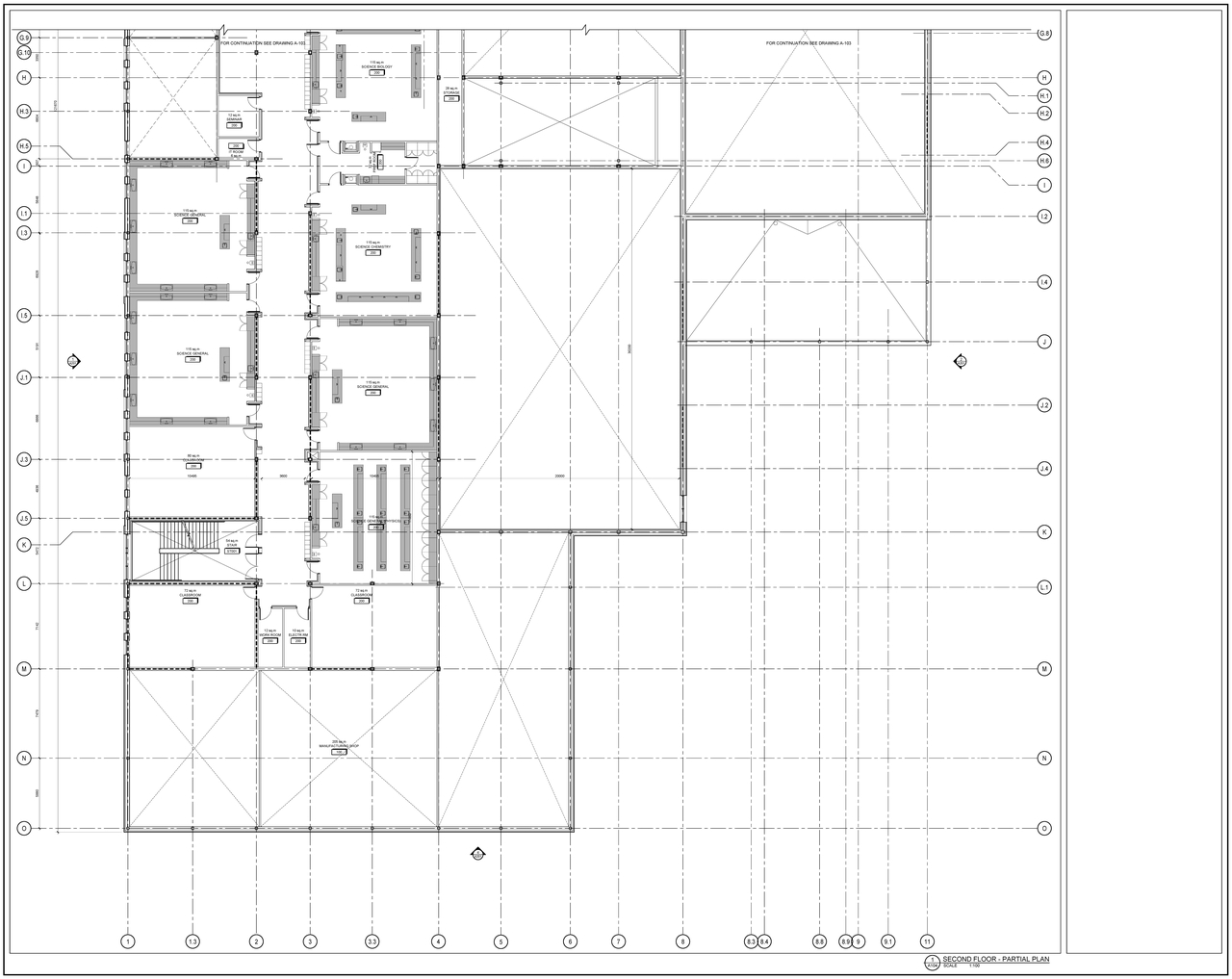
| Description | A Site Plan Control application to construct a three-storey secondary school with approximately 14,771 square metres of gross floor area. The proposed development includes a parking lot, bus loop, recreational area including two sports fields, a running track, and outdoor classrooms. |
| Ward | Ward 6 - Glen Gower |
| Date Initiated | 2025-10-29 |
| Last Updated | 2025-12-12 |
Location #
Select a marker to view the address.



