2821 8th Line Rd. (D07-12-25-0140) #
Summary #
| Application Status | Active |
| Review Status | On Circulation; Initial Submission Review |
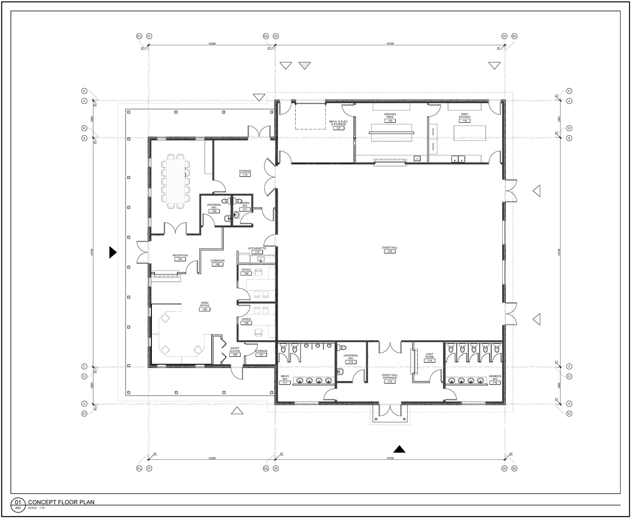
| Description | New Metcalfe Fair Office with assembly space. |
| Ward | Ward 20 - Isabelle Skalski |
| Date Initiated | 2025-10-27 |
| Last Updated | 2025-12-22 |
Location #
Select a marker to view the address.
