620 Triangle St. (D07-12-25-0131)#
Summary#
| Application Status | Inactive |
| Review Status | Notice of Decision Sent |
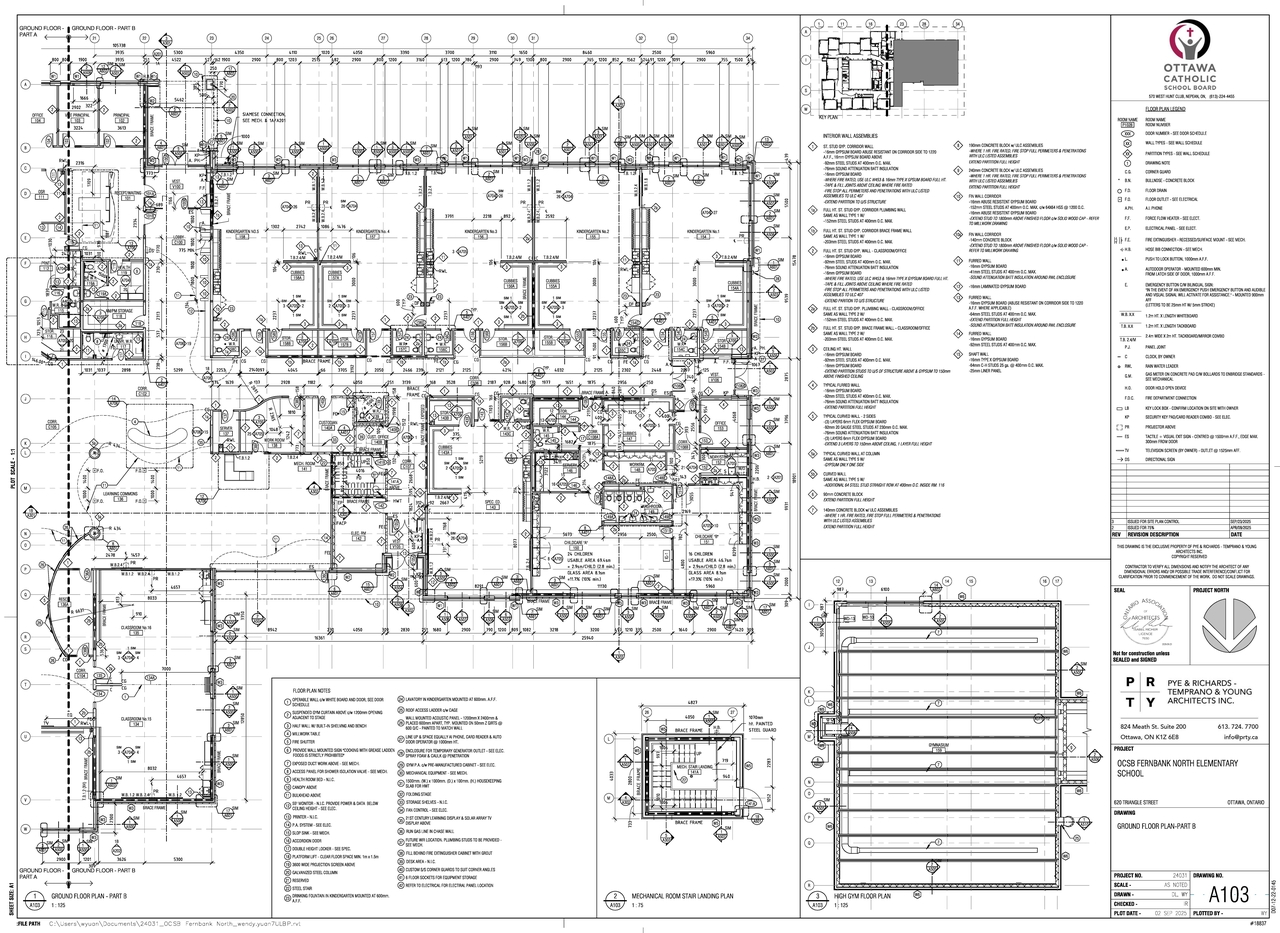
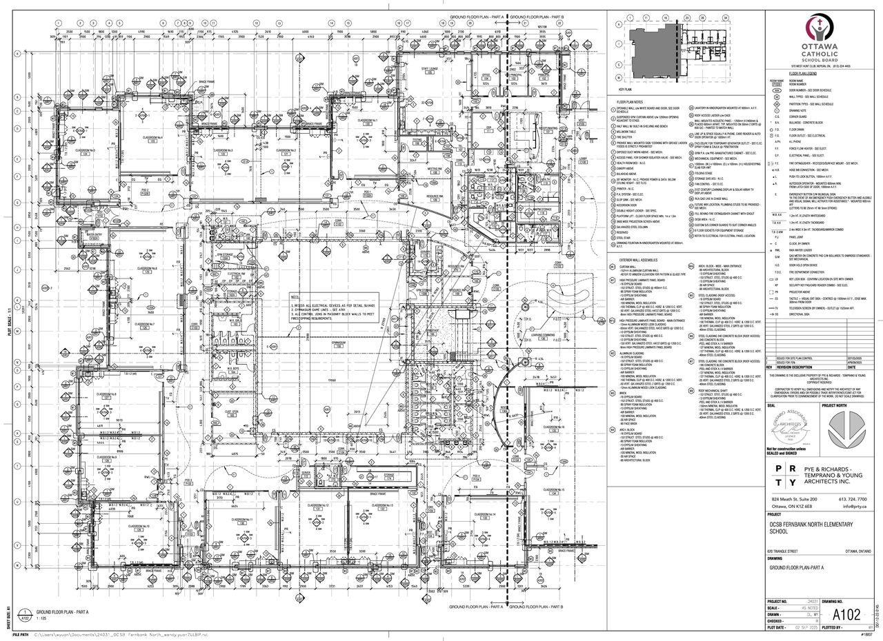
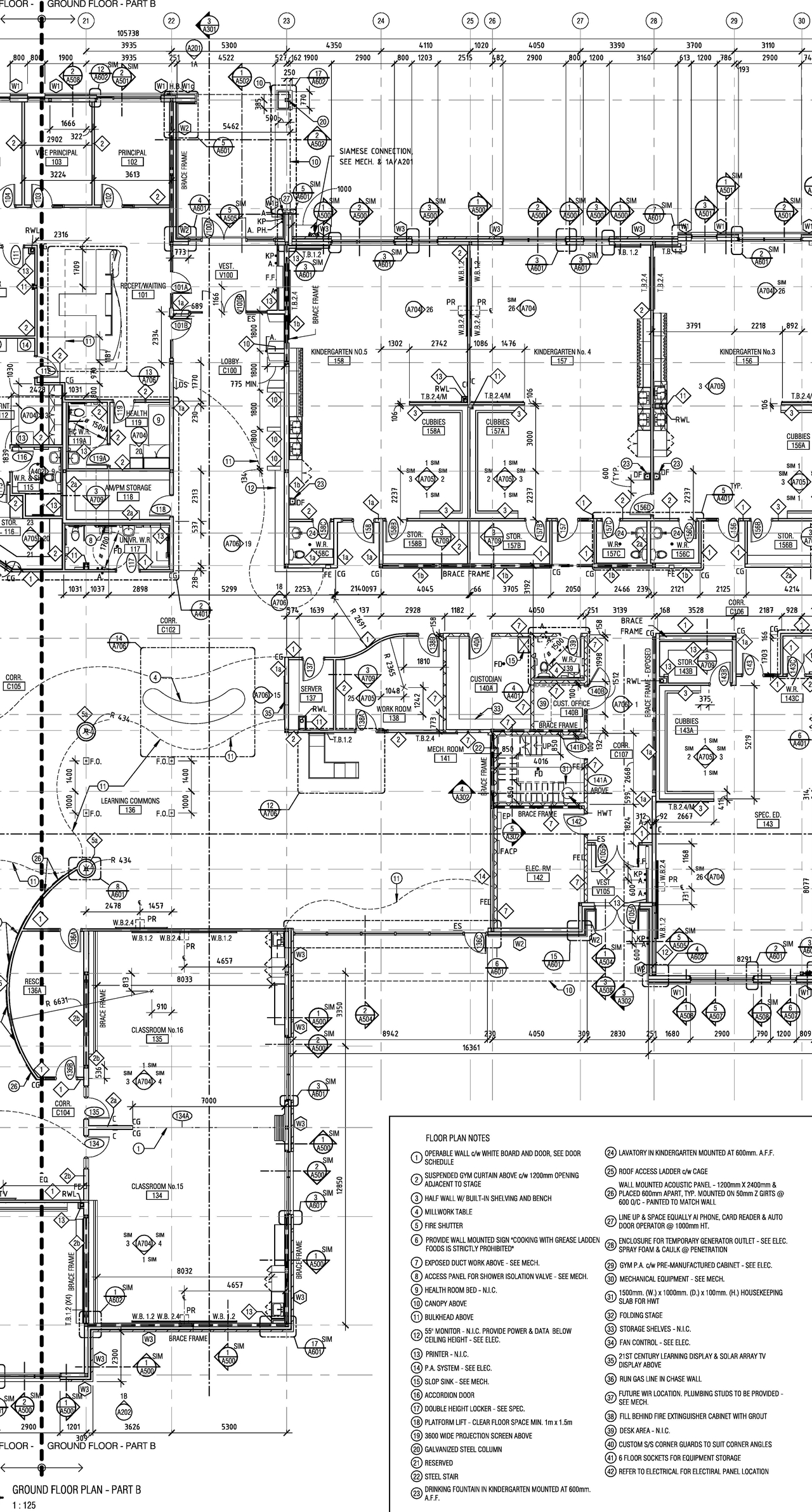
| Description | A Site Plan Control application to construct a new one storey elementary school with a Gross Floor Area (GFA) of 4,633 square metres. The new school has 89 dedicated parking spaces, bus and car laybys, future portables and a play yard. Demande de réglementation du plan d’implantation pour la construction d’une école primaire d’une surface de plancher hors uvre brute (SHOB) de 4 633 m2, accompagnée de 89 places de stationnement, de zones d’attente pour autobus et automobiles et d’une cour devant accueillir des salles de classe mobiles et une aire de jeux. |
| Ward | Ward 6 - Glen Gower |
| Date Initiated | 2025-09-26 |
| Last Updated | 2026-01-15 |
Location#
Select a marker to view the address.

