2025 Othello Ave. (D07-12-25-0125) #
Summary #
| Application Status | Active |
| Review Status | On Circulation; Initial Submission Review |
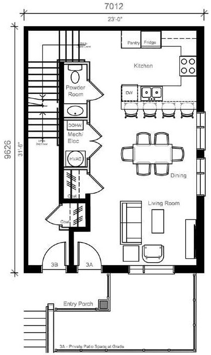
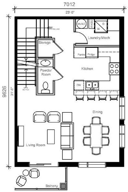
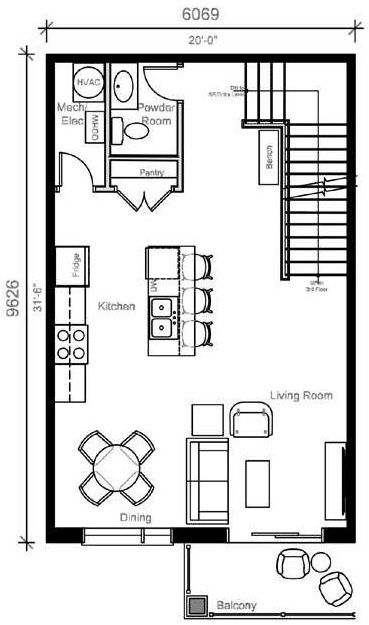
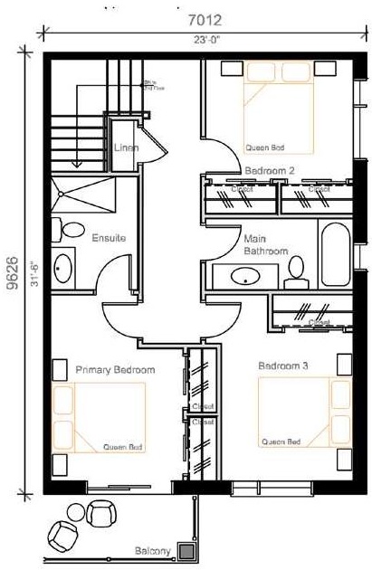
| Description | 3 stacked townhouse buildings with 24 dwellings per building. Existing high-rise buildings to remain on site. |
| Ward | Ward 18 - Marty Carr |
| Date Initiated | 2025-09-11 |
| Last Updated | 2025-10-17 |
Location #
Select a marker to view the address.












