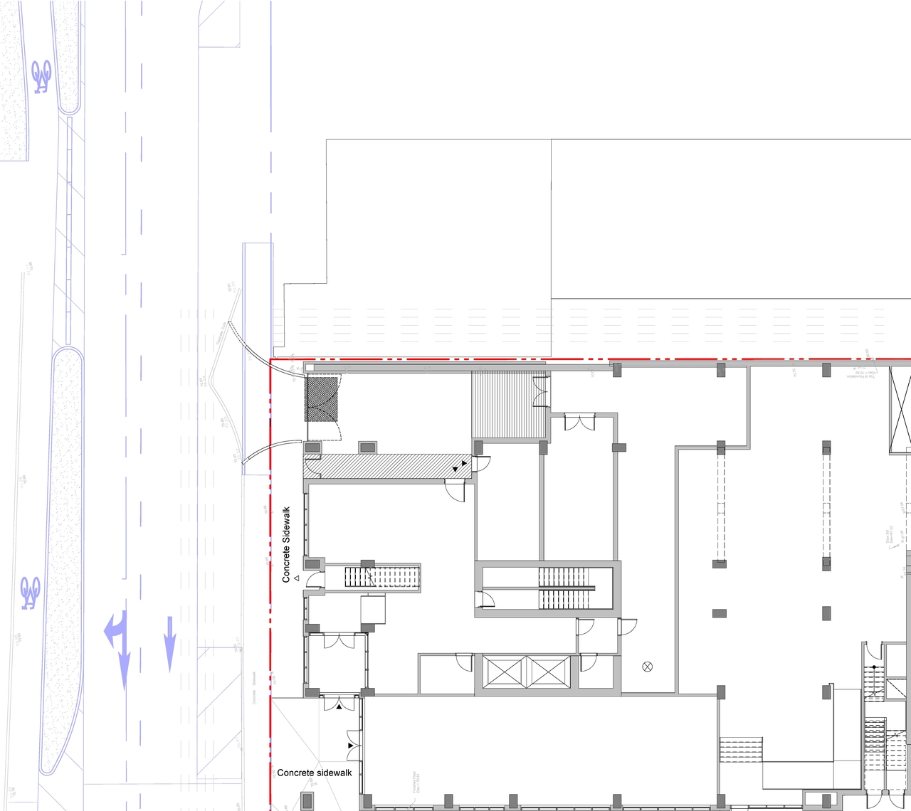
77 Metcalfe St. (D07-12-25-0112)#
Summary#
| Application Status | Active |
| Review Status | On Circulation; Initial Submission Review |
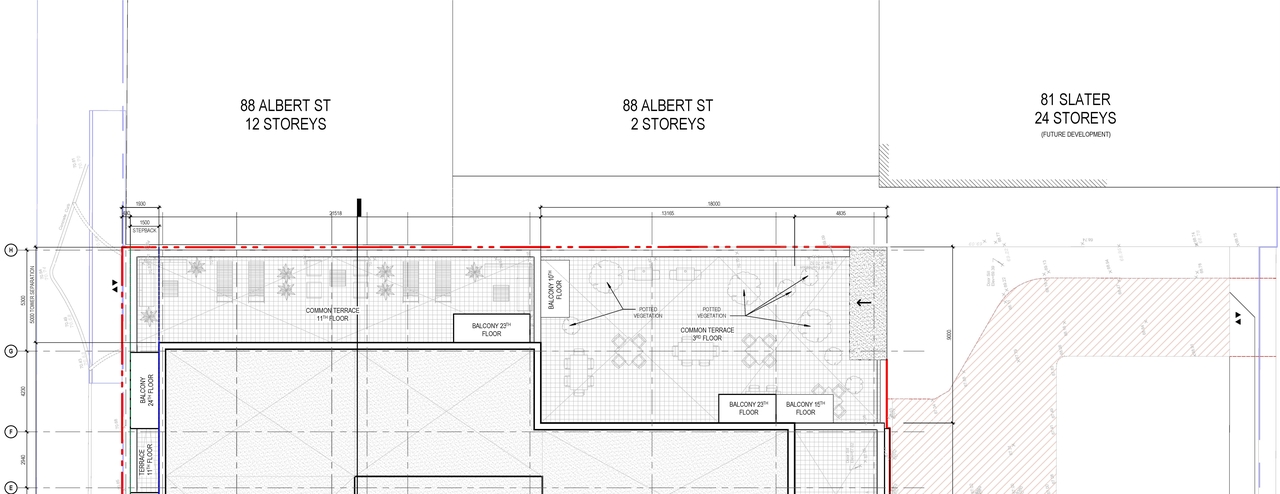
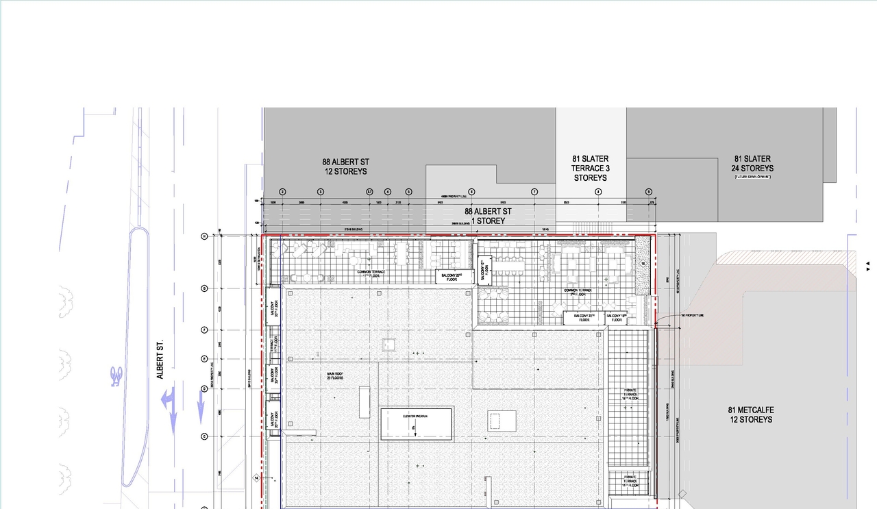
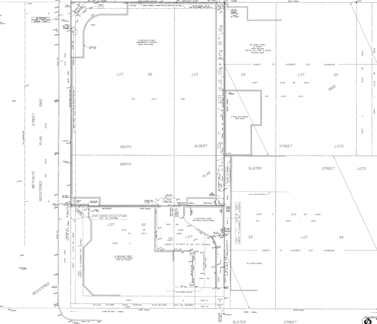
| Description | A Site Plan Control application to permit the redevelopment of the subject property for a 23-storey, mixd-use building, consisting of 241 dwelling units, 469 sqm. of ground floor commercial space, 0 residential parking spaces, 15 visitor parking spaces and 243 bicycle parking spaces |
| Ward | Ward 14 - Ariel Troster |
| Date Initiated | 2025-08-07 |
| Last Updated | 2025-10-17 |
Renders#
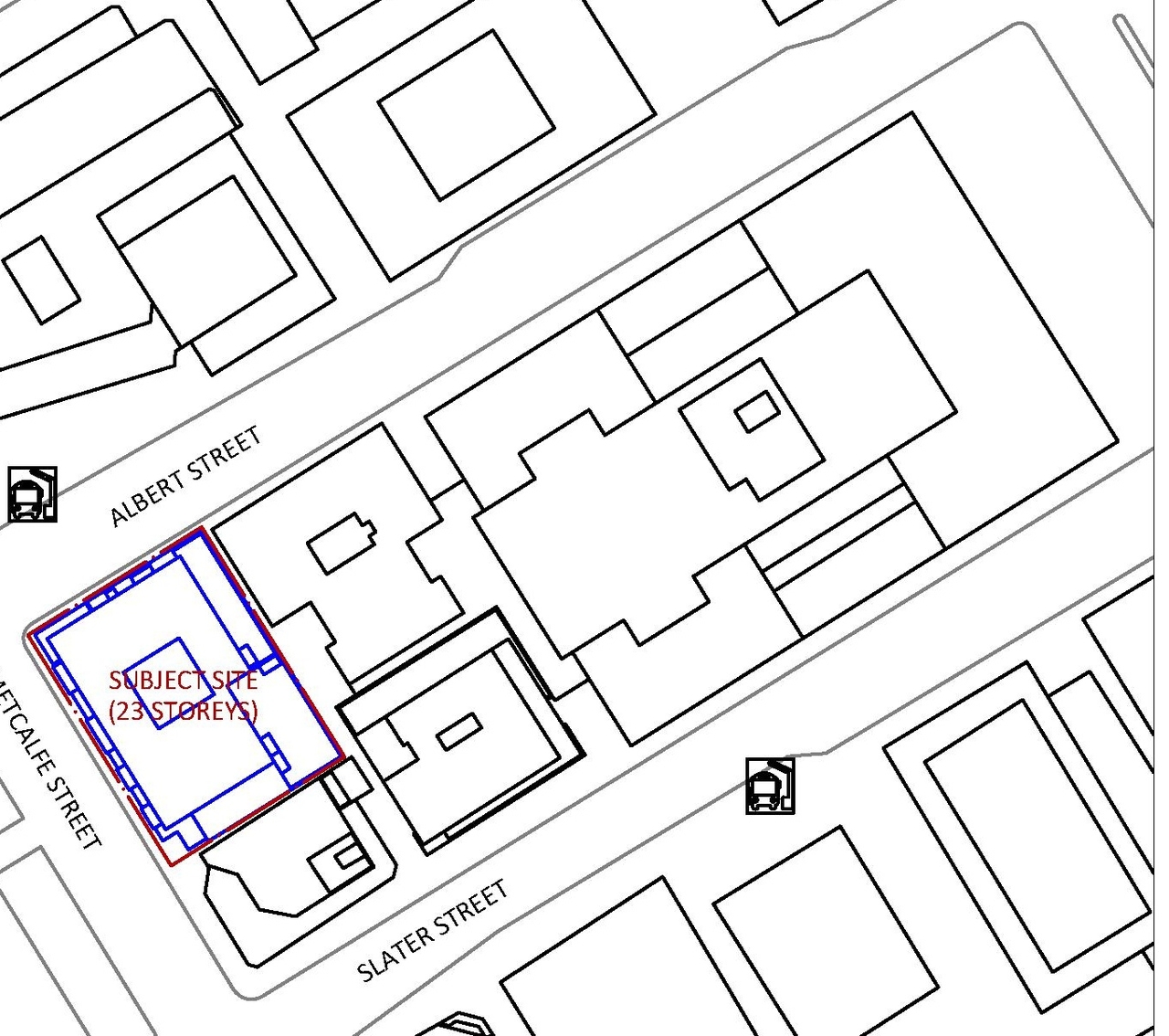
Location#
Select a marker to view the address.







































