1 Centrepointe (D07-12-25-0106)

1 Centrepointe (D07-12-25-0106) #

Summary #

Application StatusActive
Review StatusOn Circulation; Initial Submission Review
DescriptionA Site Plan Control application to construct a six-storey residential building, comprising 162 units and 135 interior parking spaces.
WardWard 8 - Laine Johnson
Date Initiated2025-07-30
Last Updated2025-12-03

Renders #

  • Rendering of building from page 16 of the file '2025-07-30 - Urban Design Review Panel - D07-12-25-0106'
  • Rendering of building from page 3 of the file '2025-07-30 - Urban Design Review Panel - D07-12-25-0106'
  • Rendering of building from page 16 of the file '2025-11-07 - Urban Design Review Panel - -D07-12-25-0106'
  • Rendering of building from page 1 of the file '2025-07-30 - Urban Design Review Panel - D07-12-25-0106'
  • Rendering of building from page 16 of the file '2025-11-07 - Urban Design Review Panel - -D07-12-25-0106'
  • Rendering of building from page 1 of the file '2025-11-07 - Urban Design Review Panel - -D07-12-25-0106'
  • Rendering of building from page 3 of the file '2025-11-07 - Urban Design Review Panel - -D07-12-25-0106'
  • Rendering of building from page 16 of the file '2025-11-07 - Urban Design Review Panel - -D07-12-25-0106'
  • Rendering of building from page 15 of the file '2025-11-07 - Urban Design Review Panel - -D07-12-25-0106'
  • Rendering of building from page 16 of the file '2025-07-30 - Urban Design Review Panel - D07-12-25-0106'
  • Rendering of building from page 16 of the file '2025-11-07 - Urban Design Review Panel - -D07-12-25-0106'
  • Rendering of building from page 16 of the file '2025-07-30 - Urban Design Review Panel - D07-12-25-0106'
  • Rendering of building from page 15 of the file '2025-07-30 - Urban Design Review Panel - D07-12-25-0106'
  • Rendering of building from page 2 of the file '2025-11-07 - Urban Design Review Panel - -D07-12-25-0106'
  • Rendering of building from page 24 of the file '2025-11-07 - Urban Design Review Panel - -D07-12-25-0106'
  • Rendering of building from page 2 of the file '2025-07-30 - Urban Design Review Panel - D07-12-25-0106'
  • Rendering of building from page 23 of the file '2025-07-30 - Urban Design Review Panel - D07-12-25-0106'
  • Rendering of building from page 22 of the file '2025-11-07 - Urban Design Review Panel - -D07-12-25-0106'
  • Rendering of building from page 22 of the file '2025-11-07 - Urban Design Review Panel - -D07-12-25-0106'
  • Rendering of building from page 23 of the file '2025-11-07 - Urban Design Review Panel - -D07-12-25-0106'
  • Rendering of building from page 23 of the file '2025-11-07 - Urban Design Review Panel - -D07-12-25-0106'
  • Rendering of building from page 16 of the file '2025-07-30 - Urban Design Review Panel - D07-12-25-0106'
  • Rendering of building from page 3 of the file '2025-07-30 - Urban Design Review Panel - D07-12-25-0106'
  • Rendering of building from page 16 of the file '2025-11-07 - Urban Design Review Panel - -D07-12-25-0106'
  • Rendering of building from page 1 of the file '2025-07-30 - Urban Design Review Panel - D07-12-25-0106'
  • Rendering of building from page 16 of the file '2025-11-07 - Urban Design Review Panel - -D07-12-25-0106'
  • Rendering of building from page 1 of the file '2025-11-07 - Urban Design Review Panel - -D07-12-25-0106'
  • Rendering of building from page 3 of the file '2025-11-07 - Urban Design Review Panel - -D07-12-25-0106'
  • Rendering of building from page 16 of the file '2025-11-07 - Urban Design Review Panel - -D07-12-25-0106'
  • Rendering of building from page 15 of the file '2025-11-07 - Urban Design Review Panel - -D07-12-25-0106'
  • Rendering of building from page 16 of the file '2025-07-30 - Urban Design Review Panel - D07-12-25-0106'
  • Rendering of building from page 16 of the file '2025-11-07 - Urban Design Review Panel - -D07-12-25-0106'
  • Rendering of building from page 16 of the file '2025-07-30 - Urban Design Review Panel - D07-12-25-0106'
  • Rendering of building from page 15 of the file '2025-07-30 - Urban Design Review Panel - D07-12-25-0106'
  • Rendering of building from page 2 of the file '2025-11-07 - Urban Design Review Panel - -D07-12-25-0106'
  • Rendering of building from page 24 of the file '2025-11-07 - Urban Design Review Panel - -D07-12-25-0106'
  • Rendering of building from page 2 of the file '2025-07-30 - Urban Design Review Panel - D07-12-25-0106'
  • Rendering of building from page 23 of the file '2025-07-30 - Urban Design Review Panel - D07-12-25-0106'
  • Rendering of building from page 22 of the file '2025-11-07 - Urban Design Review Panel - -D07-12-25-0106'
  • Rendering of building from page 22 of the file '2025-11-07 - Urban Design Review Panel - -D07-12-25-0106'
  • Rendering of building from page 23 of the file '2025-11-07 - Urban Design Review Panel - -D07-12-25-0106'
  • Rendering of building from page 23 of the file '2025-11-07 - Urban Design Review Panel - -D07-12-25-0106'

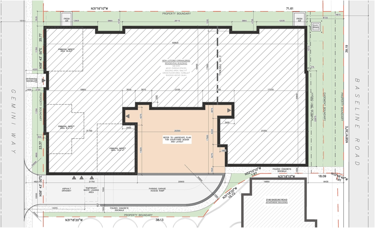
Site and Floor Plans #

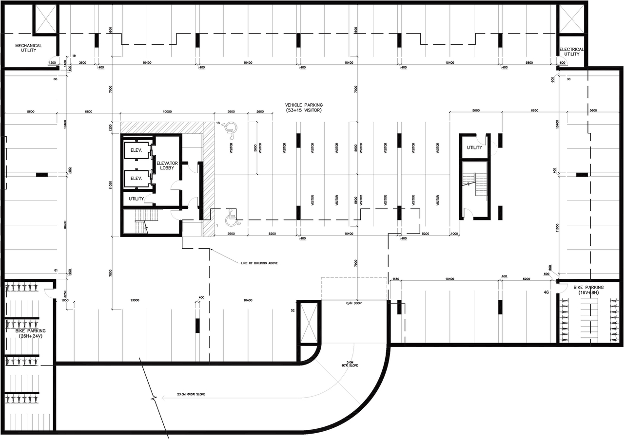
  • Construction site plan for project from page 5 of the file '2025-11-07 - Urban Design Review Panel - -D07-12-25-0106'
  • Construction site plan for project from page 6 of the file '2025-11-07 - Urban Design Review Panel - -D07-12-25-0106'
  • Construction site plan for project from page 7 of the file '2025-11-07 - Urban Design Review Panel - -D07-12-25-0106'
  • Construction site plan for project from page 9 of the file '2025-11-07 - Urban Design Review Panel - -D07-12-25-0106'
  • Construction site plan for project from page 10 of the file '2025-11-07 - Urban Design Review Panel - -D07-12-25-0106'
  • Construction site plan for project from page 12 of the file '2025-11-07 - Urban Design Review Panel - -D07-12-25-0106'
  • Construction site plan for project from page 13 of the file '2025-11-07 - Urban Design Review Panel - -D07-12-25-0106'
  • Construction site plan for project from page 14 of the file '2025-11-07 - Urban Design Review Panel - -D07-12-25-0106'
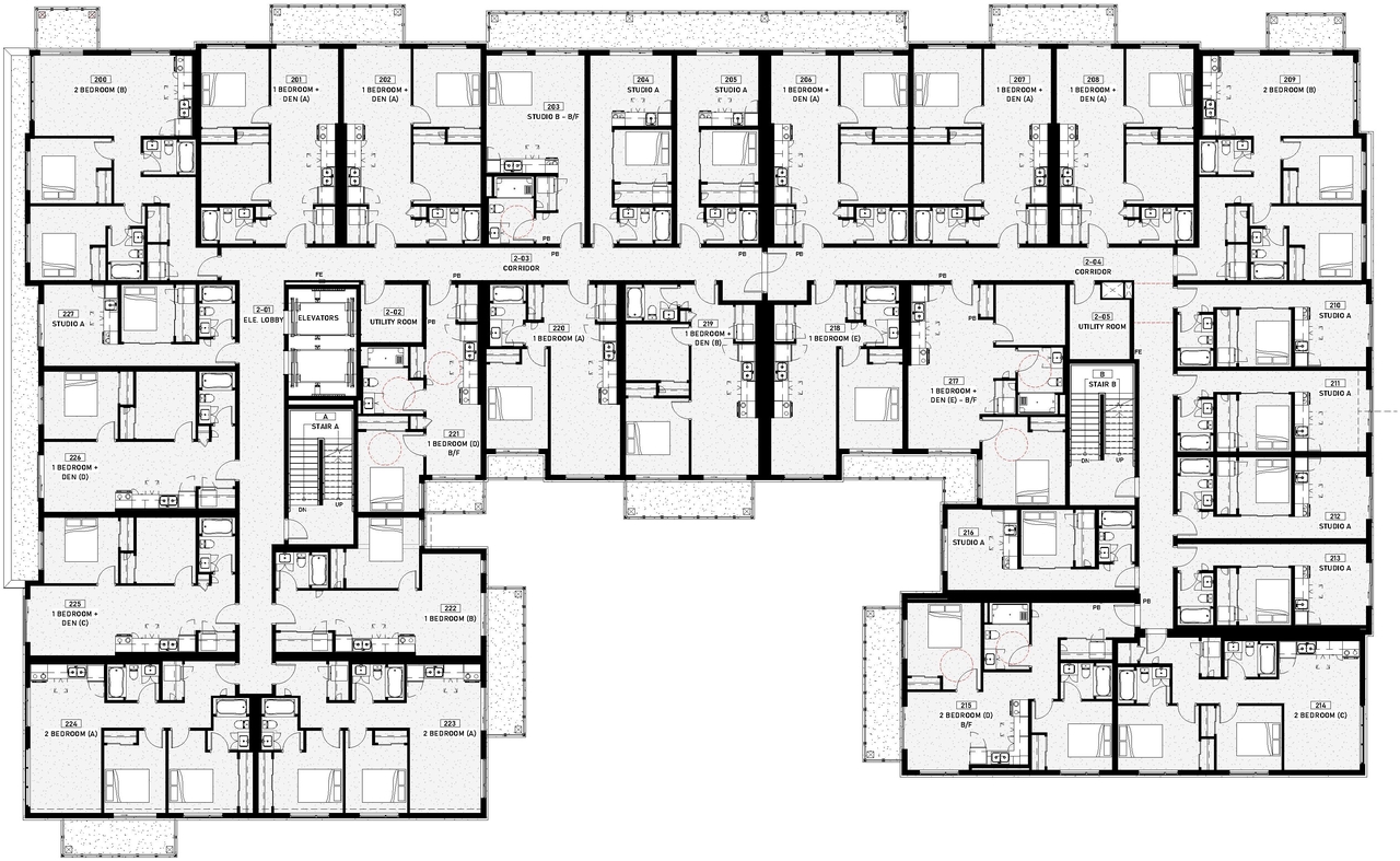
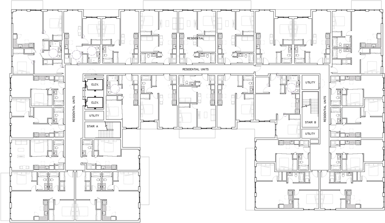
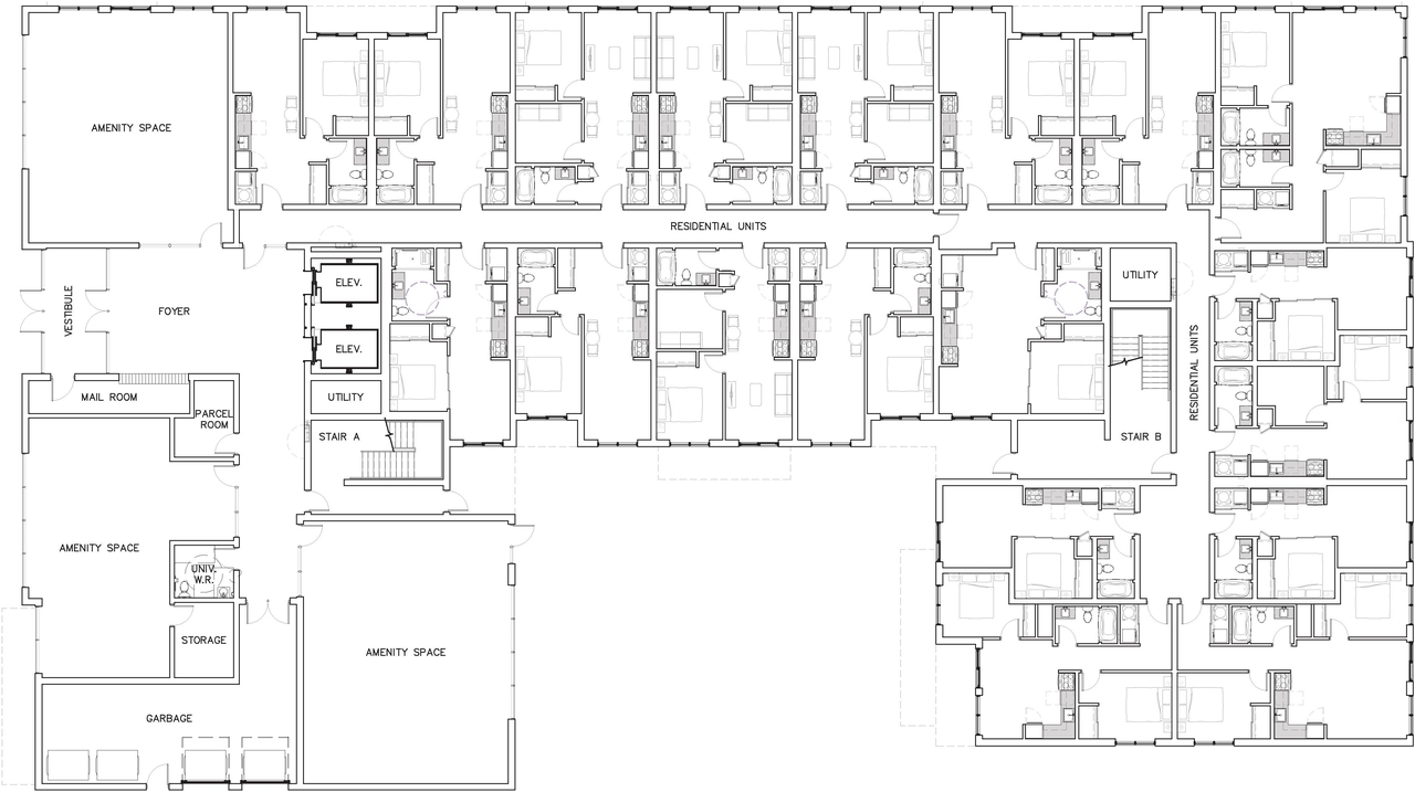
  • Floor plan for project from page 18 of the file '2025-11-07 - Urban Design Review Panel - -D07-12-25-0106'
  • Floor plan for project from page 19 of the file '2025-11-07 - Urban Design Review Panel - -D07-12-25-0106'
  • Floor plan for project from page 27 of the file '2025-11-07 - Urban Design Review Panel - -D07-12-25-0106'
  • Floor plan for project from page 27 of the file '2025-11-07 - Urban Design Review Panel - -D07-12-25-0106'
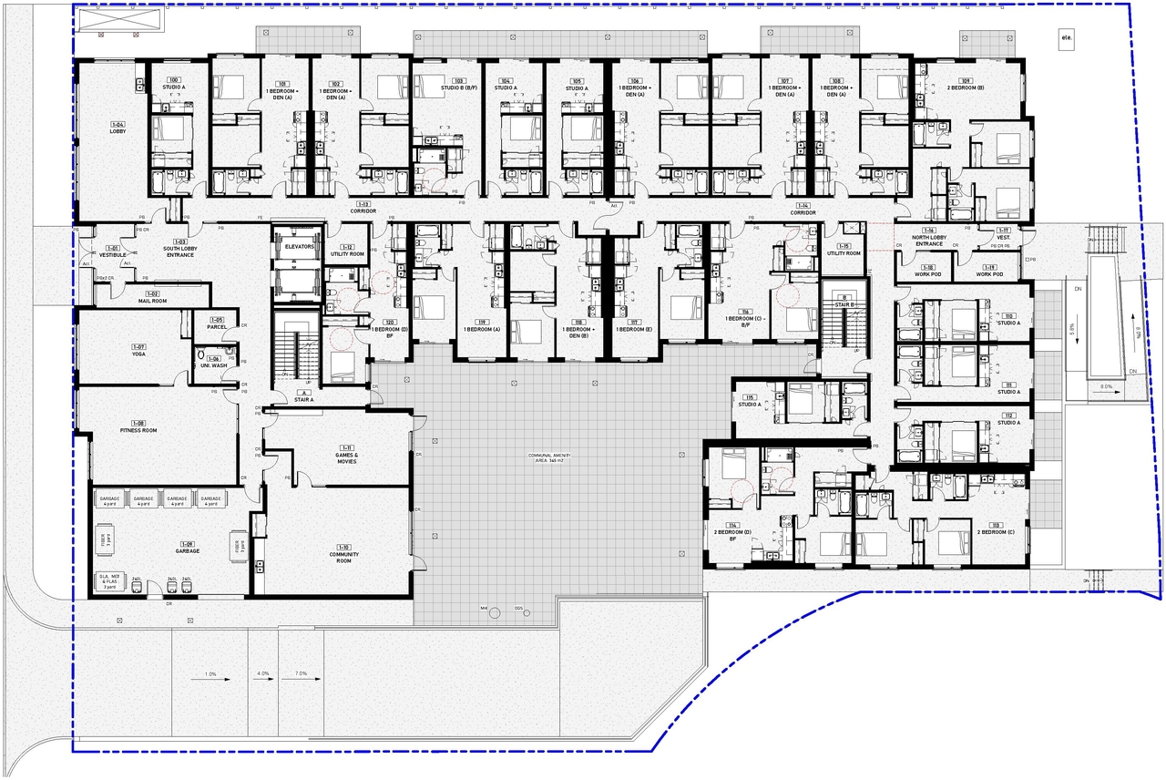
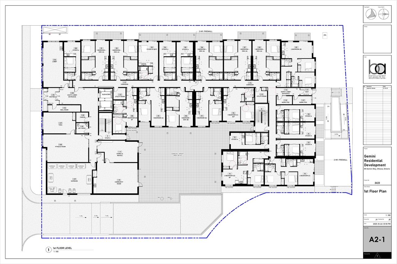
  • Floor plan for project from page 1 of the file '2025-11-07 - 1st Floor Plan --D07-12-25-0106'
  • Construction site plan for project from page 17 of the file '2025-07-30 - Urban Design Review Panel - D07-12-25-0106'
  • Floor plan for project from page 18 of the file '2025-07-30 - Urban Design Review Panel - D07-12-25-0106'
  • Floor plan for project from page 19 of the file '2025-07-30 - Urban Design Review Panel - D07-12-25-0106'
  • Floor plan for project from page 20 of the file '2025-07-30 - Urban Design Review Panel - D07-12-25-0106'
  • Floor plan for project from page 25 of the file '2025-07-30 - Urban Design Review Panel - D07-12-25-0106'
  • Construction site plan for project from page 5 of the file '2025-11-07 - Urban Design Review Panel - -D07-12-25-0106'
  • Construction site plan for project from page 6 of the file '2025-11-07 - Urban Design Review Panel - -D07-12-25-0106'
  • Construction site plan for project from page 7 of the file '2025-11-07 - Urban Design Review Panel - -D07-12-25-0106'
  • Construction site plan for project from page 9 of the file '2025-11-07 - Urban Design Review Panel - -D07-12-25-0106'
  • Construction site plan for project from page 10 of the file '2025-11-07 - Urban Design Review Panel - -D07-12-25-0106'
  • Construction site plan for project from page 12 of the file '2025-11-07 - Urban Design Review Panel - -D07-12-25-0106'
  • Construction site plan for project from page 13 of the file '2025-11-07 - Urban Design Review Panel - -D07-12-25-0106'
  • Construction site plan for project from page 14 of the file '2025-11-07 - Urban Design Review Panel - -D07-12-25-0106'
  • Floor plan for project from page 18 of the file '2025-11-07 - Urban Design Review Panel - -D07-12-25-0106'
  • Floor plan for project from page 19 of the file '2025-11-07 - Urban Design Review Panel - -D07-12-25-0106'
  • Floor plan for project from page 27 of the file '2025-11-07 - Urban Design Review Panel - -D07-12-25-0106'
  • Floor plan for project from page 27 of the file '2025-11-07 - Urban Design Review Panel - -D07-12-25-0106'
  • Floor plan for project from page 1 of the file '2025-11-07 - 1st Floor Plan --D07-12-25-0106'
  • Construction site plan for project from page 17 of the file '2025-07-30 - Urban Design Review Panel - D07-12-25-0106'
  • Floor plan for project from page 18 of the file '2025-07-30 - Urban Design Review Panel - D07-12-25-0106'
  • Floor plan for project from page 19 of the file '2025-07-30 - Urban Design Review Panel - D07-12-25-0106'
  • Floor plan for project from page 20 of the file '2025-07-30 - Urban Design Review Panel - D07-12-25-0106'
  • Floor plan for project from page 25 of the file '2025-07-30 - Urban Design Review Panel - D07-12-25-0106'

Documents #

TypeDocument
Application Summary2025-12-02 - Application Summary - D07-12-25-0106
Architectural Plans2025-11-07 - Site Plan - D07-12-25-0106
Architectural Plans2025-11-07 - Preliminary Construction Management Plan –D07-12-25-0106
Architectural Plans2025-11-07 - Plan - 4R-36669 -D07-12-25-0106
Architectural Plans2025-07-30 - Site Plan & Elevations - D07-12-25-0106
Civil Engineering Report2025-11-07 - Civil Plans - D07-12-25-0106
Civil Engineering Report2025-07-30 - Civil Plans - D07-12-25-0106
Design Brief2025-11-07 - Urban Design Review Panel - -D07-12-25-0106
Design Brief2025-07-30 - Urban Design Review Panel - D07-12-25-0106
Environmental2025-11-07 - Phase Two Environmental Site Assessment - -D07-12-25-0106
Environmental2025-11-07 - Phase One Environmental Site Assessment - -D07-12-25-0106
Environmental2025-07-30 - Phase Two Environmental Site Assessment - D07-12-25-0106
Environmental2025-07-30 - Phase One Environmental Site Assessment - D07-12-25-0106
Floor Plan2025-11-07 - 1st Floor Plan –D07-12-25-0106
Geotechnical Report2025-07-30 - Geotechnical Investigation - D07-12-25-0106
Landscape Plan2025-11-07 - Landscape Plan - D07-12-25-0106
Landscape Plan2025-07-30 - Landscape Plan - D07-12-25-0106
Noise Study2025-11-07 - Noise Control Study - -D07-12-25-0106
Noise Study2025-07-30 - Noise Control Study - D07-12-25-0106
Planning2025-11-07 - Zoning Confirmation Report - -D07-12-25-0106
Planning2025-07-30 - Zoning Confirmation Report - D07-12-25-0106
Stormwater Management2025-11-07 - Stormwater Management Report - D07-12-25-0106
Stormwater Management2025-07-30 - Stormwater Management Report and Servicing brief - D07-12-25-0106
Surveying2025-07-30 - Survey - D07-12-25-0106
Transportation Analysis2025-11-07 - Transportation Impact Assessment - -D07-12-25-0106
Transportation Analysis2025-07-30 - Transportation Impact Assessment - D07-12-25-0106
Tree Information and Conservation2025-11-07 - Tree Conservation Report - -D07-12-25-0106
Tree Information and Conservation2025-07-30 - Tree Conservation Report - D07-12-25-0106
2025-11-07 -Geotechnical Investigation Report - D07-12-25-0106