4405-4409 Innes Rd. (D07-12-25-0099)

4405-4409 Innes Rd. (D07-12-25-0099) #

Summary #

Application StatusFile Pending
Review StatusApplication File Pending
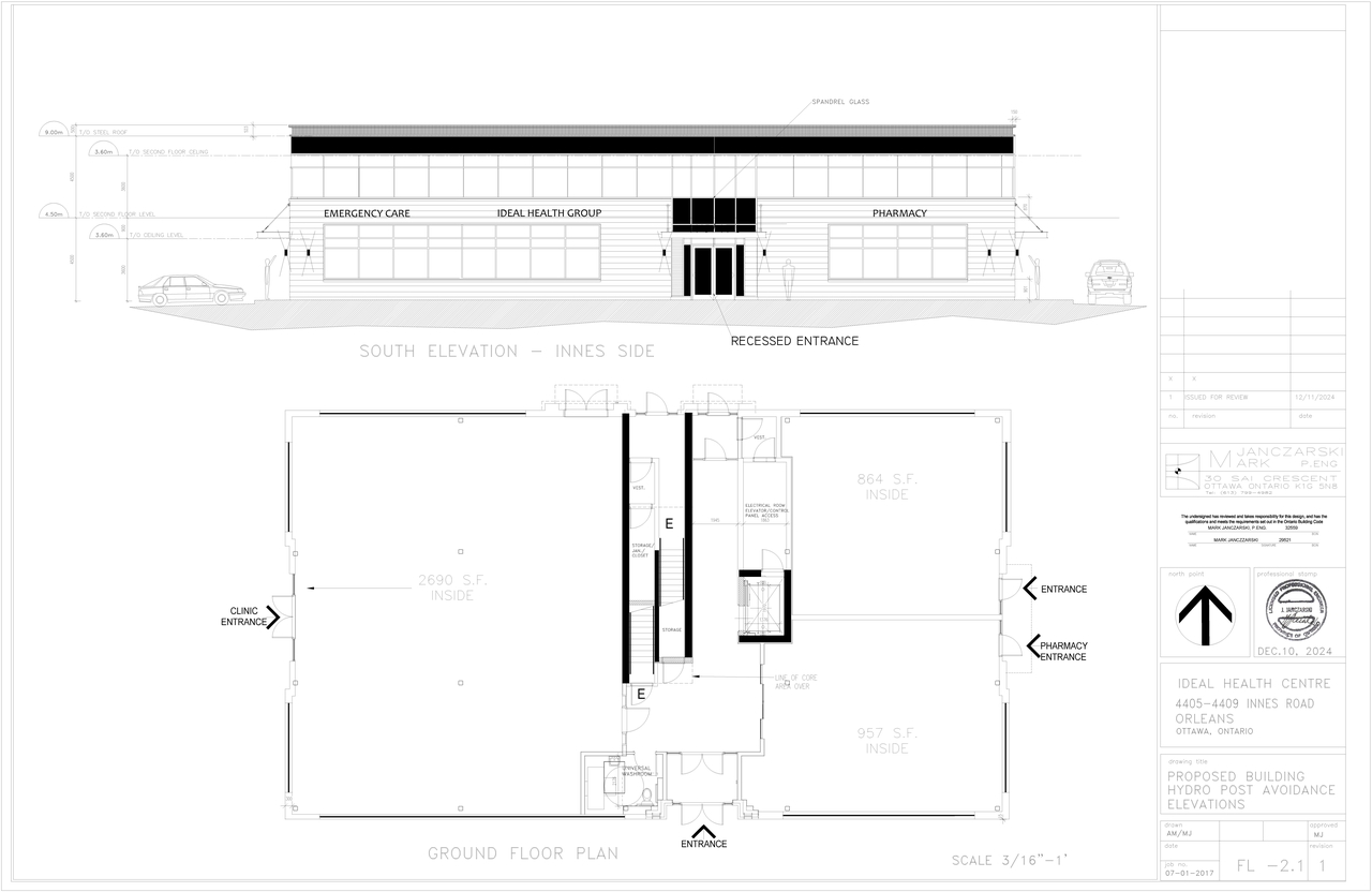
DescriptionA Site Plan Control application to replace the existing buildings on site with a 2-storey commercial medical facility with a total gross floor area of 1115 square metres.
WardWard 1 - Matthew Luloff
Date Initiated2025-07-22
Last Updated2025-11-05

Location #

Select a marker to view the address.

Site and Floor Plans #

Documents #

TypeDocument
Application Summary2025-10-21 - Application Summary - D07-12-25-0099
Architectural Plans2025-10-15 - Site Plan - D07-12-25-0099
Architectural Plans2025-09-22 - North & South Elevations - D07-12-25-0099
Architectural Plans2025-07-22 - Site Plan Parking Lot, Access Services - D07-12-25-0099
Architectural Plans2025-07-22 - Site Plan - D07-12-25-0099
Architectural Plans2025-07-22 - Roof Plan - D07-12-25-0099
Architectural Plans2025-07-22 - Preliminary Construction Management Plan - D07-12-25-0099
Architectural Plans2025-07-22 - Notes and Details - D07-12-25-0099
Architectural Plans2025-07-22 - Elevations - D07-12-25-0099
Architectural Plans2025-12-11 - Proposed Site Plan - D07-12-25-0099
Architectural Plans2025-12-11 - North South Elevations - D07-12-25-0099
Architectural Plans2025-12-11 - East West Elevations - D07-12-25-0099
Architectural Plans2025-12-18 - Site Plan - D07-12-25-0099
Architectural Plans2025-12-18 - Notes and Details - D07-12-25-0099
Drainage Plan2025-07-22 - Drainage Plan - D07-12-25-0099
Drainage Plan2025-12-18 - Drainage Plan - D07-12-25-0099
Environmental2025-08-13 - Phase I Environmental Site Assessment - D07-12-25-0099
Environmental2025-07-22 - Phase I Environmental Site Assessment - D07-12-25-0099
Erosion And Sediment Control Plan2025-07-22 - Erosion & Sediment Control Plan West - D07-12-25-0099
Erosion And Sediment Control Plan2025-07-22 - Erosion & Sediment Control Plan East - D07-12-25-0099
Erosion And Sediment Control Plan2025-12-18 - Erosion and Sediment Control Plan West & East - D07-12-25-0099
Existing Conditions2025-07-22 - Existing Conditions West - D07-12-25-0099
Existing Conditions2025-07-22 - Existing Conditions East - D07-12-25-0099
Existing Conditions2025-12-18 - Existing Conditions West & East - D07-12-25-0099
Floor Plan2025-07-22 - South Elevation and Floor Plan - D07-12-25-0099
Floor Plan2025-07-22 - Foundation Floor Plan - D07-12-25-0099
Geotechnical Report2025-07-22 - Grading Plan West - D07-12-25-0099
Geotechnical Report2025-07-22 - Grading Plan East - D07-12-25-0099
Geotechnical Report2025-07-22 - Geotechnical Investigation Update - D07-12-25-0099
Geotechnical Report2025-12-18 - Grading Plans West & East - D07-12-25-0099
Landscape Plan2025-07-22 - Landscape Plan - D07-12-25-0099
Planning2025-07-22 - Zoning Confirmation Report - D07-12-25-0099
Rendering2025-07-22 - Street View Rendering - D07-12-25-0099
Site Servicing2025-07-22 - Site Servicing Plan West - D07-12-25-0099
Site Servicing2025-07-22 - Site Servicing Plan East - D07-12-25-0099
Site Servicing2025-07-22 - Site Servicing & SWM Report - D07-12-25-0099
Site Servicing2025-12-18 - Site Servicing Plans West & East - D07-12-25-0099
Site Servicing2025-12-18 - Site Servicing & SWM Report - D07-12-25-0099
Surveying2025-07-22 - Survey - D07-12-25-0099
Transportation Analysis2025-12-11 - Transportation Impact Assessment - D07-12-25-0099
Tree Information and Conservation2025-07-22 - Tree Conservation Report - D07-12-25-0099
2025-09-22 - Phase One ESA_Update - D07-12-25-0099
2025-09-22 - Geometry Redlines - D07-12-25-0099
2025-07-22 - Details - D07-12-25-0099
2025-12-18 - Details - D07-12-25-0099

Additional Information #

All Addresses4405 Innes Rd.
4409 Innes Rd.