335 Roosevelt (D07-12-25-0097)

335 Roosevelt (D07-12-25-0097) #

Summary #

Application StatusActive
Review StatusOn Circulation; Initial Submission Review
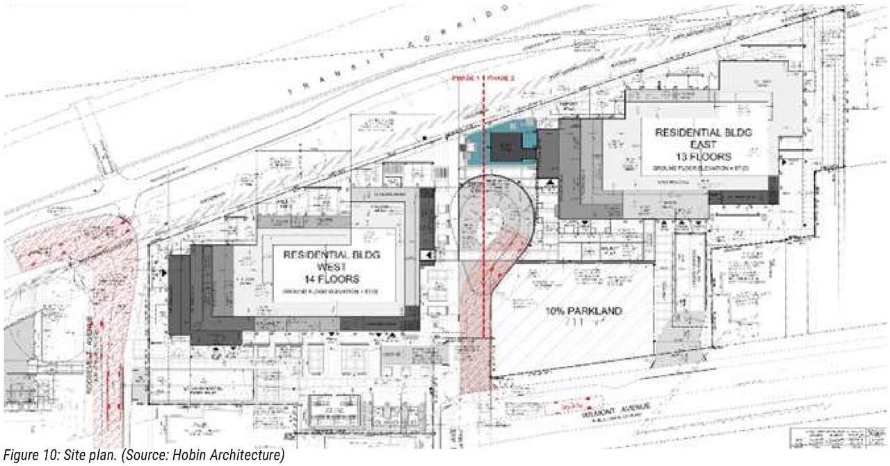
DescriptionTwo residential towers: 14-storeys (west building) and 12-storeys (east building) with a total of 312 units and 279 underground parking spaces. 711 square metres of parkland oriented along Wilmont Avenue.
WardWard 15 - Jeff Leiper
Date Initiated2025-07-15
Last Updated2025-10-27

Renders #

  • Rendering of building from page 28 of the file '2025-09-24 - Urban Design Brief - D07-12-25-0097'
  • Rendering of building from page 25 of the file '2025-07-16 - Urban Design Brief - D07-12-25-0097'
  • Rendering of building from page 25 of the file '2025-09-24 - Urban Design Brief - D07-12-25-0097'
  • Rendering of building from page 22 of the file '2025-07-16 - Urban Design Brief - D07-12-25-0097'
  • Rendering of building from page 32 of the file '2025-09-24 - Urban Design Brief - D07-12-25-0097'
  • Rendering of building from page 11 of the file '2025-09-24 - Urban Design Brief - D07-12-25-0097'
  • Rendering of building from page 26 of the file '2025-07-16 - Urban Design Brief - D07-12-25-0097'
  • Rendering of building from page 33 of the file '2025-09-24 - Urban Design Brief - D07-12-25-0097'
  • Rendering of building from page 31 of the file '2025-07-16 - Urban Design Brief - D07-12-25-0097'
  • Rendering of building from page 31 of the file '2025-09-24 - Urban Design Brief - D07-12-25-0097'
  • Rendering of building from page 23 of the file '2025-09-24 - Urban Design Brief - D07-12-25-0097'
  • Rendering of building from page 26 of the file '2025-09-24 - Urban Design Brief - D07-12-25-0097'
  • Rendering of building from page 13 of the file '2025-09-24 - Urban Design Brief - D07-12-25-0097'
  • Rendering of building from page 28 of the file '2025-09-24 - Urban Design Brief - D07-12-25-0097'
  • Rendering of building from page 25 of the file '2025-07-16 - Urban Design Brief - D07-12-25-0097'
  • Rendering of building from page 25 of the file '2025-09-24 - Urban Design Brief - D07-12-25-0097'
  • Rendering of building from page 22 of the file '2025-07-16 - Urban Design Brief - D07-12-25-0097'
  • Rendering of building from page 32 of the file '2025-09-24 - Urban Design Brief - D07-12-25-0097'
  • Rendering of building from page 11 of the file '2025-09-24 - Urban Design Brief - D07-12-25-0097'
  • Rendering of building from page 26 of the file '2025-07-16 - Urban Design Brief - D07-12-25-0097'
  • Rendering of building from page 33 of the file '2025-09-24 - Urban Design Brief - D07-12-25-0097'
  • Rendering of building from page 31 of the file '2025-07-16 - Urban Design Brief - D07-12-25-0097'
  • Rendering of building from page 31 of the file '2025-09-24 - Urban Design Brief - D07-12-25-0097'
  • Rendering of building from page 23 of the file '2025-09-24 - Urban Design Brief - D07-12-25-0097'
  • Rendering of building from page 26 of the file '2025-09-24 - Urban Design Brief - D07-12-25-0097'
  • Rendering of building from page 13 of the file '2025-09-24 - Urban Design Brief - D07-12-25-0097'

Site and Floor Plans #

  • Construction site plan for project from page 4 of the file '2025-09-24 - Urban Design Brief - D07-12-25-0097'
  • Construction site plan for project from page 5 of the file '2025-09-24 - Urban Design Brief - D07-12-25-0097'
  • Construction site plan for project from page 5 of the file '2025-09-24 - Urban Design Brief - D07-12-25-0097'
  • Construction site plan for project from page 6 of the file '2025-09-24 - Urban Design Brief - D07-12-25-0097'
  • Construction site plan for project from page 9 of the file '2025-09-24 - Urban Design Brief - D07-12-25-0097'
  • Construction site plan for project from page 9 of the file '2025-09-24 - Urban Design Brief - D07-12-25-0097'
  • Construction site plan for project from page 15 of the file '2025-09-24 - Urban Design Brief - D07-12-25-0097'
  • Construction site plan for project from page 16 of the file '2025-09-24 - Urban Design Brief - D07-12-25-0097'
  • Construction site plan for project from page 17 of the file '2025-09-24 - Urban Design Brief - D07-12-25-0097'
  • Construction site plan for project from page 9 of the file '2025-07-16 - Urban Design Brief - D07-12-25-0097'
  • Construction site plan for project from page 4 of the file '2025-09-24 - Urban Design Brief - D07-12-25-0097'
  • Construction site plan for project from page 5 of the file '2025-09-24 - Urban Design Brief - D07-12-25-0097'
  • Construction site plan for project from page 5 of the file '2025-09-24 - Urban Design Brief - D07-12-25-0097'
  • Construction site plan for project from page 6 of the file '2025-09-24 - Urban Design Brief - D07-12-25-0097'
  • Construction site plan for project from page 9 of the file '2025-09-24 - Urban Design Brief - D07-12-25-0097'
  • Construction site plan for project from page 9 of the file '2025-09-24 - Urban Design Brief - D07-12-25-0097'
  • Construction site plan for project from page 15 of the file '2025-09-24 - Urban Design Brief - D07-12-25-0097'
  • Construction site plan for project from page 16 of the file '2025-09-24 - Urban Design Brief - D07-12-25-0097'
  • Construction site plan for project from page 17 of the file '2025-09-24 - Urban Design Brief - D07-12-25-0097'
  • Construction site plan for project from page 9 of the file '2025-07-16 - Urban Design Brief - D07-12-25-0097'

Documents #

TypeDocument
Application Summary2025-10-27 - Application Summary - D07-12-25-0097
Architectural Plans2025-09-23 - West Building Elevations - D07-12-25-0097
Architectural Plans2025-09-23 - Site Plan - D07-12-25-0097
Architectural Plans2025-09-23 - Phase 2 East Bulding Plans - D07-12-25-0097
Architectural Plans2025-09-23 - Phase 1 West Building Plans - D07-12-25-0097
Architectural Plans2025-09-23 - 3D Elevations - D07-12-25-0097
Architectural Plans2025-07-16 - West Building Garage and Blocking Plans - D07-12-25-0097
Architectural Plans2025-07-16 - Site Plan - D07-12-25-0097
Architectural Plans2025-07-16 - Elevations - D07-12-25-0097
Architectural Plans2025-07-16 - East Building Garage and Blocking Plans - D07-12-25-0097
Architectural Plans2025-07-16 - Construction Management and Phasing Plans - D07-12-25-0097
Design Brief2025-09-24 - Urban Design Brief - D07-12-25-0097
Design Brief2025-07-16 - Urban Design Brief - D07-12-25-0097
Environmental2025-07-16 - Phase II Environmental Site Assessment - D07-12-25-0097
Environmental2025-07-16 - Phase I Environmental Site Assessment - D07-12-25-0097
Erosion And Sediment Control Plan2025-07-16 - Erosion and Sediment Control Plan - D07-12-25-0097
Geotechnical Report2025-09-23 - Grading Plan - D07-12-25-0097
Geotechnical Report2025-07-16 - Grading Plan - D07-12-25-0097
Geotechnical Report2025-07-16 - Geotechnical Investigation - D07-12-25-0097
Landscape Plan2025-09-23 - Landscape Plan - D07-12-25-0097
Landscape Plan2025-07-16 - Landscape Plans - D07-12-25-0097
Noise Study2025-07-16 - Transportation Noise & Vibration Impact Study - D07-12-25-0097
Planning2025-07-16 - Zoning Confirmation Report - D07-12-25-0097
Shadow Study2025-09-23 - Sun Shadow Analysis - D07-12-25-0097
Shadow Study2025-07-16 - Sun Shadow Analysis - D07-12-25-0097
Site Servicing2025-09-23 - Servicing Plan - D07-12-25-0097
Site Servicing2025-07-16 - Site Servicing & Stormwater Management Report - D07-12-25-0097
Site Servicing2025-07-16 - Servicing Plan - D07-12-25-0097
Stormwater Management2025-07-16 - Storm Drainage Area Plan - D07-12-25-0097
Surveying2025-07-16 - Survey - D07-12-25-0097
Transportation Analysis2025-10-03 - Transportation Impact Assessment - D07-12-25-0097
Transportation Analysis2025-07-16 - Transportation Impact Assessment - D07-12-25-0097
Tree Information and Conservation2025-07-16 - Tree Conservation Report - D07-12-25-0097
Wind Study2025-07-16 - Pedestrian Level Wind Study - D07-12-25-0097
2025-10-03 - RMA Package - D07-12-25-0097
2025-09-23 - Sprinkler Water Supply Requirements - D07-12-25-0097
2025-07-16 - RMA Package - D07-12-25-0097
2025-07-16 - Rail Proximity Study - D07-12-25-0097