4159 Obsidian (D07-12-25-0068)

4159 Obsidian (D07-12-25-0068) #

Summary #

Application StatusActive
Review StatusAdditional Submission Deemed Adequate
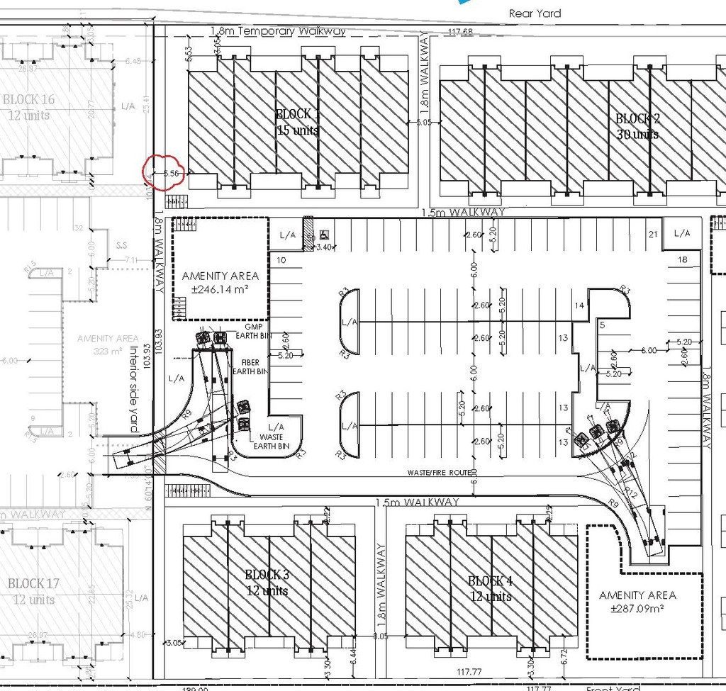
Description93 stacked, back-to-back townhouse dwellings in six (6) blocks. The blocks range in size from 12 units to 30 units.
WardWard 3 - David Hill
Date Initiated2025-05-16
Last Updated2025-09-23

Renders #

  • Rendering of building from page 15 of the file '2025-05-16 - Urban Design Brief - D07-12-25-0068'
  • Rendering of building from page 20 of the file '2025-05-16 - Urban Design Brief - D07-12-25-0068'
  • Rendering of building from page 21 of the file '2025-05-16 - Urban Design Brief - D07-12-25-0068'
  • Rendering of building from page 16 of the file '2025-05-16 - Urban Design Brief - D07-12-25-0068'
  • Rendering of building from page 15 of the file '2025-05-16 - Urban Design Brief - D07-12-25-0068'
  • Rendering of building from page 20 of the file '2025-05-16 - Urban Design Brief - D07-12-25-0068'
  • Rendering of building from page 21 of the file '2025-05-16 - Urban Design Brief - D07-12-25-0068'
  • Rendering of building from page 16 of the file '2025-05-16 - Urban Design Brief - D07-12-25-0068'

Site and Floor Plans #

  • Construction site plan for project from page 6 of the file '2025-05-16 - Urban Design Brief - D07-12-25-0068'
  • Construction site plan for project from page 7 of the file '2025-05-16 - Urban Design Brief - D07-12-25-0068'
  • Construction site plan for project from page 7 of the file '2025-05-16 - Urban Design Brief - D07-12-25-0068'
  • Construction site plan for project from page 7 of the file '2025-05-16 - Urban Design Brief - D07-12-25-0068'
  • Construction site plan for project from page 7 of the file '2025-05-16 - Urban Design Brief - D07-12-25-0068'
  • Construction site plan for project from page 8 of the file '2025-05-16 - Urban Design Brief - D07-12-25-0068'
  • Construction site plan for project from page 9 of the file '2025-05-16 - Urban Design Brief - D07-12-25-0068'
  • Construction site plan for project from page 10 of the file '2025-05-16 - Urban Design Brief - D07-12-25-0068'
  • Construction site plan for project from page 11 of the file '2025-05-16 - Urban Design Brief - D07-12-25-0068'
  • Construction site plan for project from page 11 of the file '2025-05-16 - Urban Design Brief - D07-12-25-0068'
  • Construction site plan for project from page 11 of the file '2025-05-16 - Urban Design Brief - D07-12-25-0068'
  • Construction site plan for project from page 14 of the file '2025-05-16 - Urban Design Brief - D07-12-25-0068'
  • Floor plan for project from page 14 of the file '2025-05-16 - Urban Design Brief - D07-12-25-0068'
  • Construction site plan for project from page 14 of the file '2025-05-16 - Urban Design Brief - D07-12-25-0068'
  • Floor plan for project from page 18 of the file '2025-05-16 - Urban Design Brief - D07-12-25-0068'
  • Floor plan for project from page 18 of the file '2025-05-16 - Urban Design Brief - D07-12-25-0068'
  • Floor plan for project from page 18 of the file '2025-05-16 - Urban Design Brief - D07-12-25-0068'
  • Floor plan for project from page 18 of the file '2025-05-16 - Urban Design Brief - D07-12-25-0068'
  • Construction site plan for project from page 19 of the file '2025-05-16 - Urban Design Brief - D07-12-25-0068'
  • Construction site plan for project from page 21 of the file '2025-05-16 - Urban Design Brief - D07-12-25-0068'
  • Construction site plan for project from page 6 of the file '2025-05-16 - Urban Design Brief - D07-12-25-0068'
  • Construction site plan for project from page 7 of the file '2025-05-16 - Urban Design Brief - D07-12-25-0068'
  • Construction site plan for project from page 7 of the file '2025-05-16 - Urban Design Brief - D07-12-25-0068'
  • Construction site plan for project from page 7 of the file '2025-05-16 - Urban Design Brief - D07-12-25-0068'
  • Construction site plan for project from page 7 of the file '2025-05-16 - Urban Design Brief - D07-12-25-0068'
  • Construction site plan for project from page 8 of the file '2025-05-16 - Urban Design Brief - D07-12-25-0068'
  • Construction site plan for project from page 9 of the file '2025-05-16 - Urban Design Brief - D07-12-25-0068'
  • Construction site plan for project from page 10 of the file '2025-05-16 - Urban Design Brief - D07-12-25-0068'
  • Construction site plan for project from page 11 of the file '2025-05-16 - Urban Design Brief - D07-12-25-0068'
  • Construction site plan for project from page 11 of the file '2025-05-16 - Urban Design Brief - D07-12-25-0068'
  • Construction site plan for project from page 11 of the file '2025-05-16 - Urban Design Brief - D07-12-25-0068'
  • Construction site plan for project from page 14 of the file '2025-05-16 - Urban Design Brief - D07-12-25-0068'
  • Floor plan for project from page 14 of the file '2025-05-16 - Urban Design Brief - D07-12-25-0068'
  • Construction site plan for project from page 14 of the file '2025-05-16 - Urban Design Brief - D07-12-25-0068'
  • Floor plan for project from page 18 of the file '2025-05-16 - Urban Design Brief - D07-12-25-0068'
  • Floor plan for project from page 18 of the file '2025-05-16 - Urban Design Brief - D07-12-25-0068'
  • Floor plan for project from page 18 of the file '2025-05-16 - Urban Design Brief - D07-12-25-0068'
  • Floor plan for project from page 18 of the file '2025-05-16 - Urban Design Brief - D07-12-25-0068'
  • Construction site plan for project from page 19 of the file '2025-05-16 - Urban Design Brief - D07-12-25-0068'
  • Construction site plan for project from page 21 of the file '2025-05-16 - Urban Design Brief - D07-12-25-0068'

Documents #

TypeDocument
Application Summary2025-06-17 - Application Summary - D07-12-25-0068
Architectural Plans2025-05-16 - Site Plan - D07-12-25-0068
Architectural Plans2025-05-16 - Sanitary Drainage Plan - D07-12-25-0068
Architectural Plans2025-05-16 - Preliminary Construction Management Plan - D07-12-25-0068
Architectural Plans2025-05-16 - Plan 4M-1729 - D07-12-25-0068
Architectural Plans2025-05-16 - Notes and Legends Plan - D07-12-25-0068
Architectural Plans2025-05-16 - Elevations - D07-12-25-0068
Architectural Plans2025-09-24 - Site Plan - D07-12-25-0068
Architectural Plans2025-09-24 - Sanitary Drainage Plan - D07-12-25-0068
Architectural Plans2025-09-24 - Preliminary Construction Management Plan - D07-12-25-0068
Architectural Plans2025-09-24 - Parkette Fit Plan - D07-12-25-0068
Architectural Plans2025-11-14 - Site Plan - D07-12-25-0068
Architectural Plans2025-11-14 - Sanitary Drainage Plan - D07-12-25-0068
Architectural Plans2025-11-14 - Notes and Legends Plan - D07-12-25-0068
Architectural Plans2025-11-14 - 24 Unit Block Elevation - D07-12-25-0068
Architectural Plans2025-11-14 - 21 Unit Block Elevation - D07-12-25-0068
Architectural Plans2025-11-14 - 15 Unit Block Elevation - D07-12-25-0068
Design Brief2025-05-16 - Urban Design Brief - D07-12-25-0068
Electrical Plan2025-09-24 - Electrical Specifications - D07-12-25-0068
Erosion And Sediment Control Plan2025-05-16 - Erosion Control Plan and Detail Sheet - D07-12-25-0068
Erosion And Sediment Control Plan2025-09-24 - Erosion Control & Details Sheet - D07-12-25-0068
Erosion And Sediment Control Plan2025-11-14 - Erosion Control Plan and Detail Sheet - D07-12-25-0068
Existing Conditions2025-05-16 - Existing Conditions and Removals Plan - D07-12-25-0068
Existing Conditions2025-11-14 - Existing Conditions and Removals Plan - D07-12-25-0068
Geotechnical Report2025-05-16 - Grading Plan - D07-12-25-0068
Geotechnical Report2025-05-16 - Geotechnical Investigation - D07-12-25-0068
Geotechnical Report2025-09-24 - Grading Plan - D07-12-25-0068
Geotechnical Report2025-09-24 - Geotechnical Investigation - D07-12-25-0068
Geotechnical Report2025-11-14 - Grading Plan - D07-12-25-0068
Landscape Plan2025-05-16 - Landscape Plan and Details - D07-12-25-0068
Landscape Plan2025-09-24 - Landscape Plan - D07-12-25-0068
Landscape Plan2025-11-14 - Landscape Plans - D07-12-25-0068
Noise Study2025-05-16 - Detailed Traffic Noise Study - D07-12-25-0068
Planning2025-05-16 - Zoning Confirmation Report - D07-12-25-0068
Planning2025-05-16 - Planning Rationale - D07-12-25-0068
Planning2025-09-24 - Planning Rationale - D07-12-25-0068
Site Servicing2025-05-16 - Site Servicing Plan - D07-12-25-0068
Site Servicing2025-05-16 - Servicing and SWM Report - D07-12-25-0068
Site Servicing2025-09-24 - Site Servicing Plan - D07-12-25-0068
Site Servicing2025-11-14 - Site Servicing Plan - D07-12-25-0068
Stormwater Management2025-05-16 - Storm Drainage Plan - D07-12-25-0068
Stormwater Management2025-09-24 - Stormwater Management Report - D07-12-25-0068
Stormwater Management2025-09-24 - Storm Drainage Plan - D07-12-25-0068
Stormwater Management2025-11-14 - Storm Drainage Plan - D07-12-25-0068
Transportation Analysis2025-05-16 - Transportation Impact Assessment - D07-12-25-0068
Transportation Analysis2025-09-24 - Transportation Impact Assessment - D07-12-25-0068
2025-05-16 - Update of Phase I ESA - D07-12-25-0068
2025-05-16 - Details Sheet 2 - D07-12-25-0068
2025-05-16 - Details Sheet - D07-12-25-0068
2025-09-24 - Details Sheet 01 - D07-12-25-0068
2025-09-24 - Details Sheet - D07-12-25-0068
2025-11-14 - Details Sheets 2 - D07-12-25-0068
2025-11-14 - Details Sheets 1 - D07-12-25-0068