1309 Carling (D07-12-25-0064)

1309 Carling (D07-12-25-0064) #

Summary #

Application StatusFile Pending
Review StatusApplication File Pending
DescriptionDemolish existing mall, save an exept for the existing Shoppers Drug Mart, approx 30,000 sq ft retail food store proposed
WardWard 16 - Riley Brockington
Date Initiated2025-05-09
Last Updated2025-08-22

Renders #

  • Rendering of building from page 1 of the file '2025-05-13 - Urban Design Concept - D07-12-25-0064'
  • Rendering of building from page 1 of the file '2025-05-13 - Urban Design Concept - D07-12-25-0064'

Site and Floor Plans #

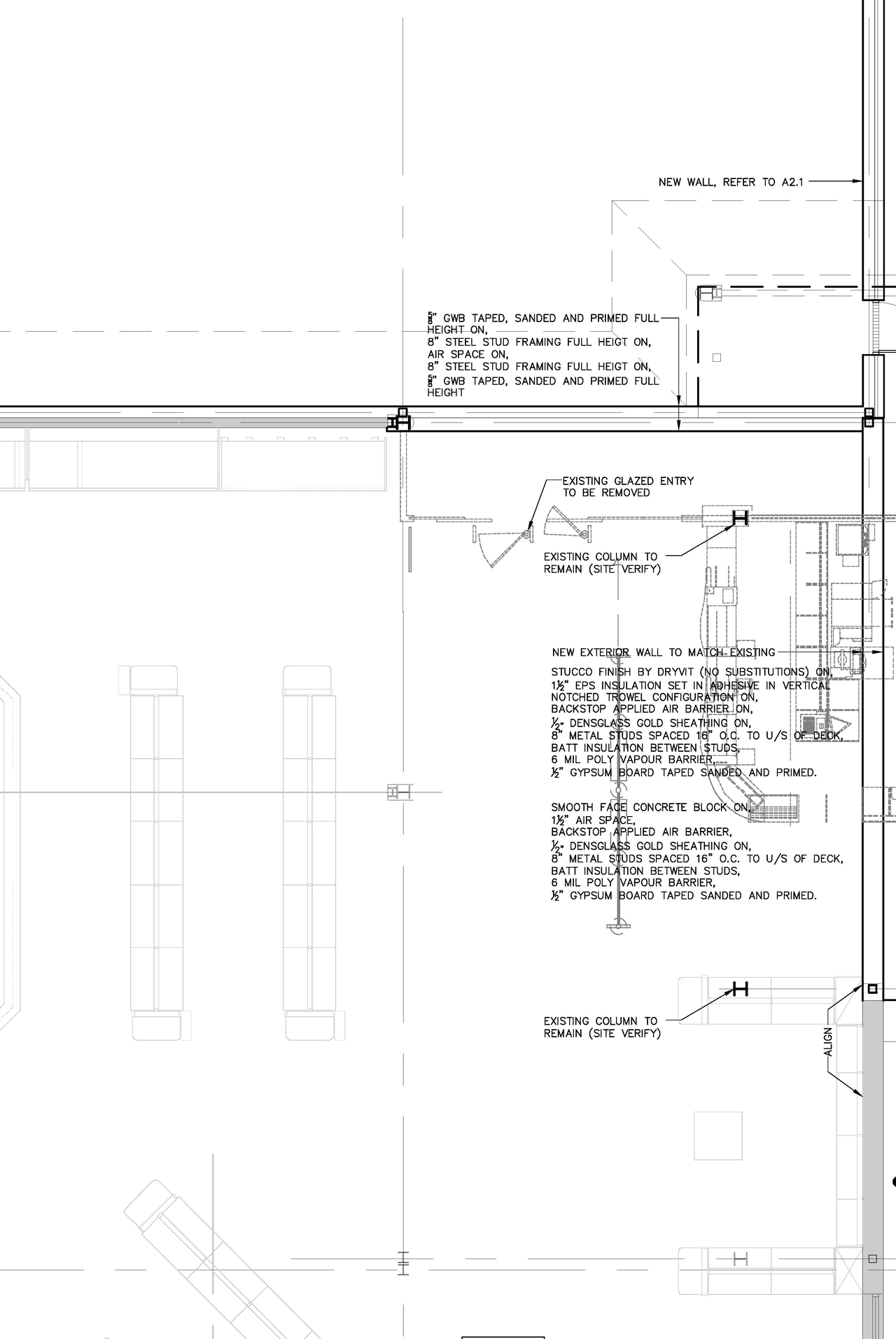
  • Construction site plan for project from page 9 of the file '2025-05-13 - Urban Design Brief - D07-12-25-0064'
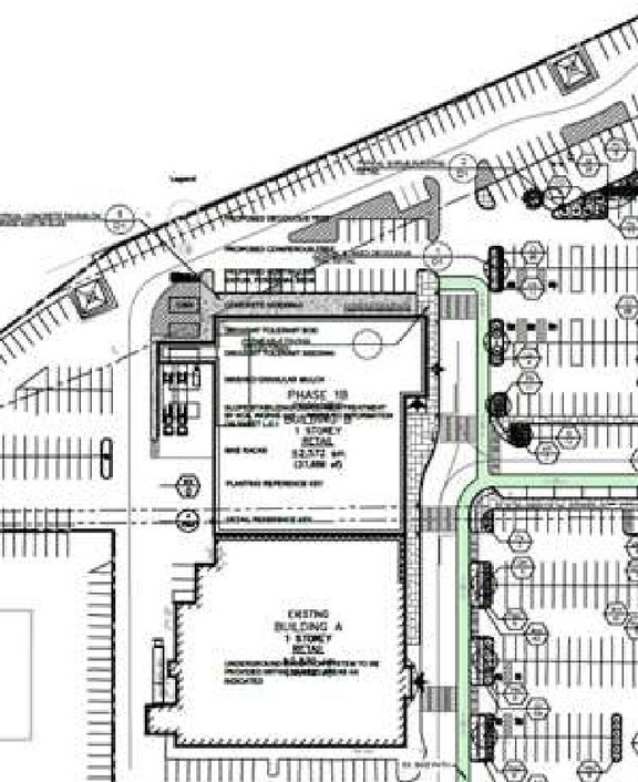
  • Construction site plan for project from page 17 of the file '2025-05-13 - Urban Design Brief - D07-12-25-0064'
  • Construction site plan for project from page 20 of the file '2025-05-13 - Urban Design Brief - D07-12-25-0064'
  • Construction site plan for project from page 21 of the file '2025-05-13 - Urban Design Brief - D07-12-25-0064'
  • Construction site plan for project from page 25 of the file '2025-05-13 - Urban Design Brief - D07-12-25-0064'
  • Construction site plan for project from page 25 of the file '2025-05-13 - Urban Design Brief - D07-12-25-0064'
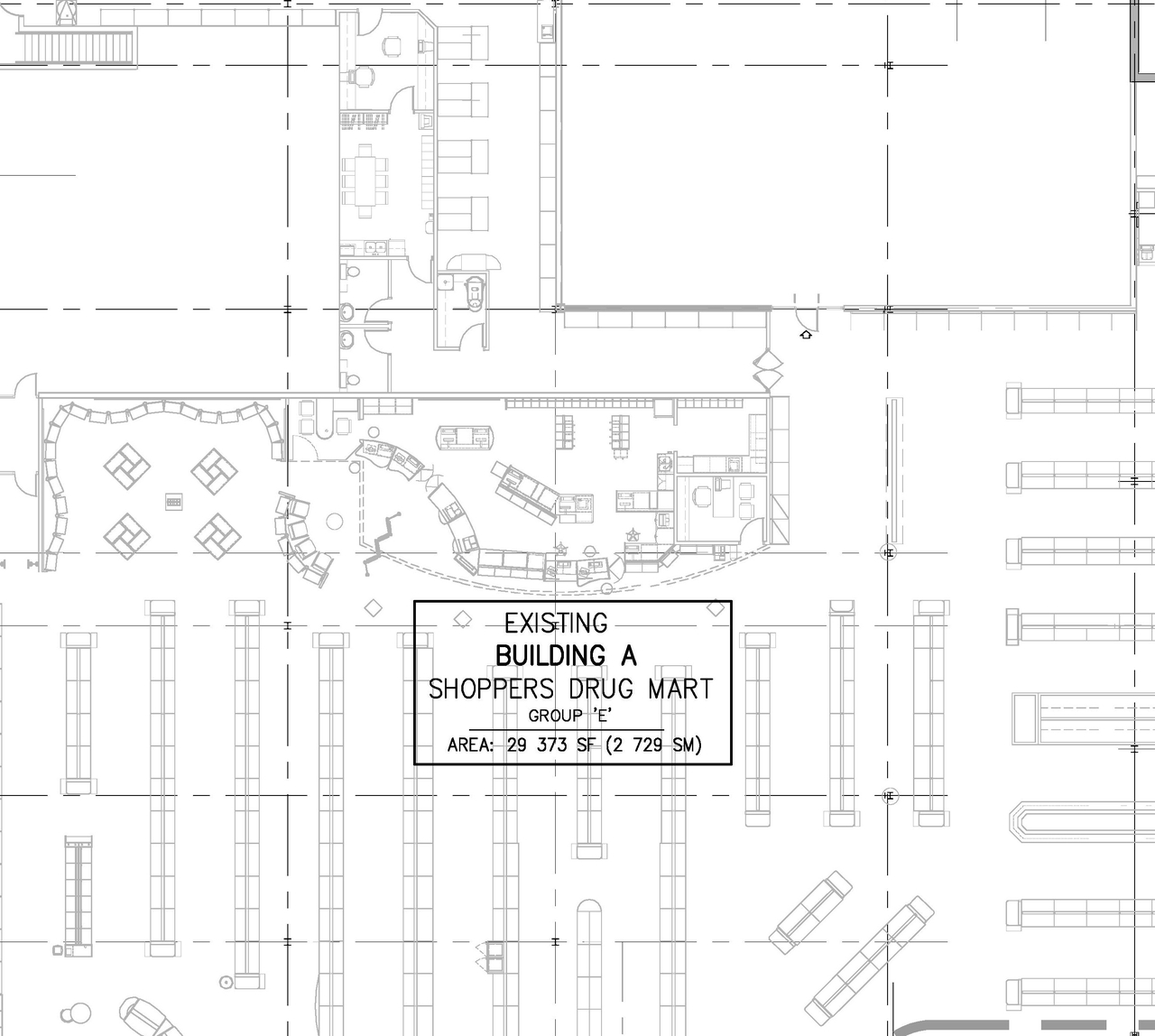
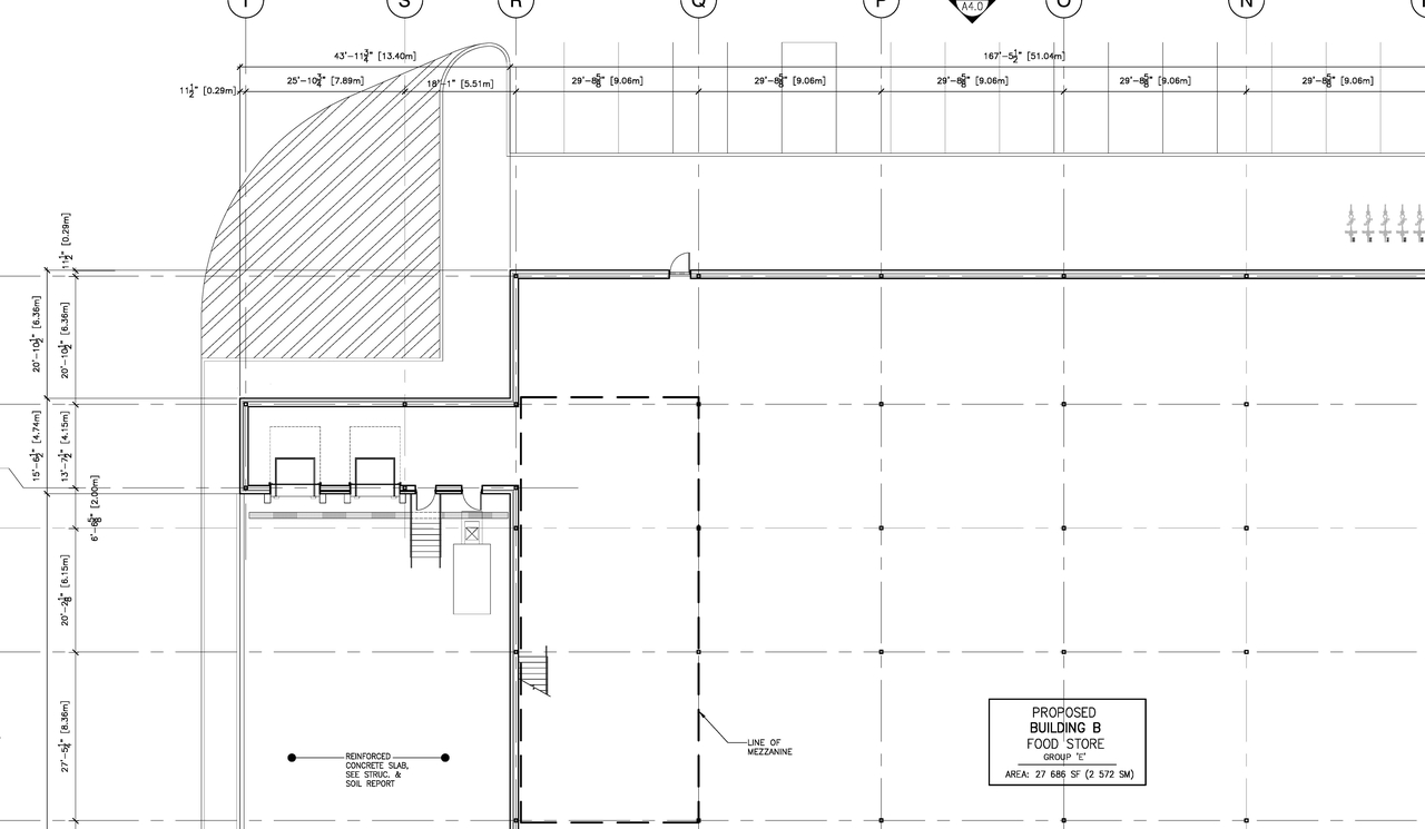
  • Floor plan for project from page 1 of the file '2025-05-13 - Floor Plan - D07-12-25-0064'
  • Construction site plan for project from page 9 of the file '2025-05-13 - Urban Design Brief - D07-12-25-0064'
  • Construction site plan for project from page 17 of the file '2025-05-13 - Urban Design Brief - D07-12-25-0064'
  • Construction site plan for project from page 20 of the file '2025-05-13 - Urban Design Brief - D07-12-25-0064'
  • Construction site plan for project from page 21 of the file '2025-05-13 - Urban Design Brief - D07-12-25-0064'
  • Construction site plan for project from page 25 of the file '2025-05-13 - Urban Design Brief - D07-12-25-0064'
  • Construction site plan for project from page 25 of the file '2025-05-13 - Urban Design Brief - D07-12-25-0064'
  • Floor plan for project from page 1 of the file '2025-05-13 - Floor Plan - D07-12-25-0064'

Files #

TypeNameLinks
Application Summary2025-07-29 - Application Summary - D07-12-25-0064Download PDF
Architectural Plans2025-07-29 - Layout and Planting Plan - D07-12-25-0064Download PDF
Architectural Plans2025-05-13 - Site Plan Photometric - D07-12-25-0064Download PDF
Architectural Plans2025-05-13 - Site Plan PH5 - D07-12-25-0064Download PDF
Architectural Plans2025-05-13 - Site Plan PH4 - D07-12-25-0064Download PDF
Architectural Plans2025-05-13 - Site Plan PH3 - D07-12-25-0064Download PDF
Architectural Plans2025-05-13 - Site Plan PH2 - D07-12-25-0064Download PDF
Architectural Plans2025-05-13 - Site Plan - D07-12-25-0064Download PDF
Architectural Plans2025-05-13 - Roof Plan Details & Schedules - D07-12-25-0064Download PDF
Architectural Plans2025-05-13 - Overall Site Plan - D07-12-25-0064Download PDF
Architectural Plans2025-05-13 - Elevations - D07-12-25-0064Download PDF
Design Brief2025-05-13 - Urban Design Concept - D07-12-25-0064Download PDF
Design Brief2025-05-13 - Urban Design Brief - D07-12-25-0064Download PDF
Drainage Plan2025-05-13 - Drainage Plan - D07-12-25-0064Download PDF
Environmental2025-05-13 - Environmental Site Assessment Phase Two - D07-12-25-0064Download PDF
Environmental2025-05-13 - Environmental Site Assessment Phase One - D07-12-25-0064Download PDF
Erosion And Sediment Control Plan2025-05-13 - Erosion & Sediment Control Plan South - D07-12-25-0064Download PDF
Erosion And Sediment Control Plan2025-05-13 - Erosion & Sediment Control Plan North - D07-12-25-0064Download PDF
Existing Conditions2025-05-13 - Existing Conditions Removals & Abandonment Plan South - D07-12-25-0064Download PDF
Existing Conditions2025-05-13 - Existing Conditions Removals & Abandonment Plan North - D07-12-25-0064Download PDF
Floor Plan2025-05-13 - Partial Floor Plan - D07-12-25-0064Download PDF
Floor Plan2025-05-13 - Floor Plan 1 - D07-12-25-0064Download PDF
Floor Plan2025-05-13 - Floor Plan - D07-12-25-0064Download PDF
Geotechnical Report2025-07-29 - Supplemental Hydrogeological Study - D07-12-25-0064Download PDF
Geotechnical Report2025-07-29 - Geotechnical Report - D07-12-25-0064Download PDF
Geotechnical Report2025-05-13 - Grading Plan West - D07-12-25-0064Download PDF
Geotechnical Report2025-05-13 - Grading Plan South - D07-12-25-0064Download PDF
Geotechnical Report2025-05-13 - Grading Plan North - D07-12-25-0064Download PDF
Planning2025-05-13 - Zoning Confirmation Report - D07-12-25-0064Download PDF
Site Servicing2025-07-29 - Site Servicing and Stormwater Management Report - D07-12-25-0064Download PDF
Site Servicing2025-05-13 - Site Servicing Plan West - D07-12-25-0064Download PDF
Site Servicing2025-05-13 - Site Servicing Plan South - D07-12-25-0064Download PDF
Site Servicing2025-05-13 - Site Servicing Plan North - D07-12-25-0064Download PDF
Surveying2025-05-13 - Topographic Sketch 210 - D07-12-25-0064Download PDF
Surveying2025-05-13 - Topographic Sketch 101 - D07-12-25-0064Download PDF
Surveying2025-05-13 - Topographic Plan C3D(4) - D07-12-25-0064Download PDF
Surveying2025-05-13 - Topographic Plan C3D(3) - D07-12-25-0064Download PDF
Surveying2025-05-13 - Topographic Plan C3D(2) - D07-12-25-0064Download PDF
Surveying2025-05-13 - Topographic Plan C3D(1) - D07-12-25-0064Download PDF
Surveying2025-05-13 - Plan of Survey 4R-32901 - D07-12-25-0064Download PDF
Surveying2025-05-13 - Plan of Survey 4R-32449 - D07-12-25-0064Download PDF
Surveying2025-05-13 - Plan of Survey 4R 32392 - D07-12-25-0064Download PDF
Tree Information and Conservation2025-07-29 - Tree Inventory 02 - D07-12-25-0064Download PDF
Tree Information and Conservation2025-07-29 - Tree Inventory 01 - D07-12-25-0064Download PDF
Tree Information and Conservation2025-07-29 - Arborist Report - D07-12-25-0064Download PDF
2025-05-13 - Typical Details 1 - D07-12-25-0064Download PDF
2025-05-13 - Typical Details - D07-12-25-0064Download PDF
2025-05-13 - Truck Route - D07-12-25-0064Download PDF
2025-05-13 - Notes - D07-12-25-0064Download PDF
2025-05-13 - Construction Management - D07-12-25-0064Download PDF