240 Presland Rd. (D07-12-25-0057)#
Summary#
| Application Status | File Pending |
| Review Status | Application File Pending |
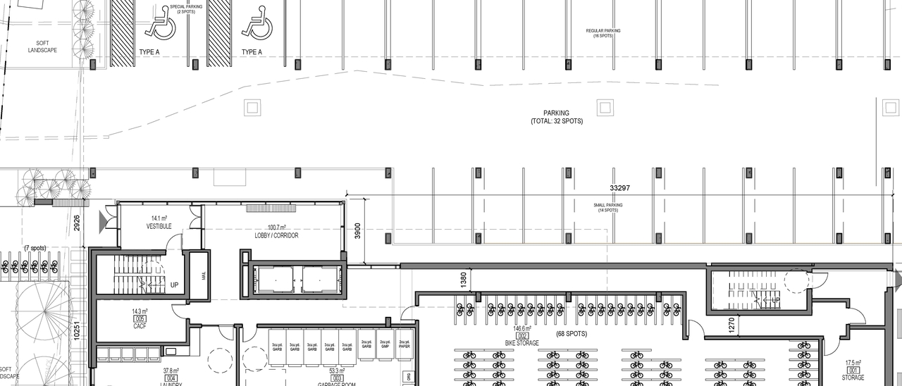
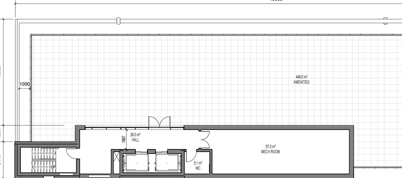
| Description | Six-storey affordable rental apartment building with 62 units, 32 parking spaces, 75 bicycle parking spaces, two rooftop amenity areas, and a landscaped rear yard amenity area. |
| Ward | Ward 13 - Rawlson King |
| Date Initiated | 2025-04-29 |
| Last Updated | 2025-12-24 |
Location#
Select a marker to view the address.
Site Plans, Elevations and Floor Plans#
Documents#
Related Projects#
| Project | Last Updated | Date Initiated |
|---|---|---|
240 Presland Rd.
D01-01-25-0011 | 2025-08-22 | 2025-04-29 |
240 Presland Rd.
D02-02-25-0027 | 2025-08-22 | 2025-04-29 |






