2104 Roger Stevens (D07-12-25-0049)

2104 Roger Stevens (D07-12-25-0049) #

Summary #

Application StatusPost Approval
Review StatusRequest for Agreement Received
DescriptionThe proposed development consists of three phases; construction of a temporary temple servicing infrastructure and parking, demolish the existing temple, construct a new temple, and convert the temporary temple into a priest residence. The development will contain sixty-one parking spaces total (60 place of worship, 1- residence) and three bike parking spaces. The site will maintain the two site accesses. The rear portion of the site is within the floodplain overlay and does not feature any development. The site will be on private well and septic.
WardWard 21 - David Brown
Date Initiated2025-04-17
Last Updated2025-12-02

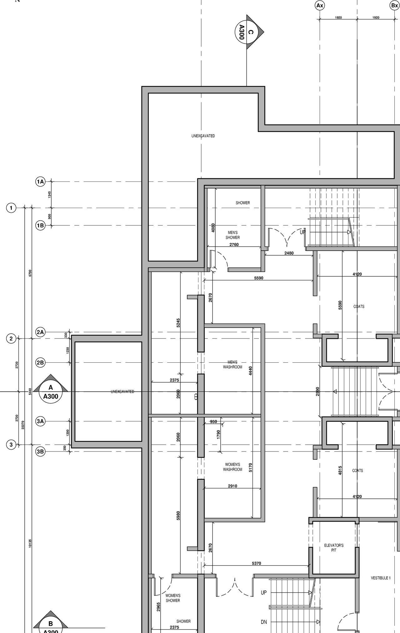
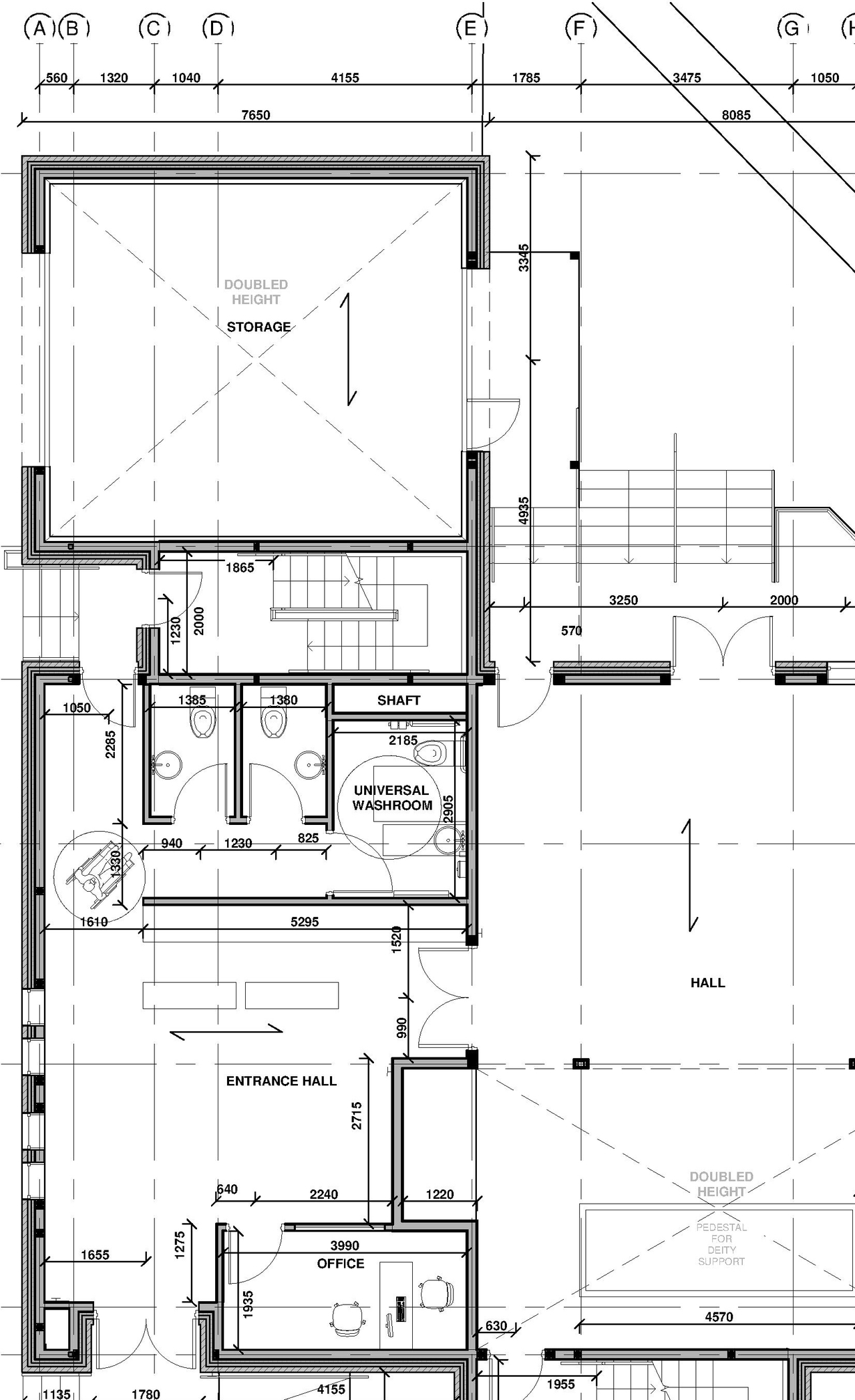
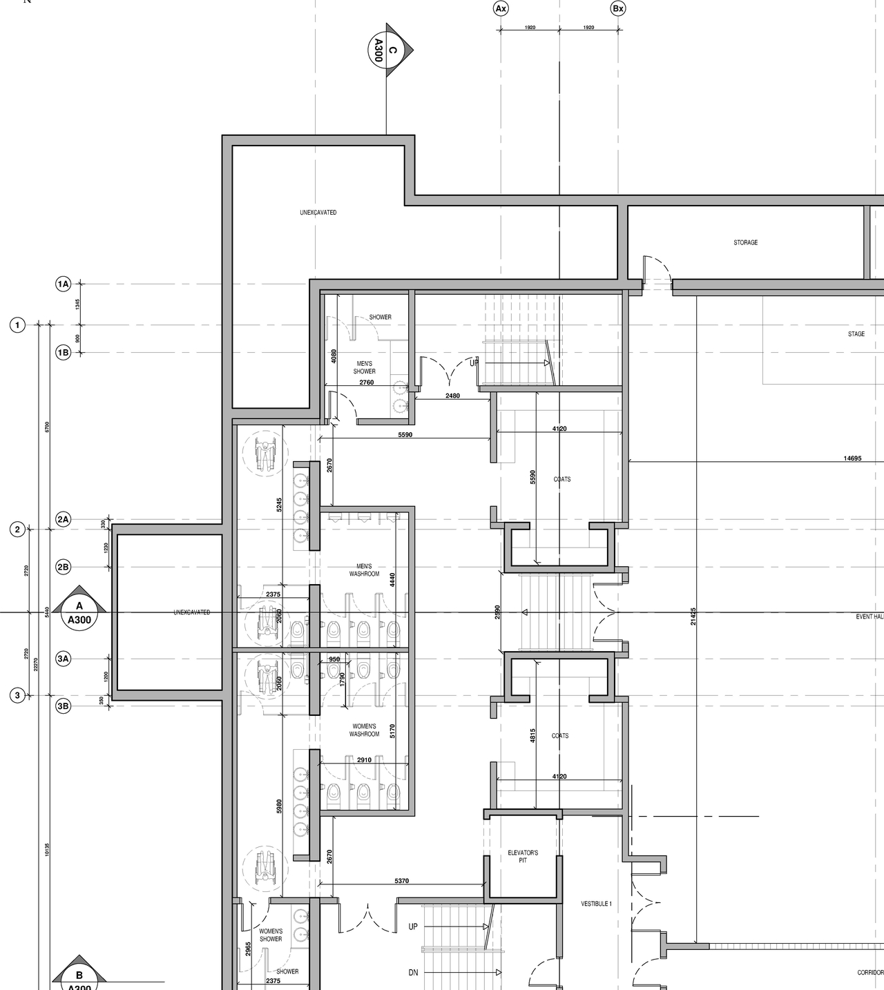
Site and Floor Plans #

  • Floor plan for project from page 1 of the file '2025-08-01 - Proposed Temple Basement Floor Plan - D07-12-25-0049'
  • Floor plan for project from page 1 of the file '2025-06-20 - Floor Plans A100-A103 - D07-12-25-0049'
  • Floor plan for project from page 2 of the file '2025-06-20 - Floor Plans A100-A103 - D07-12-25-0049'
  • Floor plan for project from page 3 of the file '2025-06-20 - Floor Plans A100-A103 - D07-12-25-0049'
  • Floor plan for project from page 1 of the file '2025-08-01 - Proposed Temple Basement Floor Plan - D07-12-25-0049'
  • Floor plan for project from page 1 of the file '2025-06-20 - Floor Plans A100-A103 - D07-12-25-0049'
  • Floor plan for project from page 2 of the file '2025-06-20 - Floor Plans A100-A103 - D07-12-25-0049'
  • Floor plan for project from page 3 of the file '2025-06-20 - Floor Plans A100-A103 - D07-12-25-0049'

Documents #

TypeDocument
Application Summary2025-08-25 - Application Summary - D07-12-25-0049
Archaelogical Assessment2025-08-01 - Stage 1 & 2 Archeological Assessment - D07-12-25-0049
Archaelogical Assessment2025-08-01 - Archaeological Report - D07-12-25-0049
Archaelogical Assessment2025-04-17 - Stage 1 and 2 Archaeological Assessment - D07-12-25-0049
Archaelogical Assessment2025-04-17 - archaeological assessment - D07-12-25-0049
Architectural Plans2025-08-01 - Site Plan Details - D07-12-25-0049
Architectural Plans2025-08-01 - Site Plan - D07-12-25-0049
Architectural Plans2025-08-01 - Proposed Residence Elevations SP04 - D07-12-25-0049
Architectural Plans2025-08-01 - Proposed Residence Elevations SP03 - D07-12-25-0049
Architectural Plans2025-08-01 - Overrall Site Plan & Post Development Drainage Plan - D07-12-25-0049
Architectural Plans2025-08-01 - Notes & Details - D07-12-25-0049
Architectural Plans2025-06-20 - Site Plans SP01-SP05 - D07-12-25-0049
Architectural Plans2025-04-17 - Site Plan and Post Development Drainage Plan - D07-12-25-0049
Architectural Plans2025-04-17 - Site Plan - D07-12-25-0049
Architectural Plans2025-04-17 - Notes and Details Plan - D07-12-25-0049
Architectural Plans2025-04-17 - Elevation Plan Priest Residence - D07-12-25-0049
Architectural Plans2025-04-17 - Details Plan - D07-12-25-0049
Architectural Plans2025-04-17 - Details Plan - D07-12-25-0049
Architectural Plans2024-04-17 - Site Plan Details - D07-12-25-0049
Architectural Plans2024-04-17 - Elevations Plan Temple - D07-12-25-0049
Architectural Plans2025-10-29 - Site Plan Details - D07-12-25-0049
Architectural Plans2025-10-29 - Site Plan - D07-12-25-0049
Architectural Plans2025-10-29 - Proposed Temple Elevations - D07-12-25-0049
Architectural Plans2025-10-29 - Proposed Residence Elevations - D07-12-25-0049
Architectural Plans2025-11-12- Notes & Details - D07-12-25-0049
Architectural Plans2025-11-25 - Signed Site Plan Approval Report - D07-12-25-0049
Architectural Plans2025-11-25 - Approved Site Plan Details - D07-12-25-0049
Architectural Plans2025-11-25 - Approved Site Plan - D07-12-25-0049
Architectural Plans2025-11-25 - Approved Proposed Temple Elevations - D07-12-25-0049
Architectural Plans2025-11-25 - Approved Proposed Residence Elevations - D07-12-25-0049
Architectural Plans2025-11-25 - Approved Overall Site Plan & Post Development Drainage Plan - D07-12-25-0049
Architectural Plans2025-11-25 - Approved Notes & Details C-5 - D07-12-25-0049
Civil Engineering Report2025-06-20 - Civil Plans C-1 to C-7 - D07-12-25-0049
Environmental2025-08-01 - Environmental Noise Control Study - D07-12-25-0049
Environmental2025-04-17 - Environmental Noise Control Study - D07-12-25-0049
Erosion And Sediment Control Plan2025-08-01 - Erosion & Sediment Control Plan - D07-12-25-0049
Erosion And Sediment Control Plan2025-04-17 - Erosion and Sediment Control Plan - D07-12-25-0049
Erosion And Sediment Control Plan2025-11-25 - Approved Erosion & Sediment Control Plan - D07-12-25-0049
Floor Plan2025-08-01 - Proposed Temple Basement Main Floor Plan - D07-12-25-0049
Floor Plan2025-08-01 - Proposed Temple Basement Floor Plan - D07-12-25-0049
Floor Plan2025-08-01 - Proposed Residence Floor Plans - D07-12-25-0049
Floor Plan2025-06-20 - Floor Plans A100-A103 - D07-12-25-0049
Geotechnical Report2025-08-01 - Hydrogeological Assessment and Terrain Analysis Report - D07-12-25-0049
Geotechnical Report2025-08-01 - Grading Plan - D07-12-25-0049
Geotechnical Report2025-08-01 - Geotechnical Investigation - D07-12-25-0049
Geotechnical Report2025-06-20 - Hydrogeological Assessment and Terrain Analysis Report - D07-12-25-0049
Geotechnical Report2025-04-17 - Hydrogeological Assessment and Terrain Analysis Report - D07-12-25-0049
Geotechnical Report2025-04-17 - Grading Plan - D07-12-25-0049
Geotechnical Report2025-04-17 - Geotechnical Investigation - D07-12-25-0049
Geotechnical Report2025-11-25 - Approved Grading Plan - D07-12-25-0049
Landscape Plan2025-08-01 - Landscape Plan - D07-12-25-0049
Landscape Plan2025-06-20 - Landscape Plan - D07-12-25-0049
Landscape Plan2025-04-17 - Landscape Plan - D07-12-25-0049
Landscape Plan2025-10-29 - Landscape Plan - D07-12-25-0049
Landscape Plan2025-11-25 - Approved Landscape Plan - D07-12-25-0049
Planning2025-08-01 - Zoning Confirmation Report - D07-12-25-0049
Planning2025-06-20 - Zoning Confirmation Report - D07-12-25-0049
Planning2024-04-17 - Zoning Confirmation Report - D07-12-25-0049
Shadow Study2025-08-01 - Fire Geometric Assessment - D07-12-25-0049
Site Servicing2025-08-01 - Site Servicing Study, Stormwater Management Report - D07-12-25-0049
Site Servicing2025-08-01 - Site Servicing Plan - D07-12-25-0049
Site Servicing2025-06-20 - Site Servicing & SWM Report - D07-12-25-0049
Site Servicing2025-04-17 - Site Servicing Study and Stormwater Management Report - D07-12-25-0049
Site Servicing2025-04-17 - Site Servicing Plan - D07-12-25-0049
Site Servicing2025-11-25 - Approved Site Servicing Plan - D07-12-25-0049
Surveying2025-08-01 - Topographic Sketch - D07-12-25-0049
Surveying2025-08-01 - Plan Of Survey - D07-12-25-0049
Surveying2025-04-17 - Topographic Sketch - D07-12-25-0049
Surveying2024-04-17 - Plan Of Survey - D07-12-25-0049
Transportation Analysis2025-08-01 - Traffic Brief - D07-12-25-0049
Transportation Analysis2025-06-20 - Transportation Brief - D07-12-25-0049
Transportation Analysis2025-04-17 - Transportation Brief - D07-12-25-0049
Tree Information and Conservation2025-08-01 - Tree Conservation Report - D07-12-25-0049
Tree Information and Conservation2025-06-20 - Tree Conservation Report V4 - D07-12-25-0049
Tree Information and Conservation2025-04-17 - Tree Conservation Report - D07-12-25-0049
2025-08-01 - Sign and Molok Bin Design - D07-12-25-0049
2025-08-01 - Septic System - D07-12-25-0049
2025-08-01 - Retaining Wall Design - D07-12-25-0049
2025-08-01 - Details - D07-12-25-0049
2025-06-20 - Retaining Wall Design SS1 Rev 2 - D07-12-25-0049
2025-06-20 - AutoTURN Analysis - D07-12-25-0049
2025-04-17 - Septic System - D07-12-25-0049
2025-04-17 - Retaining Wall Design - D07-12-25-0049
2025-04-17 - AutoTURN Analysis - D07-12-25-0049
2025-10-29 - Water Budget Assessment - D07-12-25-0049
2025-10-29 - Sign and Molok Bin Design - D07-12-25-0049
2025-11-25 - Approved Sign and Molok Design - D07-12-25-0049
2025-11-25 - Approved Septic System - D07-12-25-0049
2025-11-25 - Approved Retaining Wall Design - D07-12-25-0049
2025-11-25 - Approved Details C-6 - D07-12-25-0049