6600 Carriere, Rue (D07-12-25-0040)

6600 Carriere, Rue (D07-12-25-0040) #

Summary #

Application StatusPost Approval
Review StatusRequest for Agreement Received
DescriptionA Site Plan Control application to construct a new three-storey community centre and recreational/athletic facility, 2,971 square metres in gross floor area (GFA).
WardWard 2 - Laura Dudas
Date Initiated2025-03-28
Last Updated2025-08-20

Renders #

  • Rendering of building from page 6 of the file '2025-03-28 - Design Brief - D07-12-25-0040'
  • Rendering of building from page 5 of the file '2025-03-28 - Design Brief - D07-12-25-0040'
  • Rendering of building from page 13 of the file '2025-03-28 - Design Brief - D07-12-25-0040'
  • Rendering of building from page 16 of the file '2025-03-28 - Design Brief - D07-12-25-0040'
  • Rendering of building from page 34 of the file '2025-03-28 - Design Brief - D07-12-25-0040'
  • Rendering of building from page 6 of the file '2025-03-28 - Design Brief - D07-12-25-0040'
  • Rendering of building from page 15 of the file '2025-03-28 - Design Brief - D07-12-25-0040'
  • Rendering of building from page 5 of the file '2025-03-28 - Design Brief - D07-12-25-0040'
  • Rendering of building from page 26 of the file '2025-03-28 - Design Brief - D07-12-25-0040'
  • Rendering of building from page 10 of the file '2025-03-28 - Design Brief - D07-12-25-0040'
  • Rendering of building from page 18 of the file '2025-03-28 - Design Brief - D07-12-25-0040'
  • Rendering of building from page 30 of the file '2025-03-28 - Design Brief - D07-12-25-0040'
  • Rendering of building from page 30 of the file '2025-03-28 - Design Brief - D07-12-25-0040'
  • Rendering of building from page 4 of the file '2025-03-28 - Design Brief - D07-12-25-0040'
  • Rendering of building from page 11 of the file '2025-03-28 - Design Brief - D07-12-25-0040'
  • Rendering of building from page 21 of the file '2025-03-28 - Design Brief - D07-12-25-0040'
  • Rendering of building from page 6 of the file '2025-03-28 - Design Brief - D07-12-25-0040'
  • Rendering of building from page 5 of the file '2025-03-28 - Design Brief - D07-12-25-0040'
  • Rendering of building from page 13 of the file '2025-03-28 - Design Brief - D07-12-25-0040'
  • Rendering of building from page 16 of the file '2025-03-28 - Design Brief - D07-12-25-0040'
  • Rendering of building from page 34 of the file '2025-03-28 - Design Brief - D07-12-25-0040'
  • Rendering of building from page 6 of the file '2025-03-28 - Design Brief - D07-12-25-0040'
  • Rendering of building from page 15 of the file '2025-03-28 - Design Brief - D07-12-25-0040'
  • Rendering of building from page 5 of the file '2025-03-28 - Design Brief - D07-12-25-0040'
  • Rendering of building from page 26 of the file '2025-03-28 - Design Brief - D07-12-25-0040'
  • Rendering of building from page 10 of the file '2025-03-28 - Design Brief - D07-12-25-0040'
  • Rendering of building from page 18 of the file '2025-03-28 - Design Brief - D07-12-25-0040'
  • Rendering of building from page 30 of the file '2025-03-28 - Design Brief - D07-12-25-0040'
  • Rendering of building from page 30 of the file '2025-03-28 - Design Brief - D07-12-25-0040'
  • Rendering of building from page 4 of the file '2025-03-28 - Design Brief - D07-12-25-0040'
  • Rendering of building from page 11 of the file '2025-03-28 - Design Brief - D07-12-25-0040'
  • Rendering of building from page 21 of the file '2025-03-28 - Design Brief - D07-12-25-0040'

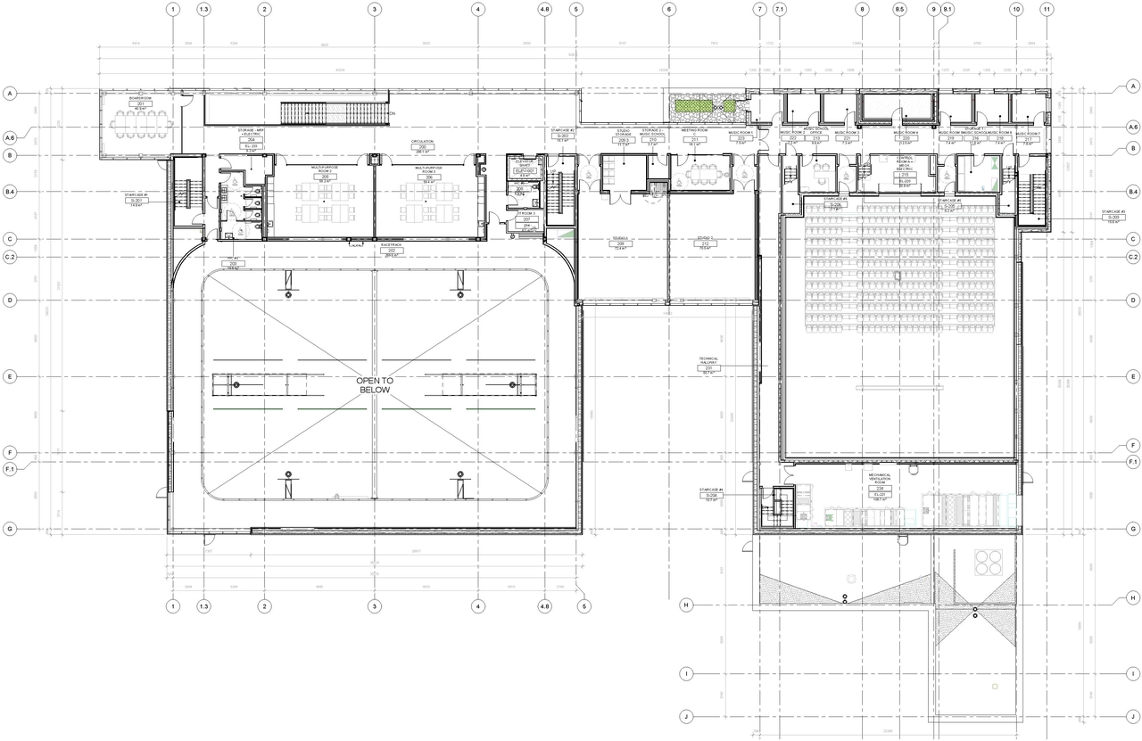
Site and Floor Plans #

  • Construction site plan for project from page 4 of the file '2025-03-28 - Design Brief - D07-12-25-0040'
  • Construction site plan for project from page 7 of the file '2025-03-28 - Design Brief - D07-12-25-0040'
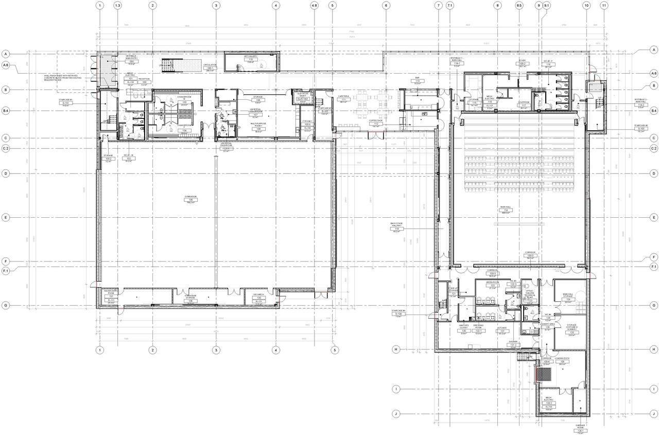
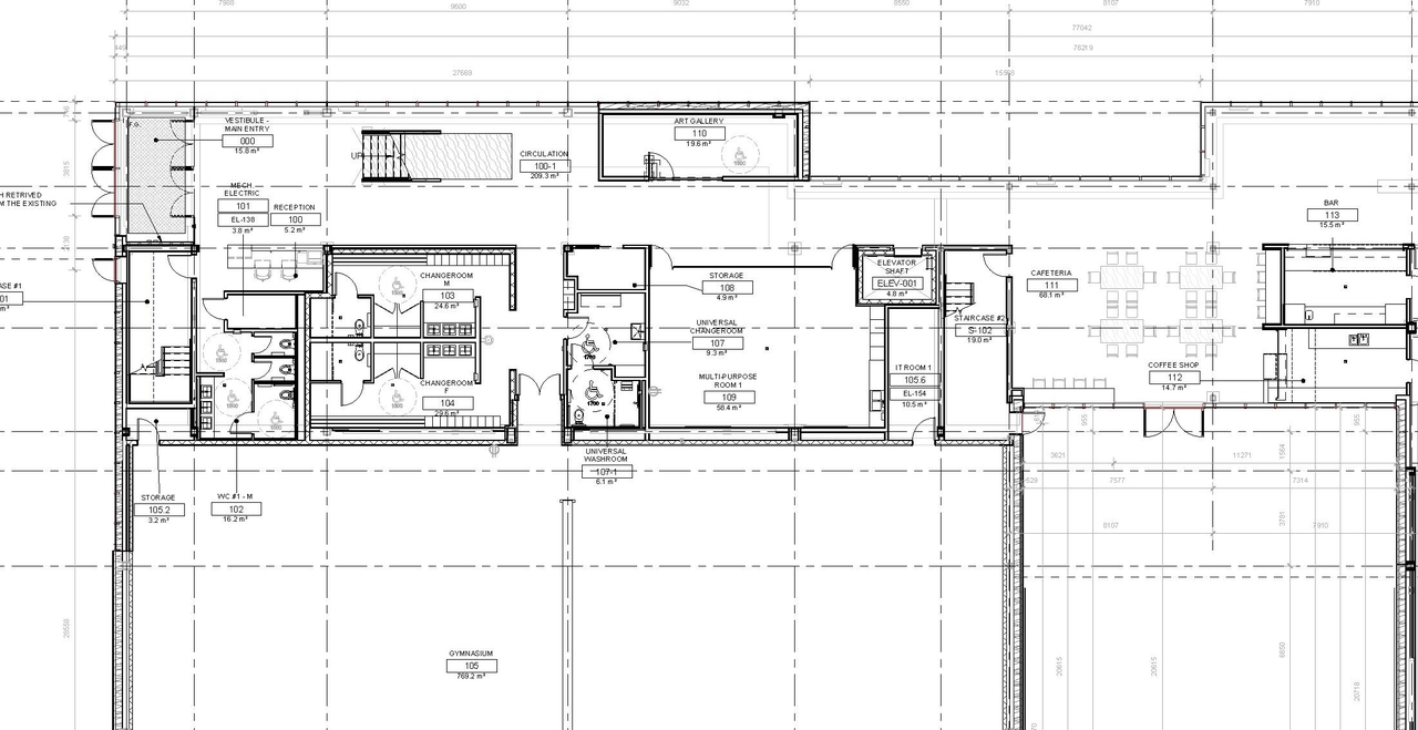
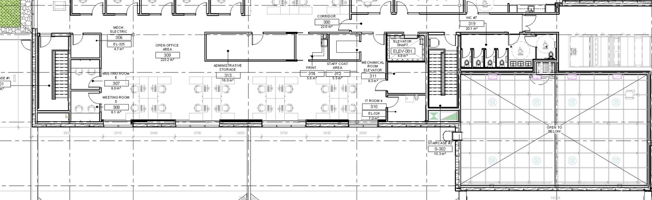
  • Floor plan for project from page 22 of the file '2025-03-28 - Design Brief - D07-12-25-0040'
  • Floor plan for project from page 23 of the file '2025-03-28 - Design Brief - D07-12-25-0040'
  • Construction site plan for project from page 25 of the file '2025-03-28 - Design Brief - D07-12-25-0040'
  • Floor plan for project from page 32 of the file '2025-03-28 - Design Brief - D07-12-25-0040'
  • Construction site plan for project from page 4 of the file '2025-03-28 - Design Brief - D07-12-25-0040'
  • Construction site plan for project from page 7 of the file '2025-03-28 - Design Brief - D07-12-25-0040'
  • Floor plan for project from page 22 of the file '2025-03-28 - Design Brief - D07-12-25-0040'
  • Floor plan for project from page 23 of the file '2025-03-28 - Design Brief - D07-12-25-0040'
  • Construction site plan for project from page 25 of the file '2025-03-28 - Design Brief - D07-12-25-0040'
  • Floor plan for project from page 32 of the file '2025-03-28 - Design Brief - D07-12-25-0040'

Files #

TypeNameLinks
Application Summary2025-06-27 - Application Summary - D07-12-25-0040Download PDF
Architectural Plans2025-06-27 - Site Plan - D07-12-25-0040Download PDF
Architectural Plans2025-06-27 - Architectural Package - D07-12-25-0040Download PDF
Architectural Plans2025-03-28 - Preliminary Construction Management Plan - D07-12-25-0040Download PDF
Architectural Plans2025-07-29 - Site Plan - D07-12-25-0040Download PDF
Architectural Plans2025-07-29 - Elevation North and West - D07-12-25-0040Download PDF
Architectural Plans2025-07-29 - Demolition Plan - D07-12-25-0040Download PDF
Architectural Plans2025-08-12 - Site Plan - D07-12-25-0040Download PDF
Architectural Plans2025-08-14 - APPROVED South and East Elevations - D07-12-25-0040Download PDF
Architectural Plans2025-08-14 - APPROVED Site Plan Approval Report - D07-12-25-0040Download PDF
Architectural Plans2025-08-14 - APPROVED Site Plan - D07-12-25-0040Download PDF
Architectural Plans2025-08-14 - APPROVED North and West Elevations - D07-12-25-0040Download PDF
Architectural Plans2025-08-14 - APPROVED General Notes and Details C4 - D07-12-25-0040Download PDF
Architectural Plans2025-08-14 - APPROVED General Notes and Details - D07-12-25-0040Download PDF
Architectural Plans2025-08-14 - APPROVED Curtain Wall Elevations - D07-12-25-0040Download PDF
Civil Engineering Report2025-06-04 - Civil Plans - D07-12-25-0040Download PDF
Civil Engineering Report2025-07-29 - Civil Plans - D07-12-25-0040Download PDF
Civil Engineering Report2025-08-11 - Civil Plans - D07-12-25-0040Download PDF
Design Brief2025-03-28 - Design Brief - D07-12-25-0040Download PDF
Environmental2025-08-14 - APPROVED Phase I Environmental Site Assessment Update - D07-12-25-0040Download PDF
Environmental2025-08-14 - APPROVED Phase I Environmental Site Assessment - D07-12-25-0040Download PDF
Geotechnical Report2025-06-04 - Grading & Servicing Plan Review - D07-12-25-0040Download PDF
Geotechnical Report2025-06-04 - Geotechnical Investigation - D07-12-25-0040Download PDF
Geotechnical Report2025-08-14 - APPROVED Grading & Servicing Plan Review - D07-12-25-0040Download PDF
Geotechnical Report2025-08-14 - APPROVED Geotechnical Investigation - D07-12-25-0040Download PDF
Landscape Plan2025-06-04 - Landscape Drawings - D07-12-25-0040Download PDF
Landscape Plan2025-07-29 - Landscape Plans - D07-12-25-0040Download PDF
Landscape Plan2025-08-11 - Landscape Plans - D07-12-25-0040Download PDF
Landscape Plan2025-08-14 - APPROVED Landscape Plans Technical Details - D07-12-25-0040Download PDF
Landscape Plan2025-08-14 - APPROVED Landscape Plan P103 - D07-12-25-0040Download PDF
Landscape Plan2025-08-14 - APPROVED Landscape Plan P102 - D07-12-25-0040Download PDF
Landscape Plan2025-08-14 - APPROVED Landscape Plan P101 - D07-12-25-0040Download PDF
Noise Study2025-06-04 - Stationary Noise Assessment - D07-12-25-0040Download PDF
Noise Study2025-03-28 - Traffic Noise Final - D07-12-25-0040Download PDF
Noise Study2025-07-29 - Stationary Noise Assessment - D07-12-25-0040Download PDF
Noise Study2025-08-11 - Stationary Noise Study - D07-12-25-0040Download PDF
Noise Study2025-08-14 - APPROVED Traffic Noise Final - D07-12-25-0040Download PDF
Noise Study2025-08-14 - APPROVED Stationary Noise Study - D07-12-25-0040Download PDF
Planning2025-06-27 - Zoning Confirmation Report -D07-12-25-0040Download PDF
Planning2025-08-11 - Zoning Confirmation Report - D07-12-25-0040Download PDF
Shadow Study2025-06-26 - Fire Hydrant Coverage Area - D07-12-25-0040Download PDF
Site Servicing2025-06-04 - Site Servicing & SWM Report - D07-12-25-0040Download PDF
Site Servicing2025-08-14 - APPROVED Site Servicing Plan - D07-12-25-0040Download PDF
Site Servicing2025-08-14 - APPROVED Site Servicing & SWM Report - D07-12-25-0040Download PDF
Surveying2025-03-28 - Survey - D07-12-25-0040Download PDF
Transportation Analysis2025-03-28 - Transportation Impact Assessment - D07-12-25-0040Download PDF
Transportation Analysis2025-07-29 - Revised TIA - D07-12-25-0040Download PDF
Transportation Analysis2025-08-14 - APPROVED Transportation Impact Assessment - D07-12-25-0040Download PDF
Tree Information and Conservation2025-06-04 - Tree Conservation Report - D07-12-25-0040Download PDF
Tree Information and Conservation2025-08-14 - APPROVED Tree Conservation Report - D07-12-25-0040Download PDF
2025-06-26 - Pre Development Drainage Areas - D07-12-25-0040Download PDF
2025-06-26 - Post Development Drainage Areas - D07-12-25-0040Download PDF
2025-06-04 - Construction Site Mobilization - D07-12-25-0040Download PDF
2025-06-04 - Area Calculations - D07-12-25-0040Download PDF
2025-03-28 - Phase I - Environmental Site Assessment Update - D07-12-25-0040Download PDF
2025-03-28 - Phase I - Environmental Site Assessment - D07-12-25-0040Download PDF
2025-03-28 - Parking Study - D07-12-25-0040Download PDF
2025-08-14 - APPROVED Site Grading and Drainage, Erosion and Sediment Control - D07-12-25-0040Download PDF
2025-08-14 - APPROVED Garbage Enclosure - D07-12-25-0040Download PDF