1146 Snow St. (D07-12-25-0028) #
Summary #
| Application Status | File Pending |
| Review Status | Application File Pending |
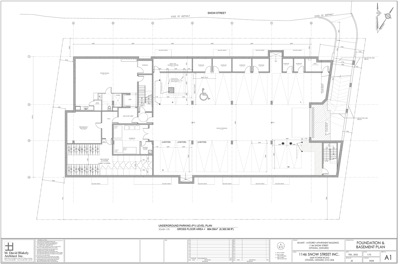
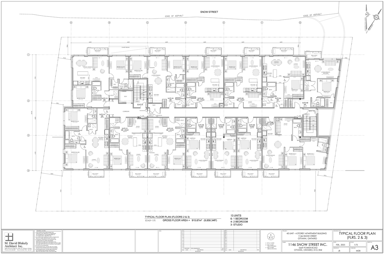
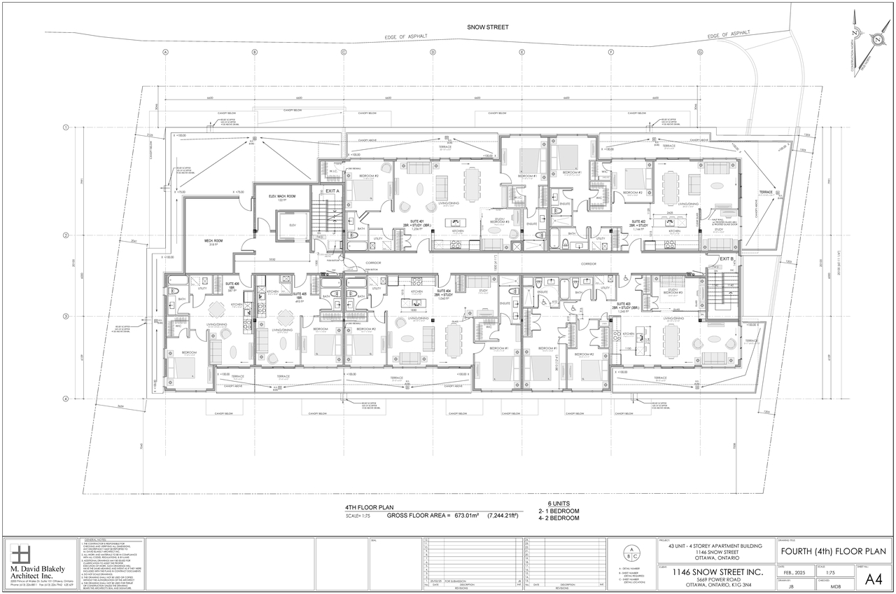
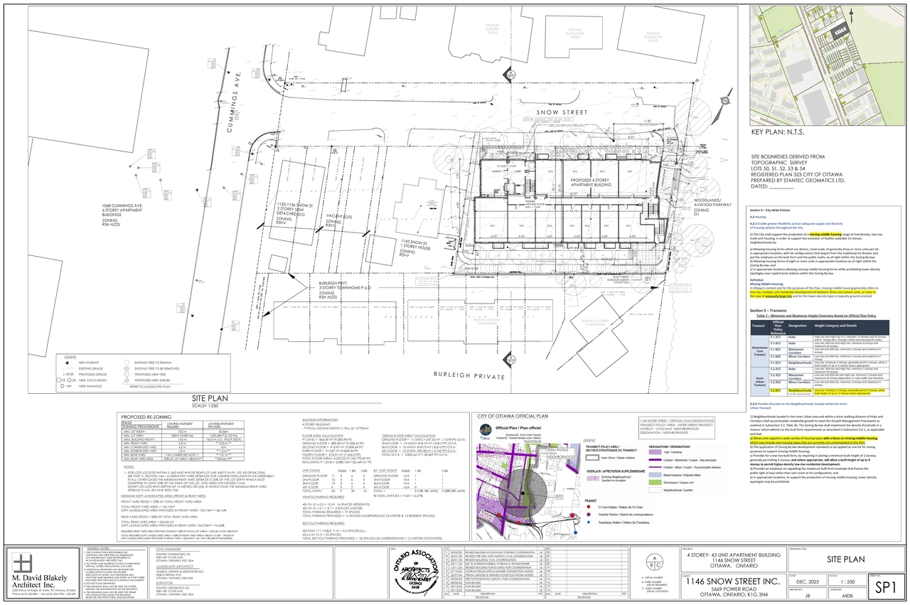
| Description | A Site Plan Control application to construct a four-storey, low rise apartment building. A total of 43 units and 19 underground vehicle parking spaces are proposed with 26 bicycle parking spaces. |
| Ward | Ward 11 - Tim Tierney |
| Date Initiated | 2025-03-07 |
| Last Updated | 2025-10-24 |
Renders #
Location #
Select a marker to view the address.










