5580 Manotick Main St. (D07-12-25-0022)

5580 Manotick Main St. (D07-12-25-0022) #

Summary #

Application StatusActive
Review StatusOn Circulation; Initial Submission Review
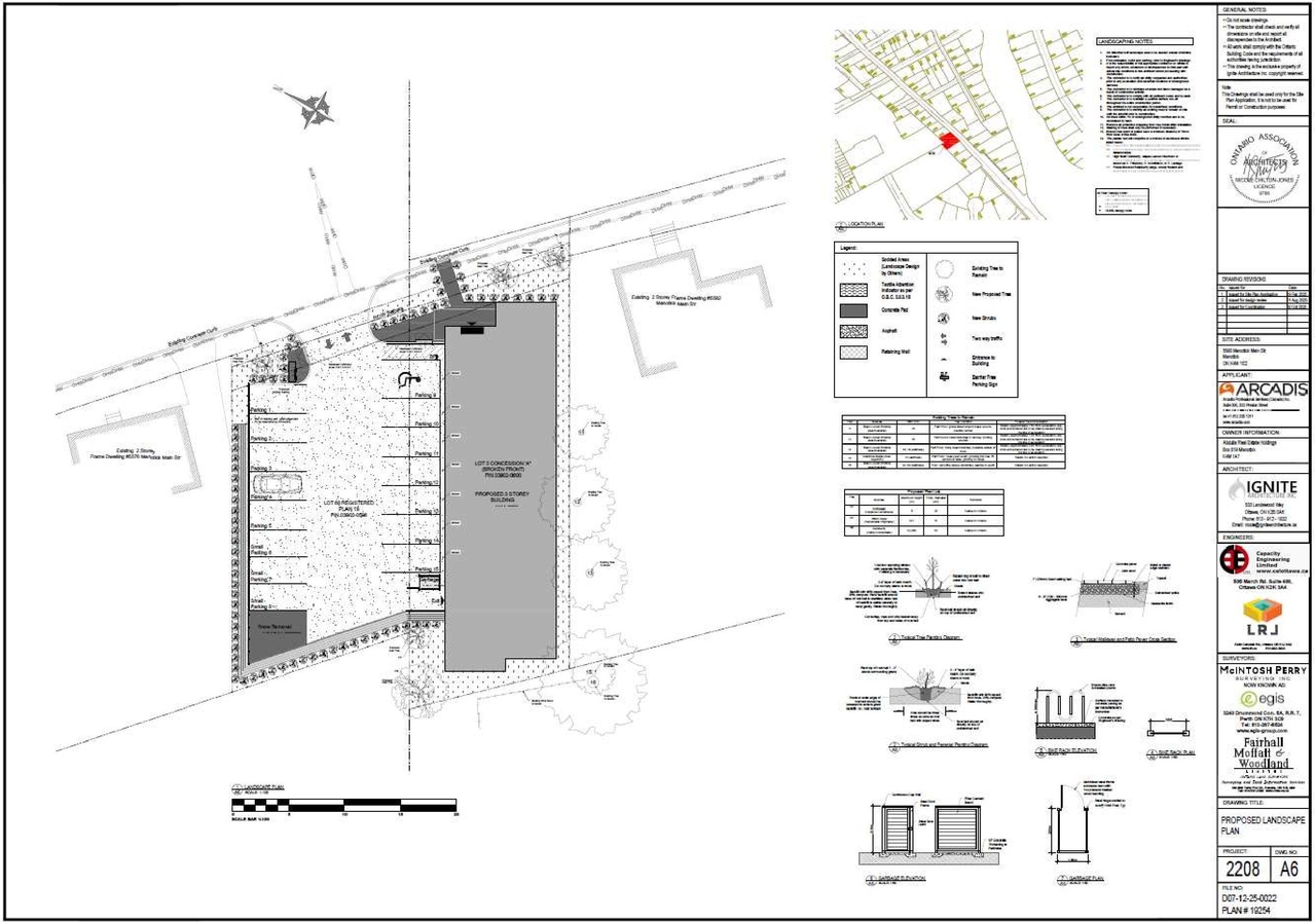
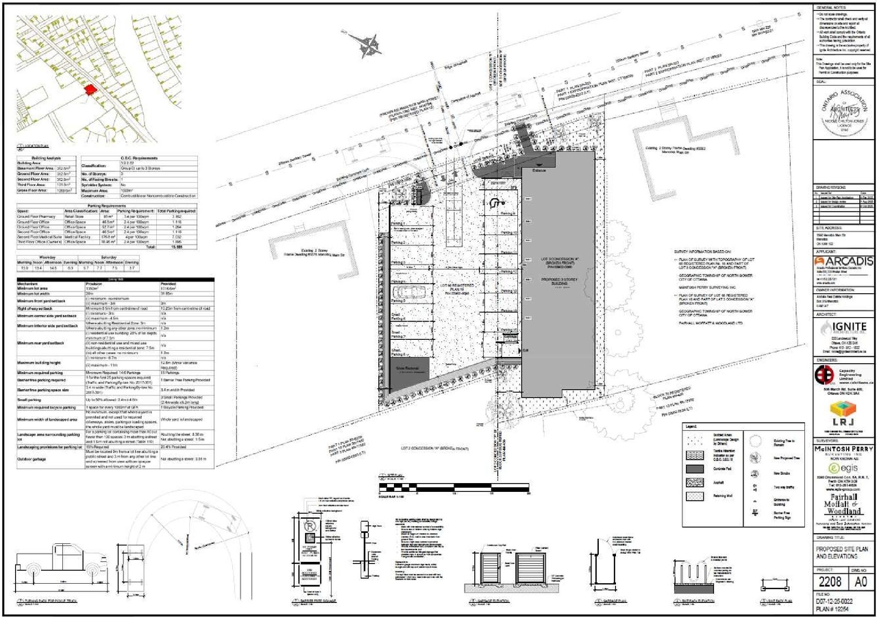
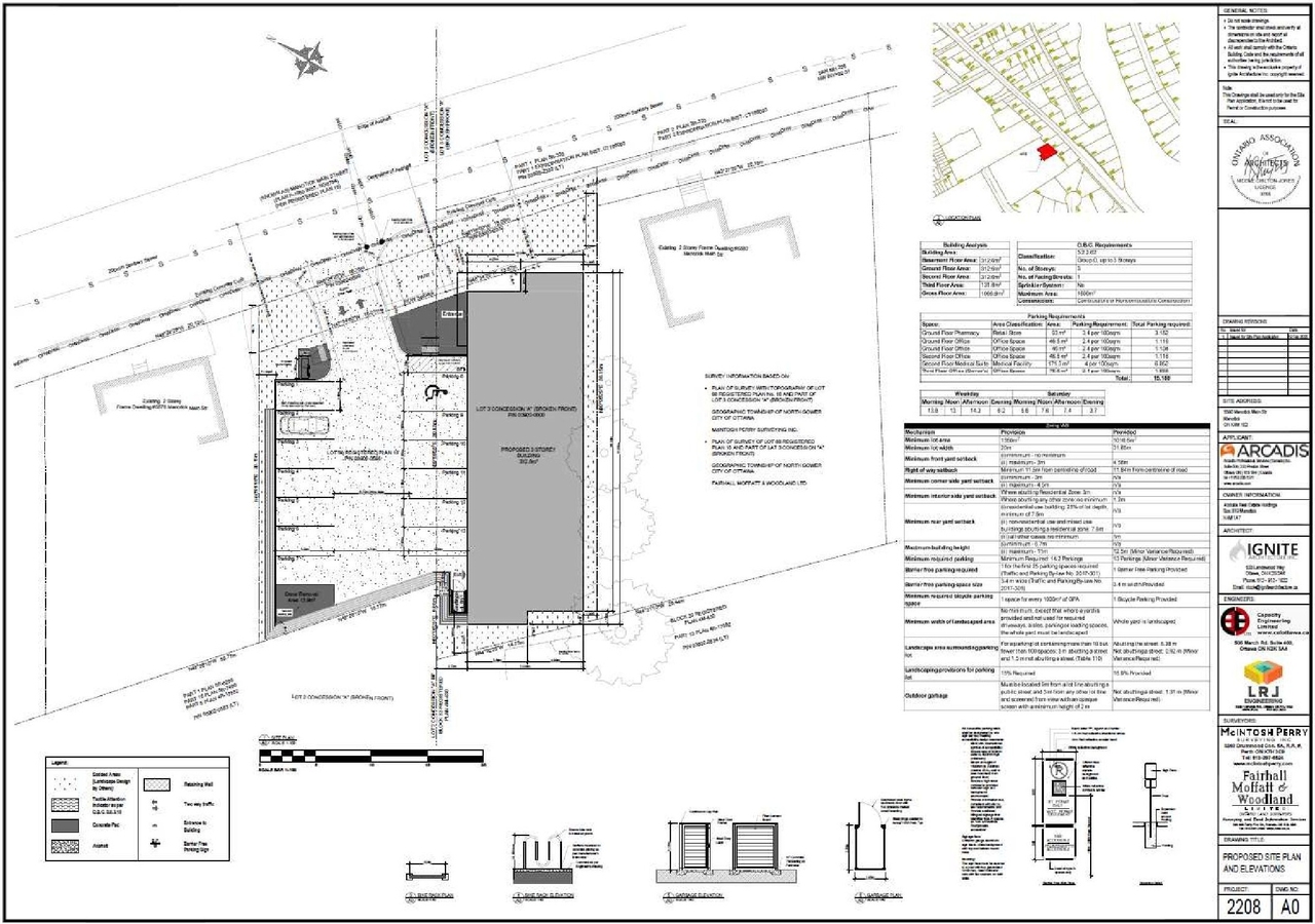
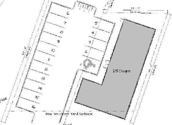
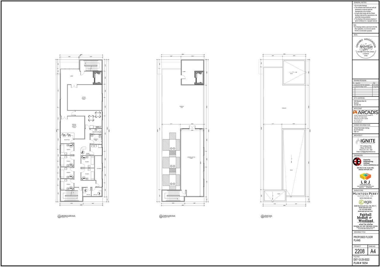
DescriptionThe City of Ottawa has received a site plan control application to construct a three-storey commercial pharmacy and medical office building. The building will have an approximate gross floor area of 1,070 m2 with a total of 15 vehicle parking spots.
WardWard 21 - David Brown
Date Initiated2025-03-03
Last Updated2025-12-16

Renders #

Location #

Select a marker to view the address.

Site and Floor Plans #

Documents #

TypeDocument
Application Summary2025-12-16 - Application Summary - D07-12-25-0022
Architectural Plans2025-08-14 - Site Plan - D07-12-25-0022
Architectural Plans2025-08-14 - Plan 18 - D07-12-25-0022
Architectural Plans2025-08-14 - Elevations - D07-12-25-0022
Civil Engineering Report2025-11-28 - Civil Drawings - D07-12-25-0022
Civil Engineering Report2025-08-14 - Civil Plans - D07-12-25-0022
Civil Engineering Report2025-03-03 - Civil Plans - D07-12-25-0022
Design Brief2025-11-28 - Urban Design Brief - D07-12-25-0022
Design Brief2025-03-03 - Urban Design Brief - D07-12-25-0022
Environmental2025-03-03 - Phase Two Environmental Site Assessment - D07-12-25-0022
Environmental2025-03-03 - Phase One Environmental Site Assessment - D07-12-25-0022
Floor Plan2025-08-14 - Floor Plans - D07-12-25-0022
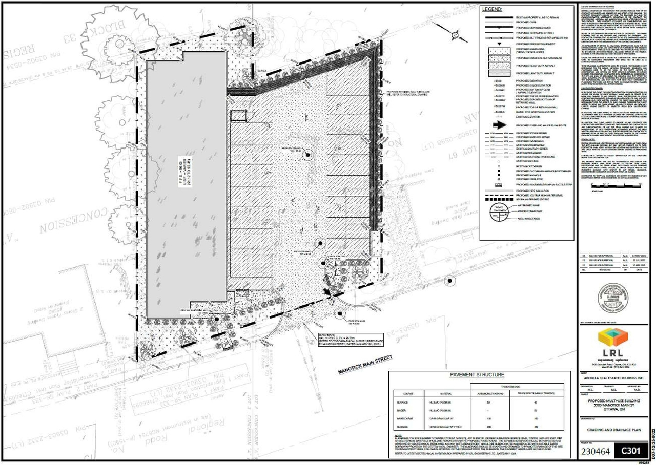
Geotechnical Report2025-03-03 - Grading and Drainage Plan - D07-12-25-0022
Geotechnical Report2025-03-03 - Geotechnical Investigation - D07-12-25-0022
Landscape Plan2025-08-14 - Landscape Plan - D07-12-25-0022
Landscape Plan2025-03-03 - Landscape Plan and Site Plans - D07-12-25-0022
Noise Study2025-03-03 - Noise Study - D07-12-25-0022
Planning2025-08-14 - Zoning Confirmation Report - D07-12-25-0022
Planning2025-03-03 - Zoning Confirmation Report - D07-12-25-0022
Shadow Study2025-08-14 - Fire Access Plan - D07-12-25-0022
Stormwater Management2025-11-28 - Stormwater Management Report and Servicing Brief - D07-12-25-0022
Stormwater Management2025-08-14 - Stormwater Management Report and Servicing Brief - D07-12-25-0022
Stormwater Management2025-03-03 - Stormwater Management Report and Servicing Brief - D07-12-25-0022
Surveying2025-08-14 - Survey Plan - D07-12-25-0022
Surveying2025-03-03 - Topographic Survey - D07-12-25-0022
Surveying2025-03-03 - Plan of Survey - D07-12-25-0022
Tree Information and Conservation2025-08-14 - Tree Conservation Report - D07-12-25-0022
Tree Information and Conservation2025-03-03 - Tree Conservation Report - D07-12-25-0022
2025-11-28 - Preliminary Drawings Metric D07-12-25-0022
2025-08-14 - Retaining Wall Details - D07-12-25-0022
2025-03-03 - Slope Stability Study - D07-12-25-0022