801 Eagleson (D07-12-25-0014)

801 Eagleson (D07-12-25-0014) #

Summary #

Application StatusInactive
Review StatusNotice of Decision Sent
DescriptionTo develop the site and construct a commercial plaza
WardWard 23 - Allan Hubley
Date Initiated2025-02-05
Last Updated2025-10-22

Renders #

  • Rendering of building from page 12 of the file '2025-07-31 - Urban Design Brief - D07-12-25-0014'
  • Rendering of building from page 11 of the file '2025-07-31 - Urban Design Brief - D07-12-25-0014'
  • Rendering of building from page 12 of the file '2025-07-31 - Urban Design Brief - D07-12-25-0014'
  • Rendering of building from page 11 of the file '2025-07-31 - Urban Design Brief - D07-12-25-0014'

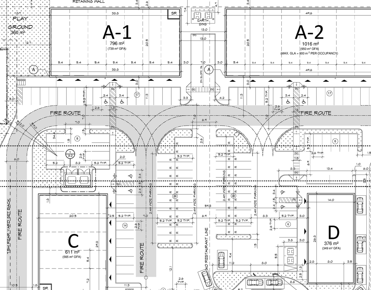
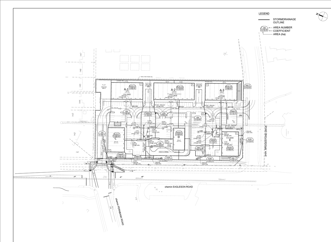
Site and Floor Plans #

  • Construction site plan for project from page 3 of the file '2025-07-31 - Urban Design Brief - D07-12-25-0014'
  • Construction site plan for project from page 8 of the file '2025-07-31 - Urban Design Brief - D07-12-25-0014'
  • Construction site plan for project from page 5 of the file '2025-07-31 - Design Brief - D07-12-25-0014'
  • Construction site plan for project from page 26 of the file '2025-07-31 - Design Brief - D07-12-25-0014'
  • Construction site plan for project from page 48 of the file '2025-07-31 - Design Brief - D07-12-25-0014'
  • Construction site plan for project from page 50 of the file '2025-07-31 - Design Brief - D07-12-25-0014'
  • Construction site plan for project from page 69 of the file '2025-07-31 - Design Brief - D07-12-25-0014'
  • Construction site plan for project from page 70 of the file '2025-07-31 - Design Brief - D07-12-25-0014'
  • Construction site plan for project from page 70 of the file '2025-07-31 - Design Brief - D07-12-25-0014'
  • Construction site plan for project from page 77 of the file '2025-07-31 - Design Brief - D07-12-25-0014'
  • Construction site plan for project from page 94 of the file '2025-07-31 - Design Brief - D07-12-25-0014'
  • Construction site plan for project from page 3 of the file '2025-07-31 - Urban Design Brief - D07-12-25-0014'
  • Construction site plan for project from page 8 of the file '2025-07-31 - Urban Design Brief - D07-12-25-0014'
  • Construction site plan for project from page 5 of the file '2025-07-31 - Design Brief - D07-12-25-0014'
  • Construction site plan for project from page 26 of the file '2025-07-31 - Design Brief - D07-12-25-0014'
  • Construction site plan for project from page 48 of the file '2025-07-31 - Design Brief - D07-12-25-0014'
  • Construction site plan for project from page 50 of the file '2025-07-31 - Design Brief - D07-12-25-0014'
  • Construction site plan for project from page 69 of the file '2025-07-31 - Design Brief - D07-12-25-0014'
  • Construction site plan for project from page 70 of the file '2025-07-31 - Design Brief - D07-12-25-0014'
  • Construction site plan for project from page 70 of the file '2025-07-31 - Design Brief - D07-12-25-0014'
  • Construction site plan for project from page 77 of the file '2025-07-31 - Design Brief - D07-12-25-0014'
  • Construction site plan for project from page 94 of the file '2025-07-31 - Design Brief - D07-12-25-0014'

Documents #

TypeDocument
Application Summary2025-08-21 - Application Summary - D07-12-25-0014
Architectural Plans2025-07-31 - Site Plan - D07-12-25-0014
Architectural Plans2025-07-31 - Preliminary Exterior Elevations - D07-12-25-0014
Architectural Plans2025-07-31 - Elevations - D07-12-25-0014
Architectural Plans2025-07-31 - Construction Management Plan - D07-12-25-0014
Architectural Plans2025-10-01 - Site Plan - D07-12-25-0014
Architectural Plans2025-10-21 - APPROVED Site Plan Details - D07-12-25-0014
Architectural Plans2025-10-21 - APPROVED Site Plan Approval Report - D07-12-25-0014
Architectural Plans2025-10-21 - APPROVED Elevations E - D07-12-25-0014
Architectural Plans2025-10-21 - APPROVED Elevations D - D07-12-25-0014
Architectural Plans2025-10-21 - APPROVED Elevations C - D07-12-25-0014
Architectural Plans2025-10-21 - APPROVED Elevations A3 - D07-12-25-0014
Architectural Plans2025-10-21 - APPROVED Elevations A2 - D07-12-25-0014
Architectural Plans2025-10-21 - APPROVED Elevations A1 - D07-12-25-0014
Civil Engineering Report2025-07-31 - Civil Plans - D07-12-25-0014
Civil Engineering Report2025-10-01 - Civil Plans - D07-12-25-0014
Design Brief2025-07-31 - Urban Design Brief - D07-12-25-0014
Design Brief2025-07-31 - Design Brief - D07-12-25-0014
Design Brief2025-10-01 - Design Brief - D07-12-25-0014
Environmental2025-08-12 - Phase One ESA - D07-12-25-0014
Environmental2025-07-31 - Phase One ESA - D07-12-25-0014
Environmental2025-07-31 - Environmental Noise Impact Assessment - D07-12-25-0014
Environmental2025-10-21 - APPROVED Phase One ESA - D07-12-25-0014
Environmental2025-10-21 - APPROVED Environmental Noise Impact Assessment - D07-12-25-0014
Geotechnical Report2025-07-31 - Geotechnical Investigation - D07-12-25-0014
Geotechnical Report2025-10-21 - APPROVED Geotechnical Review of Grading Plan Memo - D07-12-25-0014
Geotechnical Report2025-10-21 - APPROVED Geotechnical Investigation - D07-12-25-0014
Planning2025-07-31 - Zoning Confirmation Report - D07-12-25-0014
Planning2025-10-01 - Zoning Confirmation Report - D07-12-25-0014
Surveying2025-07-31 - Topographic Plan - D07-12-25-0014
Transportation Analysis2025-07-31 - Transportation Impact Assessment - D07-12-25-0014
Transportation Analysis2025-10-01 - Transportation Impact Assessment - D07-12-25-0014
Transportation Analysis2025-10-21 - APPROVED Transportation Impact Assessment - D07-12-25-0014
Tree Information and Conservation2025-07-31 - Tree Conservation Report and Landscape Plan - D07-12-25-0014
Tree Information and Conservation2025-10-01 - Tree Conservation Report & Landscape Plan - D07-12-25-0014
Tree Information and Conservation2025-10-21 - APPROVED Tree Conservation Report and Landscape Plan - D07-12-25-0014