5545 Albion (D07-12-25-0013)

5545 Albion (D07-12-25-0013) #

Summary #

Application StatusInactive
Review StatusNotice of Decision Sent
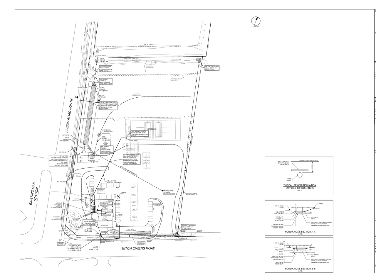
DescriptionThe applicant is proposing a gas bar including bays for oversize vehicle refuelling, convenience store, restaurant with drive-through lane, and associated parking. The development will be serviced via private well and septic systems. Access to the site will be from Albion Road and Mitch Owens Road.
WardWard 20 - Isabelle Skalski
Date Initiated2025-02-03
Last Updated2025-09-05

Renders #

  • Rendering of building from page 37 of the file '2025-02-03 - Urban Design Brief - D07-12-25-0013'
  • Rendering of building from page 35 of the file '2025-02-03 - Urban Design Brief - D07-12-25-0013'
  • Rendering of building from page 10 of the file '2025-02-03 - Urban Design Brief - D07-12-25-0013'
  • Rendering of building from page 34 of the file '2025-02-03 - Urban Design Brief - D07-12-25-0013'
  • Rendering of building from page 9 of the file '2025-02-03 - Urban Design Brief - D07-12-25-0013'
  • Rendering of building from page 31 of the file '2025-02-03 - Urban Design Brief - D07-12-25-0013'
  • Rendering of building from page 36 of the file '2025-02-03 - Urban Design Brief - D07-12-25-0013'
  • Rendering of building from page 32 of the file '2025-02-03 - Urban Design Brief - D07-12-25-0013'
  • Rendering of building from page 9 of the file '2025-02-03 - Urban Design Brief - D07-12-25-0013'
  • Rendering of building from page 9 of the file '2025-02-03 - Urban Design Brief - D07-12-25-0013'
  • Rendering of building from page 37 of the file '2025-02-03 - Urban Design Brief - D07-12-25-0013'
  • Rendering of building from page 73 of the file '2025-02-03 - Design Brief - D07-12-25-0013'
  • Rendering of building from page 37 of the file '2025-02-03 - Urban Design Brief - D07-12-25-0013'
  • Rendering of building from page 35 of the file '2025-02-03 - Urban Design Brief - D07-12-25-0013'
  • Rendering of building from page 10 of the file '2025-02-03 - Urban Design Brief - D07-12-25-0013'
  • Rendering of building from page 34 of the file '2025-02-03 - Urban Design Brief - D07-12-25-0013'
  • Rendering of building from page 9 of the file '2025-02-03 - Urban Design Brief - D07-12-25-0013'
  • Rendering of building from page 31 of the file '2025-02-03 - Urban Design Brief - D07-12-25-0013'
  • Rendering of building from page 36 of the file '2025-02-03 - Urban Design Brief - D07-12-25-0013'
  • Rendering of building from page 32 of the file '2025-02-03 - Urban Design Brief - D07-12-25-0013'
  • Rendering of building from page 9 of the file '2025-02-03 - Urban Design Brief - D07-12-25-0013'
  • Rendering of building from page 9 of the file '2025-02-03 - Urban Design Brief - D07-12-25-0013'
  • Rendering of building from page 37 of the file '2025-02-03 - Urban Design Brief - D07-12-25-0013'
  • Rendering of building from page 73 of the file '2025-02-03 - Design Brief - D07-12-25-0013'

Site and Floor Plans #

  • Construction site plan for project from page 8 of the file '2025-06-02 - Design Brief - D07-12-25-0013'
  • Construction site plan for project from page 17 of the file '2025-06-02 - Design Brief - D07-12-25-0013'
  • Construction site plan for project from page 26 of the file '2025-06-02 - Design Brief - D07-12-25-0013'
  • Construction site plan for project from page 27 of the file '2025-06-02 - Design Brief - D07-12-25-0013'
  • Construction site plan for project from page 28 of the file '2025-06-02 - Design Brief - D07-12-25-0013'
  • Construction site plan for project from page 49 of the file '2025-06-02 - Design Brief - D07-12-25-0013'
  • Construction site plan for project from page 50 of the file '2025-06-02 - Design Brief - D07-12-25-0013'
  • Construction site plan for project from page 55 of the file '2025-06-02 - Design Brief - D07-12-25-0013'
  • Construction site plan for project from page 56 of the file '2025-06-02 - Design Brief - D07-12-25-0013'
  • Construction site plan for project from page 57 of the file '2025-06-02 - Design Brief - D07-12-25-0013'
  • Floor plan for project from page 76 of the file '2025-06-02 - Design Brief - D07-12-25-0013'
  • Construction site plan for project from page 81 of the file '2025-06-02 - Design Brief - D07-12-25-0013'
  • Construction site plan for project from page 84 of the file '2025-06-02 - Design Brief - D07-12-25-0013'
  • Construction site plan for project from page 89 of the file '2025-06-02 - Design Brief - D07-12-25-0013'
  • Construction site plan for project from page 90 of the file '2025-06-02 - Design Brief - D07-12-25-0013'
  • Construction site plan for project from page 25 of the file '2025-04-17 - Design Brief - D07-12-25-0013'
  • Construction site plan for project from page 53 of the file '2025-04-17 - Design Brief - D07-12-25-0013'
  • Construction site plan for project from page 88 of the file '2025-04-17 - Design Brief - D07-12-25-0013'
  • Construction site plan for project from page 7 of the file '2025-02-03 - Urban Design Brief - D07-12-25-0013'
  • Construction site plan for project from page 8 of the file '2025-02-03 - Urban Design Brief - D07-12-25-0013'
  • Construction site plan for project from page 19 of the file '2025-02-03 - Urban Design Brief - D07-12-25-0013'
  • Construction site plan for project from page 22 of the file '2025-02-03 - Urban Design Brief - D07-12-25-0013'
  • Construction site plan for project from page 25 of the file '2025-02-03 - Urban Design Brief - D07-12-25-0013'
  • Construction site plan for project from page 25 of the file '2025-02-03 - Urban Design Brief - D07-12-25-0013'
  • Construction site plan for project from page 29 of the file '2025-02-03 - Urban Design Brief - D07-12-25-0013'
  • Construction site plan for project from page 30 of the file '2025-02-03 - Urban Design Brief - D07-12-25-0013'
  • Construction site plan for project from page 54 of the file '2025-02-03 - Design Brief - D07-12-25-0013'
  • Construction site plan for project from page 69 of the file '2025-02-03 - Design Brief - D07-12-25-0013'
  • Construction site plan for project from page 69 of the file '2025-02-03 - Design Brief - D07-12-25-0013'
  • Construction site plan for project from page 70 of the file '2025-02-03 - Design Brief - D07-12-25-0013'
  • Construction site plan for project from page 85 of the file '2025-02-03 - Design Brief - D07-12-25-0013'
  • Construction site plan for project from page 30 of the file '2025-10-27 - Design Brief - D07-12-25-0013'
  • Construction site plan for project from page 91 of the file '2025-10-27 - Design Brief - D07-12-25-0013'
  • Construction site plan for project from page 8 of the file '2025-06-02 - Design Brief - D07-12-25-0013'
  • Construction site plan for project from page 17 of the file '2025-06-02 - Design Brief - D07-12-25-0013'
  • Construction site plan for project from page 26 of the file '2025-06-02 - Design Brief - D07-12-25-0013'
  • Construction site plan for project from page 27 of the file '2025-06-02 - Design Brief - D07-12-25-0013'
  • Construction site plan for project from page 28 of the file '2025-06-02 - Design Brief - D07-12-25-0013'
  • Construction site plan for project from page 49 of the file '2025-06-02 - Design Brief - D07-12-25-0013'
  • Construction site plan for project from page 50 of the file '2025-06-02 - Design Brief - D07-12-25-0013'
  • Construction site plan for project from page 55 of the file '2025-06-02 - Design Brief - D07-12-25-0013'
  • Construction site plan for project from page 56 of the file '2025-06-02 - Design Brief - D07-12-25-0013'
  • Construction site plan for project from page 57 of the file '2025-06-02 - Design Brief - D07-12-25-0013'
  • Floor plan for project from page 76 of the file '2025-06-02 - Design Brief - D07-12-25-0013'
  • Construction site plan for project from page 81 of the file '2025-06-02 - Design Brief - D07-12-25-0013'
  • Construction site plan for project from page 84 of the file '2025-06-02 - Design Brief - D07-12-25-0013'
  • Construction site plan for project from page 89 of the file '2025-06-02 - Design Brief - D07-12-25-0013'
  • Construction site plan for project from page 90 of the file '2025-06-02 - Design Brief - D07-12-25-0013'
  • Construction site plan for project from page 25 of the file '2025-04-17 - Design Brief - D07-12-25-0013'
  • Construction site plan for project from page 53 of the file '2025-04-17 - Design Brief - D07-12-25-0013'
  • Construction site plan for project from page 88 of the file '2025-04-17 - Design Brief - D07-12-25-0013'
  • Construction site plan for project from page 7 of the file '2025-02-03 - Urban Design Brief - D07-12-25-0013'
  • Construction site plan for project from page 8 of the file '2025-02-03 - Urban Design Brief - D07-12-25-0013'
  • Construction site plan for project from page 19 of the file '2025-02-03 - Urban Design Brief - D07-12-25-0013'
  • Construction site plan for project from page 22 of the file '2025-02-03 - Urban Design Brief - D07-12-25-0013'
  • Construction site plan for project from page 25 of the file '2025-02-03 - Urban Design Brief - D07-12-25-0013'
  • Construction site plan for project from page 25 of the file '2025-02-03 - Urban Design Brief - D07-12-25-0013'
  • Construction site plan for project from page 29 of the file '2025-02-03 - Urban Design Brief - D07-12-25-0013'
  • Construction site plan for project from page 30 of the file '2025-02-03 - Urban Design Brief - D07-12-25-0013'
  • Construction site plan for project from page 54 of the file '2025-02-03 - Design Brief - D07-12-25-0013'
  • Construction site plan for project from page 69 of the file '2025-02-03 - Design Brief - D07-12-25-0013'
  • Construction site plan for project from page 69 of the file '2025-02-03 - Design Brief - D07-12-25-0013'
  • Construction site plan for project from page 70 of the file '2025-02-03 - Design Brief - D07-12-25-0013'
  • Construction site plan for project from page 85 of the file '2025-02-03 - Design Brief - D07-12-25-0013'
  • Construction site plan for project from page 30 of the file '2025-10-27 - Design Brief - D07-12-25-0013'
  • Construction site plan for project from page 91 of the file '2025-10-27 - Design Brief - D07-12-25-0013'

Documents #

TypeDocument
Application Summary2025-07-18 - Application Summary - D07-12-25-0013
Archaelogical Assessment2025-02-03 - Stage 1 Archaeological Assessment - D07-12-25-0013
Archaelogical Assessment2025-10-27 - Archaeological Assessment - D07-12-25-0013
Architectural Plans2025-06-02 - Site Plan - D07-12-25-0013
Architectural Plans2025-06-02 - GENERAL PLAN OF SERVICES_Rev6 - D07-12-25-0013
Architectural Plans2025-06-02 - Concept Elevations - D07-12-25-0013
Architectural Plans2025-04-17 - Site Plan - D07-12-25-0013
Architectural Plans2025-04-17 - Elevations - D07-12-25-0013
Architectural Plans2025-04-17 - C-900 SEDIMENT & EROSION CONTROL PLAN - D07-12-25-0013
Architectural Plans2025-04-17 - C-600 PONDING PLAN - D07-12-25-0013
Architectural Plans2025-04-17 - C-200 GRADING PLAN - D07-12-25-0013
Architectural Plans2025-04-17 - C-001 GENERAL PLAN OF SERVICES - D07-12-25-0013
Architectural Plans2025-02-03 - Site Plan - D07-12-25-0013
Architectural Plans2025-02-03 - Elevations - D07-12-25-0013
Architectural Plans2025-02-03 - Construction Management Plan Preliminary - D07-12-25-0013
Architectural Plans2025-02-03 - C-900 SEDIMENT & EROSION CONTROL PLAN - D07-12-25-0013
Architectural Plans2025-02-03 - C-600 PONDING PLAN - D07-12-25-0013
Architectural Plans2025-02-03 - C-200 GRADING PLAN - D07-12-25-0013
Architectural Plans2025-02-03 - C-001 GENERAL PLAN OF SERVICES - D07-12-25-0013
Architectural Plans2025-09-04 - APPROVED Site Plan Approval Report - D07-12-25-0013
Architectural Plans2025-09-04 - APPROVED Sediment & Erosion Control Plan - D07-12-25-0013
Architectural Plans2025-09-04 - APPROVED Ponding Plan - D07-12-25-0013
Architectural Plans2025-10-27 - Site Plan - D07-12-25-0013
Architectural Plans2025-10-27 - General Plan of Services - D07-12-25-0013
Architectural Plans2025-10-27 - Elevations - D07-12-25-0013
Architectural Plans2025-10-27 - Construction Management Plan - D07-12-25-0013
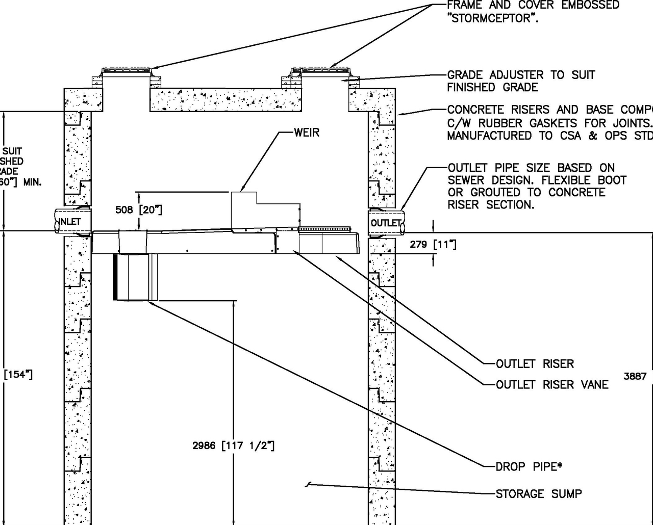
Civil Engineering Report2025-02-03 - Civil Drawing Set - D07-12-25-0013
Civil Engineering Report2025-10-27 - Civil Plans - D07-12-25-0013
Design Brief2025-06-02 - Design Brief - D07-12-25-0013
Design Brief2025-04-17 - Design Brief - D07-12-25-0013
Design Brief2025-02-03 - Urban Design Brief - D07-12-25-0013
Design Brief2025-02-03 - Design Brief - D07-12-25-0013
Design Brief2025-10-27 - Design Brief - D07-12-25-0013
Environmental2025-04-17 - Phase II ESA Update - D07-12-25-0013
Environmental2025-04-17 - Phase II ESA - D07-12-25-0013
Environmental2025-04-17 - Phase I ESA Update - D07-12-25-0013
Environmental2025-04-17 - Phase I ESA - D07-12-25-0013
Environmental2025-02-03 - Phase II-Environmental Site Assessment Update - D07-12-25-0013
Environmental2025-02-03 - Phase I-Environmental Site Assessment Update - D07-12-25-0013
Environmental2025-02-03 - Environmental Remediation Program - D07-12-25-0013
Environmental2025-02-03 - Environmental Impact Statement - D07-12-25-0013
Environmental2025-10-27 - Phase I ESA - D07-12-25-0013
Geotechnical Report2025-06-02 - GRADING PLAN_Rev6 - D07-12-25-0013
Geotechnical Report2025-04-17 - Landscape Plan Soil Volume Layer - D07-12-25-0013
Geotechnical Report2025-04-17 - Hydrogeological Assessment and Terrain Analysis - D07-12-25-0013
Geotechnical Report2025-04-17 - Groundwater Monitoring Program Memo - D07-12-25-0013
Geotechnical Report2025-04-17 - Geotechnical Investigation - D07-12-25-0013
Geotechnical Report2025-02-03 - Hydrogeological Assessment and Terrain Analysis - D07-12-25-0013
Geotechnical Report2025-02-03 - Geotechnical Investigation - D07-12-25-0013
Geotechnical Report2025-10-27 - Grading Plan - D07-12-25-0013
Landscape Plan2025-06-02 - Landscape_TCR Plan(1) - D07-12-25-0013
Landscape Plan2025-06-02 - Landscape_TCR Plan - D07-12-25-0013
Landscape Plan2025-06-02 - Landscape Details - D07-12-25-0013
Landscape Plan2025-04-17 - Landscape Plan notes - D07-12-25-0013
Landscape Plan2025-04-17 - Landscape Plan - D07-12-25-0013
Landscape Plan2025-02-03 - Landscape Plans - D07-12-25-0013
Landscape Plan2025-09-04 - APPROVED Landscape Details - D07-12-25-0013
Landscape Plan2025-10-27 - Landscape Plan - D07-12-25-0013
Planning2025-06-02 - Zoning Confirmation Report - D07-12-25-0013
Planning2025-04-17 - Zoning Confirmation Report - D07-12-25-0013
Planning2025-02-03 - Zoning Confirmation Report - D07-12-25-0013
Planning2025-10-27 - Zoning Confirmation Report - D07-12-25-0013
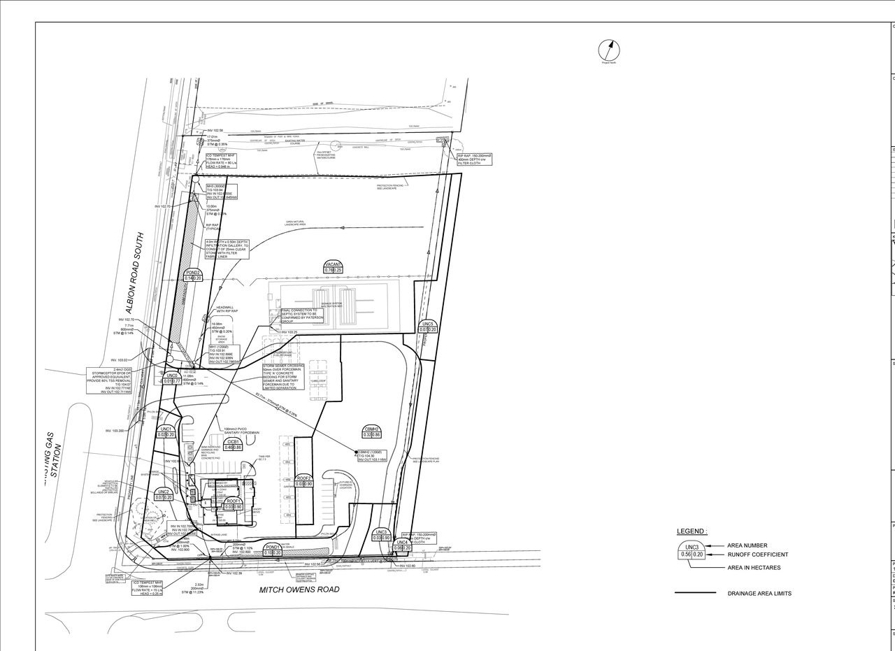
Stormwater Management2025-06-02 - STORM DRAINAGE AREA PLAN_Rev6 - D07-12-25-0013
Stormwater Management2025-06-02 - PRE-DEVELOPMENT STORM DRAINAGE AREA PLAN_Rev6 - D07-12-25-0013
Stormwater Management2025-06-02 - EXTERNAL STORM DRAINAGE PLAN_Rev6 - D07-12-25-0013
Stormwater Management2025-04-17 - C-502 EXTERNAL STORM DRAINAGE AREA PLAN - D07-12-25-0013
Stormwater Management2025-04-17 - C-501 PRE-DEVELOPMENT STORM DRAINAGE AREA PLAN - D07-12-25-0013
Stormwater Management2025-04-17 - C-500 STORM DRAINAGE AREA PLAN - D07-12-25-0013
Stormwater Management2025-02-03 - C-502 EXTERNAL STORM DRAINAGE AREA PLAN - D07-12-25-0013
Stormwater Management2025-02-03 - C-501 PRE-DEVELOPMENT STORM DRAINAGE AREA PLAN - D07-12-25-0013
Stormwater Management2025-02-03 - C-500 STORM DRAINAGE AREA PLAN - D07-12-25-0013
Stormwater Management2025-09-04 - APPROVED Storm Drainage Area Plan - D07-12-25-0013
Stormwater Management2025-09-04 - APPROVED PreDevelopment Storm Drainage Area Plan - D07-12-25-0013
Stormwater Management2025-10-27 - Storm Drainage Area Plan - D07-12-25-0013
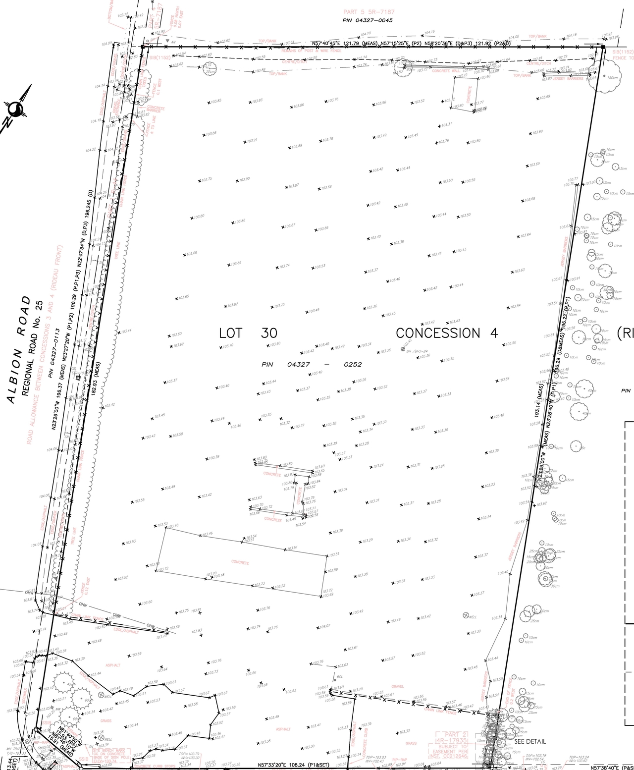
Surveying2025-04-17 - Plan of Survey - D07-12-25-0013
Surveying2025-02-03 - Survey - D07-12-25-0013
Surveying2025-10-27 - Plan of Survey - D07-12-25-0013
Transportation Analysis2025-10-27 - Transportation Impact Assessment - D07-12-25-0013
Tree Information and Conservation2025-09-04 - APPROVED Landscape TCR Plan Soil Volume - D07-12-25-0013
Tree Information and Conservation2025-09-04 - APPROVED Landscape TCR Plan - D07-12-25-0013
2025-06-02 - Set of Drawing_Rev6 - D07-12-25-0013
2025-06-02 - REMOVALS_Rev6 - D07-12-25-0013
2025-06-02 - PONDING PLAN_Rev6 - D07-12-25-0013
2025-06-02 - NOTES LEGEND & CB DATA TABLE_Rev6 - D07-12-25-0013
2025-06-02 - COVER_Rev6 - D07-12-25-0013
2025-04-17 - Infiltration Testing - D07-12-25-0013
2025-04-17 - C-REM REMOVALS - D07-12-25-0013
2025-04-17 - C-010 NOTES,LEGEND & CB DATA TABLE - D07-12-25-0013
2025-02-03 - C-REM REMOVALS - D07-12-25-0013
2025-02-03 - C-010 NOTES, LEGEND & CB DATA - D07-12-25-0013
2025-02-03 - C-000 Cover Letter - D07-12-25-0013
2025-09-04 - APPROVED Notes Legend & CB Data Table - D07-12-25-0013
2025-10-27 - Notes Legend & CB Data Table - D07-12-25-0013
2025-10-27 - Cover Page - D07-12-25-0013