110 O'Connor St. (D07-12-25-0010)

110 O’Connor St. (D07-12-25-0010)#

Summary#

Application StatusActive
Review StatusOn Circulation; Initial Submission Review
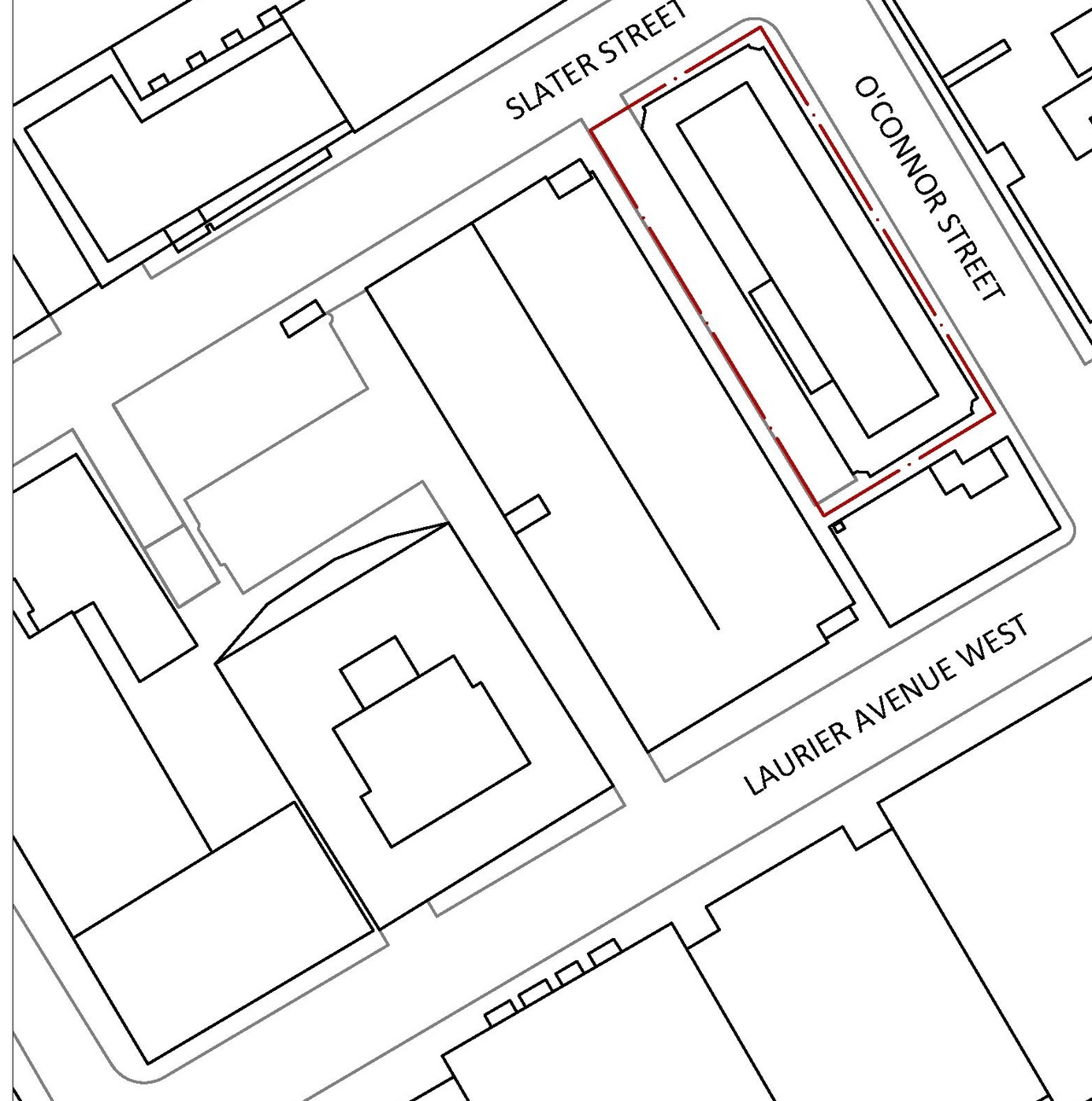
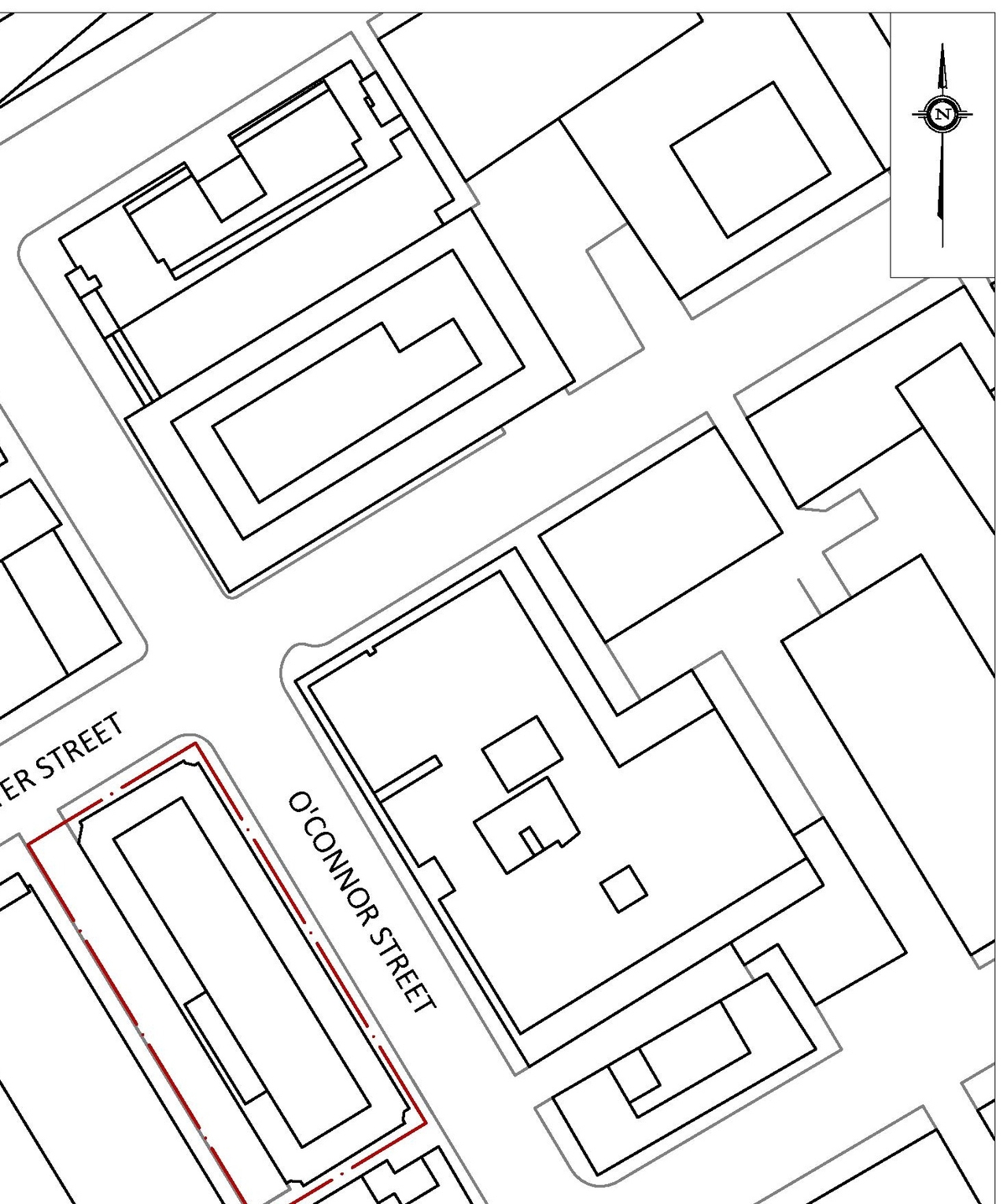
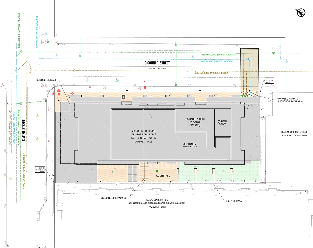
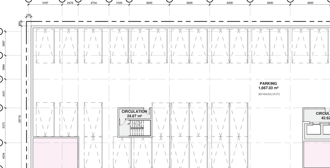
DescriptionThe future development is a mixed-use of 413 residential units over 25 storeys, with 454 m2 of commercial space on the ground floor. The site is bounded by O’Connor and Slater streets, as well as lots 124 O’Connor and 170 Slater. Application Numbers: PC2023-0282 ; PC2024-0305
WardWard 14 - Ariel Troster
Date Initiated2025-01-31
Last Updated2025-12-06

Renders#

  • Rendering of building from page 37 of the file '2025-07-22 - UDRP Report - D07-12-25-0010'
  • Rendering of building from page 33 of the file '2025-07-22 - UDRP Report - D07-12-25-0010'
  • Rendering of building from page 32 of the file '2025-10-30 - Urban Design Brief - D07-12-25-0010'
  • Rendering of building from page 38 of the file '2025-07-22 - Urban Design Brief - D07-12-25-0010'
  • Rendering of building from page 32 of the file '2025-07-22 - Urban Design Brief - D07-12-25-0010'
  • Rendering of building from page 35 of the file '2025-07-22 - UDRP Report - D07-12-25-0010'
  • Rendering of building from page 38 of the file '2025-10-30 - Urban Design Brief - D07-12-25-0010'
  • Rendering of building from page 52 of the file '2025-10-30 - Urban Design Brief - D07-12-25-0010'
  • Rendering of building from page 128 of the file '2025-07-22 - UDRP Report - D07-12-25-0010'
  • Rendering of building from page 35 of the file '2025-07-22 - Urban Design Brief - D07-12-25-0010'
  • Rendering of building from page 35 of the file '2025-10-30 - Urban Design Brief - D07-12-25-0010'
  • Rendering of building from page 41 of the file '2025-07-22 - UDRP Report - D07-12-25-0010'
  • Rendering of building from page 37 of the file '2025-10-30 - Urban Design Brief - D07-12-25-0010'
  • Rendering of building from page 33 of the file '2025-10-30 - Urban Design Brief - D07-12-25-0010'
  • Rendering of building from page 31 of the file '2025-10-30 - Urban Design Brief - D07-12-25-0010'
  • Rendering of building from page 38 of the file '2025-07-22 - UDRP Report - D07-12-25-0010'
  • Rendering of building from page 1 of the file '2025-07-22 - Urban Design Brief - D07-12-25-0010'
  • Rendering of building from page 1 of the file '2025-10-30 - Urban Design Brief - D07-12-25-0010'
  • Rendering of building from page 34 of the file '2025-07-22 - UDRP Report - D07-12-25-0010'
  • Rendering of building from page 3 of the file '2025-10-30 - Urban Design Brief - D07-12-25-0010'
  • Rendering of building from page 14 of the file '2025-10-30 - Urban Design Brief - D07-12-25-0010'
  • Rendering of building from page 52 of the file '2025-10-30 - Urban Design Brief - D07-12-25-0010'
  • Rendering of building from page 52 of the file '2025-07-22 - UDRP Report - D07-12-25-0010'
  • Rendering of building from page 21 of the file '2025-10-30 - Urban Design Brief - D07-12-25-0010'
  • Rendering of building from page 21 of the file '2025-10-30 - Urban Design Brief - D07-12-25-0010'
  • Rendering of building from page 31 of the file '2025-10-30 - Urban Design Brief - D07-12-25-0010'
  • Rendering of building from page 22 of the file '2025-07-22 - Urban Design Brief - D07-12-25-0010'
  • Rendering of building from page 52 of the file '2025-07-22 - UDRP Report - D07-12-25-0010'
  • Rendering of building from page 22 of the file '2025-10-30 - Urban Design Brief - D07-12-25-0010'
  • Rendering of building from page 21 of the file '2025-10-30 - Urban Design Brief - D07-12-25-0010'
  • Rendering of building from page 22 of the file '2025-10-30 - Urban Design Brief - D07-12-25-0010'
  • Rendering of building from page 125 of the file '2025-07-22 - UDRP Report - D07-12-25-0010'
  • Rendering of building from page 22 of the file '2025-10-30 - Urban Design Brief - D07-12-25-0010'
  • Rendering of building from page 27 of the file '2025-10-30 - Urban Design Brief - D07-12-25-0010'
  • Rendering of building from page 27 of the file '2025-07-22 - Urban Design Brief - D07-12-25-0010'
  • Rendering of building from page 21 of the file '2025-10-30 - Urban Design Brief - D07-12-25-0010'
  • Rendering of building from page 21 of the file '2025-10-30 - Urban Design Brief - D07-12-25-0010'
  • Rendering of building from page 27 of the file '2025-10-30 - Urban Design Brief - D07-12-25-0010'
  • Rendering of building from page 125 of the file '2025-07-22 - UDRP Report - D07-12-25-0010'
  • Rendering of building from page 37 of the file '2025-07-22 - UDRP Report - D07-12-25-0010'
  • Rendering of building from page 33 of the file '2025-07-22 - UDRP Report - D07-12-25-0010'
  • Rendering of building from page 32 of the file '2025-10-30 - Urban Design Brief - D07-12-25-0010'
  • Rendering of building from page 38 of the file '2025-07-22 - Urban Design Brief - D07-12-25-0010'
  • Rendering of building from page 32 of the file '2025-07-22 - Urban Design Brief - D07-12-25-0010'
  • Rendering of building from page 35 of the file '2025-07-22 - UDRP Report - D07-12-25-0010'
  • Rendering of building from page 38 of the file '2025-10-30 - Urban Design Brief - D07-12-25-0010'
  • Rendering of building from page 52 of the file '2025-10-30 - Urban Design Brief - D07-12-25-0010'
  • Rendering of building from page 128 of the file '2025-07-22 - UDRP Report - D07-12-25-0010'
  • Rendering of building from page 35 of the file '2025-07-22 - Urban Design Brief - D07-12-25-0010'
  • Rendering of building from page 35 of the file '2025-10-30 - Urban Design Brief - D07-12-25-0010'
  • Rendering of building from page 41 of the file '2025-07-22 - UDRP Report - D07-12-25-0010'
  • Rendering of building from page 37 of the file '2025-10-30 - Urban Design Brief - D07-12-25-0010'
  • Rendering of building from page 33 of the file '2025-10-30 - Urban Design Brief - D07-12-25-0010'
  • Rendering of building from page 31 of the file '2025-10-30 - Urban Design Brief - D07-12-25-0010'
  • Rendering of building from page 38 of the file '2025-07-22 - UDRP Report - D07-12-25-0010'
  • Rendering of building from page 1 of the file '2025-07-22 - Urban Design Brief - D07-12-25-0010'
  • Rendering of building from page 1 of the file '2025-10-30 - Urban Design Brief - D07-12-25-0010'
  • Rendering of building from page 34 of the file '2025-07-22 - UDRP Report - D07-12-25-0010'
  • Rendering of building from page 3 of the file '2025-10-30 - Urban Design Brief - D07-12-25-0010'
  • Rendering of building from page 14 of the file '2025-10-30 - Urban Design Brief - D07-12-25-0010'
  • Rendering of building from page 52 of the file '2025-10-30 - Urban Design Brief - D07-12-25-0010'
  • Rendering of building from page 52 of the file '2025-07-22 - UDRP Report - D07-12-25-0010'
  • Rendering of building from page 21 of the file '2025-10-30 - Urban Design Brief - D07-12-25-0010'
  • Rendering of building from page 21 of the file '2025-10-30 - Urban Design Brief - D07-12-25-0010'
  • Rendering of building from page 31 of the file '2025-10-30 - Urban Design Brief - D07-12-25-0010'
  • Rendering of building from page 22 of the file '2025-07-22 - Urban Design Brief - D07-12-25-0010'
  • Rendering of building from page 52 of the file '2025-07-22 - UDRP Report - D07-12-25-0010'
  • Rendering of building from page 22 of the file '2025-10-30 - Urban Design Brief - D07-12-25-0010'
  • Rendering of building from page 21 of the file '2025-10-30 - Urban Design Brief - D07-12-25-0010'
  • Rendering of building from page 22 of the file '2025-10-30 - Urban Design Brief - D07-12-25-0010'
  • Rendering of building from page 125 of the file '2025-07-22 - UDRP Report - D07-12-25-0010'
  • Rendering of building from page 22 of the file '2025-10-30 - Urban Design Brief - D07-12-25-0010'
  • Rendering of building from page 27 of the file '2025-10-30 - Urban Design Brief - D07-12-25-0010'
  • Rendering of building from page 27 of the file '2025-07-22 - Urban Design Brief - D07-12-25-0010'
  • Rendering of building from page 21 of the file '2025-10-30 - Urban Design Brief - D07-12-25-0010'
  • Rendering of building from page 21 of the file '2025-10-30 - Urban Design Brief - D07-12-25-0010'
  • Rendering of building from page 27 of the file '2025-10-30 - Urban Design Brief - D07-12-25-0010'
  • Rendering of building from page 125 of the file '2025-07-22 - UDRP Report - D07-12-25-0010'

Location#

Select a marker to view the address.

Site Plans, Elevations and Floor Plans#

  • Image from page 66 of the file '2025-10-30 - Urban Design Brief - D07-12-25-0010'
  • Image from page 54 of the file '2025-10-30 - Urban Design Brief - D07-12-25-0010'
  • Image from page 53 of the file '2025-07-22 - Urban Design Brief - D07-12-25-0010'
  • Image from page 53 of the file '2025-10-30 - Urban Design Brief - D07-12-25-0010'
  • Image from page 40 of the file '2025-07-22 - UDRP Report - D07-12-25-0010'
  • Image from page 66 of the file '2025-10-30 - Urban Design Brief - D07-12-25-0010'
  • Image from page 54 of the file '2025-07-22 - UDRP Report - D07-12-25-0010'
  • Image from page 39 of the file '2025-07-22 - UDRP Report - D07-12-25-0010'
  • Image from page 53 of the file '2025-07-22 - UDRP Report - D07-12-25-0010'
  • Image from page 39 of the file '2025-07-22 - UDRP Report - D07-12-25-0010'
  • Image from page 66 of the file '2025-10-30 - Urban Design Brief - D07-12-25-0010'
  • Image from page 42 of the file '2025-07-22 - UDRP Report - D07-12-25-0010'
  • Image from page 79 of the file '2025-07-22 - UDRP Report - D07-12-25-0010'
  • Image from page 14 of the file '2025-10-30 - Urban Design Brief - D07-12-25-0010'
  • Construction site plan for project from page 6 of the file '2025-07-22 - Urban Design Brief - D07-12-25-0010'
  • Construction site plan for project from page 78 of the file '2025-07-22 - UDRP Report - D07-12-25-0010'
  • Construction site plan for project from page 6 of the file '2025-10-30 - Urban Design Brief - D07-12-25-0010'
  • Construction site plan for project from page 7 of the file '2025-07-22 - UDRP Report - D07-12-25-0010'
  • Construction site plan for project from page 65 of the file '2025-07-22 - Urban Design Brief - D07-12-25-0010'
  • Construction site plan for project from page 72 of the file '2025-07-22 - UDRP Report - D07-12-25-0010'
  • Construction site plan for project from page 63 of the file '2025-07-22 - Urban Design Brief - D07-12-25-0010'
  • Construction site plan for project from page 24 of the file '2025-10-30 - Urban Design Brief - D07-12-25-0010'
  • Construction site plan for project from page 61 of the file '2025-07-22 - Urban Design Brief - D07-12-25-0010'
  • Construction site plan for project from page 59 of the file '2025-07-22 - Urban Design Brief - D07-12-25-0010'
  • Construction site plan for project from page 65 of the file '2025-07-22 - UDRP Report - D07-12-25-0010'
  • Construction site plan for project from page 63 of the file '2025-07-22 - UDRP Report - D07-12-25-0010'
  • Construction site plan for project from page 24 of the file '2025-07-22 - Urban Design Brief - D07-12-25-0010'
  • Construction site plan for project from page 62 of the file '2025-07-22 - Urban Design Brief - D07-12-25-0010'
  • Construction site plan for project from page 44 of the file '2025-07-22 - UDRP Report - D07-12-25-0010'
  • Construction site plan for project from page 99 of the file '2025-07-22 - UDRP Report - D07-12-25-0010'
  • Construction site plan for project from page 93 of the file '2025-07-22 - UDRP Report - D07-12-25-0010'
  • Construction site plan for project from page 94 of the file '2025-07-22 - UDRP Report - D07-12-25-0010'
  • Construction site plan for project from page 94 of the file '2025-07-22 - UDRP Report - D07-12-25-0010'
  • Construction site plan for project from page 93 of the file '2025-07-22 - UDRP Report - D07-12-25-0010'
  • Construction site plan for project from page 74 of the file '2025-07-22 - UDRP Report - D07-12-25-0010'
  • Construction site plan for project from page 19 of the file '2025-10-30 - Urban Design Brief - D07-12-25-0010'
  • Construction site plan for project from page 99 of the file '2025-07-22 - UDRP Report - D07-12-25-0010'
  • Image from page 66 of the file '2025-10-30 - Urban Design Brief - D07-12-25-0010'
  • Image from page 54 of the file '2025-10-30 - Urban Design Brief - D07-12-25-0010'
  • Image from page 53 of the file '2025-07-22 - Urban Design Brief - D07-12-25-0010'
  • Image from page 53 of the file '2025-10-30 - Urban Design Brief - D07-12-25-0010'
  • Image from page 40 of the file '2025-07-22 - UDRP Report - D07-12-25-0010'
  • Image from page 66 of the file '2025-10-30 - Urban Design Brief - D07-12-25-0010'
  • Image from page 54 of the file '2025-07-22 - UDRP Report - D07-12-25-0010'
  • Image from page 39 of the file '2025-07-22 - UDRP Report - D07-12-25-0010'
  • Image from page 53 of the file '2025-07-22 - UDRP Report - D07-12-25-0010'
  • Image from page 39 of the file '2025-07-22 - UDRP Report - D07-12-25-0010'
  • Image from page 66 of the file '2025-10-30 - Urban Design Brief - D07-12-25-0010'
  • Image from page 42 of the file '2025-07-22 - UDRP Report - D07-12-25-0010'
  • Image from page 79 of the file '2025-07-22 - UDRP Report - D07-12-25-0010'
  • Image from page 14 of the file '2025-10-30 - Urban Design Brief - D07-12-25-0010'
  • Construction site plan for project from page 6 of the file '2025-07-22 - Urban Design Brief - D07-12-25-0010'
  • Construction site plan for project from page 78 of the file '2025-07-22 - UDRP Report - D07-12-25-0010'
  • Construction site plan for project from page 6 of the file '2025-10-30 - Urban Design Brief - D07-12-25-0010'
  • Construction site plan for project from page 7 of the file '2025-07-22 - UDRP Report - D07-12-25-0010'
  • Construction site plan for project from page 65 of the file '2025-07-22 - Urban Design Brief - D07-12-25-0010'
  • Construction site plan for project from page 72 of the file '2025-07-22 - UDRP Report - D07-12-25-0010'
  • Construction site plan for project from page 63 of the file '2025-07-22 - Urban Design Brief - D07-12-25-0010'
  • Construction site plan for project from page 24 of the file '2025-10-30 - Urban Design Brief - D07-12-25-0010'
  • Construction site plan for project from page 61 of the file '2025-07-22 - Urban Design Brief - D07-12-25-0010'
  • Construction site plan for project from page 59 of the file '2025-07-22 - Urban Design Brief - D07-12-25-0010'
  • Construction site plan for project from page 65 of the file '2025-07-22 - UDRP Report - D07-12-25-0010'
  • Construction site plan for project from page 63 of the file '2025-07-22 - UDRP Report - D07-12-25-0010'
  • Construction site plan for project from page 24 of the file '2025-07-22 - Urban Design Brief - D07-12-25-0010'
  • Construction site plan for project from page 62 of the file '2025-07-22 - Urban Design Brief - D07-12-25-0010'
  • Construction site plan for project from page 44 of the file '2025-07-22 - UDRP Report - D07-12-25-0010'
  • Construction site plan for project from page 99 of the file '2025-07-22 - UDRP Report - D07-12-25-0010'
  • Construction site plan for project from page 93 of the file '2025-07-22 - UDRP Report - D07-12-25-0010'
  • Construction site plan for project from page 94 of the file '2025-07-22 - UDRP Report - D07-12-25-0010'
  • Construction site plan for project from page 94 of the file '2025-07-22 - UDRP Report - D07-12-25-0010'
  • Construction site plan for project from page 93 of the file '2025-07-22 - UDRP Report - D07-12-25-0010'
  • Construction site plan for project from page 74 of the file '2025-07-22 - UDRP Report - D07-12-25-0010'
  • Construction site plan for project from page 19 of the file '2025-10-30 - Urban Design Brief - D07-12-25-0010'
  • Construction site plan for project from page 99 of the file '2025-07-22 - UDRP Report - D07-12-25-0010'

Documents#

TypeDocument
Application Summary2025-12-04 - Application Summary - D07-12-25-0010
Architectural Plans2025-10-30 - Truck Turning Plan - D07-12-25-0010
Architectural Plans2025-10-30 - Architectural Plans - D07-12-25-0010
Architectural Plans2025-07-22 - Site Plan - D07-12-25-0010
Architectural Plans2025-07-22 - Preliminary Construction Management Plan - D07-12-25-0010
Architectural Plans2025-07-22 - Building Elevations South West - D07-12-25-0010
Architectural Plans2025-07-22 - Building Elevations North East - D07-12-25-0010
Architectural Plans2025-01-31 - PRELIMINARY CONSTRUCTION MANAGEMENT PLAN - D07-12-25-0010
Architectural Plans2025-01-31 - Building Elevations South-West - D07-12-25-0010
Architectural Plans2025-01-31 - Building Elevations North-East - D07-12-25-0010
Civil Engineering Report2025-07-22 - Civil Plans - D07-12-25-0010
Design Brief2025-10-30 - Urban Design Brief - D07-12-25-0010
Design Brief2025-07-22 - Urban Design Brief - D07-12-25-0010
Design Brief2025-07-22 - UDRP Report - D07-12-25-0010
Design Brief2025-01-31 - Urban Design Brief - D07-12-25-0010
Environmental2025-10-30 - Phase II ESA - D07-12-25-0010
Environmental2025-10-30 - Phase I ESA - D07-12-25-0010
Environmental2025-07-22 - Phase Two ESA - D07-12-25-0010
Environmental2025-07-22 - Phase One ESA - D07-12-25-0010
Geotechnical Report2025-10-30 - Grading & Drainage Plans - D07-12-25-0010
Geotechnical Report2025-10-30 - Geotechnical Subsoil Investigation Report - D07-12-25-0010
Geotechnical Report2025-07-22 - Grading & Drainage Plan - D07-12-25-0010
Geotechnical Report2025-07-22 - Geotechnical Study - D07-12-25-0010
Geotechnical Report2025-01-31 - Grading and Drainage Plan - D07-12-25-0010
Geotechnical Report2025-01-31 - Geotechnical Study - D07-12-25-0010
Landscape Plan2025-10-30 - Landscape Plan - D07-12-25-0010
Landscape Plan2025-10-30 - Landscape Details - D07-12-25-0010
Landscape Plan2025-07-22 - Landscape Plan - D07-12-25-0010
Landscape Plan2025-01-31 - LANSCAPE PLAN- D07-12-25-0010
Noise Study2025-07-22 - Traffic Noise Control Study - D07-12-25-0010
Noise Study2025-07-22 - Stationary Noise Assessment - D07-12-25-0010
Planning2025-07-22 - Zoning Confirmation Report - D07-12-25-0010
Site Servicing2025-07-22 - Site Servicing Study Plans - D07-12-25-0010
Site Servicing2025-01-31 - Site Servicing Study - D07-12-25-0010
Stormwater Management2025-10-30 - SWM and Serviceability Report - D07-12-25-0010
Stormwater Management2025-07-22 - Stormwater Management & Servicing Report - D07-12-25-0010
Surveying2025-07-22 - Surveying Report - D07-12-25-0010
Transportation Analysis2025-07-22 - TIA Final Report - D07-12-25-0010s
Transportation Analysis2025-01-31 - Transportation Impact Assessment - D07-12-25-0010
2025-07-22 - Cultural Heritage Evaluation Report - D07-12-25-0010
2025-01-31 - Heritage Acknowledgement Report - D07-12-25-0010