129 Main (D07-12-24-0154)

129 Main (D07-12-24-0154) #

Summary #

Application StatusInactive
Review StatusNotice of Decision Sent
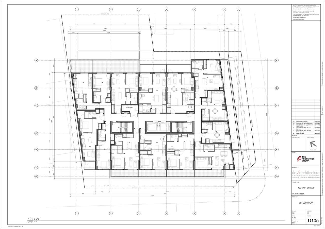
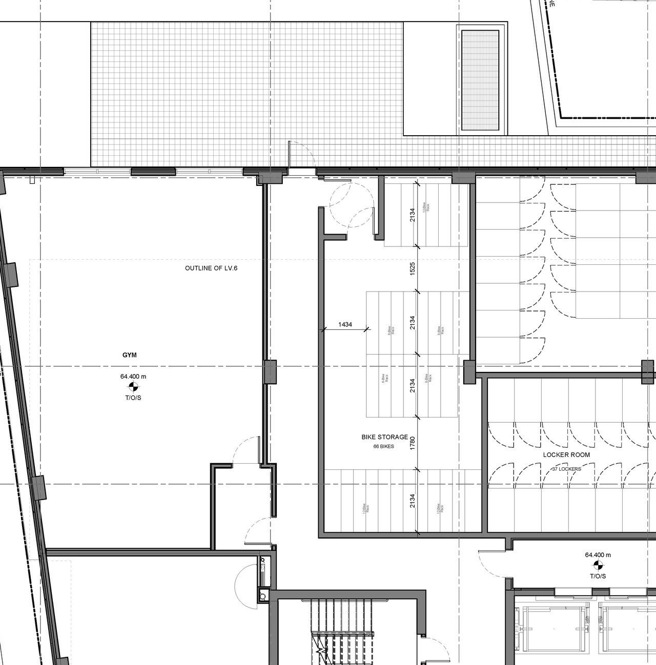
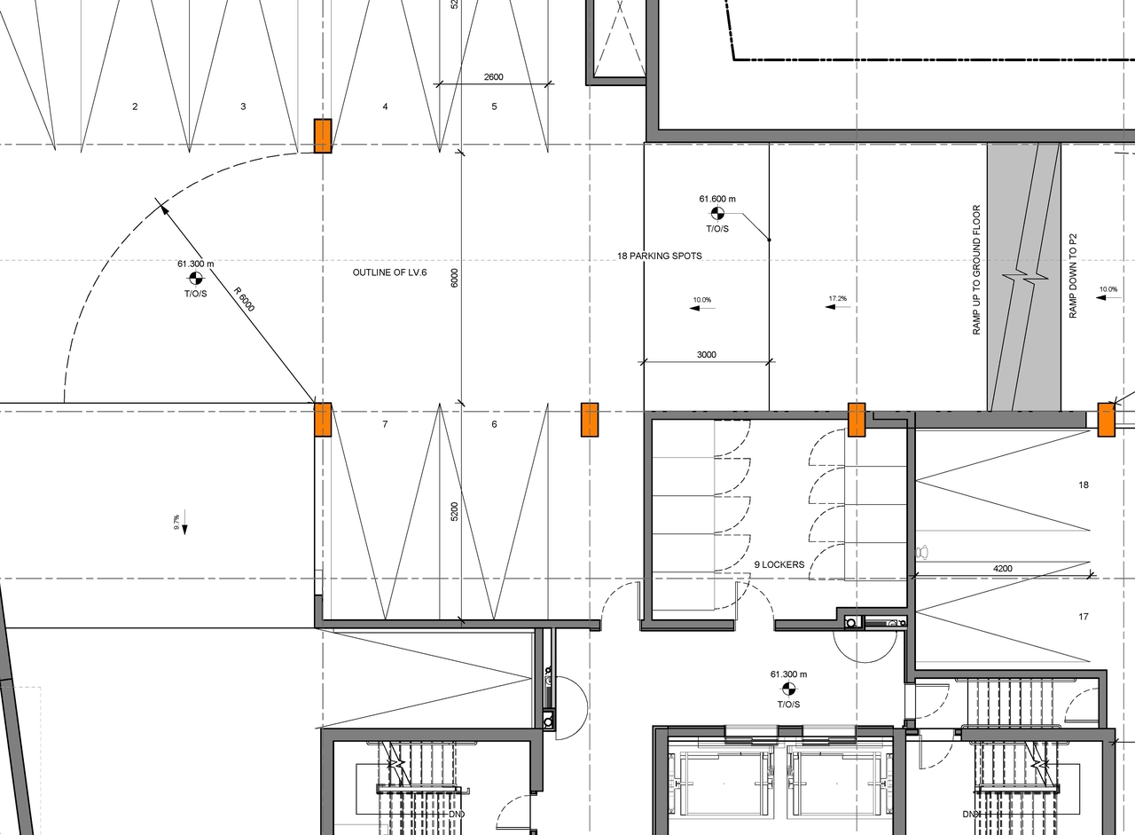
DescriptionThe proposed development is a six (6) storey mixed-use residential building with retail at grade. The proposed development features 58 dwelling units and 347.4m2 of retail GFA. The development also features 29 vehicular parking spaces in an underground parking garage and 62 bicycle parking spaces.
WardWard 17 - Shawn Menard
Date Initiated2024-11-26
Last Updated2025-11-21

Renders #

  • Rendering of building from page 28 of the file '2025-06-03 - Urban Design Brief - D07-12-24-0154'
  • Rendering of building from page 24 of the file '2025-06-03 - Urban Design Brief - D07-12-24-0154'
  • Rendering of building from page 8 of the file '2025-06-03 - Floor Plans & Elevations - D07-12-24-0154'
  • Rendering of building from page 1 of the file '2025-06-03 - Urban Design Brief - D07-12-24-0154'
  • Rendering of building from page 25 of the file '2025-06-03 - Urban Design Brief - D07-12-24-0154'
  • Rendering of building from page 18 of the file '2025-06-03 - Urban Design Brief - D07-12-24-0154'
  • Rendering of building from page 19 of the file '2025-06-03 - Urban Design Brief - D07-12-24-0154'
  • Rendering of building from page 23 of the file '2025-06-03 - Urban Design Brief - D07-12-24-0154'
  • Rendering of building from page 20 of the file '2025-06-03 - Urban Design Brief - D07-12-24-0154'
  • Rendering of building from page 28 of the file '2025-06-03 - Urban Design Brief - D07-12-24-0154'
  • Rendering of building from page 24 of the file '2025-06-03 - Urban Design Brief - D07-12-24-0154'
  • Rendering of building from page 8 of the file '2025-06-03 - Floor Plans & Elevations - D07-12-24-0154'
  • Rendering of building from page 1 of the file '2025-06-03 - Urban Design Brief - D07-12-24-0154'
  • Rendering of building from page 25 of the file '2025-06-03 - Urban Design Brief - D07-12-24-0154'
  • Rendering of building from page 18 of the file '2025-06-03 - Urban Design Brief - D07-12-24-0154'
  • Rendering of building from page 19 of the file '2025-06-03 - Urban Design Brief - D07-12-24-0154'
  • Rendering of building from page 23 of the file '2025-06-03 - Urban Design Brief - D07-12-24-0154'
  • Rendering of building from page 20 of the file '2025-06-03 - Urban Design Brief - D07-12-24-0154'

Site and Floor Plans #

  • Construction site plan for project from page 6 of the file '2025-06-03 - Urban Design Brief - D07-12-24-0154'
  • Construction site plan for project from page 7 of the file '2025-06-03 - Urban Design Brief - D07-12-24-0154'
  • Construction site plan for project from page 8 of the file '2025-06-03 - Urban Design Brief - D07-12-24-0154'
  • Construction site plan for project from page 9 of the file '2025-06-03 - Urban Design Brief - D07-12-24-0154'
  • Construction site plan for project from page 9 of the file '2025-06-03 - Urban Design Brief - D07-12-24-0154'
  • Construction site plan for project from page 10 of the file '2025-06-03 - Urban Design Brief - D07-12-24-0154'
  • Construction site plan for project from page 11 of the file '2025-06-03 - Urban Design Brief - D07-12-24-0154'
  • Construction site plan for project from page 16 of the file '2025-06-03 - Urban Design Brief - D07-12-24-0154'
  • Construction site plan for project from page 26 of the file '2025-06-03 - Urban Design Brief - D07-12-24-0154'
  • Construction site plan for project from page 27 of the file '2025-06-03 - Urban Design Brief - D07-12-24-0154'
  • Floor plan for project from page 6 of the file '2025-06-03 - Floor Plans & Elevations - D07-12-24-0154'
  • Construction site plan for project from page 1 of the file '2025-09-17 - Site Plan & Ground Floor Plan - D07-12-24-0154'
  • Floor plan for project from page 1 of the file '2025-10-17 - Floor Plan B5 - D07-12-24-0154'
  • Floor plan for project from page 1 of the file '2025-10-17 - Floor Plan B4 - D07-12-24-0154'
  • Floor plan for project from page 1 of the file '2025-10-17 - Floor Plan B2 - D07-12-24-0154'
  • Construction site plan for project from page 6 of the file '2025-06-03 - Urban Design Brief - D07-12-24-0154'
  • Construction site plan for project from page 7 of the file '2025-06-03 - Urban Design Brief - D07-12-24-0154'
  • Construction site plan for project from page 8 of the file '2025-06-03 - Urban Design Brief - D07-12-24-0154'
  • Construction site plan for project from page 9 of the file '2025-06-03 - Urban Design Brief - D07-12-24-0154'
  • Construction site plan for project from page 9 of the file '2025-06-03 - Urban Design Brief - D07-12-24-0154'
  • Construction site plan for project from page 10 of the file '2025-06-03 - Urban Design Brief - D07-12-24-0154'
  • Construction site plan for project from page 11 of the file '2025-06-03 - Urban Design Brief - D07-12-24-0154'
  • Construction site plan for project from page 16 of the file '2025-06-03 - Urban Design Brief - D07-12-24-0154'
  • Construction site plan for project from page 26 of the file '2025-06-03 - Urban Design Brief - D07-12-24-0154'
  • Construction site plan for project from page 27 of the file '2025-06-03 - Urban Design Brief - D07-12-24-0154'
  • Floor plan for project from page 6 of the file '2025-06-03 - Floor Plans & Elevations - D07-12-24-0154'
  • Construction site plan for project from page 1 of the file '2025-09-17 - Site Plan & Ground Floor Plan - D07-12-24-0154'
  • Floor plan for project from page 1 of the file '2025-10-17 - Floor Plan B5 - D07-12-24-0154'
  • Floor plan for project from page 1 of the file '2025-10-17 - Floor Plan B4 - D07-12-24-0154'
  • Floor plan for project from page 1 of the file '2025-10-17 - Floor Plan B2 - D07-12-24-0154'

Documents #

TypeDocument
Application Summary2025-07-31 - Application Summary - D07-12-24-0154
Architectural Plans2025-06-03 - Site Plan - D07-12-24-0154
Architectural Plans2024-12-09 - Site Plan - D07-12-24-0154
Architectural Plans2024-11-25 - Preliminary Construction Management Plan - D07-12-24-0154
Architectural Plans2024-11-25 - Elevations - D07-12-24-0154
Architectural Plans2025-10-17 - Site Plan - D07-12-24-0154
Architectural Plans2025-10-17 - Elevation Plan - D07-12-24-0154
Architectural Plans2025-11-20 - Approved Site Plan - D07-12-24-0154
Architectural Plans2025-11-20 - Approved Elevations - D07-12-24-0154
Architectural Plans2025-11-19 - Signed Site Plan Approval Report - D07-12-24-0154
Civil Engineering Report2025-06-03 - Civil Plans - D07-12-24-0154
Civil Engineering Report2024-11-25 - Civil Plans - D07-12-24-0154
Civil Engineering Report2025-09-17 - Civil Plans - D07-12-24-0154
Civil Engineering Report2025-10-17 - Civil Planset - D07-12-24-0154
Civil Engineering Report2025-11-20 - Approved Civil Plan Set - D07-12-24-0154
Design Brief2025-06-03 - Urban Design Brief - D07-12-24-0154
Environmental2024-11-25 - Phase I ESA Update - D07-12-24-0154
Floor Plan2025-06-03 - Floor Plans & Elevations - D07-12-24-0154
Floor Plan2025-09-17 - Site Plan & Ground Floor Plan - D07-12-24-0154
Floor Plan2025-10-17 - Floor Plan B6 - D07-12-24-0154
Floor Plan2025-10-17 - Floor Plan B5 - D07-12-24-0154
Floor Plan2025-10-17 - Floor Plan B4 - D07-12-24-0154
Floor Plan2025-10-17 - Floor Plan B3 - D07-12-24-0154
Floor Plan2025-10-17 - Floor Plan B2 - D07-12-24-0154
Floor Plan2025-10-17 - Floor Plan B1 - D07-12-24-0154
Geotechnical Report2025-06-03 - Geotechnical Investigation - D07-12-24-0154
Geotechnical Report2024-11-25 - Geotechnical Investigation - D07-12-24-0154
Geotechnical Report2025-09-17 - Grading & Drainage Plan - D07-12-24-0154
Landscape Plan2025-06-03 - Landscape Plan - D07-12-24-0154
Landscape Plan2024-11-25 - Landscape Plan - D07-12-24-0154
Landscape Plan2025-10-17 - Landscape Plan - D07-12-24-0154
Landscape Plan2025-11-20 - Approved Landscape Plan - D07-12-24-0154
Noise Study2024-12-09 - Traffic Noise Assessment - D07-12-24-0154
Noise Study2024-11-25 - Traffic Noise Addendum Letter - D07-12-24-0154
Planning2025-06-03 - Zoning Confirmation Report - D07-12-24-0154
Planning2024-11-25 - Zoning Confirmation Report - D07-12-24-0154
Planning2025-09-17 - Zoning Confirmation Report - D07-12-24-0154
Site Servicing2024-11-25 - Site Servicing & SWM Report - D07-12-24-0154
Stormwater Management2025-06-03 - SWM Report & Site Servicing Study - D07-12-24-0154
Stormwater Management2025-09-17 - Stormwater Management Report & Servicing Study - D07-12-24-0154
Surveying2024-12-09 - Survey Plan - D07-12-24-0154
Transportation Analysis2025-06-03 - Transportation Memo - D07-12-24-0154
Transportation Analysis2024-11-25 - Transportation Memo - D07-12-24-0154
Tree Information and Conservation2024-11-25 - Tree Conservation Report - D07-12-24-0154
2025-06-03 - Proposed Building Location Sketch - D07-12-24-0154
2025-06-03 - Cistern Schematic - D07-12-24-0154
2025-11-20 - Approved Cistern Schematic - D07-12-24-0154