570 March Rd. (D07-12-24-0149)

570 March Rd. (D07-12-24-0149) #

Summary #

Application StatusInactive
Review StatusNotice of Decision Sent
DescriptionA Site Plan Control application to facilitate the development of a new 55,110 square metre mixed-use campus comprising a new office and research and development building for Nokia Canada Inc. and retail fronting onto a new ‘Lifestyle Street’ that will connect March Road and Legget Drive.
WardWard 4 - Cathy Curry
Date Initiated2024-11-15
Last Updated2025-04-16

Renders #

  • Rendering of building from page 44 of the file '2025-01-10 - Design Brief - D07-12-24-0149'
  • Rendering of building from page 45 of the file '2024-11-15 - Design Brief - D07-12-24-0149'
  • Rendering of building from page 56 of the file '2024-11-15 - Design Brief - D07-12-24-0149'
  • Rendering of building from page 11 of the file '2024-11-15 - Design Brief - D07-12-24-0149'
  • Rendering of building from page 59 of the file '2024-11-15 - Design Brief - D07-12-24-0149'
  • Rendering of building from page 55 of the file '2024-11-15 - Design Brief - D07-12-24-0149'
  • Rendering of building from page 42 of the file '2024-11-15 - Design Brief - D07-12-24-0149'
  • Rendering of building from page 40 of the file '2024-11-15 - Design Brief - D07-12-24-0149'
  • Rendering of building from page 13 of the file '2024-11-15 - Design Brief - D07-12-24-0149'
  • Rendering of building from page 48 of the file '2024-11-15 - Design Brief - D07-12-24-0149'
  • Rendering of building from page 44 of the file '2024-11-15 - Design Brief - D07-12-24-0149'
  • Rendering of building from page 9 of the file '2024-11-15 - Design Brief - D07-12-24-0149'
  • Rendering of building from page 10 of the file '2024-11-15 - Design Brief - D07-12-24-0149'
  • Rendering of building from page 39 of the file '2024-11-15 - Design Brief - D07-12-24-0149'
  • Rendering of building from page 58 of the file '2024-11-15 - Design Brief - D07-12-24-0149'
  • Rendering of building from page 37 of the file '2024-11-15 - Design Brief - D07-12-24-0149'
  • Rendering of building from page 50 of the file '2024-11-15 - Design Brief - D07-12-24-0149'
  • Rendering of building from page 49 of the file '2024-11-15 - Design Brief - D07-12-24-0149'
  • Rendering of building from page 41 of the file '2024-11-15 - Design Brief - D07-12-24-0149'
  • Rendering of building from page 12 of the file '2024-11-15 - Design Brief - D07-12-24-0149'
  • Rendering of building from page 72 of the file '2024-11-15 - Design Brief - D07-12-24-0149'
  • Rendering of building from page 70 of the file '2024-11-15 - Design Brief - D07-12-24-0149'
  • Rendering of building from page 44 of the file '2025-01-10 - Design Brief - D07-12-24-0149'
  • Rendering of building from page 45 of the file '2024-11-15 - Design Brief - D07-12-24-0149'
  • Rendering of building from page 56 of the file '2024-11-15 - Design Brief - D07-12-24-0149'
  • Rendering of building from page 11 of the file '2024-11-15 - Design Brief - D07-12-24-0149'
  • Rendering of building from page 59 of the file '2024-11-15 - Design Brief - D07-12-24-0149'
  • Rendering of building from page 55 of the file '2024-11-15 - Design Brief - D07-12-24-0149'
  • Rendering of building from page 42 of the file '2024-11-15 - Design Brief - D07-12-24-0149'
  • Rendering of building from page 40 of the file '2024-11-15 - Design Brief - D07-12-24-0149'
  • Rendering of building from page 13 of the file '2024-11-15 - Design Brief - D07-12-24-0149'
  • Rendering of building from page 48 of the file '2024-11-15 - Design Brief - D07-12-24-0149'
  • Rendering of building from page 44 of the file '2024-11-15 - Design Brief - D07-12-24-0149'
  • Rendering of building from page 9 of the file '2024-11-15 - Design Brief - D07-12-24-0149'
  • Rendering of building from page 10 of the file '2024-11-15 - Design Brief - D07-12-24-0149'
  • Rendering of building from page 39 of the file '2024-11-15 - Design Brief - D07-12-24-0149'
  • Rendering of building from page 58 of the file '2024-11-15 - Design Brief - D07-12-24-0149'
  • Rendering of building from page 37 of the file '2024-11-15 - Design Brief - D07-12-24-0149'
  • Rendering of building from page 50 of the file '2024-11-15 - Design Brief - D07-12-24-0149'
  • Rendering of building from page 49 of the file '2024-11-15 - Design Brief - D07-12-24-0149'
  • Rendering of building from page 41 of the file '2024-11-15 - Design Brief - D07-12-24-0149'
  • Rendering of building from page 12 of the file '2024-11-15 - Design Brief - D07-12-24-0149'
  • Rendering of building from page 72 of the file '2024-11-15 - Design Brief - D07-12-24-0149'
  • Rendering of building from page 70 of the file '2024-11-15 - Design Brief - D07-12-24-0149'

Site and Floor Plans #

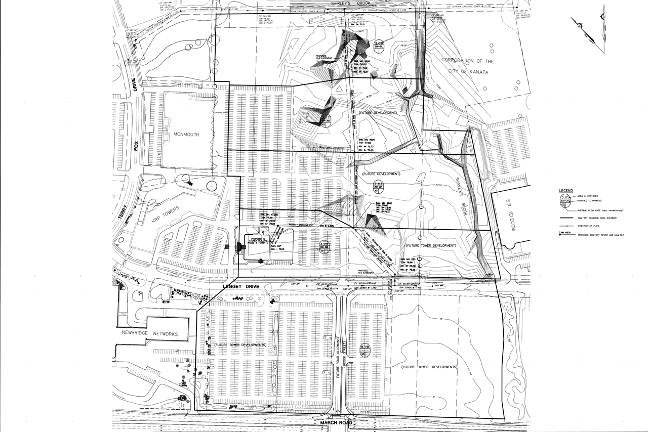
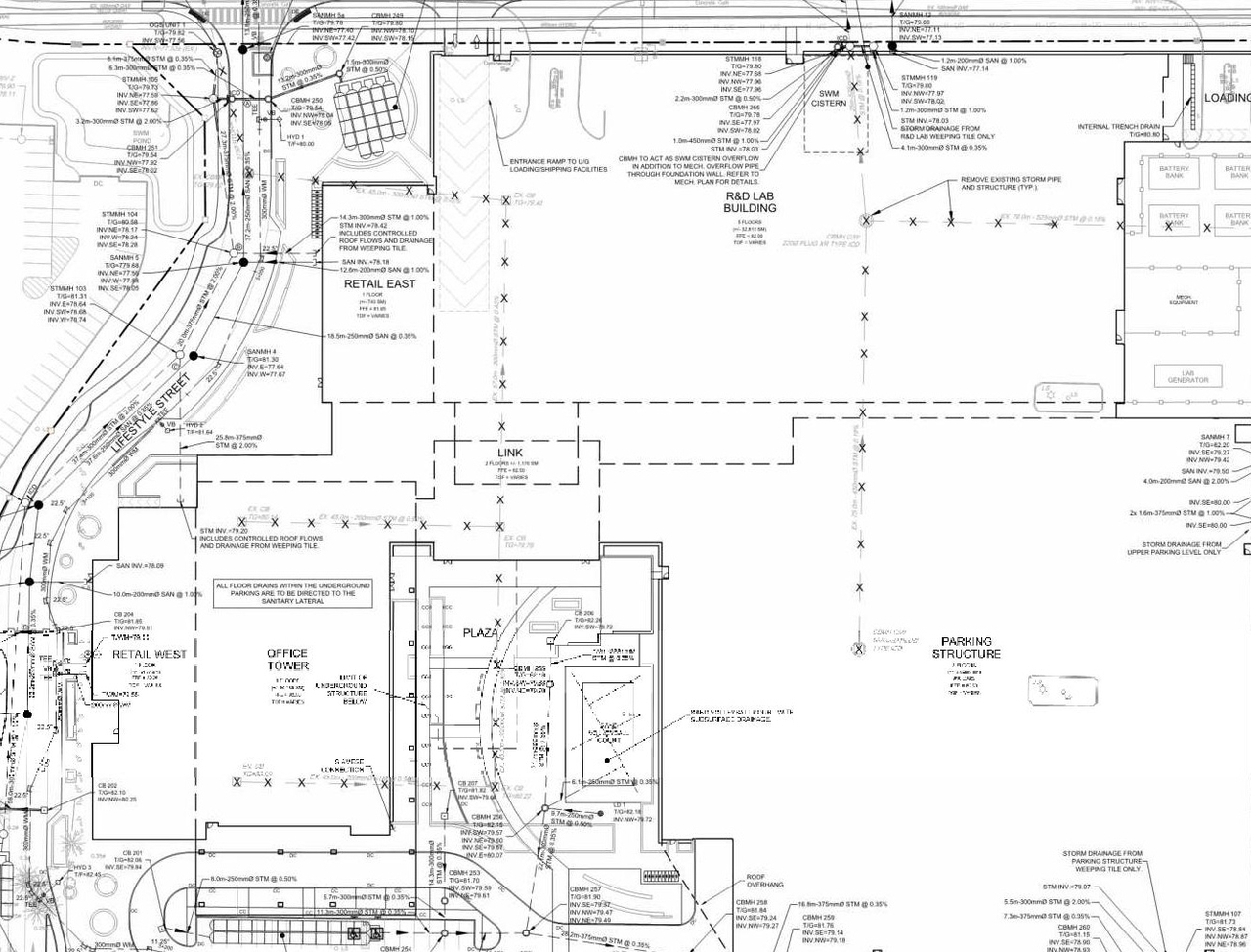
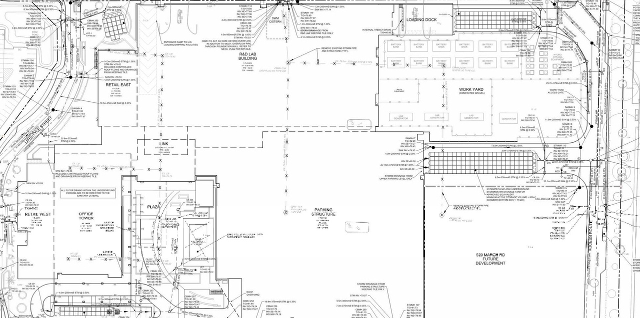
  • Construction site plan for project from page 53 of the file '2024-11-15 - Sanitary and Storm Trunk Sewer Design Brief - D07-12-24-0149'
  • Construction site plan for project from page 54 of the file '2024-11-15 - Sanitary and Storm Trunk Sewer Design Brief - D07-12-24-0149'
  • Construction site plan for project from page 57 of the file '2024-11-15 - Sanitary and Storm Trunk Sewer Design Brief - D07-12-24-0149'
  • Construction site plan for project from page 58 of the file '2024-11-15 - Sanitary and Storm Trunk Sewer Design Brief - D07-12-24-0149'
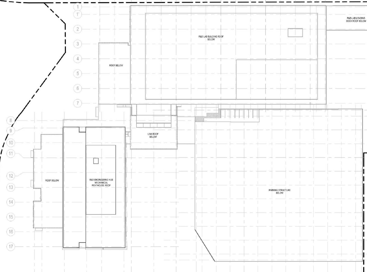
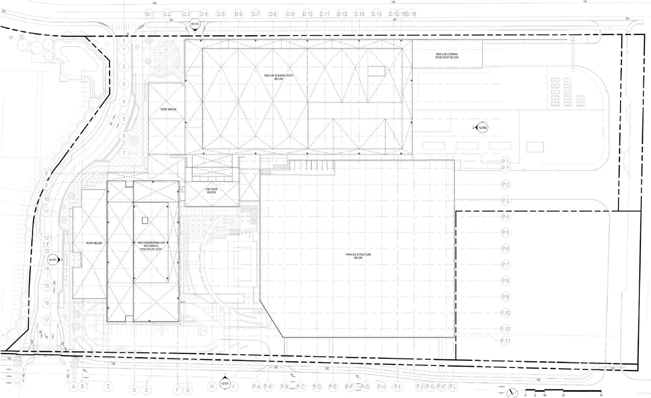
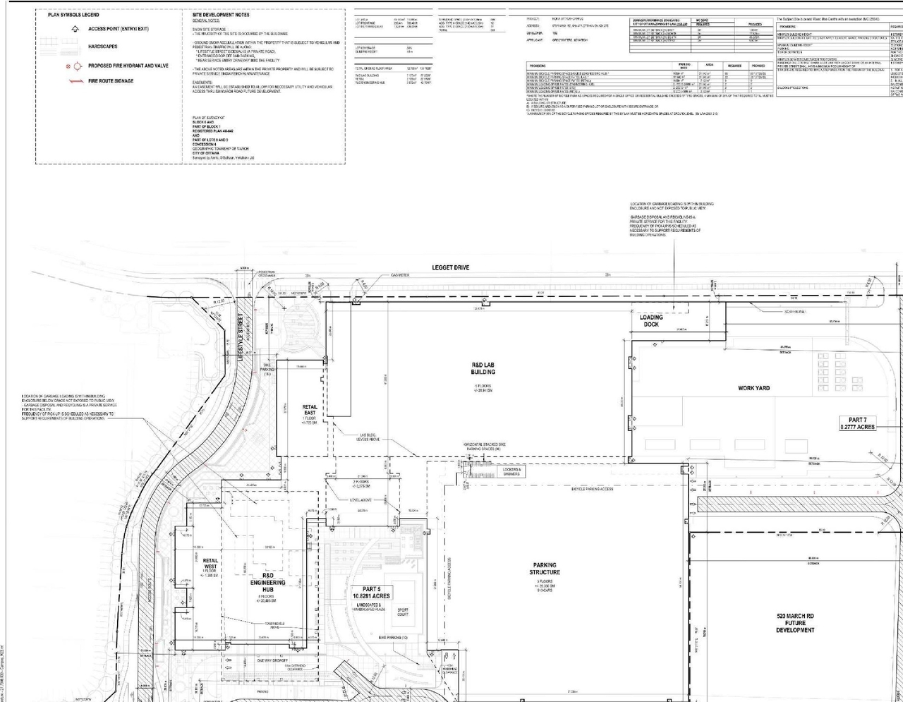
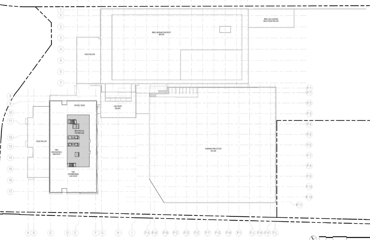
  • Construction site plan for project from page 8 of the file '2024-11-15 - Design Brief - D07-12-24-0149'
  • Construction site plan for project from page 19 of the file '2024-11-15 - Design Brief - D07-12-24-0149'
  • Construction site plan for project from page 22 of the file '2024-11-15 - Design Brief - D07-12-24-0149'
  • Construction site plan for project from page 24 of the file '2024-11-15 - Design Brief - D07-12-24-0149'
  • Construction site plan for project from page 24 of the file '2024-11-15 - Design Brief - D07-12-24-0149'
  • Construction site plan for project from page 24 of the file '2024-11-15 - Design Brief - D07-12-24-0149'
  • Construction site plan for project from page 25 of the file '2024-11-15 - Design Brief - D07-12-24-0149'
  • Construction site plan for project from page 27 of the file '2024-11-15 - Design Brief - D07-12-24-0149'
  • Construction site plan for project from page 29 of the file '2024-11-15 - Design Brief - D07-12-24-0149'
  • Construction site plan for project from page 32 of the file '2024-11-15 - Design Brief - D07-12-24-0149'
  • Construction site plan for project from page 32 of the file '2024-11-15 - Design Brief - D07-12-24-0149'
  • Construction site plan for project from page 32 of the file '2024-11-15 - Design Brief - D07-12-24-0149'
  • Construction site plan for project from page 32 of the file '2024-11-15 - Design Brief - D07-12-24-0149'
  • Construction site plan for project from page 33 of the file '2024-11-15 - Design Brief - D07-12-24-0149'
  • Construction site plan for project from page 34 of the file '2024-11-15 - Design Brief - D07-12-24-0149'
  • Construction site plan for project from page 34 of the file '2024-11-15 - Design Brief - D07-12-24-0149'
  • Construction site plan for project from page 34 of the file '2024-11-15 - Design Brief - D07-12-24-0149'
  • Construction site plan for project from page 36 of the file '2024-11-15 - Design Brief - D07-12-24-0149'
  • Construction site plan for project from page 43 of the file '2024-11-15 - Design Brief - D07-12-24-0149'
  • Construction site plan for project from page 52 of the file '2024-11-15 - Design Brief - D07-12-24-0149'
  • Construction site plan for project from page 73 of the file '2024-11-15 - Design Brief - D07-12-24-0149'
  • Construction site plan for project from page 74 of the file '2024-11-15 - Design Brief - D07-12-24-0149'
  • Construction site plan for project from page 79 of the file '2024-11-15 - Design Brief - D07-12-24-0149'
  • Construction site plan for project from page 81 of the file '2024-11-15 - Design Brief - D07-12-24-0149'
  • Construction site plan for project from page 82 of the file '2024-11-15 - Design Brief - D07-12-24-0149'
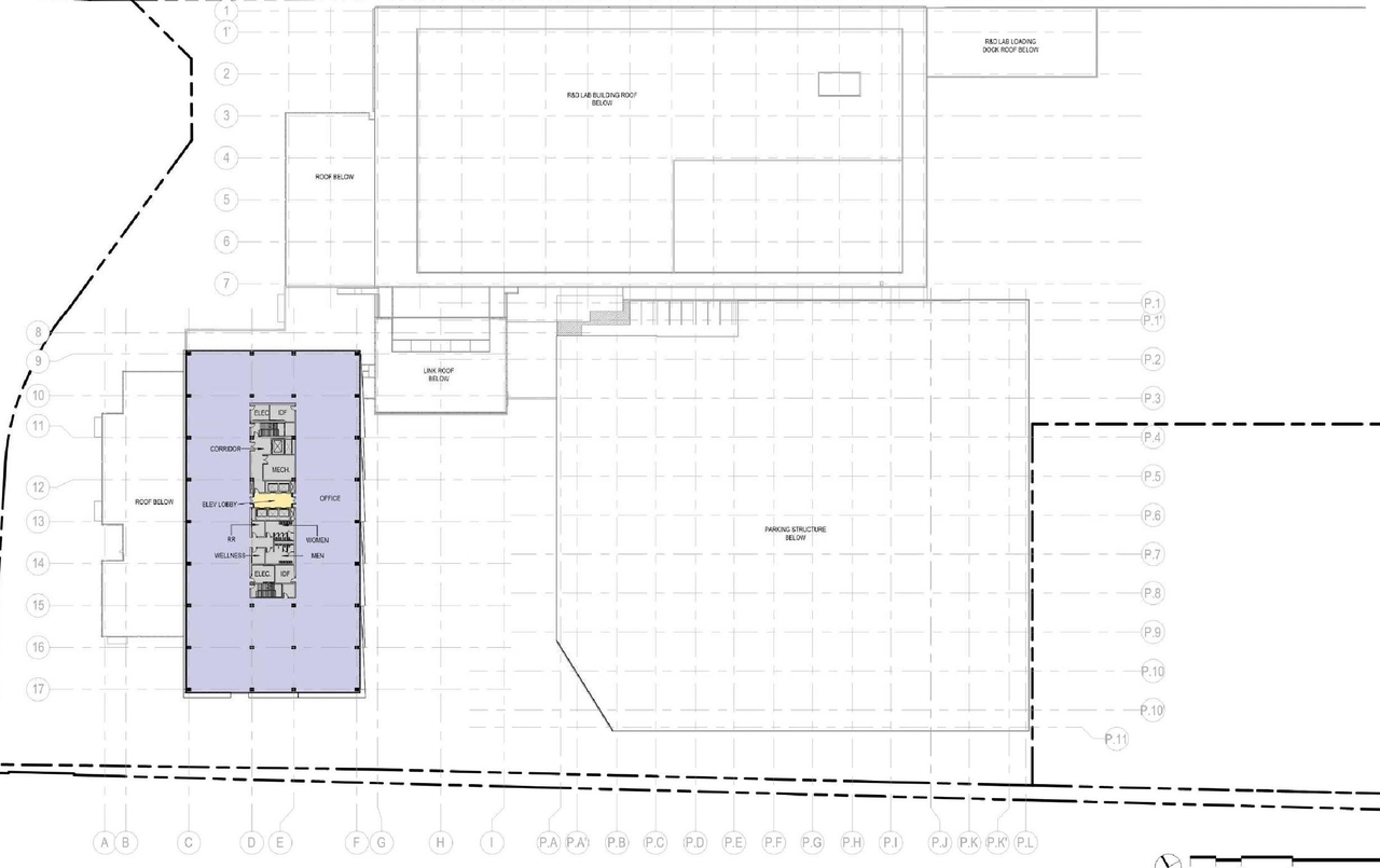
  • Floor plan for project from page 82 of the file '2024-11-15 - Design Brief - D07-12-24-0149'
  • Floor plan for project from page 84 of the file '2024-11-15 - Design Brief - D07-12-24-0149'
  • Floor plan for project from page 85 of the file '2024-11-15 - Design Brief - D07-12-24-0149'
  • Floor plan for project from page 86 of the file '2024-11-15 - Design Brief - D07-12-24-0149'
  • Construction site plan for project from page 87 of the file '2024-11-15 - Design Brief - D07-12-24-0149'
  • Construction site plan for project from page 87 of the file '2024-11-15 - Design Brief - D07-12-24-0149'
  • Construction site plan for project from page 87 of the file '2024-11-15 - Design Brief - D07-12-24-0149'
  • Construction site plan for project from page 90 of the file '2024-11-15 - Design Brief - D07-12-24-0149'
  • Construction site plan for project from page 90 of the file '2024-11-15 - Design Brief - D07-12-24-0149'
  • Construction site plan for project from page 90 of the file '2024-11-15 - Design Brief - D07-12-24-0149'
  • Construction site plan for project from page 56 of the file '2025-01-10 - Sanitary and Storm Trunk Sewer Design Brief - D07-12-24-0149'
  • Construction site plan for project from page 45 of the file '2025-01-10 - Design Brief - D07-12-24-0149'
  • Construction site plan for project from page 46 of the file '2025-01-10 - Design Brief - D07-12-24-0149'
  • Construction site plan for project from page 79 of the file '2025-01-10 - Design Brief - D07-12-24-0149'
  • Construction site plan for project from page 88 of the file '2025-01-10 - Design Brief - D07-12-24-0149'
  • Floor plan for project from page 96 of the file '2025-01-10 - Design Brief - D07-12-24-0149'
  • Floor plan for project from page 97 of the file '2025-01-10 - Design Brief - D07-12-24-0149'
  • Construction site plan for project from page 102 of the file '2025-01-10 - Design Brief - D07-12-24-0149'
  • Construction site plan for project from page 55 of the file '2025-08-08 - Sanitary and Storm Trunk Sewer Design Brief - D07-12-24-0149'
  • Construction site plan for project from page 56 of the file '2025-08-08 - Sanitary and Storm Trunk Sewer Design Brief - D07-12-24-0149'
  • Construction site plan for project from page 58 of the file '2025-08-08 - Sanitary and Storm Trunk Sewer Design Brief - D07-12-24-0149'
  • Construction site plan for project from page 61 of the file '2025-08-08 - Sanitary and Storm Trunk Sewer Design Brief - D07-12-24-0149'
  • Construction site plan for project from page 56 of the file '2025-10-06 - Sanitary and Storm Truck Sewer Design Brief - D07-12-25-0149.pdf'
  • Construction site plan for project from page 53 of the file '2024-11-15 - Sanitary and Storm Trunk Sewer Design Brief - D07-12-24-0149'
  • Construction site plan for project from page 54 of the file '2024-11-15 - Sanitary and Storm Trunk Sewer Design Brief - D07-12-24-0149'
  • Construction site plan for project from page 57 of the file '2024-11-15 - Sanitary and Storm Trunk Sewer Design Brief - D07-12-24-0149'
  • Construction site plan for project from page 58 of the file '2024-11-15 - Sanitary and Storm Trunk Sewer Design Brief - D07-12-24-0149'
  • Construction site plan for project from page 8 of the file '2024-11-15 - Design Brief - D07-12-24-0149'
  • Construction site plan for project from page 19 of the file '2024-11-15 - Design Brief - D07-12-24-0149'
  • Construction site plan for project from page 22 of the file '2024-11-15 - Design Brief - D07-12-24-0149'
  • Construction site plan for project from page 24 of the file '2024-11-15 - Design Brief - D07-12-24-0149'
  • Construction site plan for project from page 24 of the file '2024-11-15 - Design Brief - D07-12-24-0149'
  • Construction site plan for project from page 24 of the file '2024-11-15 - Design Brief - D07-12-24-0149'
  • Construction site plan for project from page 25 of the file '2024-11-15 - Design Brief - D07-12-24-0149'
  • Construction site plan for project from page 27 of the file '2024-11-15 - Design Brief - D07-12-24-0149'
  • Construction site plan for project from page 29 of the file '2024-11-15 - Design Brief - D07-12-24-0149'
  • Construction site plan for project from page 32 of the file '2024-11-15 - Design Brief - D07-12-24-0149'
  • Construction site plan for project from page 32 of the file '2024-11-15 - Design Brief - D07-12-24-0149'
  • Construction site plan for project from page 32 of the file '2024-11-15 - Design Brief - D07-12-24-0149'
  • Construction site plan for project from page 32 of the file '2024-11-15 - Design Brief - D07-12-24-0149'
  • Construction site plan for project from page 33 of the file '2024-11-15 - Design Brief - D07-12-24-0149'
  • Construction site plan for project from page 34 of the file '2024-11-15 - Design Brief - D07-12-24-0149'
  • Construction site plan for project from page 34 of the file '2024-11-15 - Design Brief - D07-12-24-0149'
  • Construction site plan for project from page 34 of the file '2024-11-15 - Design Brief - D07-12-24-0149'
  • Construction site plan for project from page 36 of the file '2024-11-15 - Design Brief - D07-12-24-0149'
  • Construction site plan for project from page 43 of the file '2024-11-15 - Design Brief - D07-12-24-0149'
  • Construction site plan for project from page 52 of the file '2024-11-15 - Design Brief - D07-12-24-0149'
  • Construction site plan for project from page 73 of the file '2024-11-15 - Design Brief - D07-12-24-0149'
  • Construction site plan for project from page 74 of the file '2024-11-15 - Design Brief - D07-12-24-0149'
  • Construction site plan for project from page 79 of the file '2024-11-15 - Design Brief - D07-12-24-0149'
  • Construction site plan for project from page 81 of the file '2024-11-15 - Design Brief - D07-12-24-0149'
  • Construction site plan for project from page 82 of the file '2024-11-15 - Design Brief - D07-12-24-0149'
  • Floor plan for project from page 82 of the file '2024-11-15 - Design Brief - D07-12-24-0149'
  • Floor plan for project from page 84 of the file '2024-11-15 - Design Brief - D07-12-24-0149'
  • Floor plan for project from page 85 of the file '2024-11-15 - Design Brief - D07-12-24-0149'
  • Floor plan for project from page 86 of the file '2024-11-15 - Design Brief - D07-12-24-0149'
  • Construction site plan for project from page 87 of the file '2024-11-15 - Design Brief - D07-12-24-0149'
  • Construction site plan for project from page 87 of the file '2024-11-15 - Design Brief - D07-12-24-0149'
  • Construction site plan for project from page 87 of the file '2024-11-15 - Design Brief - D07-12-24-0149'
  • Construction site plan for project from page 90 of the file '2024-11-15 - Design Brief - D07-12-24-0149'
  • Construction site plan for project from page 90 of the file '2024-11-15 - Design Brief - D07-12-24-0149'
  • Construction site plan for project from page 90 of the file '2024-11-15 - Design Brief - D07-12-24-0149'
  • Construction site plan for project from page 56 of the file '2025-01-10 - Sanitary and Storm Trunk Sewer Design Brief - D07-12-24-0149'
  • Construction site plan for project from page 45 of the file '2025-01-10 - Design Brief - D07-12-24-0149'
  • Construction site plan for project from page 46 of the file '2025-01-10 - Design Brief - D07-12-24-0149'
  • Construction site plan for project from page 79 of the file '2025-01-10 - Design Brief - D07-12-24-0149'
  • Construction site plan for project from page 88 of the file '2025-01-10 - Design Brief - D07-12-24-0149'
  • Floor plan for project from page 96 of the file '2025-01-10 - Design Brief - D07-12-24-0149'
  • Floor plan for project from page 97 of the file '2025-01-10 - Design Brief - D07-12-24-0149'
  • Construction site plan for project from page 102 of the file '2025-01-10 - Design Brief - D07-12-24-0149'
  • Construction site plan for project from page 55 of the file '2025-08-08 - Sanitary and Storm Trunk Sewer Design Brief - D07-12-24-0149'
  • Construction site plan for project from page 56 of the file '2025-08-08 - Sanitary and Storm Trunk Sewer Design Brief - D07-12-24-0149'
  • Construction site plan for project from page 58 of the file '2025-08-08 - Sanitary and Storm Trunk Sewer Design Brief - D07-12-24-0149'
  • Construction site plan for project from page 61 of the file '2025-08-08 - Sanitary and Storm Trunk Sewer Design Brief - D07-12-24-0149'
  • Construction site plan for project from page 56 of the file '2025-10-06 - Sanitary and Storm Truck Sewer Design Brief - D07-12-25-0149.pdf'

Documents #

TypeDocument
Application Summary2024-11-25 - Application Summary - D07-12-24-0149
Architectural Plans2024-11-15 - West Elevation - D07-12-24-0149
Architectural Plans2024-11-15 - South Elevation - D07-12-24-0149
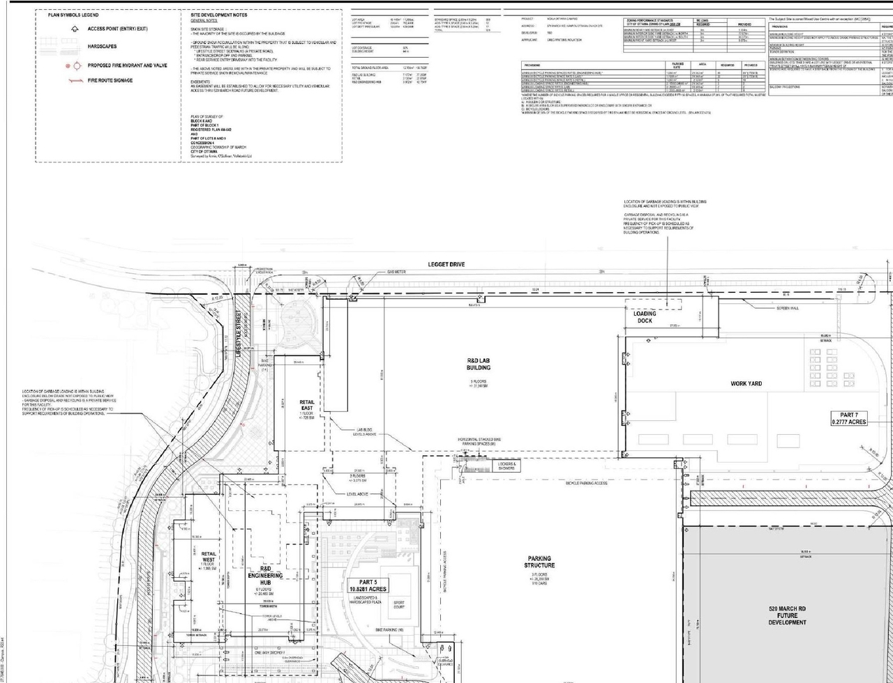
Architectural Plans2024-11-15 - Site Plan - D07-12-24-0149
Architectural Plans2024-11-15 - North Elevation - D07-12-24-0149
Architectural Plans2024-11-15 - East Elevation - D07-12-24-0149
Architectural Plans2025-01-10 -Site Plan - D07-12-24-0149
Architectural Plans2025-02-14 - West Elevations - D07-12-24-0149
Architectural Plans2025-02-14 - South Elevations - D07-12-24-0149
Architectural Plans2025-02-14 - North Elevations - D07-12-24-0149
Architectural Plans2025-02-14 - East Elevations - D07-12-24-0149
Architectural Plans2025-02-10 - Site Plan - D07-12-24-0149
Architectural Plans2025-04-16 - Approved Site Plan Approval Report - D07-12-24-0149
Architectural Plans2025-08-08 - Overall Building Elevations B- D07-12-25-0149
Architectural Plans2025-08-08 - Overall Building Elevations A - D07-12-25-0149
Architectural Plans2025-08-08 - Construction Plan - Office Level - D07-12-25-0149
Architectural Plans2025-08-08 - Construction Plan - Below Grade - D07-12-25-0149
Architectural Plans2025-08-08 - Architectural Site Plan - D07-12-25-0149
Architectural Plans2025-10-06 - Architectural Site Plan - D07-12-25-0149
Civil Engineering Report2024-11-15 - Civil Package - D07-12-24-0149
Civil Engineering Report2025-01-10 - Civil Package - D07-12-24-0149
Civil Engineering Report2025-02-10 - Civil Package - D07-12-24-0149
Civil Engineering Report2025-08-08 - Civil Package - D07-12-25-0149
Civil Engineering Report2025-10-06 - Civil Package - D07-12-25-0149
Civil Engineering Report2025-10-27 - Civil Package - D07-12-25-0149
Design Brief2024-11-15 - Sanitary and Storm Trunk Sewer Design Brief - D07-12-24-0149
Design Brief2024-11-15 - Design Brief - D07-12-24-0149
Design Brief2025-01-10 - Sanitary and Storm Trunk Sewer Design Brief - D07-12-24-0149
Design Brief2025-01-10 - Design Brief - D07-12-24-0149
Design Brief2025-02-10 - Sanitary and Storm Trunk Sewer Design Brief - D07-12-24-0149
Design Brief2025-02-10 - Design Brief - D07-12-24-0149
Design Brief2025-08-08 - Sanitary and Storm Trunk Sewer Design Brief - D07-12-24-0149
Design Brief2025-10-06 - Sanitary and Storm Truck Sewer Design Brief - D07-12-25-0149.pdf
Design Brief2025-10-27 - Sanitary and Storm Truck Sewer Design Brief - D07-12-25-0149.pdf
Electrical Plan2024-11-15 - Lighting Simulation - D07-12-24-0149
Electrical Plan2024-11-15 - Lighting Compliance Letter - D07-12-24-0149
Electrical Plan2025-01-10 -Lighting Simulation Plan - D07-12-24-0149
Electrical Plan2025-02-10 - Lighting Simulation Plan - D07-12-24-0149
Electrical Plan2025-04-16 - Approved Lighting Simulation Plan - D07-12-24-0149
Electrical Plan2025-08-08 - Lighting Simulation Plan - D07-12-24-0149
Environmental2024-11-15 - Phase One ESA - D07-12-24-0149
Environmental2024-11-15 - Environmental Assessment - D07-12-24-0149
Environmental2024-11-25 - Phase One ESA - D07-12-24-0149
Environmental2025-01-10 - Environmental Assessment - D07-12-24-0149
Environmental2025-02-10 - Environmental Assessment - D07-12-24-0149
Environmental2025-04-16 - Approved Environmental Assessment - D07-12-24-0149
Environmental2025-10-06 - Phase One Environmental Site Assessment - D07-12-25-0149
Geotechnical Report2024-11-15 - Groundwater Sampling Activities - D07-12-24-0149
Geotechnical Report2024-11-15 - Geotechnical Investigation and Hydrogeological Assessment - D07-12-24-0149
Geotechnical Report2025-01-10 - Geotechnical Investigation and Hydrogeological Investigation - D07-12-24-0149
Geotechnical Report2025-02-14 - Geotechnical Investigation and Hydrogeological Investigation - D07-12-24-0149
Geotechnical Report2025-08-08 - Subsurface Investigation Report Proposed Watermain - D07-12-24-0149
Geotechnical Report2025-08-08 - Soil Quaity Report - D07-12-24-0149
Geotechnical Report2025-08-08 - Geotechnical Investigation Proposed Sanitary Sewer - D07-12-24-0149
Geotechnical Report2025-08-08 - Geotechnical Investigation and Hydrogeological Assessment - D07-12-25-0149
Geotechnical Report2025-08-08 - Geotechnical Design Report Proposed Watermain - D07-12-24-0149
Geotechnical Report2025-10-06 - Subsurface Investigation Report Proposed Watermain - D07-12-24-0149
Geotechnical Report2025-10-06 - Soil Quality Report (Proposed Sanitary Sewer) - D07-12-24-0149
Geotechnical Report2025-10-06 - Soil Quality Report (Municipal Watermain Investigation) - D07-12-24-0149
Geotechnical Report2025-10-06 - Geotechnical Investigation Proposed Sanitary Sewer - D07-12-24-0149
Geotechnical Report2025-10-06 - Geotechnical Investigation and Hydrogeological Assessment - D07-12-25-0149
Geotechnical Report2025-10-06 - Geotechnical Design Report Proposed Watermain - D07-12-24-0149
Landscape Plan2024-11-15 - Landscape Plan - D07-12-24-0149
Landscape Plan2025-01-10 - Landscape Package - D07-12-24-0149
Landscape Plan2025-02-10 - Landscape Package - D07-12-24-0149
Landscape Plan2025-08-08 - Landscape Package - D07-12-24-0149
Landscape Plan2025-10-06 - Landscape Package - D07-12-25-0149
Landscape Plan2025-10-27 - Landscape Package - D07-12-25-0149
Noise Study2024-11-15 - Transportation Noise Assessment - D07-12-24-0149
Planning2024-11-15 - Zoning Confirmation Report - D07-12-24-0149
Planning2024-11-15 - Planning Rationale - D07-12-24-0149
Site Servicing2024-11-18 - Servicing Study and Stormwater Management Report - D07-12-24-0149
Site Servicing2025-01-10 - Servicing Study and Stormwater Management Report - D07-12-24-0149
Site Servicing2025-02-10 - Servicing Study and Stormwater Management Report - D07-12-24-0149
Site Servicing2025-08-08 - Servicing Study and Stormwater Management Report - D07-12-24-0149
Site Servicing2025-10-06 - Servicing Study and Stormwater Management Report - D07-12-24-0149
Site Servicing2025-10-27 - Servicing Study and Stormwater Management Report - D07-12-24-0149
Surveying2024-11-15 - Topographic Survery - D07-12-24-0149
Surveying2024-11-15 - Plan of Survey - D07-12-24-0149
Transportation Analysis2024-11-15 - Transportation Impact Assessment - D07-12-24-0149
Transportation Analysis2025-01-10 - Transportation Impact Assessment - D07-12-24-0149
Transportation Analysis2025-02-10 - Transportation Impact Assessment - D07-12-24-0149
Transportation Analysis2025-08-08 - Transportation Impact Assessment - D07-12-24-0149
Tree Information and Conservation2024-11-15 - Tree Conservation Report - D07-12-24-0149
Tree Information and Conservation2025-01-10 - Tree Conservation Plan - D07-12-24-0149
Tree Information and Conservation2025-02-10 - Tree Conservation Plan - D07-12-24-0149
Tree Information and Conservation2025-08-08 - Tree Conservation Plan - D07-12-24-0149
Tree Information and Conservation2025-10-06 - Tree Conservation Plan - D07-12-25-0149
Tree Information and Conservation2025-10-27 - Tree Conservation Plan - D07-12-25-0149
2024-11-15 - Reliance Letter for Geotech and Hydrog - D07-12-24-0149
2025-01-10 - Structual Flow Control Memo - D07-12-24-0149
2025-02-10 - Structual Flow Control Memo - D07-12-24-0149
2025-04-16 - APPROVED Delegated Authority Report - D07-12-24-0149
2025-08-08 - Municipal Watermain Investigation - D07-12-24-0149