535 Legget Dr. (D07-12-24-0123)

535 Legget Dr. (D07-12-24-0123) #

Summary #

Application StatusInactive
Review StatusNotice of Decision Sent
DescriptionOffice to Residential Conversion to 115 residential apartments with 400m2 ground floor office.
WardWard 4 - Cathy Curry
Date Initiated2024-10-09
Last Updated2025-07-29

Renders #

  • Rendering of building from page 16 of the file '2025-01-17 - Urban Design Brief - D07-12-24-0123'
  • Rendering of building from page 8 of the file '2025-01-17 - Urban Design Brief - D07-12-24-0123'
  • Rendering of building from page 8 of the file '2024-10-09 - URBAN DESIGN BRIEF BROCHURE - D07-12-24-0123'
  • Rendering of building from page 18 of the file '2025-01-17 - Urban Design Brief - D07-12-24-0123'
  • Rendering of building from page 18 of the file '2025-01-17 - Urban Design Brief - D07-12-24-0123'
  • Rendering of building from page 12 of the file '2025-01-17 - Urban Design Brief - D07-12-24-0123'
  • Rendering of building from page 12 of the file '2025-01-17 - Urban Design Brief - D07-12-24-0123'
  • Rendering of building from page 17 of the file '2025-01-17 - Urban Design Brief - D07-12-24-0123'
  • Rendering of building from page 11 of the file '2025-01-17 - Urban Design Brief - D07-12-24-0123'
  • Rendering of building from page 11 of the file '2025-01-17 - Urban Design Brief - D07-12-24-0123'
  • Rendering of building from page 11 of the file '2025-01-17 - Urban Design Brief - D07-12-24-0123'
  • Rendering of building from page 12 of the file '2025-01-17 - Urban Design Brief - D07-12-24-0123'
  • Rendering of building from page 14 of the file '2025-01-17 - Urban Design Brief - D07-12-24-0123'
  • Rendering of building from page 14 of the file '2024-10-09 - URBAN DESIGN BRIEF BROCHURE - D07-12-24-0123'
  • Rendering of building from page 11 of the file '2025-01-17 - Urban Design Brief - D07-12-24-0123'
  • Rendering of building from page 14 of the file '2025-01-17 - Urban Design Brief - D07-12-24-0123'
  • Rendering of building from page 14 of the file '2024-12-04 - URBAN DESIGN BRIEF BROCHURE - D07-12-24-0123'
  • Rendering of building from page 7 of the file '2025-01-17 - Urban Design Brief - D07-12-24-0123'
  • Rendering of building from page 16 of the file '2025-01-17 - Urban Design Brief - D07-12-24-0123'
  • Rendering of building from page 8 of the file '2025-01-17 - Urban Design Brief - D07-12-24-0123'
  • Rendering of building from page 8 of the file '2024-10-09 - URBAN DESIGN BRIEF BROCHURE - D07-12-24-0123'
  • Rendering of building from page 18 of the file '2025-01-17 - Urban Design Brief - D07-12-24-0123'
  • Rendering of building from page 18 of the file '2025-01-17 - Urban Design Brief - D07-12-24-0123'
  • Rendering of building from page 12 of the file '2025-01-17 - Urban Design Brief - D07-12-24-0123'
  • Rendering of building from page 12 of the file '2025-01-17 - Urban Design Brief - D07-12-24-0123'
  • Rendering of building from page 17 of the file '2025-01-17 - Urban Design Brief - D07-12-24-0123'
  • Rendering of building from page 11 of the file '2025-01-17 - Urban Design Brief - D07-12-24-0123'
  • Rendering of building from page 11 of the file '2025-01-17 - Urban Design Brief - D07-12-24-0123'
  • Rendering of building from page 11 of the file '2025-01-17 - Urban Design Brief - D07-12-24-0123'
  • Rendering of building from page 12 of the file '2025-01-17 - Urban Design Brief - D07-12-24-0123'
  • Rendering of building from page 14 of the file '2025-01-17 - Urban Design Brief - D07-12-24-0123'
  • Rendering of building from page 14 of the file '2024-10-09 - URBAN DESIGN BRIEF BROCHURE - D07-12-24-0123'
  • Rendering of building from page 11 of the file '2025-01-17 - Urban Design Brief - D07-12-24-0123'
  • Rendering of building from page 14 of the file '2025-01-17 - Urban Design Brief - D07-12-24-0123'
  • Rendering of building from page 14 of the file '2024-12-04 - URBAN DESIGN BRIEF BROCHURE - D07-12-24-0123'
  • Rendering of building from page 7 of the file '2025-01-17 - Urban Design Brief - D07-12-24-0123'

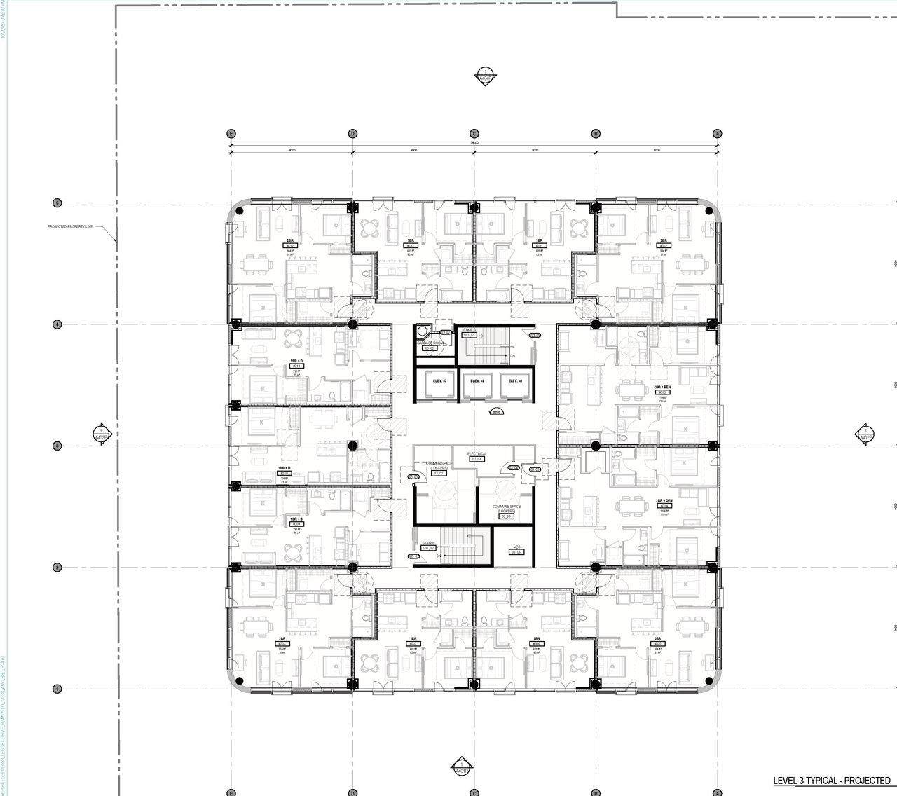
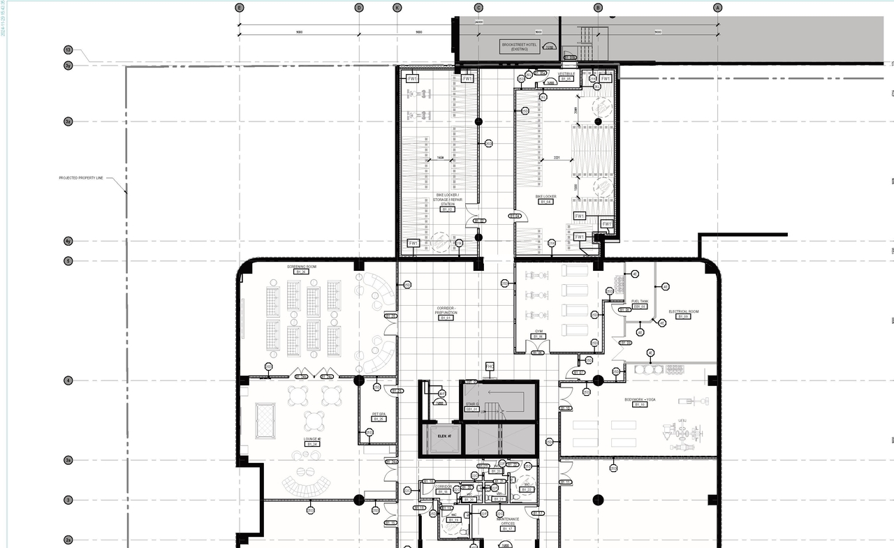
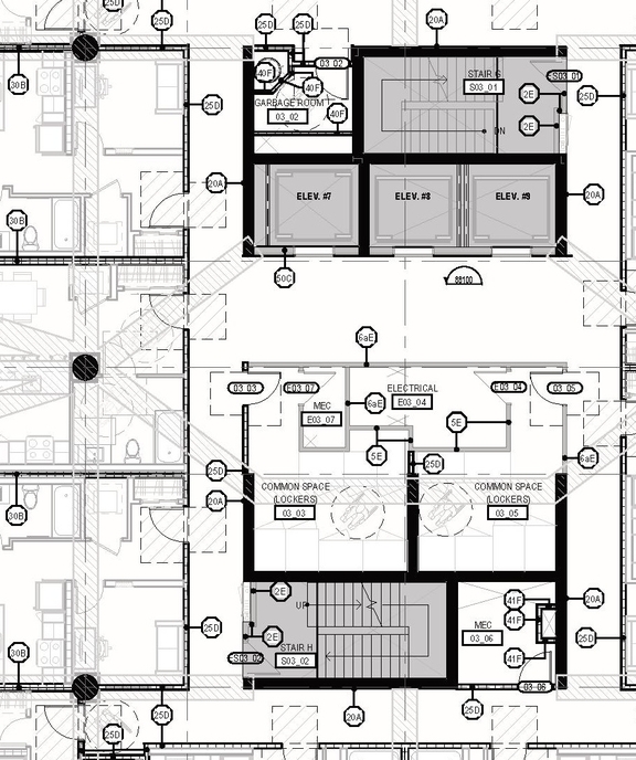
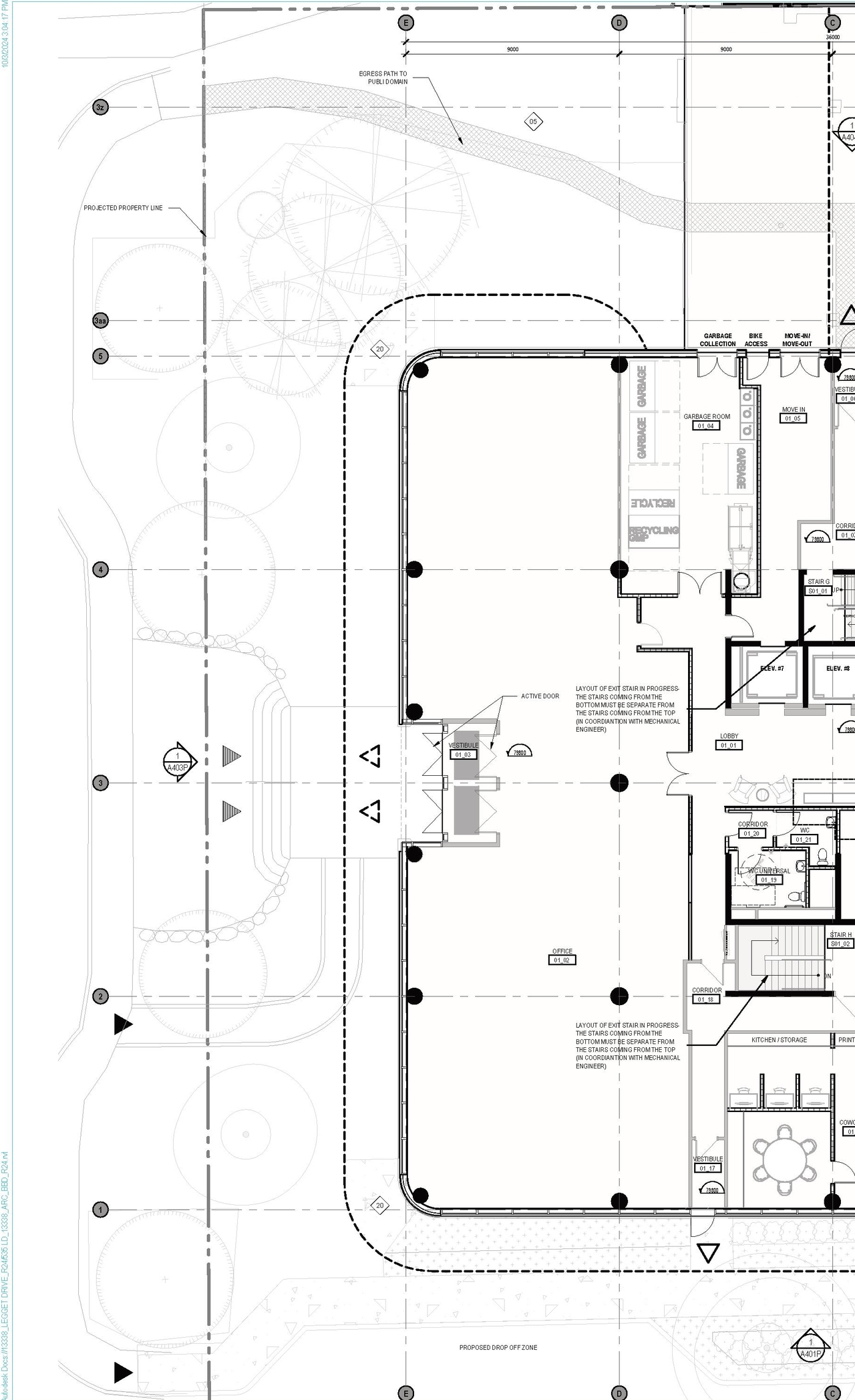
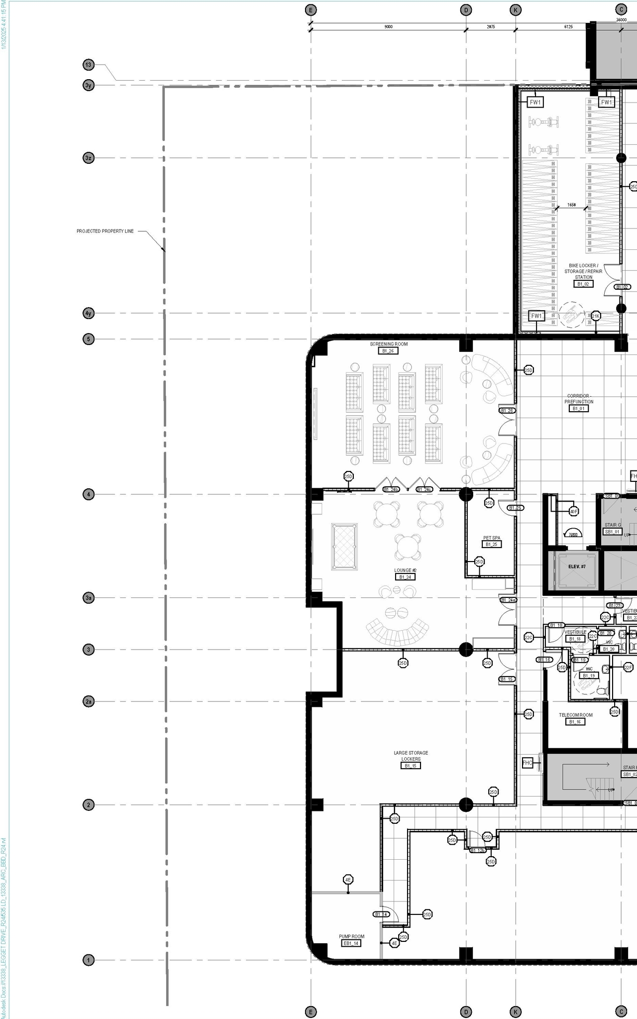
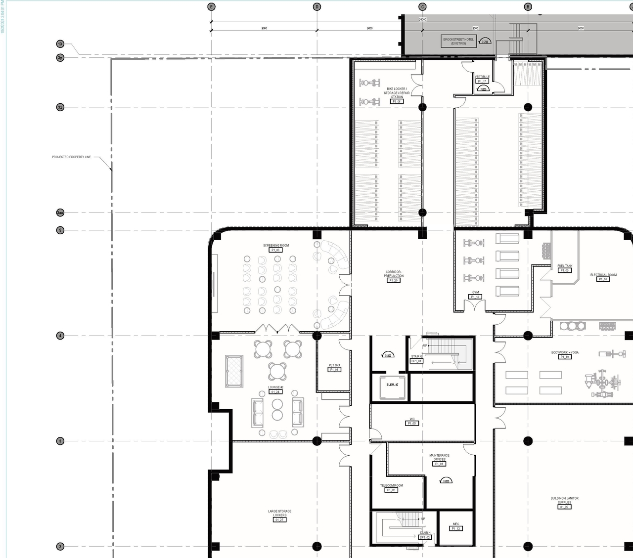
Site and Floor Plans #

  • Floor plan for project from page 20 of the file '2025-01-17 - Urban Design Brief - D07-12-24-0123'
  • Floor plan for project from page 21 of the file '2025-01-17 - Urban Design Brief - D07-12-24-0123'
  • Construction site plan for project from page 22 of the file '2025-01-17 - Urban Design Brief - D07-12-24-0123'
  • Construction site plan for project from page 26 of the file '2025-01-17 - Urban Design Brief - D07-12-24-0123'
  • Floor plan for project from page 21 of the file '2024-12-04 - URBAN DESIGN BRIEF BROCHURE - D07-12-24-0123'
  • Construction site plan for project from page 20 of the file '2024-10-09 - URBAN DESIGN BRIEF BROCHURE - D07-12-24-0123'
  • Floor plan for project from page 20 of the file '2024-10-09 - URBAN DESIGN BRIEF BROCHURE - D07-12-24-0123'
  • Construction site plan for project from page 21 of the file '2024-10-09 - URBAN DESIGN BRIEF BROCHURE - D07-12-24-0123'
  • Floor plan for project from page 21 of the file '2024-10-09 - URBAN DESIGN BRIEF BROCHURE - D07-12-24-0123'
  • Construction site plan for project from page 22 of the file '2024-10-09 - URBAN DESIGN BRIEF BROCHURE - D07-12-24-0123'
  • Floor plan for project from page 22 of the file '2024-10-09 - URBAN DESIGN BRIEF BROCHURE - D07-12-24-0123'
  • Construction site plan for project from page 25 of the file '2024-10-09 - URBAN DESIGN BRIEF BROCHURE - D07-12-24-0123'
  • Construction site plan for project from page 25 of the file '2024-10-09 - URBAN DESIGN BRIEF BROCHURE - D07-12-24-0123'
  • Floor plan for project from page 20 of the file '2025-01-17 - Urban Design Brief - D07-12-24-0123'
  • Floor plan for project from page 21 of the file '2025-01-17 - Urban Design Brief - D07-12-24-0123'
  • Construction site plan for project from page 22 of the file '2025-01-17 - Urban Design Brief - D07-12-24-0123'
  • Construction site plan for project from page 26 of the file '2025-01-17 - Urban Design Brief - D07-12-24-0123'
  • Floor plan for project from page 21 of the file '2024-12-04 - URBAN DESIGN BRIEF BROCHURE - D07-12-24-0123'
  • Construction site plan for project from page 20 of the file '2024-10-09 - URBAN DESIGN BRIEF BROCHURE - D07-12-24-0123'
  • Floor plan for project from page 20 of the file '2024-10-09 - URBAN DESIGN BRIEF BROCHURE - D07-12-24-0123'
  • Construction site plan for project from page 21 of the file '2024-10-09 - URBAN DESIGN BRIEF BROCHURE - D07-12-24-0123'
  • Floor plan for project from page 21 of the file '2024-10-09 - URBAN DESIGN BRIEF BROCHURE - D07-12-24-0123'
  • Construction site plan for project from page 22 of the file '2024-10-09 - URBAN DESIGN BRIEF BROCHURE - D07-12-24-0123'
  • Floor plan for project from page 22 of the file '2024-10-09 - URBAN DESIGN BRIEF BROCHURE - D07-12-24-0123'
  • Construction site plan for project from page 25 of the file '2024-10-09 - URBAN DESIGN BRIEF BROCHURE - D07-12-24-0123'
  • Construction site plan for project from page 25 of the file '2024-10-09 - URBAN DESIGN BRIEF BROCHURE - D07-12-24-0123'

Documents #

TypeDocument
Adequacy Of Public Services2025-01-17 - Serviceability Report - D07-12-24-0123
Application Summary2025-05-01 - Application Summary - D07-12-24-0123
Architectural Plans2025-01-17 - General Site Plan - Projected - D07-12-24-0123
Architectural Plans2025-01-17 - General Servicing Plan - D07-12-24-0123
Architectural Plans2025-01-17 - Architectural Plans - D07-12-24-0123
Architectural Plans2024-12-04 - GENERAL SITE PLAN -D07-12-24-0123
Architectural Plans2024-12-04 - GENERAL SERVICING PLAN - D07-12-24-0123
Architectural Plans2024-12-04 - Architectural Plans - D07-12-24-0123
Architectural Plans2024-10-09 - GENERAL SITE PLAN - PROJECTED - D07-12-24-0123
Architectural Plans2024-10-09 - General Site Plan Projected - D07-12-24-0123
Architectural Plans2024-10-09 - Architectural Drawings - D07-12-24-0123
Architectural Plans2025-06-02 - General servicing Plan - D07-12-24-0123
Architectural Plans2025-07-28 - APPROVED West Elevation - D07-12-24-0123
Architectural Plans2025-07-28 - APPROVED South Elevation - D07-12-24-0123
Architectural Plans2025-07-28 - APPROVED Site Plan Approval Report - D07-12-24-0123
Architectural Plans2025-07-28 - APPROVED North Elevation - D07-12-24-0123
Architectural Plans2025-07-28 - APPROVED General Site Plan - D07-12-24-0123
Architectural Plans2025-07-28 - APPROVED East Elevation - D07-12-24-0123
Architectural Plans2025-08-05 - General Servicing Plan - D07-12-24-0123
Architectural Plans2025-09-03 - APPROVED General Servicing Plan - D07-12-24-0123
Design Brief2025-01-17 - Urban Design Brief - D07-12-24-0123
Design Brief2024-12-04 - URBAN DESIGN BRIEF BROCHURE - D07-12-24-0123
Design Brief2024-10-09 - URBAN DESIGN BRIEF BROCHURE - D07-12-24-0123
Environmental2024-10-09 - Phase II Environmental Site Assessment - D07-12-24-0123
Environmental2024-10-09 - Phase I Environmental Site Assessment - D07-12-24-0123
Erosion And Sediment Control Plan2025-01-17 - Erosion and Sediment Control Plan - D07-12-24-0123
Erosion And Sediment Control Plan2024-12-04 - EROSION AND SEDIMENT CONTROL PLAN - D07-12-24-0123
Erosion And Sediment Control Plan2025-08-05 - Erosion and Sediment Control Plan - D07-12-24-0123
Erosion And Sediment Control Plan2025-09-03 - APPROVED Erosion and Sediment Control Plan - D07-12-24-0123
Geotechnical Report2025-01-17 - Grading Plan - D07-12-24-0123
Geotechnical Report2024-12-04 - Grading Plan - D07-12-24-0123
Geotechnical Report2025-07-28 - APPROVED Grading Plan - D07-12-24-0123
Geotechnical Report2025-08-05 - Grading Plan - D07-12-24-0123
Landscape Plan2024-10-09 - Landscape Plans - D07-12-24-0123
Landscape Plan2025-07-28 - APPROVED Landscape Details - D07-12-24-0123-2
Landscape Plan2025-09-03 - APPROVED Landscape Plan - D07-12-24-0123
Noise Study2024-10-09 - Noise Impact Feasibility Report - D07-12-24-0123
Planning2025-01-17 - Zoning Confirmation Report - D07-12-24-0123
Planning2025-01-17 - Planning Rationale - D07-12-24-0123
Planning2024-12-04 - Zoning Confirmation Report - D07-12-24-0123
Planning2024-12-04 - Planning Rationale - D07-12-24-0123
Planning2024-10-09 - Planning Rationale - D07-12-24-0123
Site Servicing2024-12-04 - Servicing Report -D07-12-24-0123
Site Servicing2024-10-09 - Servicing Report - D07-12–24-0123
Site Servicing2025-08-05 - Servicing Report - D07-12-24-0123
Surveying2024-10-09 - Survey Plan - D07-12-24-0123
Transportation Analysis2024-10-09 - Transportation Impact Assessment - Letter - D07-12-24-0123
Tree Information and Conservation2025-01-17 - Landscape and Tree Conservation Plans - D07-12-24-0123
Tree Information and Conservation2024-12-04 - Tree Conservation Report - D07-12-24-0123
Tree Information and Conservation2025-07-28 - APPROVED Tree Conservation Plans - D07-12-24-0123
Tree Information and Conservation2025-08-05 - Tree Conservation Plans - D07-12-24-0123
2024-12-04 - Roof drainage declaration - D07-12-24-0123
IDAddressLast UpdatedDate Initiated
D02-02-24-0058535 Legget Dr.2025-06-302024-10-09