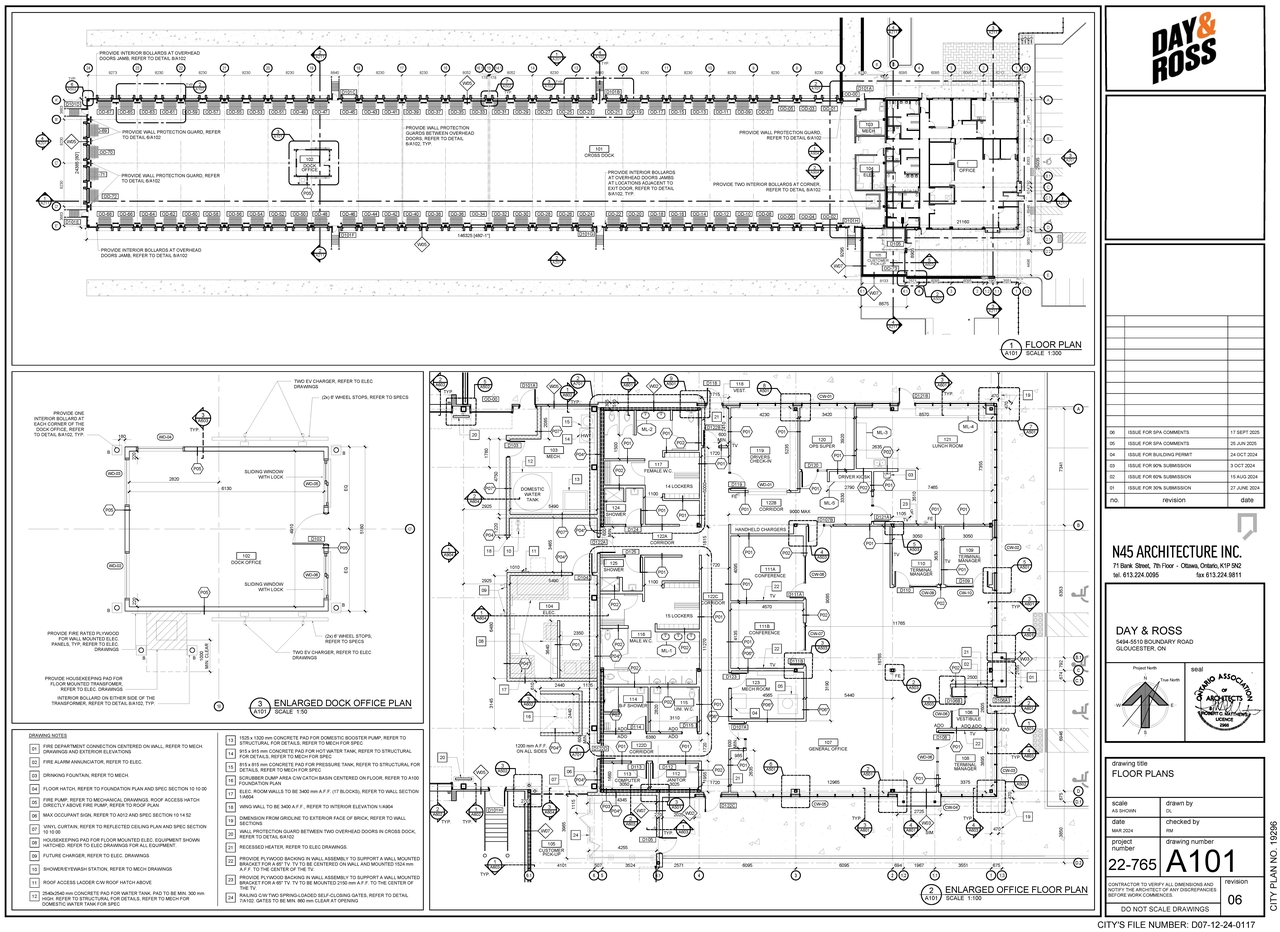
5494-5510 Boundary Rd. (D07-12-24-0117) #
Summary #
| Application Status | File Pending |
| Review Status | Application File Pending |
| Description | The proposed development will feature a 4,000m2 facility which includes ninety (90) parking spaces, eighty-four (84) tractor spaces, and one hundred thirty-nine (139) trailer spaces. Portions of the Subject Site will remain as undeveloped areas for the enhancement of the realigned headwaters feature and buffer from wetlands. The facility when completed, will serve as a critical truck transport terminal and cross dock facility for the movement of goods and materials throughout the City of Ottawa and greater Eastern Ontario region. |
| Ward | Ward 20 - Isabelle Skalski |
| Date Initiated | 2024-10-07 |
| Last Updated | 2025-07-30 |
Location #
Select a marker to view the address.
Site and Floor Plans #
Documents #
Additional Information #
| All Addresses | 5494 Boundary Rd. 5500 Boundary Rd. 5510 Boundary Rd. |
Related Projects #
| Project | Last Updated | Date Initiated |
|---|---|---|
5494-5510 Boundary Rd. 5900 Thunder Rd. D02-02-21-0036 | 2024-06-11 | 2021-05-05 |
