1255 Hemlock (D07-12-24-0090)

1255 Hemlock (D07-12-24-0090) #

Summary #

Application StatusInactive
Review StatusNotice of Decision Sent
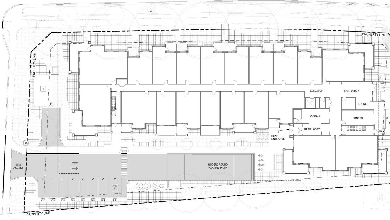
DescriptionA Site Plan Control application to construct a four-storey residential apartment building consisting of 89 units and includes an underground parking garage with a total of 89 spaces.
WardWard 13 - Rawlson King
Date Initiated2024-08-21
Last Updated2025-02-05

Renders #

  • Rendering of building from page 19 of the file '2024-08-21 - Design Brief - D07-12-24-0090'
  • Rendering of building from page 19 of the file '2024-08-21 - Design Brief - D07-12-24-0090'
  • Rendering of building from page 1 of the file '2024-08-21 - Design Brief - D07-12-24-0090'
  • Rendering of building from page 18 of the file '2024-08-21 - Design Brief - D07-12-24-0090'
  • Rendering of building from page 18 of the file '2024-08-21 - Design Brief - D07-12-24-0090'
  • Rendering of building from page 16 of the file '2024-08-21 - Design Brief - D07-12-24-0090'
  • Rendering of building from page 16 of the file '2024-08-21 - Design Brief - D07-12-24-0090'
  • Rendering of building from page 12 of the file '2024-08-21 - Design Brief - D07-12-24-0090'
  • Rendering of building from page 11 of the file '2024-08-21 - Design Brief - D07-12-24-0090'
  • Rendering of building from page 12 of the file '2024-08-21 - Design Brief - D07-12-24-0090'
  • Rendering of building from page 12 of the file '2024-08-21 - Design Brief - D07-12-24-0090'
  • Rendering of building from page 11 of the file '2024-08-21 - Design Brief - D07-12-24-0090'
  • Rendering of building from page 19 of the file '2024-08-21 - Design Brief - D07-12-24-0090'
  • Rendering of building from page 19 of the file '2024-08-21 - Design Brief - D07-12-24-0090'
  • Rendering of building from page 1 of the file '2024-08-21 - Design Brief - D07-12-24-0090'
  • Rendering of building from page 18 of the file '2024-08-21 - Design Brief - D07-12-24-0090'
  • Rendering of building from page 18 of the file '2024-08-21 - Design Brief - D07-12-24-0090'
  • Rendering of building from page 16 of the file '2024-08-21 - Design Brief - D07-12-24-0090'
  • Rendering of building from page 16 of the file '2024-08-21 - Design Brief - D07-12-24-0090'
  • Rendering of building from page 12 of the file '2024-08-21 - Design Brief - D07-12-24-0090'
  • Rendering of building from page 11 of the file '2024-08-21 - Design Brief - D07-12-24-0090'
  • Rendering of building from page 12 of the file '2024-08-21 - Design Brief - D07-12-24-0090'
  • Rendering of building from page 12 of the file '2024-08-21 - Design Brief - D07-12-24-0090'
  • Rendering of building from page 11 of the file '2024-08-21 - Design Brief - D07-12-24-0090'

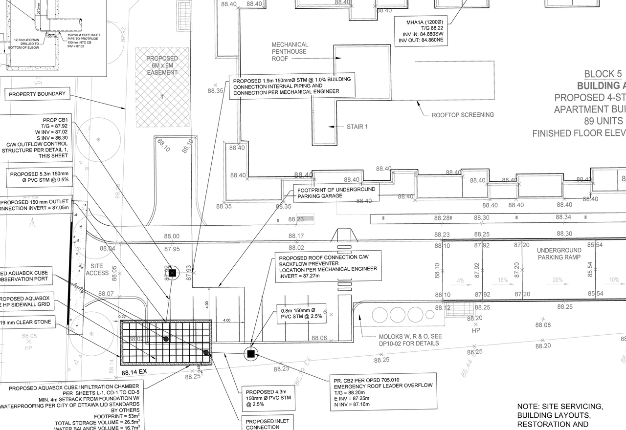
Site and Floor Plans #

  • Construction site plan for project from page 4 of the file '2024-08-21 - Design Brief - D07-12-24-0090'
  • Construction site plan for project from page 5 of the file '2024-08-21 - Design Brief - D07-12-24-0090'
  • Construction site plan for project from page 7 of the file '2024-08-21 - Design Brief - D07-12-24-0090'
  • Construction site plan for project from page 4 of the file '2024-10-31 - Infiltration Facility Design Drawings - D07-12-24-0090'
  • Construction site plan for project from page 7 of the file '2024-10-31 - Infiltration Facility Design Drawings - D07-12-24-0090'
  • Construction site plan for project from page 4 of the file '2024-08-21 - Design Brief - D07-12-24-0090'
  • Construction site plan for project from page 5 of the file '2024-08-21 - Design Brief - D07-12-24-0090'
  • Construction site plan for project from page 7 of the file '2024-08-21 - Design Brief - D07-12-24-0090'
  • Construction site plan for project from page 4 of the file '2024-10-31 - Infiltration Facility Design Drawings - D07-12-24-0090'
  • Construction site plan for project from page 7 of the file '2024-10-31 - Infiltration Facility Design Drawings - D07-12-24-0090'

Files #

TypeNameLinks
Application Summary2024-09-16 - Application Summary - D07-12-24-0090Download PDF
Application Summary2024-09-16 - Application Summary - D07-12-24-00901Download PDF
Architectural Plans2024-08-21 - Site Plan - Roof Level - D07-12-24-0090Download PDF
Architectural Plans2024-08-21 - Architectural Drawings - D07-12-24-0090Download PDF
Architectural Plans2024-08-21 - Architectural Amenity Area Plan - D07-12-24-0090Download PDF
Architectural Plans2024-10-31 - Site Plan Context and Statistics - D07-12-24-0090Download PDF
Architectural Plans2024-10-31 - Sediment and Erosion Control Plan - D07-12-24-0090Download PDF
Architectural Plans2024-10-31 - Removals Plan - D07-12-24-0090Download PDF
Architectural Plans2024-10-31 - General Plan of Services - D07-12-24-0090Download PDF
Architectural Plans2024-10-31 - Enlarged Plans Bicycle Site Details - D07-12-24-0090Download PDF
Architectural Plans2024-10-31 - Elevations - D07-12-24-0090Download PDF
Architectural Plans2024-11-25 - West and South Elevations - D07-12-24-0090Download PDF
Architectural Plans2024-11-25 - Site Plan Context and Statistics - D07-12-24-0090Download PDF
Architectural Plans2024-11-25 - Sediment and Erosion Control Plan - D07-12-24-0090Download PDF
Architectural Plans2024-11-25 - Removals Plan - D07-12-24-0090Download PDF
Architectural Plans2024-11-25 - General Plan of Services Site Servicing Plan - D07-12-24-0090Download PDF
Architectural Plans2024-11-25 - East and North Elevations - D07-12-24-0090Download PDF
Architectural Plans2024-11-25 - Enlarged Plans Bicycle Site Details - D07-12-24-0090Download PDF
Architectural Plans2025-09-22 - APPROVED Site Plan Context and Statistics - D07-12-24-0090Download PDF
Architectural Plans2025-09-22 - APPROVED Sediment and Erosion Control Plan - D07-12-24-0090Download PDF
Architectural Plans2025-09-22 - APPROVED Removals Plan - D07-12-24-0090Download PDF
Architectural Plans2025-09-22 - APPROVED General Plan of Services Site Servicing Plan - D07-12-24-0090Download PDF
Architectural Plans2025-09-22 - APPROVED Enlarged Plans Bicycle Site Details - D07-12-24-0090Download PDF
Architectural Plans2025-09-22 - APPROVED East and North Elevations - D07-12-24-0090Download PDF
Architectural Plans2025-09 -23 - REVISED Site Plan Approval Report - D07-12-24-0090Download PDF
Architectural Plans2025-09 -23 - APPROVED Site Plan - D07-12-24-0090Download PDF
Architectural Plans2025-09 -23 - APPROVED Sediment & Erosion Control Plan - D07-12-24-0090Download PDF
Architectural Plans2025-09 -23 - APPROVED Removals Plan - D07-12-24-0090Download PDF
Architectural Plans2025-09 -23 - APPROVED General Plan of Services - D07-12-24-0090Download PDF
Architectural Plans2025-09 -23 - APPROVED Elevation Drawings - D07-12-24-0090Download PDF
Architectural Plans2025-09 -23 - APPROVED Amenity Area Plan - D07-12-24-0090Download PDF
Civil Engineering Report2024-08-21 - Civil Engineering Drawings - D07-12-24-0090Download PDF
Design Brief2024-08-21 - Design Brief - D07-12-24-0090Download PDF
Design Brief2024-10-31 - Infiltration Facility Design Drawings - D07-12-24-0090Download PDF
Environmental2024-08-21 - Phase Two Environmental Site Assessment - D07-12-24-0090Download PDF
Environmental2024-08-21 - Phase One Environmental Site Assessment - D07-12-24-0090Download PDF
Environmental2024-08-21 - Environmental Noise - D07-12-24-0090Download PDF
Geotechnical Report2024-08-21 - Geotechnical Report - D07-12-24-0090Download PDF
Geotechnical Report2024-08-21 - Geotechnical Investigation - D07-12-24-0090Download PDF
Geotechnical Report2024-10-31 - Grading Plan - D07-12-24-0090Download PDF
Geotechnical Report2024-11-25 - Grading Plan - D07-12-24-0090Download PDF
Geotechnical Report2025-09-22 - APPROVED Grading Plan - D07-12-24-0090Download PDF
Geotechnical Report2025-09 -23 - APPROVED Grading Plan - D07-12-24-0090Download PDF
Landscape Plan2024-08-21 - Landscape Plan - D07-12-24-0090Download PDF
Landscape Plan2024-10-31 - Landscape Plans - D07-12-24-0090Download PDF
Landscape Plan2024-11-25 - Landscape Plan - D07-12-24-0090Download PDF
Landscape Plan2025-09-22 - APPROVED Landscape Plan - D07-12-24-0090Download PDF
Landscape Plan2025-09 -23 - APPROVED Landscape Plan - D07-12-24-0090Download PDF
Site Servicing2024-08-21 - Servicing Brief - D07-12-24-0090Download PDF
Site Servicing2024-10-31 - Servicing Brief - D07-12-24-0090Download PDF
Site Servicing2024-11-25 - Servicing Brief - D07-12-24-0090Download PDF
Site Servicing2025-09 -23 - APPROVED Servicing Brief - D07-12-24-0090Download PDF
Stormwater Management2024-08-21 - Stormwater Management Infiltration Design Memo - D07-12-24-0090Download PDF
Stormwater Management2024-10-31 - Storm Drainage Area Plan - D07-12-24-0090Download PDF
Stormwater Management2024-11-25 - Stormwater Management Infiltration Facility Design - D07-12-24-0090Download PDF
Stormwater Management2024-11-25 - Storm Drainage Area Plan - D07-12-24-0090Download PDF
Stormwater Management2025-09-22 - APPROVED Stormwater Management Infiltration Facility Design - D07-12-24-0090Download PDF
Stormwater Management2025-09-22 - APPROVED Storm Drainage Area Plan - D07-12-24-0090Download PDF
Stormwater Management2025-09 -23 - APPROVED Storm Drainage Area Plan - D07-12-24-0090Download PDF
2024-08-21- Grading Letter to supplement Geotechnical Investigation Report - D07-12-24-0090Download PDF
2024-08-21 - Typical Footing - D07-12-24-0090Download PDF
2024-08-21 - Slope Stability Report - D07-12-24-0090Download PDF
2024-08-21 - Slope Stability Assessment Report -D07-12-24-0090Download PDF
2024-08-21 - Infiltration Facility LID Drawings - D07-12-24-0090Download PDF
2024-08-21 - Copper Penny Sample Photos - D07-12-24-0090Download PDF
2024-08-21 - CLC Acknowledgement and Permission Letter - D07-12-24-0090Download PDF
2024-10-31 - Notes and Legend - D07-12-24-0090Download PDF
2024-11-25 - Notes and Legend - D07-12-234-0090Download PDF
2024-02-05 - Delegated Authority Report SIGNED - D07-12-24-0090Download PDF
2025-09-22 - APPROVED Notes and Legend - D07-12-234-0090Download PDF
2025-09 -23 - APPROVED Notes and Legend - D07-12-234-0090Download PDF