312-314 Clifton Rd./1950 Scott St. (D07-12-24-0072)#
Summary#
| Application Status | Inactive |
| Review Status | Agreement Registered - Final Legal Clearance Given |
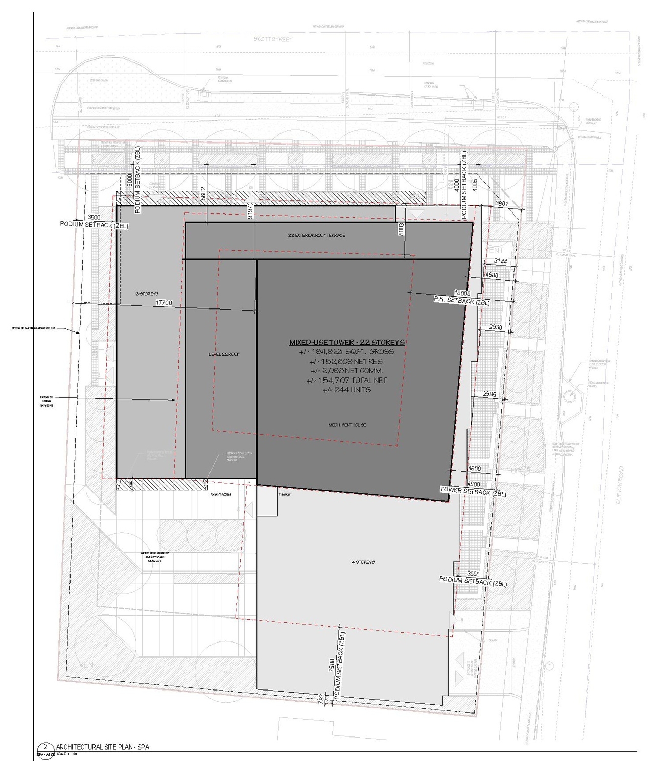
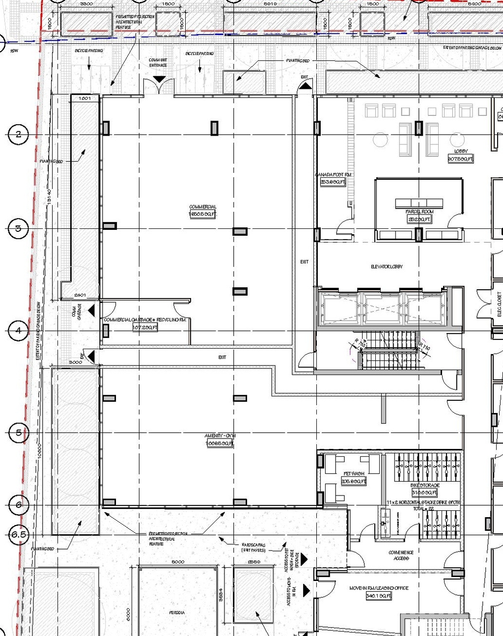
| Description | Lots 24 & 25 and part of lots 45,46 & 48 registered plan 369. High rise residential apartments, total gross building area 195,510 sq.ft., total net leasable area = 156,161 sq.ft., total unit count = 244, 1 building, 22 storeys. |
| Ward | Ward 15 - Jeff Leiper |
| Date Initiated | 2024-08-01 |
| Last Updated | 2025-10-07 |
Renders#
Location#
Select a marker to view the address.
Site Plans, Elevations and Floor Plans#
Documents#
Additional Information#
| All Addresses | 312 Clifton Rd. 314 Clifton Rd. 1950 Scott St. |


























