398-406 Roosevelt Ave. (D07-12-24-0062)#
Summary#
| Application Status | Post Approval |
| Review Status | Agreement Signed |
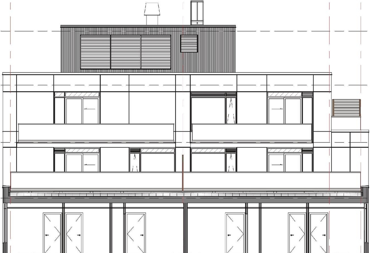
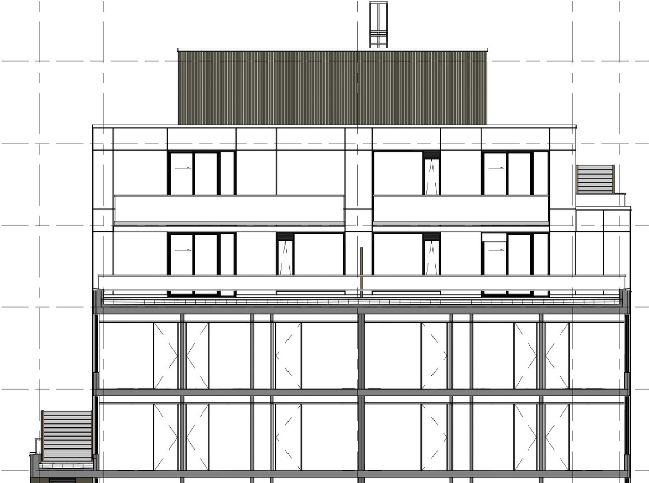
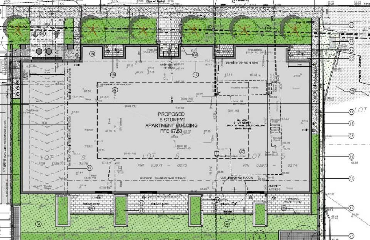
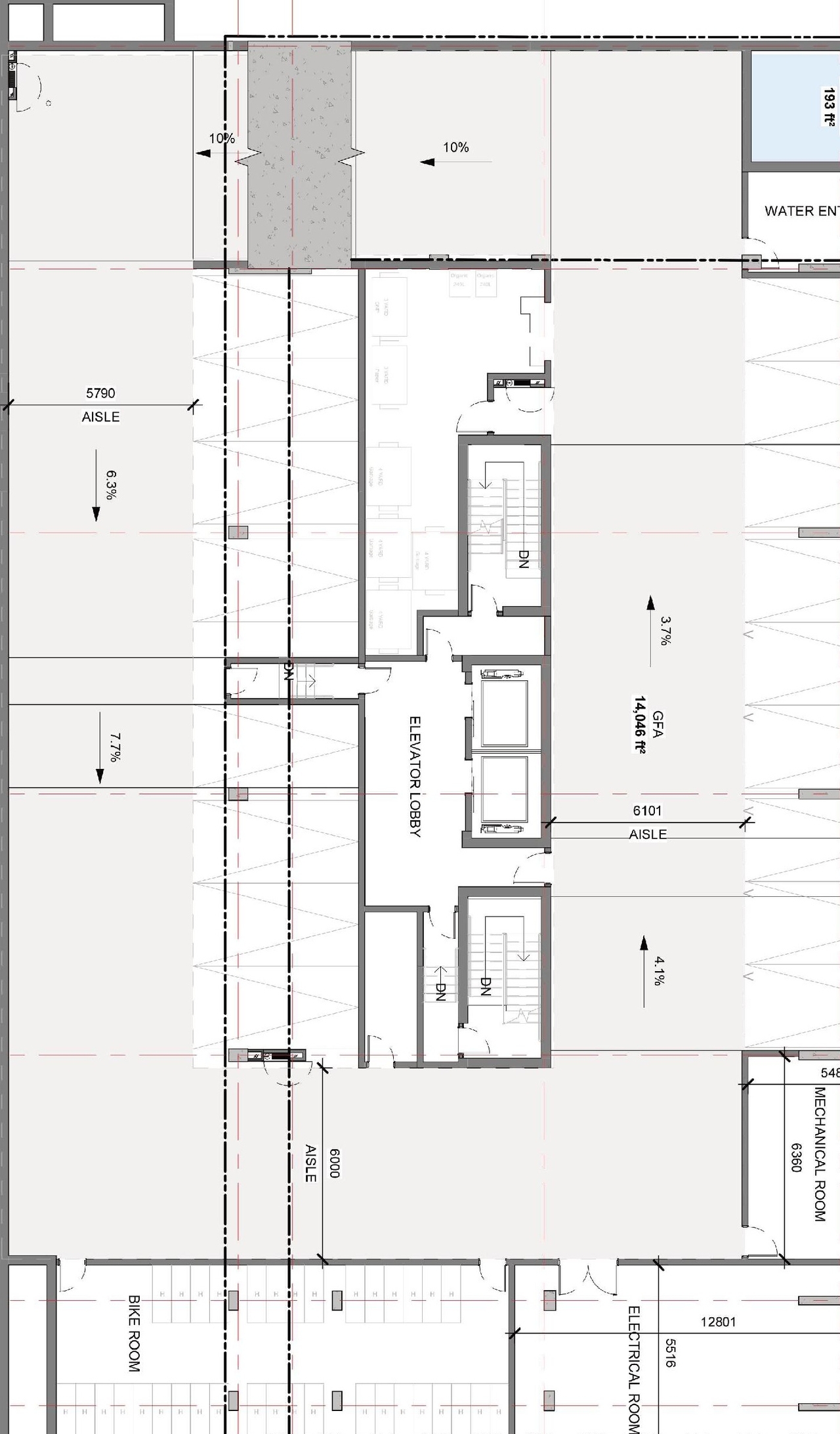
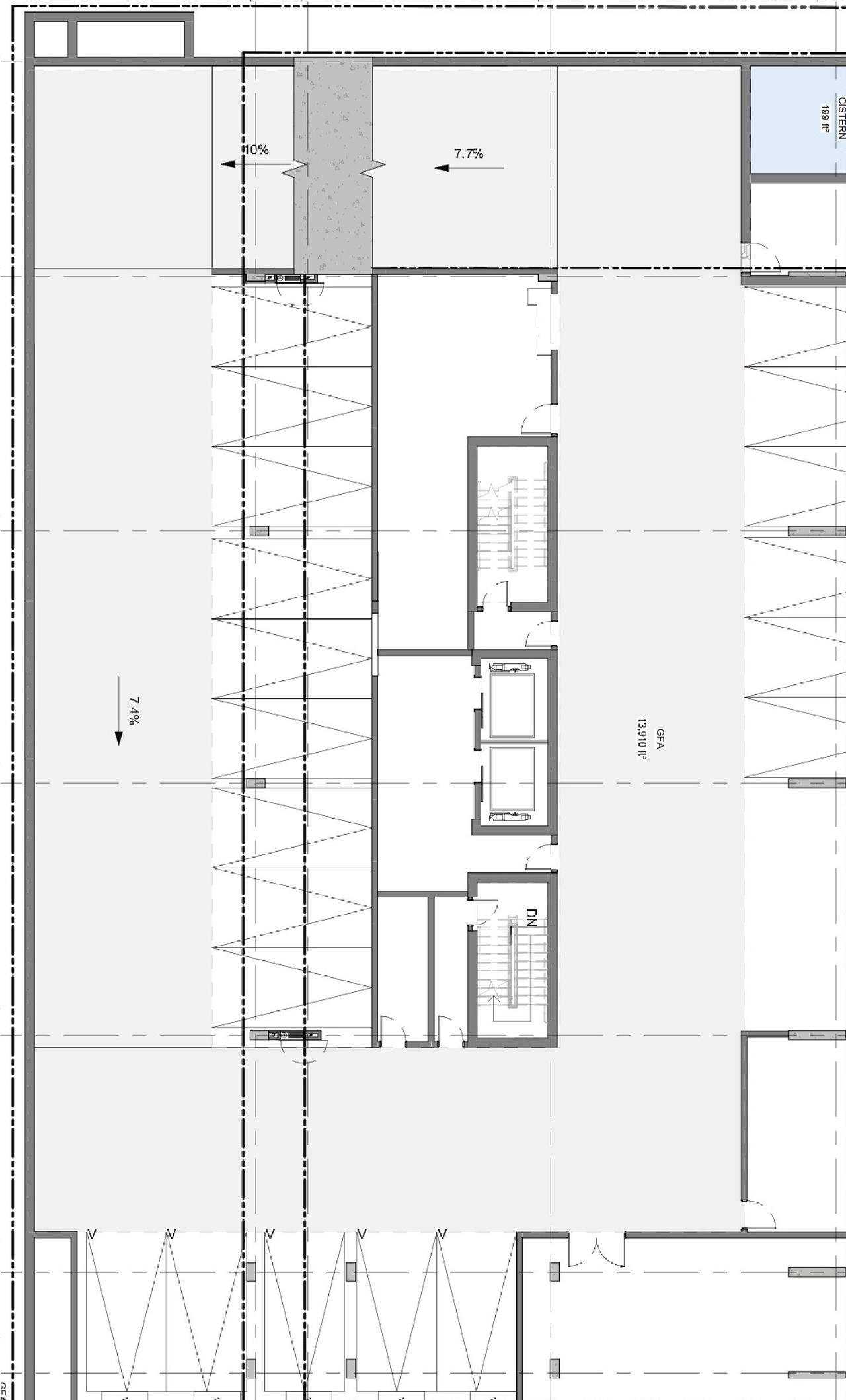
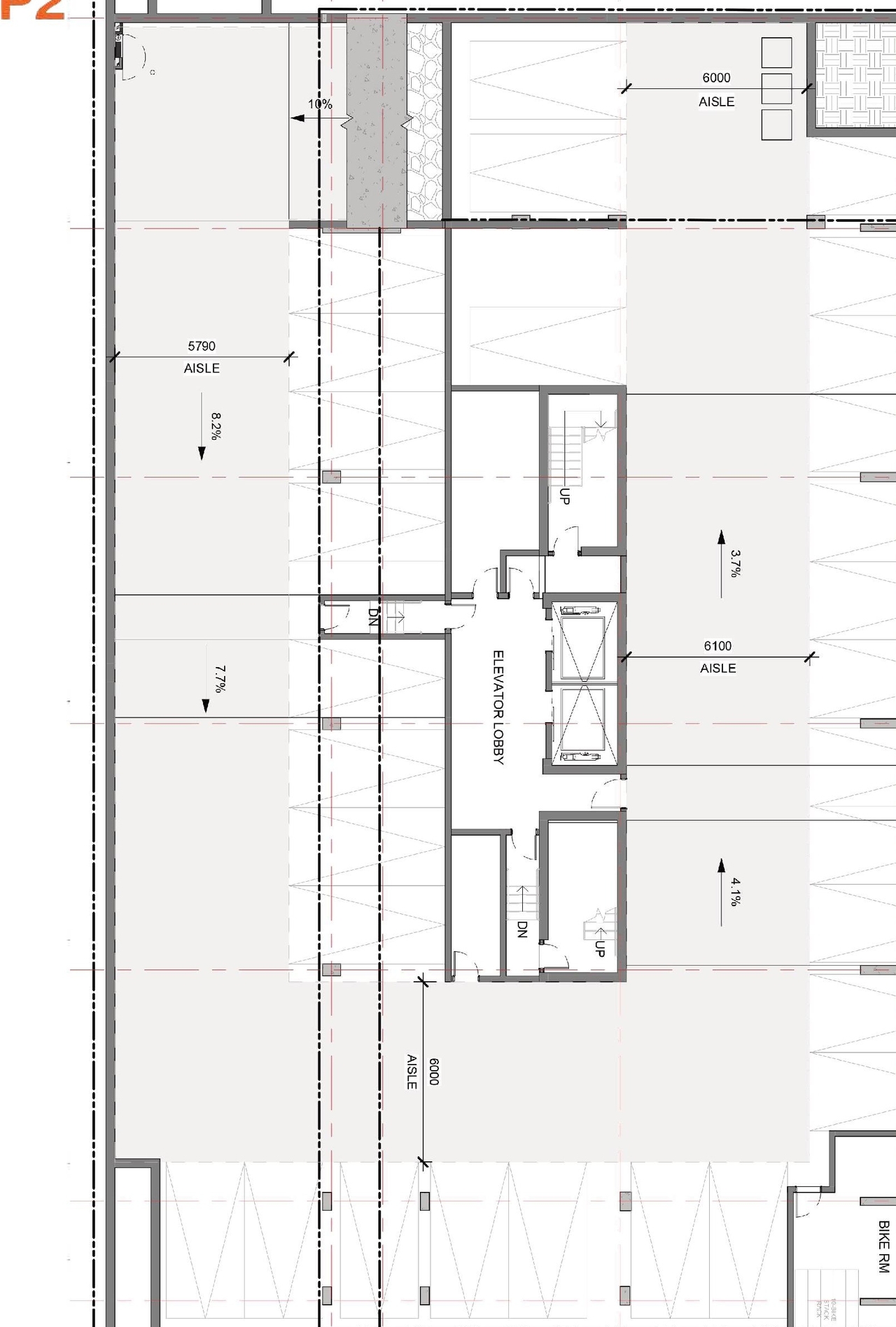
| Description | 6-storey residential building (20.49 meters), 61 dwellings (12 studio, 12 one-bedroom, 8 one-bedroom plus den, 24 two-bedroom units, 4 2-bedroom plus den, 1 three-bedroom unit) , 30 automobile parking spaces (25 resident, 5 visitor) 67 bicycle parking spaces, 617 square metres of amenity spaces |
| Ward | Ward 15 - Jeff Leiper |
| Date Initiated | 2024-07-18 |
| Last Updated | 2025-07-19 |
Renders#
Location#
Select a marker to view the address.
Site Plans, Elevations and Floor Plans#
Documents#
Additional Information#
| All Addresses | 398 Roosevelt Ave. 402 Roosevelt Ave. 406 Roosevelt Ave. |








































