788 March (D07-12-24-0045)

788 March (D07-12-24-0045) #

Summary #

Application StatusPost Approval
Review StatusReceipt of Agreement from Owner Pending
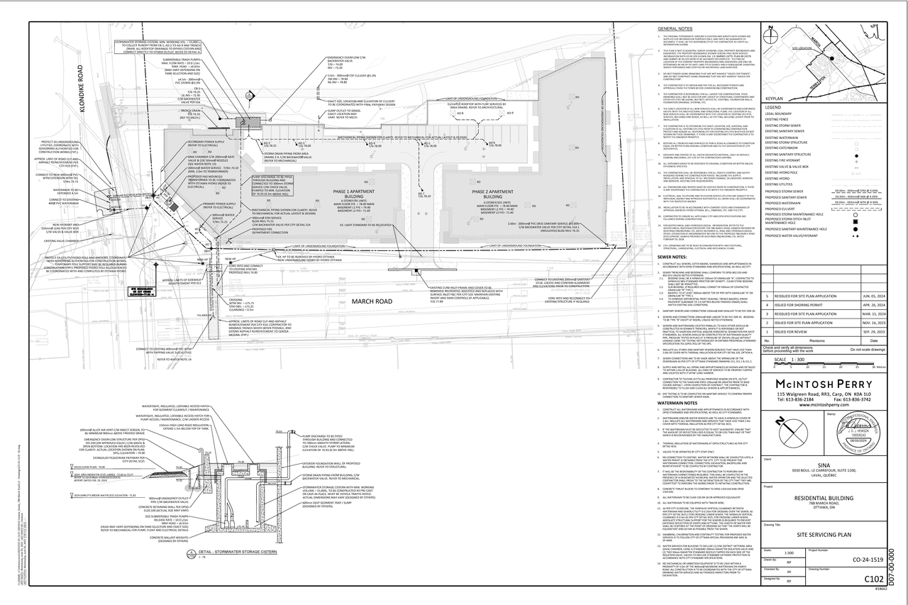
DescriptionA Site Plan Control application to construct two six-storey mid-rise apartment buildings with an underground parking garage. The purpose of the application is to develop two, mid-rise apartment buildings on the subject site. Building A, proposed to contain 95 residential units, will be constructed at the southeast intersection of Klondike and March Roads. Building B, proposed to contain 101 residential units, will front on March Road. Both buildings will share a common two-level underground parking garage and a surface parking lot. There are two accesses proposed on site, one from Klondike and one from March Road. A total of 275 vehicular parking spaces and 189 bicycle parking spaces will be provided on site.
WardWard 4 - Cathy Curry
Date Initiated2024-06-26
Last Updated2025-10-14

Renders #

  • Rendering of building from page 27 of the file '2024-06-26 - Urban Design Brief - D07-12-24-0045'
  • Rendering of building from page 31 of the file '2024-06-26 - Urban Design Brief - D07-12-24-0045'
  • Rendering of building from page 27 of the file '2024-06-26 - Urban Design Brief - D07-12-24-0045'
  • Rendering of building from page 18 of the file '2024-06-26 - Urban Design Brief - D07-12-24-0045'
  • Rendering of building from page 17 of the file '2024-06-26 - Urban Design Brief - D07-12-24-0045'
  • Rendering of building from page 17 of the file '2024-06-26 - Urban Design Brief - D07-12-24-0045'
  • Rendering of building from page 33 of the file '2024-06-26 - Urban Design Brief - D07-12-24-0045'
  • Rendering of building from page 17 of the file '2024-06-26 - Urban Design Brief - D07-12-24-0045'
  • Rendering of building from page 28 of the file '2024-06-26 - Urban Design Brief - D07-12-24-0045'
  • Rendering of building from page 28 of the file '2024-06-26 - Urban Design Brief - D07-12-24-0045'
  • Rendering of building from page 1 of the file '2024-06-26 - Urban Design Brief - D07-12-24-0045'
  • Rendering of building from page 1 of the file '2024-06-26 - Urban Design Brief - D07-12-24-0045'
  • Rendering of building from page 18 of the file '2024-06-26 - Urban Design Brief - D07-12-24-0045'
  • Rendering of building from page 17 of the file '2024-06-26 - Urban Design Brief - D07-12-24-0045'
  • Rendering of building from page 18 of the file '2024-06-26 - Urban Design Brief - D07-12-24-0045'
  • Rendering of building from page 18 of the file '2024-06-26 - Urban Design Brief - D07-12-24-0045'
  • Rendering of building from page 27 of the file '2024-06-26 - Urban Design Brief - D07-12-24-0045'
  • Rendering of building from page 35 of the file '2024-06-26 - Urban Design Brief - D07-12-24-0045'
  • Rendering of building from page 36 of the file '2024-06-26 - Urban Design Brief - D07-12-24-0045'
  • Rendering of building from page 35 of the file '2024-06-26 - Urban Design Brief - D07-12-24-0045'
  • Rendering of building from page 36 of the file '2024-06-26 - Urban Design Brief - D07-12-24-0045'
  • Rendering of building from page 36 of the file '2024-06-26 - Urban Design Brief - D07-12-24-0045'
  • Rendering of building from page 27 of the file '2024-06-26 - Urban Design Brief - D07-12-24-0045'
  • Rendering of building from page 31 of the file '2024-06-26 - Urban Design Brief - D07-12-24-0045'
  • Rendering of building from page 27 of the file '2024-06-26 - Urban Design Brief - D07-12-24-0045'
  • Rendering of building from page 18 of the file '2024-06-26 - Urban Design Brief - D07-12-24-0045'
  • Rendering of building from page 17 of the file '2024-06-26 - Urban Design Brief - D07-12-24-0045'
  • Rendering of building from page 17 of the file '2024-06-26 - Urban Design Brief - D07-12-24-0045'
  • Rendering of building from page 33 of the file '2024-06-26 - Urban Design Brief - D07-12-24-0045'
  • Rendering of building from page 17 of the file '2024-06-26 - Urban Design Brief - D07-12-24-0045'
  • Rendering of building from page 28 of the file '2024-06-26 - Urban Design Brief - D07-12-24-0045'
  • Rendering of building from page 28 of the file '2024-06-26 - Urban Design Brief - D07-12-24-0045'
  • Rendering of building from page 1 of the file '2024-06-26 - Urban Design Brief - D07-12-24-0045'
  • Rendering of building from page 1 of the file '2024-06-26 - Urban Design Brief - D07-12-24-0045'
  • Rendering of building from page 18 of the file '2024-06-26 - Urban Design Brief - D07-12-24-0045'
  • Rendering of building from page 17 of the file '2024-06-26 - Urban Design Brief - D07-12-24-0045'
  • Rendering of building from page 18 of the file '2024-06-26 - Urban Design Brief - D07-12-24-0045'
  • Rendering of building from page 18 of the file '2024-06-26 - Urban Design Brief - D07-12-24-0045'
  • Rendering of building from page 27 of the file '2024-06-26 - Urban Design Brief - D07-12-24-0045'
  • Rendering of building from page 35 of the file '2024-06-26 - Urban Design Brief - D07-12-24-0045'
  • Rendering of building from page 36 of the file '2024-06-26 - Urban Design Brief - D07-12-24-0045'
  • Rendering of building from page 35 of the file '2024-06-26 - Urban Design Brief - D07-12-24-0045'
  • Rendering of building from page 36 of the file '2024-06-26 - Urban Design Brief - D07-12-24-0045'
  • Rendering of building from page 36 of the file '2024-06-26 - Urban Design Brief - D07-12-24-0045'

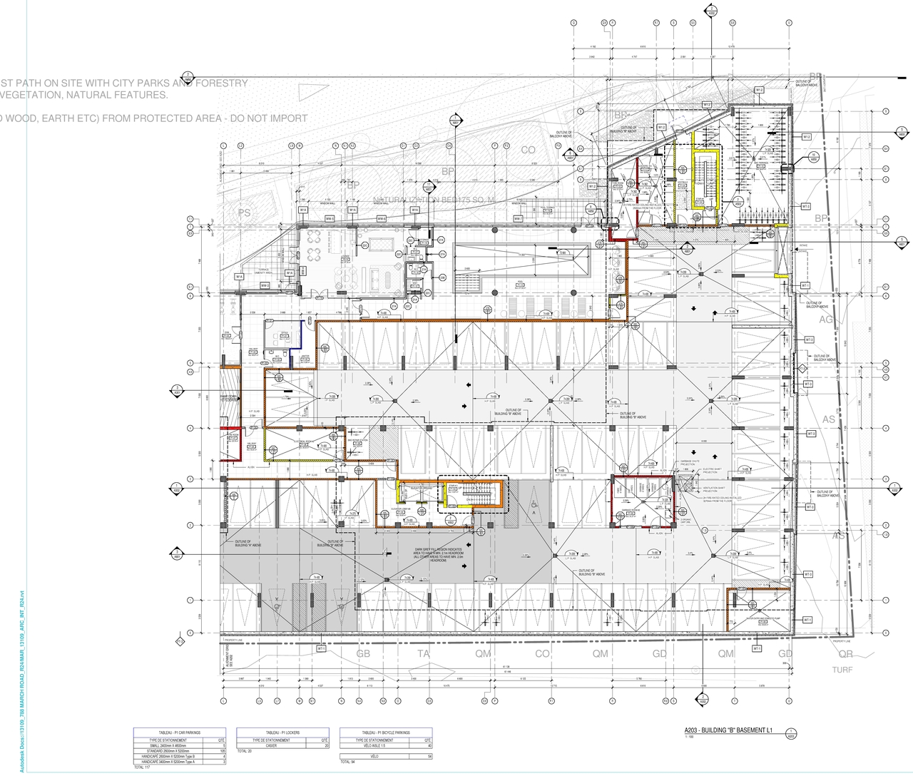
Site and Floor Plans #

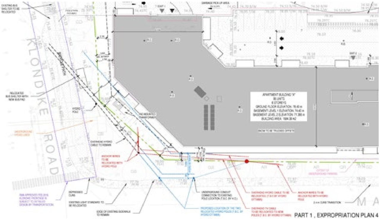
  • Construction site plan for project from page 4 of the file '2024-06-26 - Urban Design Brief - D07-12-24-0045'
  • Construction site plan for project from page 4 of the file '2024-06-26 - Urban Design Brief - D07-12-24-0045'
  • Construction site plan for project from page 7 of the file '2024-06-26 - Urban Design Brief - D07-12-24-0045'
  • Construction site plan for project from page 9 of the file '2024-06-26 - Urban Design Brief - D07-12-24-0045'
  • Construction site plan for project from page 11 of the file '2024-06-26 - Urban Design Brief - D07-12-24-0045'
  • Construction site plan for project from page 14 of the file '2024-06-26 - Urban Design Brief - D07-12-24-0045'
  • Construction site plan for project from page 15 of the file '2024-06-26 - Urban Design Brief - D07-12-24-0045'
  • Construction site plan for project from page 15 of the file '2024-06-26 - Urban Design Brief - D07-12-24-0045'
  • Construction site plan for project from page 16 of the file '2024-06-26 - Urban Design Brief - D07-12-24-0045'
  • Construction site plan for project from page 19 of the file '2024-06-26 - Urban Design Brief - D07-12-24-0045'
  • Construction site plan for project from page 20 of the file '2024-06-26 - Urban Design Brief - D07-12-24-0045'
  • Construction site plan for project from page 22 of the file '2024-06-26 - Urban Design Brief - D07-12-24-0045'
  • Construction site plan for project from page 24 of the file '2024-06-26 - Urban Design Brief - D07-12-24-0045'
  • Construction site plan for project from page 25 of the file '2024-06-26 - Urban Design Brief - D07-12-24-0045'
  • Construction site plan for project from page 42 of the file '2024-06-26 - Urban Design Brief - D07-12-24-0045'
  • Construction site plan for project from page 44 of the file '2024-06-26 - Urban Design Brief - D07-12-24-0045'
  • Construction site plan for project from page 46 of the file '2024-06-26 - Urban Design Brief - D07-12-24-0045'
  • Construction site plan for project from page 48 of the file '2024-06-26 - Urban Design Brief - D07-12-24-0045'
  • Construction site plan for project from page 58 of the file '2024-06-26 - Urban Design Brief - D07-12-24-0045'
  • Construction site plan for project from page 60 of the file '2024-06-26 - Urban Design Brief - D07-12-24-0045'
  • Construction site plan for project from page 71 of the file '2024-06-26 - Urban Design Brief - D07-12-24-0045'
  • Construction site plan for project from page 73 of the file '2024-06-26 - Urban Design Brief - D07-12-24-0045'
  • Construction site plan for project from page 88 of the file '2024-06-26 - Urban Design Brief - D07-12-24-0045'
  • Construction site plan for project from page 4 of the file '2024-06-26 - Urban Design Brief - D07-12-24-0045'
  • Construction site plan for project from page 4 of the file '2024-06-26 - Urban Design Brief - D07-12-24-0045'
  • Construction site plan for project from page 7 of the file '2024-06-26 - Urban Design Brief - D07-12-24-0045'
  • Construction site plan for project from page 9 of the file '2024-06-26 - Urban Design Brief - D07-12-24-0045'
  • Construction site plan for project from page 11 of the file '2024-06-26 - Urban Design Brief - D07-12-24-0045'
  • Construction site plan for project from page 14 of the file '2024-06-26 - Urban Design Brief - D07-12-24-0045'
  • Construction site plan for project from page 15 of the file '2024-06-26 - Urban Design Brief - D07-12-24-0045'
  • Construction site plan for project from page 15 of the file '2024-06-26 - Urban Design Brief - D07-12-24-0045'
  • Construction site plan for project from page 16 of the file '2024-06-26 - Urban Design Brief - D07-12-24-0045'
  • Construction site plan for project from page 19 of the file '2024-06-26 - Urban Design Brief - D07-12-24-0045'
  • Construction site plan for project from page 20 of the file '2024-06-26 - Urban Design Brief - D07-12-24-0045'
  • Construction site plan for project from page 22 of the file '2024-06-26 - Urban Design Brief - D07-12-24-0045'
  • Construction site plan for project from page 24 of the file '2024-06-26 - Urban Design Brief - D07-12-24-0045'
  • Construction site plan for project from page 25 of the file '2024-06-26 - Urban Design Brief - D07-12-24-0045'
  • Construction site plan for project from page 42 of the file '2024-06-26 - Urban Design Brief - D07-12-24-0045'
  • Construction site plan for project from page 44 of the file '2024-06-26 - Urban Design Brief - D07-12-24-0045'
  • Construction site plan for project from page 46 of the file '2024-06-26 - Urban Design Brief - D07-12-24-0045'
  • Construction site plan for project from page 48 of the file '2024-06-26 - Urban Design Brief - D07-12-24-0045'
  • Construction site plan for project from page 58 of the file '2024-06-26 - Urban Design Brief - D07-12-24-0045'
  • Construction site plan for project from page 60 of the file '2024-06-26 - Urban Design Brief - D07-12-24-0045'
  • Construction site plan for project from page 71 of the file '2024-06-26 - Urban Design Brief - D07-12-24-0045'
  • Construction site plan for project from page 73 of the file '2024-06-26 - Urban Design Brief - D07-12-24-0045'
  • Construction site plan for project from page 88 of the file '2024-06-26 - Urban Design Brief - D07-12-24-0045'

Files #

TypeNameLinks
Application Summary2024-07-18 - Application Summary - D07-12-24-0045Download PDF
Archaelogical Assessment2024-06-26 - Stage 1 and 2 Archaeological assessments - D07-12-24-0045Download PDF
Archaelogical Assessment2024-06-26 - Ministry of Tourism, Culture and Support Archaeologic Assessments Report - D07-12-2Download PDF
Architectural Plans2024-06-26 - SITE PLAN - D07-12-24-0045Download PDF
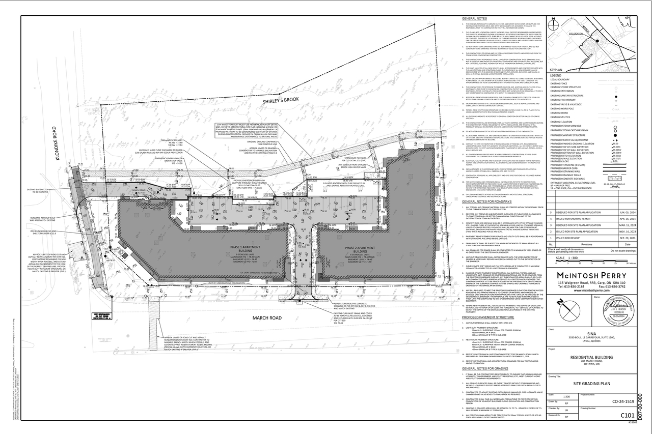
Architectural Plans2024-06-26 - Site Grading Plan - D07-12-24-0045Download PDF
Architectural Plans2024-06-26 - Elevations - D07-12-24-0045Download PDF
Architectural Plans2024-06-26 - Colored Elevations - D07-12-24-0045Download PDF
Architectural Plans2024-09-27 - Site Plan - D07-12-24-0045Download PDF
Architectural Plans2024-09-27 - Elevations - D07-12-24-0045Download PDF
Architectural Plans2025-02-06 - Site Plan & Elevations - D07-12-24-0045Download PDF
Architectural Plans2025-02-06 - Site Grading Plan - D07-12-24-0045Download PDF
Architectural Plans2025-05-12 - SIGNED Site Plan Approval Report - D07-12-24-0045Download PDF
Architectural Plans2025-05-12 - APPROVED Site Plan - D07-12-24-0045Download PDF
Architectural Plans2025-05-12 - APPROVED Site Grading Plan - D07-12-24-0045Download PDF
Architectural Plans2025-05-12 - APPROVED Elevations - D07-12-24-0045Download PDF
Civil Engineering Report2024-09-27 - Civil Plans - D07-12-24-0045Download PDF
Design Brief2024-06-26 - Urban Design Brief - D07-12-24-0045Download PDF
Environmental2024-06-26 - Phase One Environmental Site Assessment - D07-12-24-0045Download PDF
Environmental2024-06-26 - Environmental Impact Statement - D07-12-24-0045Download PDF
Environmental2024-09-27 - Phase I ESA Update - D07-12-24-0045Download PDF
Environmental2024-09-27 - Phase I ESA - D07-12-24-0045Download PDF
Environmental2024-09-27 - Environmental Impact Statement - D07-12-24-0045Download PDF
Environmental2025-05-16 - Phase 1 ESA Update - D07-12-24-0045Download PDF
Environmental2025-05-16 - Phase 1 ESA - D07-12-24-0045Download PDF
Environmental2025-05-16 - Environmental Impact Statement - D07-12-24-0045Download PDF
Erosion And Sediment Control Plan2025-05-12 - APPROVED Erosion and Sediment Control Plan - D07-12-24-0045Download PDF
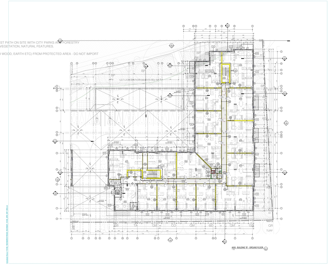
Floor Plan2024-06-26 - Floor plans and Parking Garage Plans - D07-12-24-0045Download PDF
Geotechnical Report2024-06-26 - Hydrogeological Study - D07-12-24-0045Download PDF
Geotechnical Report2024-06-26 - Groundwater Management Plan - D07-12-24-0045Download PDF
Geotechnical Report2024-06-26 - Geotechnical Report Letter of Reliance stamped - D07-12-24-0045Download PDF
Geotechnical Report2024-06-26 - Geotechnical Investigation Report - D07-12-24-0045Download PDF
Geotechnical Report2024-09-27 - Geotechnical Grading Review - D07-12-24-0045Download PDF
Geotechnical Report2025-05-16 - Hydrogeological Study - D07-12-24-0045Download PDF
Geotechnical Report2025-05-16 - Groundwater Management Plan - D07-12-24-0045Download PDF
Geotechnical Report2025-05-16 - Geotechnical Investigation Report - D07-12-24-0045Download PDF
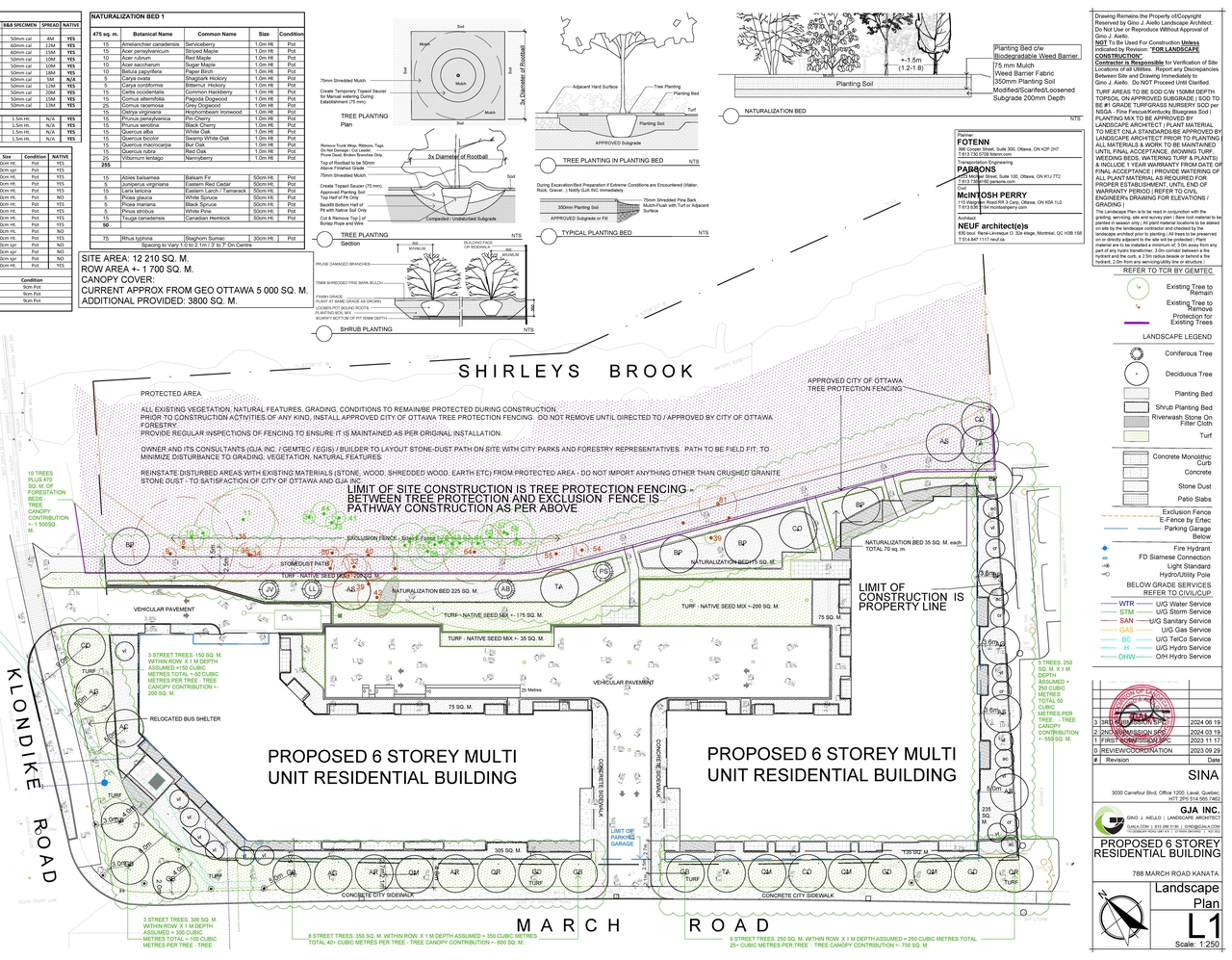
Landscape Plan2024-06-26 - Landscape Plan - D07-12-24-0045Download PDF
Landscape Plan2024-10-09 - Landscape Plan - D07-12-24-0045Download PDF
Landscape Plan2025-02-06 - Landscape Plan - D07-12-24-0045Download PDF
Landscape Plan2025-05-12 - APPROVED Landscape Plan - D07-12-24-00451Download PDF
Noise Study2024-06-26 - Transportation Noise Letter - D07-12-24-0045Download PDF
Noise Study2024-06-26 - Traffic noise assessment - D07-12-24-0045Download PDF
Noise Study2025-05-16 - Traffic Noise Assessment - D07-12-24-0045Download PDF
Planning2024-06-26 - Zoning Confirmation Report - D07-12-24-0045Download PDF
Planning2024-06-26 - Planning Rationale - D07-12-24-0045Download PDF
Planning2025-02-06 - Planning Act and Condominium Act - D07-12-24-0045Download PDF
Shadow Study2024-06-26 - Sun Shadow Study - D07-12-24-0045Download PDF
Site Servicing2024-06-26 - SITE SERVICING AND STORMWATER MANAGEMENT REPORT - D07-12-24-0045Download PDF
Site Servicing2024-09-27 - Site Servicing & SWM Report - D07-12-24-0045Download PDF
Site Servicing2025-02-06 - Site Servicing Plan - D07-12-24-0045Download PDF
Site Servicing2025-05-16 - Site Servicing and SWM Report - D07-12-24-0045Download PDF
Site Servicing2025-05-12 - APPROVED Site Servicing Plan - D07-12-24-0045Download PDF
Surveying2024-06-26 - Topographic Plan - D07-12-24-0045Download PDF
Surveying2024-09-27 - Plan of Survey - D07-12-24-0045Download PDF
Transportation Analysis2024-06-26 - Transportation Impact Assessment (Addendum letter) - D07-12-24-0045Download PDF
Transportation Analysis2024-06-26 - Transportation Impact Assessment - D07-12-24-0045Download PDF
Transportation Analysis2025-05-16 - TIA Strategy Report - D07-12-24-0045Download PDF
Tree Information and Conservation2024-06-26 - Tree Conservation Report - D07-12-24-0045Download PDF
Tree Information and Conservation2024-09-27 - Tree Conservation Report - D07-12-24-0045Download PDF
Tree Information and Conservation2025-02-06 - Tree Conservation Report - D07-12-24-0045Download PDF
Tree Information and Conservation2025-05-16 - Tree Conservation Report - D07-12-24-0045Download PDF
2024-06-26 - Waterproofing measure - D07-12-24-0045Download PDF
2024-06-26 - Slope Stability Assessment - D07-12-24-0045Download PDF
2024-06-26 - GEMTEC Species at Risk Permitting Requirements Letter - D07-12-24-0045Download PDF
2024-06-26 - Detailed Design Proposal - D07-12-24-0045Download PDF
2024-06-26 - PHASE I - Geofirma - Site assessment update - D07-12-24-0045Download PDF
2024-09-27 - Hydro Ottawa Electrical Poles - D07-12-24-0045Download PDF
2025-02-06 - Roadway Modifications - D07-12-24-0045Download PDF
2025-05-16 - Slope Stability Assessment - D07-12-24-0045Download PDF