2506 Innes (D07-12-24-0038)

2506 Innes (D07-12-24-0038) #

Summary #

Application StatusActive
Review StatusConsensus Achieved on Additional Submission
DescriptionA Site Plan Control application to construct a Planned Unit Development (PUD) with two three-storey residential buildings with a total of 44 dwelling units and a proposed gross floor area (GFA) of 4,716.8 square metres.
WardWard 2 - Laura Dudas
Date Initiated2024-06-13
Last Updated2025-10-10

Renders #

  • Rendering of building from page 19 of the file '2024-09-27 - Design Brief - D07-12-24-0038'
  • Rendering of building from page 14 of the file '2024-06-20 - Design Brief - D07-12-24-0038'
  • Rendering of building from page 17 of the file '2024-09-27 - Design Brief - D07-12-24-0038'
  • Rendering of building from page 20 of the file '2024-09-27 - Design Brief - D07-12-24-0038'
  • Rendering of building from page 17 of the file '2024-09-27 - Design Brief - D07-12-24-0038'
  • Rendering of building from page 14 of the file '2024-06-20 - Design Brief - D07-12-24-0038'
  • Rendering of building from page 9 of the file '2024-09-27 - Design Brief - D07-12-24-0038'
  • Rendering of building from page 21 of the file '2024-09-27 - Design Brief - D07-12-24-0038'
  • Rendering of building from page 18 of the file '2024-09-27 - Design Brief - D07-12-24-0038'
  • Rendering of building from page 16 of the file '2024-09-27 - Design Brief - D07-12-24-0038'
  • Rendering of building from page 11 of the file '2024-09-27 - Design Brief - D07-12-24-0038'
  • Rendering of building from page 1 of the file '2024-09-27 - Design Brief - D07-12-24-0038'
  • Rendering of building from page 19 of the file '2024-09-27 - Design Brief - D07-12-24-0038'
  • Rendering of building from page 14 of the file '2024-06-20 - Design Brief - D07-12-24-0038'
  • Rendering of building from page 17 of the file '2024-09-27 - Design Brief - D07-12-24-0038'
  • Rendering of building from page 20 of the file '2024-09-27 - Design Brief - D07-12-24-0038'
  • Rendering of building from page 17 of the file '2024-09-27 - Design Brief - D07-12-24-0038'
  • Rendering of building from page 14 of the file '2024-06-20 - Design Brief - D07-12-24-0038'
  • Rendering of building from page 9 of the file '2024-09-27 - Design Brief - D07-12-24-0038'
  • Rendering of building from page 21 of the file '2024-09-27 - Design Brief - D07-12-24-0038'
  • Rendering of building from page 18 of the file '2024-09-27 - Design Brief - D07-12-24-0038'
  • Rendering of building from page 16 of the file '2024-09-27 - Design Brief - D07-12-24-0038'
  • Rendering of building from page 11 of the file '2024-09-27 - Design Brief - D07-12-24-0038'
  • Rendering of building from page 1 of the file '2024-09-27 - Design Brief - D07-12-24-0038'

Site and Floor Plans #

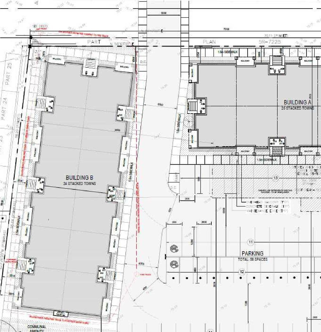
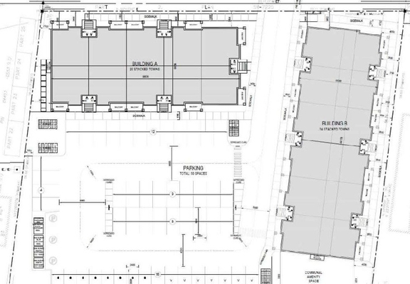
  • Construction site plan for project from page 8 of the file '2024-09-27 - Design Brief - D07-12-24-0038'
  • Construction site plan for project from page 13 of the file '2024-09-27 - Design Brief - D07-12-24-0038'
  • Construction site plan for project from page 13 of the file '2024-09-27 - Design Brief - D07-12-24-0038'
  • Construction site plan for project from page 14 of the file '2024-09-27 - Design Brief - D07-12-24-0038'
  • Floor plan for project from page 15 of the file '2024-09-27 - Design Brief - D07-12-24-0038'
  • Construction site plan for project from page 8 of the file '2024-09-27 - Design Brief - D07-12-24-0038'
  • Construction site plan for project from page 13 of the file '2024-09-27 - Design Brief - D07-12-24-0038'
  • Construction site plan for project from page 13 of the file '2024-09-27 - Design Brief - D07-12-24-0038'
  • Construction site plan for project from page 14 of the file '2024-09-27 - Design Brief - D07-12-24-0038'
  • Floor plan for project from page 15 of the file '2024-09-27 - Design Brief - D07-12-24-0038'

Documents #

TypeDocument
Application Summary2025-01-29 - Application Summary - D07-12-24-0038
Architectural Plans2024-12-24 - Site Plan - D07-12-24-0038
Architectural Plans2024-10-28-Erosion and Sediment Control Plan C-5 - D07-12-24-0038
Architectural Plans2024-10-28 - Schedules Water Services Plan C8 - D07-12-24-0038
Architectural Plans2024-10-28 - Schedules (Sewers) - Plan C7 - D07-12-24-0038
Architectural Plans2024-10-28 - Post-Development Drainage Plan C-10 - D07-12-24-0038
Architectural Plans2024-09-27 - Architectural Design Package - D07-12-24-0038
Architectural Plans2024-06-24 - Preliminary Construction Management Plan - D07-12-24-0038
Architectural Plans2024-06-20 - Pre-Development Drainge Plan - D07-12-24-0038
Architectural Plans2024-06-20 - Post-Development Drainage Plan - D07-12-24-0038
Architectural Plans2024-06-20 - MEMO - Grading Plan Review - D07-12-24-0038
Architectural Plans2024-06-20 - Architectural Design Package - D07-12-24-0038
Architectural Plans2025-06-12 - Site Plan - D07-12-24-0038
Architectural Plans2025-06-12 - C-7 - Erosion and Sediment Control Plan - D07-12-24-0038
Architectural Plans2025-06-12 - C-6 Grading Plan Detail - D07-12-24-0038
Architectural Plans2025-06-12 - C-5 Grading Plan Detail - D07-12-24-0038
Architectural Plans2025-06-12 - C-4 Grading Plan - D07-12-24-0038
Architectural Plans2025-06-12 - C-3 Existing Conditions, Removals and Decommissioning Plan - D07-12-24-0038
Architectural Plans2025-06-12 - C-2 Servicing Plan - D07-12-24-0038
Architectural Plans2025-06-12 - C-12 Post Development Drainage Plans - D07-12-24-0038
Architectural Plans2025-06-12 - C-11 Pre-Development Drainage Plans - D07-12-24-0038
Architectural Plans2025-06-12 - C-1 Site Servicing Plan (Sewers) - D07-12-24-0038
Architectural Plans2025-08-13 - Site Plan - D07-12-24-0038
Architectural Plans2025-08-13 - East and West Elevations - D07-12-24-0038
Architectural Plans2025-09-09 - Site Plan - D07-12-24-0038
Architectural Plans2025-09-08 - C5 Grading Plan Details - D07-12-24-0038
Architectural Plans2025-09-08 - C4 Grading Plan - D07-12-24-0038
Architectural Plans2025-09-08 - C2 Site Servicing Plan Water - D07-12-24-0038
Architectural Plans2025-09-08 - C12 Post Development Drainage Plans - D07-12-24-0038
Architectural Plans2025-09-08 - C1 Site Servicing Plan Sewers - D07-12-24-0038
Architectural Plans2025-10-29 - Approved Site Plan Approval Report - D07-12-24-0038
Architectural Plans2025-10-29 - Approved Site Plan - D07-12-24-0038
Architectural Plans2025-10-29 - Approved Elevations - D07-12-24-0038
Architectural Plans2025-11-10 - C5 Grading Plan Details - D07-12-24-0038
Design Brief2024-09-27 - Design Brief - D07-12-24-0038
Design Brief2024-06-20 - Design Brief - D07-12-24-0038
Environmental2024-09-27 - Phase II ESA - D07-12-24-0038
Environmental2024-06-24 - Phase II Environmental Site Assessment - D07-12-24-0038
Environmental2024-06-24 - Phase I Environmental Site Assessment - D07-12-24-0038
Environmental2024-06-20 - Environmental Noise Control Study - d07-12-24-0038
Environmental2025-06-12 - Environmental Noise Control Study - D07-12-24-0038
Environmental2025-09-26 - Phase II Environmental Site Assessment Update - D07-12-24-0038
Environmental2025-09-26 - Phase II Environmental Site Assessment - D07-12-24-0038
Environmental2025-09-26 - Phase II Environmental Site Assessment - D07-12-24-0038 (1)
Environmental2025-09-26 - Phase I-Environmental Site Assessment - D07-12-24-0038
Environmental2025-10-29 - Approved Environmental Remediation Report - D07-12-24-0038
Erosion And Sediment Control Plan2024-06-20 - Erosion and Sediment Control Plan - D07-12-24-0038
Erosion And Sediment Control Plan2025-10-29 - Approved Erosion and Sediment Control Plan - D07-12-24-0038
Existing Conditions2024-06-20 - Existing Conditions and Removals Plan - D07-12-24-0038
Existing Conditions2025-10-29 - Approved Existing Conditions, Removals and Decommissioning Plan - D07-12-24-0038
Geotechnical Report2024-10-28 - Grading Plan - Plan C4 - D07-12-24-0038
Geotechnical Report2024-09-27 - Grading Plan - D07-12-24-0038
Geotechnical Report2024-06-24 - Geotechnical Report - D07-12-24-0038
Geotechnical Report2024-06-20 - Grading Plan - D07-12-24-0038
Geotechnical Report2025-10-29 - Approved Grading Plan and Details - D07-12-24-0038
Landscape Plan2024-12-24 - Landscape Plan - D07-12-24-0038
Landscape Plan2024-09-27 - Landscape Plan & Details - D07-12-24-0038
Landscape Plan2024-06-24 - Landscape Plans - D07-12-24-0038
Landscape Plan2025-06-12 - Landscape Plan and Details - D07-12-24-0038
Landscape Plan2025-08-13 - Landscape Plans - D07-12-24-0038
Landscape Plan2025-09-08 - Landscape Plan - D07-12-24-0038
Landscape Plan2025-10-31 - Approved Landscape Plan and Details - D07-12-24-0038
Planning2024-12-24 - Zoning Confirmation Report - D07-12-24-0038
Planning2024-09-27 - Zoning Confirmation Report - D07-12-24-0038
Planning2024-06-20 - Zoning Confirmation Report - D07-12-24-0038
Site Servicing2024-10-28 - Site Servicing Plan, Plan C1 - D07-12-24-0038
Site Servicing2024-10-28 - Servicing Plan, Plan C2 - D07-12-24-0038
Site Servicing2024-09-27 - Site Servicing Plan (Sewers) - D07-12-24-0038
Site Servicing2024-06-20 - Site Servicing Plan - D07-12-24-0038
Site Servicing2024-06-20 - SITE SERVICING & STORMWATER MANAGEMENT REPORT - D07-12-24-0038
Site Servicing2024-06-20 - Servicing Plan - D07-12-24-0038
Site Servicing2025-10-29 - Approved Site Servicing Plan - Water - D07-12-24-0038
Site Servicing2025-10-29 - Approved Site Servicing Plan - Sewers - D07-12-24-0038
Stormwater Management2024-10-28 - SS & SWM -D07-12-24-0038
Stormwater Management2025-06-12 - SS & SWM Report - D07-12-24-0038
Surveying2024-06-20 - Topographic Plan - D07-12-24-0038
Tree Information and Conservation2024-12-24 - Tree Conservation Report - D07-12-24-0038
Tree Information and Conservation2024-09-27 - Tree Conservation Report - D07-12-24-0038
Tree Information and Conservation2024-06-20 - Tree Conservation Report - D07-12-24-0038
Tree Information and Conservation2025-09-26 - Tree Conservation Report - D07-12-24-0038
2024-10-28 - Response to Deficiencies - D07-12-24-0038
2024-10-28 - Gray Eng Response -D07-12-24-0038
2024-06-20 - Schedules Sewers - D07-12-24-0038
2024-06-20 - Schedules -Water Service - D07-12-24-0038
2024-06-20 - Notes - D07-12-24-0038
2025-06-12- C-10 Schedules (Water Service) - D07-12-24-0038
2025-06-12 - C-9 Schedules (Sewers) - D07-12-24-0038
2025-06-12 - C-8 Notes - D07-12-24-0038
2025-09-08 - C7 Erosion and Sediment Control - D07-12-24-0038
2025-10-29 - Approved Schedules (Water Service) - D07-12-24-0038
2025-10-29 - Approved Schedules (Sewers) - D07-12-24-0038
2025-10-29 - Approved Notes C-8 - D07-12-24-0038
2025-10-30 - Approved Revised Delegated Authority Report - D07-12-24-0038