170 Slater St. (D07-12-24-0026)

170 Slater St. (D07-12-24-0026) #

Summary #

Application StatusInactive
Review StatusNotice of Decision Sent
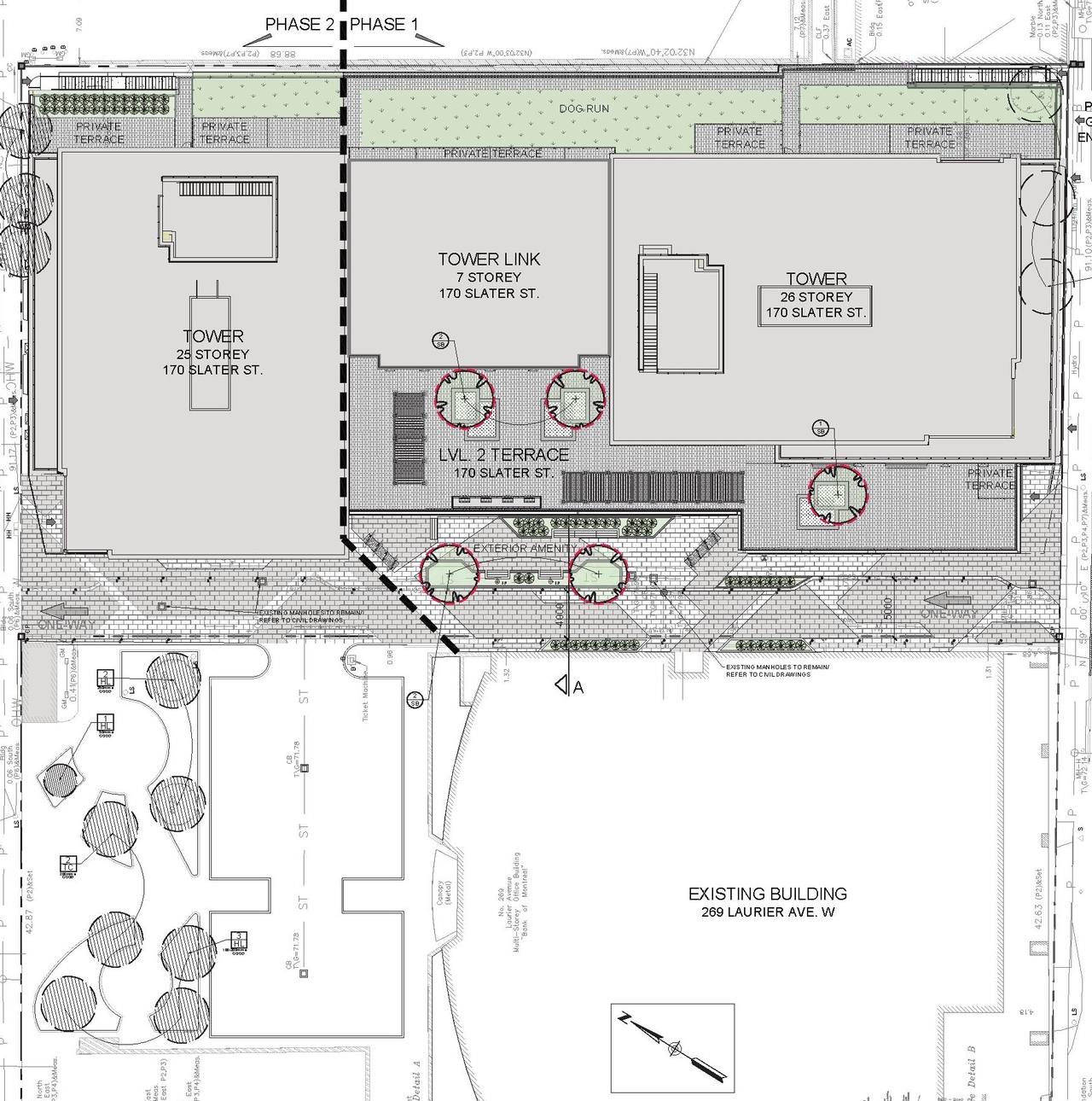
DescriptionTwo towers, one fronting Slater Street (25-storeys) and one fronting laurier Avenue West (26-storeys).
WardWard 14 - Ariel Troster
Date Initiated2024-04-30
Last Updated2024-06-17

Renders #

  • Rendering of building from page 54 of the file '2024-05-09 - UDRP report - D07-12-24-0026'
  • Rendering of building from page 52 of the file '2024-05-09 - UDRP report - D07-12-24-0026'
  • Rendering of building from page 68 of the file '2024-05-09 - UDRP report - D07-12-24-0026'
  • Rendering of building from page 18 of the file '2024-05-09 - UDRP report - D07-12-24-0026'
  • Rendering of building from page 68 of the file '2024-05-09 - UDRP report - D07-12-24-0026'
  • Rendering of building from page 55 of the file '2024-05-09 - UDRP report - D07-12-24-0026'
  • Rendering of building from page 15 of the file '2024-05-09 - UDRP report - D07-12-24-0026'
  • Rendering of building from page 53 of the file '2024-05-09 - UDRP report - D07-12-24-0026'
  • Rendering of building from page 59 of the file '2024-05-09 - UDRP report - D07-12-24-0026'
  • Rendering of building from page 22 of the file '2024-05-09 - UDRP report - D07-12-24-0026'
  • Rendering of building from page 51 of the file '2024-05-09 - UDRP report - D07-12-24-0026'
  • Rendering of building from page 42 of the file '2024-05-09 - UDRP report - D07-12-24-0026'
  • Rendering of building from page 19 of the file '2024-05-09 - UDRP report - D07-12-24-0026'
  • Rendering of building from page 1 of the file '2024-05-09 - UDRP report - D07-12-24-0026'
  • Rendering of building from page 18 of the file '2024-05-09 - UDRP report - D07-12-24-0026'
  • Rendering of building from page 19 of the file '2024-05-09 - UDRP report - D07-12-24-0026'
  • Rendering of building from page 23 of the file '2024-05-09 - UDRP report - D07-12-24-0026'
  • Rendering of building from page 68 of the file '2024-05-09 - UDRP report - D07-12-24-0026'
  • Rendering of building from page 19 of the file '2024-05-09 - UDRP report - D07-12-24-0026'
  • Rendering of building from page 19 of the file '2024-05-09 - UDRP report - D07-12-24-0026'
  • Rendering of building from page 22 of the file '2024-05-09 - UDRP report - D07-12-24-0026'
  • Rendering of building from page 19 of the file '2024-05-09 - UDRP report - D07-12-24-0026'
  • Rendering of building from page 19 of the file '2024-05-09 - UDRP report - D07-12-24-0026'
  • Rendering of building from page 19 of the file '2024-05-09 - UDRP report - D07-12-24-0026'
  • Rendering of building from page 22 of the file '2024-05-09 - UDRP report - D07-12-24-0026'
  • Rendering of building from page 22 of the file '2024-05-09 - UDRP report - D07-12-24-0026'
  • Rendering of building from page 45 of the file '2024-05-09 - UDRP report - D07-12-24-0026'
  • Rendering of building from page 56 of the file '2024-05-09 - UDRP report - D07-12-24-0026'
  • Rendering of building from page 24 of the file '2024-05-09 - UDRP report - D07-12-24-0026'
  • Rendering of building from page 58 of the file '2024-05-09 - UDRP report - D07-12-24-0026'
  • Rendering of building from page 22 of the file '2024-05-09 - UDRP report - D07-12-24-0026'
  • Rendering of building from page 22 of the file '2024-05-09 - UDRP report - D07-12-24-0026'
  • Rendering of building from page 41 of the file '2024-05-09 - UDRP report - D07-12-24-0026'
  • Rendering of building from page 68 of the file '2024-05-09 - UDRP report - D07-12-24-0026'
  • Rendering of building from page 19 of the file '2024-05-09 - UDRP report - D07-12-24-0026'
  • Rendering of building from page 26 of the file '2024-05-09 - UDRP report - D07-12-24-0026'
  • Rendering of building from page 22 of the file '2024-05-09 - UDRP report - D07-12-24-0026'
  • Rendering of building from page 22 of the file '2024-05-09 - UDRP report - D07-12-24-0026'
  • Rendering of building from page 50 of the file '2024-05-09 - UDRP report - D07-12-24-0026'
  • Rendering of building from page 22 of the file '2024-05-09 - UDRP report - D07-12-24-0026'
  • Rendering of building from page 10 of the file '2024-05-09 - UDRP report - D07-12-24-0026'
  • Rendering of building from page 9 of the file '2024-05-09 - UDRP report - D07-12-24-0026'
  • Rendering of building from page 61 of the file '2024-05-09 - UDRP report - D07-12-24-0026'
  • Rendering of building from page 66 of the file '2024-05-09 - UDRP report - D07-12-24-0026'
  • Rendering of building from page 49 of the file '2024-05-09 - UDRP report - D07-12-24-0026'
  • Rendering of building from page 47 of the file '2024-05-09 - UDRP report - D07-12-24-0026'
  • Rendering of building from page 54 of the file '2024-05-09 - UDRP report - D07-12-24-0026'
  • Rendering of building from page 52 of the file '2024-05-09 - UDRP report - D07-12-24-0026'
  • Rendering of building from page 68 of the file '2024-05-09 - UDRP report - D07-12-24-0026'
  • Rendering of building from page 18 of the file '2024-05-09 - UDRP report - D07-12-24-0026'
  • Rendering of building from page 68 of the file '2024-05-09 - UDRP report - D07-12-24-0026'
  • Rendering of building from page 55 of the file '2024-05-09 - UDRP report - D07-12-24-0026'
  • Rendering of building from page 15 of the file '2024-05-09 - UDRP report - D07-12-24-0026'
  • Rendering of building from page 53 of the file '2024-05-09 - UDRP report - D07-12-24-0026'
  • Rendering of building from page 59 of the file '2024-05-09 - UDRP report - D07-12-24-0026'
  • Rendering of building from page 22 of the file '2024-05-09 - UDRP report - D07-12-24-0026'
  • Rendering of building from page 51 of the file '2024-05-09 - UDRP report - D07-12-24-0026'
  • Rendering of building from page 42 of the file '2024-05-09 - UDRP report - D07-12-24-0026'
  • Rendering of building from page 19 of the file '2024-05-09 - UDRP report - D07-12-24-0026'
  • Rendering of building from page 1 of the file '2024-05-09 - UDRP report - D07-12-24-0026'
  • Rendering of building from page 18 of the file '2024-05-09 - UDRP report - D07-12-24-0026'
  • Rendering of building from page 19 of the file '2024-05-09 - UDRP report - D07-12-24-0026'
  • Rendering of building from page 23 of the file '2024-05-09 - UDRP report - D07-12-24-0026'
  • Rendering of building from page 68 of the file '2024-05-09 - UDRP report - D07-12-24-0026'
  • Rendering of building from page 19 of the file '2024-05-09 - UDRP report - D07-12-24-0026'
  • Rendering of building from page 19 of the file '2024-05-09 - UDRP report - D07-12-24-0026'
  • Rendering of building from page 22 of the file '2024-05-09 - UDRP report - D07-12-24-0026'
  • Rendering of building from page 19 of the file '2024-05-09 - UDRP report - D07-12-24-0026'
  • Rendering of building from page 19 of the file '2024-05-09 - UDRP report - D07-12-24-0026'
  • Rendering of building from page 19 of the file '2024-05-09 - UDRP report - D07-12-24-0026'
  • Rendering of building from page 22 of the file '2024-05-09 - UDRP report - D07-12-24-0026'
  • Rendering of building from page 22 of the file '2024-05-09 - UDRP report - D07-12-24-0026'
  • Rendering of building from page 45 of the file '2024-05-09 - UDRP report - D07-12-24-0026'
  • Rendering of building from page 56 of the file '2024-05-09 - UDRP report - D07-12-24-0026'
  • Rendering of building from page 24 of the file '2024-05-09 - UDRP report - D07-12-24-0026'
  • Rendering of building from page 58 of the file '2024-05-09 - UDRP report - D07-12-24-0026'
  • Rendering of building from page 22 of the file '2024-05-09 - UDRP report - D07-12-24-0026'
  • Rendering of building from page 22 of the file '2024-05-09 - UDRP report - D07-12-24-0026'
  • Rendering of building from page 41 of the file '2024-05-09 - UDRP report - D07-12-24-0026'
  • Rendering of building from page 68 of the file '2024-05-09 - UDRP report - D07-12-24-0026'
  • Rendering of building from page 19 of the file '2024-05-09 - UDRP report - D07-12-24-0026'
  • Rendering of building from page 26 of the file '2024-05-09 - UDRP report - D07-12-24-0026'
  • Rendering of building from page 22 of the file '2024-05-09 - UDRP report - D07-12-24-0026'
  • Rendering of building from page 22 of the file '2024-05-09 - UDRP report - D07-12-24-0026'
  • Rendering of building from page 50 of the file '2024-05-09 - UDRP report - D07-12-24-0026'
  • Rendering of building from page 22 of the file '2024-05-09 - UDRP report - D07-12-24-0026'
  • Rendering of building from page 10 of the file '2024-05-09 - UDRP report - D07-12-24-0026'
  • Rendering of building from page 9 of the file '2024-05-09 - UDRP report - D07-12-24-0026'
  • Rendering of building from page 61 of the file '2024-05-09 - UDRP report - D07-12-24-0026'
  • Rendering of building from page 66 of the file '2024-05-09 - UDRP report - D07-12-24-0026'
  • Rendering of building from page 49 of the file '2024-05-09 - UDRP report - D07-12-24-0026'
  • Rendering of building from page 47 of the file '2024-05-09 - UDRP report - D07-12-24-0026'

Location #

Select a marker to view the address.

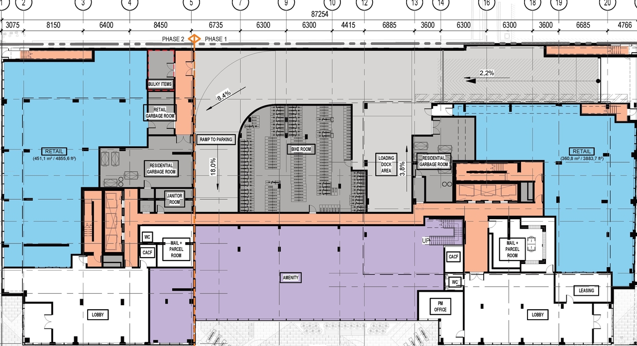
Site and Floor Plans #

  • Construction site plan for project from page 9 of the file '2024-05-09 - UDRP report - D07-12-24-0026'
  • Construction site plan for project from page 9 of the file '2024-05-09 - UDRP report - D07-12-24-0026'
  • Construction site plan for project from page 12 of the file '2024-05-09 - UDRP report - D07-12-24-0026'
  • Construction site plan for project from page 19 of the file '2024-05-09 - UDRP report - D07-12-24-0026'
  • Construction site plan for project from page 27 of the file '2024-05-09 - UDRP report - D07-12-24-0026'
  • Construction site plan for project from page 28 of the file '2024-05-09 - UDRP report - D07-12-24-0026'
  • Construction site plan for project from page 30 of the file '2024-05-09 - UDRP report - D07-12-24-0026'
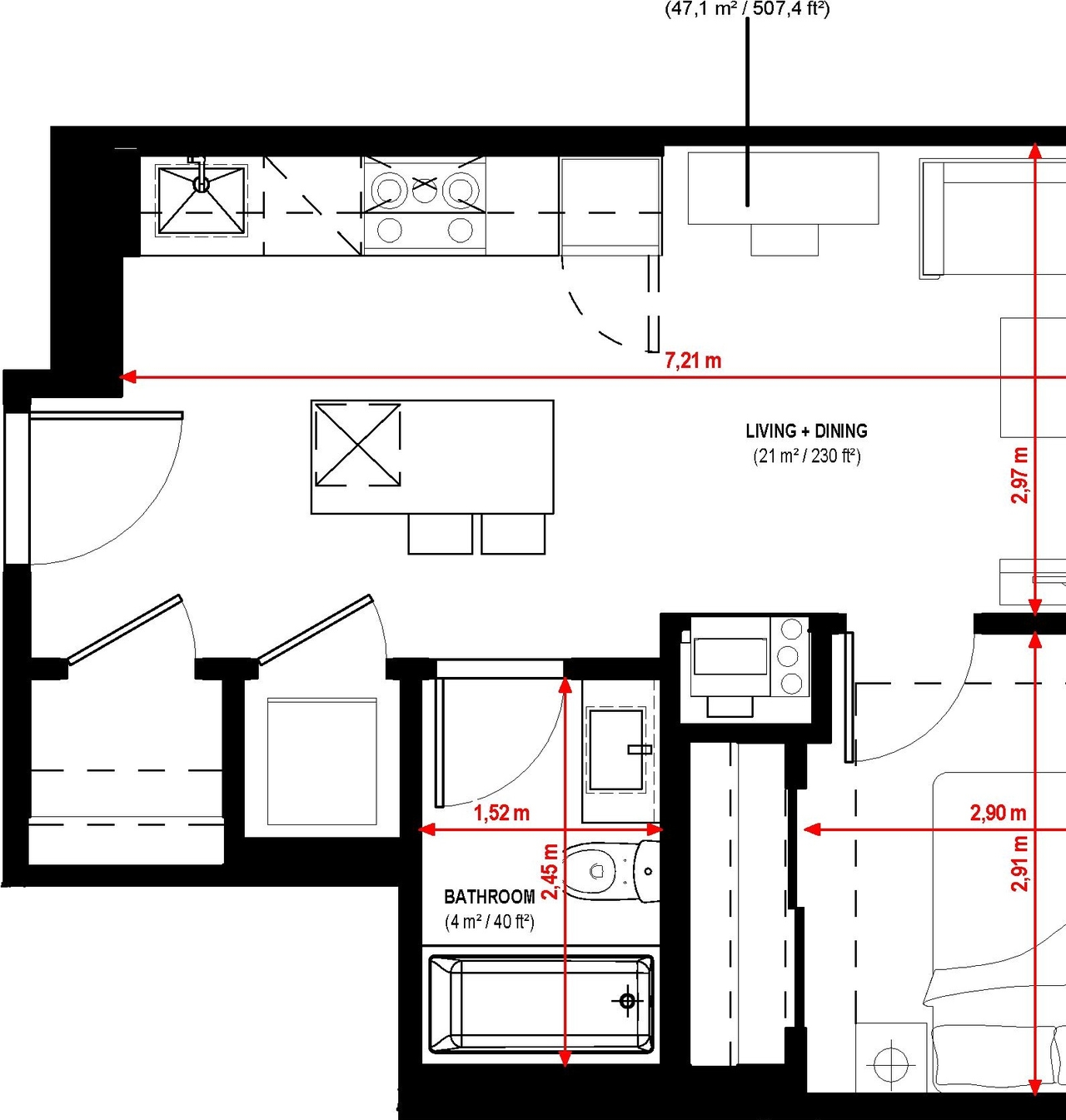
  • Floor plan for project from page 31 of the file '2024-05-09 - UDRP report - D07-12-24-0026'
  • Floor plan for project from page 33 of the file '2024-05-09 - UDRP report - D07-12-24-0026'
  • Floor plan for project from page 35 of the file '2024-05-09 - UDRP report - D07-12-24-0026'
  • Floor plan for project from page 35 of the file '2024-05-09 - UDRP report - D07-12-24-0026'
  • Floor plan for project from page 36 of the file '2024-05-09 - UDRP report - D07-12-24-0026'
  • Floor plan for project from page 36 of the file '2024-05-09 - UDRP report - D07-12-24-0026'
  • Floor plan for project from page 37 of the file '2024-05-09 - UDRP report - D07-12-24-0026'
  • Floor plan for project from page 43 of the file '2024-05-09 - UDRP report - D07-12-24-0026'
  • Construction site plan for project from page 67 of the file '2024-05-09 - UDRP report - D07-12-24-0026'
  • Construction site plan for project from page 9 of the file '2024-05-09 - UDRP report - D07-12-24-0026'
  • Construction site plan for project from page 9 of the file '2024-05-09 - UDRP report - D07-12-24-0026'
  • Construction site plan for project from page 12 of the file '2024-05-09 - UDRP report - D07-12-24-0026'
  • Construction site plan for project from page 19 of the file '2024-05-09 - UDRP report - D07-12-24-0026'
  • Construction site plan for project from page 27 of the file '2024-05-09 - UDRP report - D07-12-24-0026'
  • Construction site plan for project from page 28 of the file '2024-05-09 - UDRP report - D07-12-24-0026'
  • Construction site plan for project from page 30 of the file '2024-05-09 - UDRP report - D07-12-24-0026'
  • Floor plan for project from page 31 of the file '2024-05-09 - UDRP report - D07-12-24-0026'
  • Floor plan for project from page 33 of the file '2024-05-09 - UDRP report - D07-12-24-0026'
  • Floor plan for project from page 35 of the file '2024-05-09 - UDRP report - D07-12-24-0026'
  • Floor plan for project from page 35 of the file '2024-05-09 - UDRP report - D07-12-24-0026'
  • Floor plan for project from page 36 of the file '2024-05-09 - UDRP report - D07-12-24-0026'
  • Floor plan for project from page 36 of the file '2024-05-09 - UDRP report - D07-12-24-0026'
  • Floor plan for project from page 37 of the file '2024-05-09 - UDRP report - D07-12-24-0026'
  • Floor plan for project from page 43 of the file '2024-05-09 - UDRP report - D07-12-24-0026'
  • Construction site plan for project from page 67 of the file '2024-05-09 - UDRP report - D07-12-24-0026'

Documents #

TypeDocument
Application Summary2024-05-06 - Application Summary - D07-12-24-0026
Architectural Plans2024-06-17 - Approved Phase II General Plan of Services - D07-12-24-0036
Architectural Plans2024-06-17 - Approved Phase I Site Plan - D07-12-24-0026
Architectural Plans2024-06-17 - Approved Phase I General Plan of Services - D07-12-24-0026
Architectural Plans2024-06-17 - Approved Phase I & II Site Plan - D07-12-24-0026
Architectural Plans2024-06-17 - Approved Elevations - D07-12-24-0026
Architectural Plans2024-05-01 - General Plan of Services Phase 2 - D07-12-24-0026
Architectural Plans2024-05-01 - General Plan of Services - D07-12-24-0026
Architectural Plans2024-05-01 - Architectural Drawings - D07-12-24-0026
Architectural Plans2025-03-13 - Parks and Open Space Plan - D07-12-24-0026
Architectural Plans2025-03-13 - Draft Plan of Subdivision Ph2 - D07-12-24-0026
Architectural Plans2025-03-13 - Draft Plan of Subdivision Ph1 - D07-12-24-0026
Architectural Plans2025-03-13 - Conceptual Grading, Erosion and Sediment Control Plan 2 - D07-12-24-0026
Architectural Plans2025-03-13 - Conceptual Grading, Erosion and Sediment Control Plan 1 - D07-12-24-0026
Architectural Plans2025-03-13 - Conceptual General Plan of Services 1 - D07-12-24-0026
Design Brief2024-05-09 - UDRP report - D07-12-24-0026
Design Brief2024-05-07 - UDRP Responses - D07-12-24-0026
Electrical Plan2024-05-01 - Electrical - D07-12-24-0026
Environmental2024-05-01 - Phase Two Environmental Site Assessment - D07-12-24-0026
Environmental2024-05-01 - Phase One Environmental Site Assessment - D07-12-24-0026
Existing Conditions2024-06-17 - Approved Existing Conditions, Removals & Reinstatement Plan - D07-12-24-0026
Existing Conditions2024-05-01 - EXISTING CONDITIONS, REMOVALS AND REINSTATEMENT PLAN - D07-12-24-0026
Geotechnical Report2024-06-17 - Approved Phase II Grading, Erosion & Sediment Control Plan - D07-12-24-0026
Geotechnical Report2024-06-17 - Approved Phase I Grading, Erosion & Sediment Control Plan - D07-12-24-0026
Geotechnical Report2024-05-01 - GRADING, EROSION AND SEDIMENT CONTROL PLAN - PHASE 2 NORTH TOWER - D07-12-24-0026
Geotechnical Report2024-05-01 - Grading Erosion and Sediment Control Plan - D07-12-24-0026
Geotechnical Report2024-05-01 - Geotechnical Investigation - D07-12-24-0026
Landscape Plan2024-06-17 - Approved Phase I Landscape Plan - D07-12-24-0026
Landscape Plan2024-05-01 - Landscape (PHASE 1 ONLY ) - D07-12-24-0026
Landscape Plan2024-05-01 - Landscape (PHASE 1 and 2) - D07-12-24-0026
Noise Study2024-05-01 - Roadway Traffic Noise Assessment - D07-12-24-0026
Planning2024-05-01 - Zoning Confirmation Report - D07-12-24-0026
Site Servicing2024-05-01 - Servicing and Stormwater Management Report -D07-12-24-0026
Stormwater Management2025-03-13 - Conceptual Site Servicing and Stormwater Management Report - D07-12-24-0026
Transportation Analysis2024-05-01 - Transportation Impact Assessment - D07-12-24-0026
Tree Information and Conservation2024-06-17 - Approved Landscape & TCR Report Phase I & II Complete - D07-12-24-0026
Wind Study2024-05-01 - Pedestrian Level Wind Study - D07-12-24-0026
2024-06-17 - Signed Delegated Authority Report - D07-12-24-0026
2024-05-01 - Technical Notes -D07-12-24-0026
2024-05-01 - Rymar Turf Drawing for Dog Run - D07-12-24-0026
2024-05-01 - Preconsultation Package - D07-12-24-0026
2024-05-01 - Application Invoice and Receipt - D07-12-24-0026