80 Cope Dr. (D07-12-23-0096)#
Summary#
| Application Status | File Pending |
| Review Status | Application File Pending |
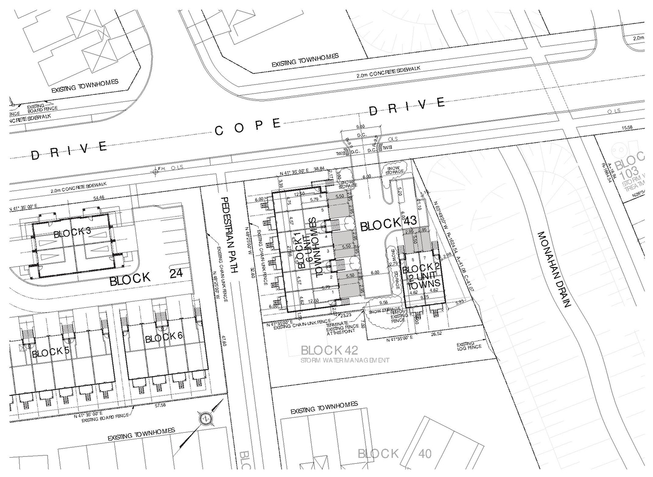
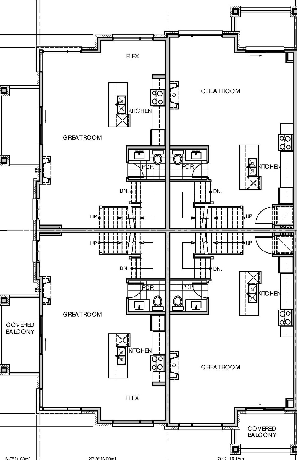
| Description | A Site Plan Control application to construct 8 back-to-back and 8 standard 3 storey townhouses for a total of 16 units. All units will have their own driveway and garage and will have a combined total GFA of 2,312 m2. |
| Ward | Ward 23 - Allan Hubley |
| Date Initiated | 2023-06-27 |
| Last Updated | 2023-10-16 |
Renders#
Location#
Select a marker to view the address.
Site Plans, Elevations and Floor Plans#
Documents#
Related Projects#
| Project | Last Updated | Date Initiated |
|---|---|---|
80-151 Cope Dr. 150-170 Akerson Rd. D02-02-22-0080 | 2024-10-08 | 2022-08-15 |


















