745 Smyth (D07-12-23-0091)

745 Smyth (D07-12-23-0091) #

Summary #

Application StatusPost Approval
Review StatusSigned Letter of Undertaking Received
DescriptionA Site Plan Control application to construct a bus loop in the front yard of Vincent Massey Elementary School to help manage traffic around the site during peak hours and improve safety.
WardWard 18 - Marty Carr
Date Initiated2023-06-19
Last Updated2025-03-21

Renders #

  • Rendering of building from page 2 of the file '2023-06-27 - Planing Rationale and Design Brief - D07-12-23-0091'
  • Rendering of building from page 2 of the file '2023-06-27 - Planing Rationale and Design Brief - D07-12-23-0091'

Site and Floor Plans #

  • Construction site plan for project from page 4 of the file '2023-06-27 - Planing Rationale and Design Brief - D07-12-23-0091'
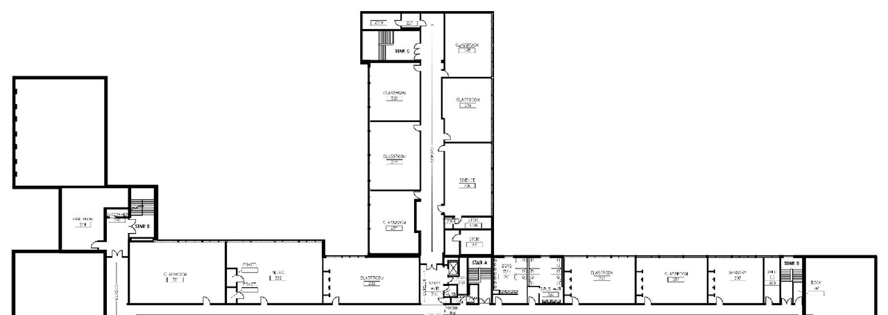
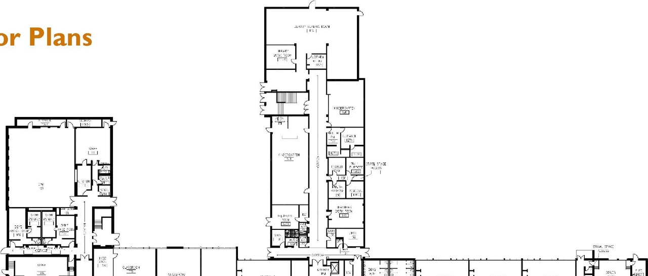
  • Floor plan for project from page 10 of the file '2023-06-27 - Planing Rationale and Design Brief - D07-12-23-0091'
  • Floor plan for project from page 10 of the file '2023-06-27 - Planing Rationale and Design Brief - D07-12-23-0091'
  • Construction site plan for project from page 4 of the file '2023-06-27 - Planing Rationale and Design Brief - D07-12-23-0091'
  • Floor plan for project from page 10 of the file '2023-06-27 - Planing Rationale and Design Brief - D07-12-23-0091'
  • Floor plan for project from page 10 of the file '2023-06-27 - Planing Rationale and Design Brief - D07-12-23-0091'

Files #

TypeNameLinks
Application Summary2023-07-28 - Application Summary - D07-12-23-0091Download PDF
Architectural Plans2023-11-28 - Site Plan New Work - D07-12-23-0091Download PDF
Architectural Plans2023-11-28 - Site Plan Demolition - D07-12-23-0091Download PDF
Architectural Plans2023-06-27 - Site Plan New Work - D07-12-23-0091Download PDF
Architectural Plans2023-06-27 - Demolition Plan - D07-12-23-0091Download PDF
Architectural Plans2023-06-19 - Site Plan - D07-12-23-0091Download PDF
Architectural Plans2023-06-19 - Demolition Plan - D07-12-23-0091Download PDF
Design Brief2023-06-27 - Planing Rationale and Design Brief - D07-12-23-0091Download PDF
Design Brief2023-06-19 - Planing Rationale Design Brief - D07-12-23-0091Download PDF
Environmental2023-06-27 - Phase Two Environmental Site Assessment - D07-12-23-0091Download PDF
Environmental2023-06-27 - Phase One Environmental Site Assessment - D07-12-23-0091Download PDF
Environmental2023-06-19 - Phase Two Environmental Site Assessment - D07-12-23-0091Download PDF
Environmental2023-06-19 - Phase One Environmental Site Assessment - D07-12-23-0091Download PDF
Existing Conditions2023-06-27 - EXISTING CONDITIONS AND REMOVALS PLAN - D07-12-23-0091Download PDF
Existing Conditions2023-06-19 - Existing Vegitation and Landscape Plan - D07-12-23-0091Download PDF
Existing Conditions2023-06-19 - EXISTING CONDITIONS AND REMOVAL PLAN - D07-12-23-0091Download PDF
Geotechnical Report2024-02-28 - Grading & Servicing Plan - D07-12-23-0091Download PDF
Geotechnical Report2023-11-28 - Grading and Servicing Plan - D07-12-23-0091Download PDF
Geotechnical Report2023-06-27 - Grading and Servicing Plan - D07-12-23-0091Download PDF
Geotechnical Report2023-06-27 - Geotechnical Investigation - D07-12-23-0091Download PDF
Geotechnical Report2023-06-19 - Grading and Servicing Plan - D07-12-23-0091.Download PDF
Geotechnical Report2023-06-19 - Geotechnical Investigation - D07-12-23-0091Download PDF
Geotechnical Report2025-05-29 - Grading and Servicing Plan - D07-12-23-0091Download PDF
Landscape Plan2023-11-28 - Landscape Plan and Details - D07-12-23-0091Download PDF
Landscape Plan2023-11-28 - Landscape Circulation Comments - D07-12-23-0091Download PDF
Landscape Plan2023-06-27 - Landscape Plans - D07-12-23-0091Download PDF
Stormwater Management2024-02-28 - SWM Brief - D07-12-23-0091Download PDF
Stormwater Management2023-11-28 - Memo - Stormwater Management Brief - D07-12-23-0091Download PDF
Surveying2023-11-28 - Survey Plan - D07-12-23-0091Download PDF
Surveying2023-06-27 - Topographic Plan - D07-12-23-0091Download PDF
Surveying2023-06-19 - Topographic Plan - D07-12-23-0091Download PDF
Transportation Analysis2023-06-27 - Transportation Impact Assessment - D07-12-23-0091Download PDF
Transportation Analysis2023-06-19 - Transportation Impact Assessment - D07-12-23-0091Download PDF
Tree Information and Conservation2023-06-27 - Tree Conservation Inventory - D07-12-23-0091Download PDF
Tree Information and Conservation2023-06-19 - TREE CONSERVATION INVENTORY - D07-12-23-0091Download PDF
2024-02-28 - Pavement Marking & Signage - D07-12-23-0091Download PDF
2023-06-19 - Technical Memo - D07-12-23-0091Download PDF
2025-05-29 - Tech Memo - D07-12-23-0091Download PDF