780 Baseline/1350 Fisher (D07-12-23-0076)

780 Baseline/1350 Fisher (D07-12-23-0076) #

Summary #

Application StatusPost Approval
Review StatusReceipt of Agreement from Owner Pending
DescriptionA Site Plan Control application has been received to construct a 24-storey mixed use high-rise on a four-storey podium and retain the existing commercial one-storey commercial plaza. Phase 1 will consist of Building A on the existing surface parking lot along Fisher Ave, and retention of the existing commercial mall. Building A is proposed at 24-storeys, sited along Fisher Ave, and will have 320 residential units with about 480 sq.m. of ground floor commercial space. The rear of the lot with frontage to Hilliard Ave will be 4-storeys in height with a townhouse form.
WardWard 9 - Sean Devine
Date Initiated2023-06-12
Last Updated2025-10-06

Renders #

  • Rendering of building from page 11 of the file '2023-06-12 - Design Brief - D07-12-23-0076'
  • Rendering of building from page 10 of the file '2023-06-12 - Design Brief - D07-12-23-0076'
  • Rendering of building from page 10 of the file '2023-06-12 - Design Brief - D07-12-23-0076'
  • Rendering of building from page 11 of the file '2023-06-12 - Design Brief - D07-12-23-0076'
  • Rendering of building from page 6 of the file '2023-06-12 - Floor, Perspective Views, Shadow Plans - D07-12-23-0076'
  • Rendering of building from page 1 of the file '2023-06-12 - Design Brief - D07-12-23-0076'
  • Rendering of building from page 5 of the file '2023-06-12 - Floor, Perspective Views, Shadow Plans - D07-12-23-0076'
  • Rendering of building from page 4 of the file '2023-06-12 - Floor, Perspective Views, Shadow Plans - D07-12-23-0076'
  • Rendering of building from page 11 of the file '2023-06-12 - Design Brief - D07-12-23-0076'
  • Rendering of building from page 10 of the file '2023-06-12 - Design Brief - D07-12-23-0076'
  • Rendering of building from page 10 of the file '2023-06-12 - Design Brief - D07-12-23-0076'
  • Rendering of building from page 11 of the file '2023-06-12 - Design Brief - D07-12-23-0076'
  • Rendering of building from page 6 of the file '2023-06-12 - Floor, Perspective Views, Shadow Plans - D07-12-23-0076'
  • Rendering of building from page 1 of the file '2023-06-12 - Design Brief - D07-12-23-0076'
  • Rendering of building from page 5 of the file '2023-06-12 - Floor, Perspective Views, Shadow Plans - D07-12-23-0076'
  • Rendering of building from page 4 of the file '2023-06-12 - Floor, Perspective Views, Shadow Plans - D07-12-23-0076'

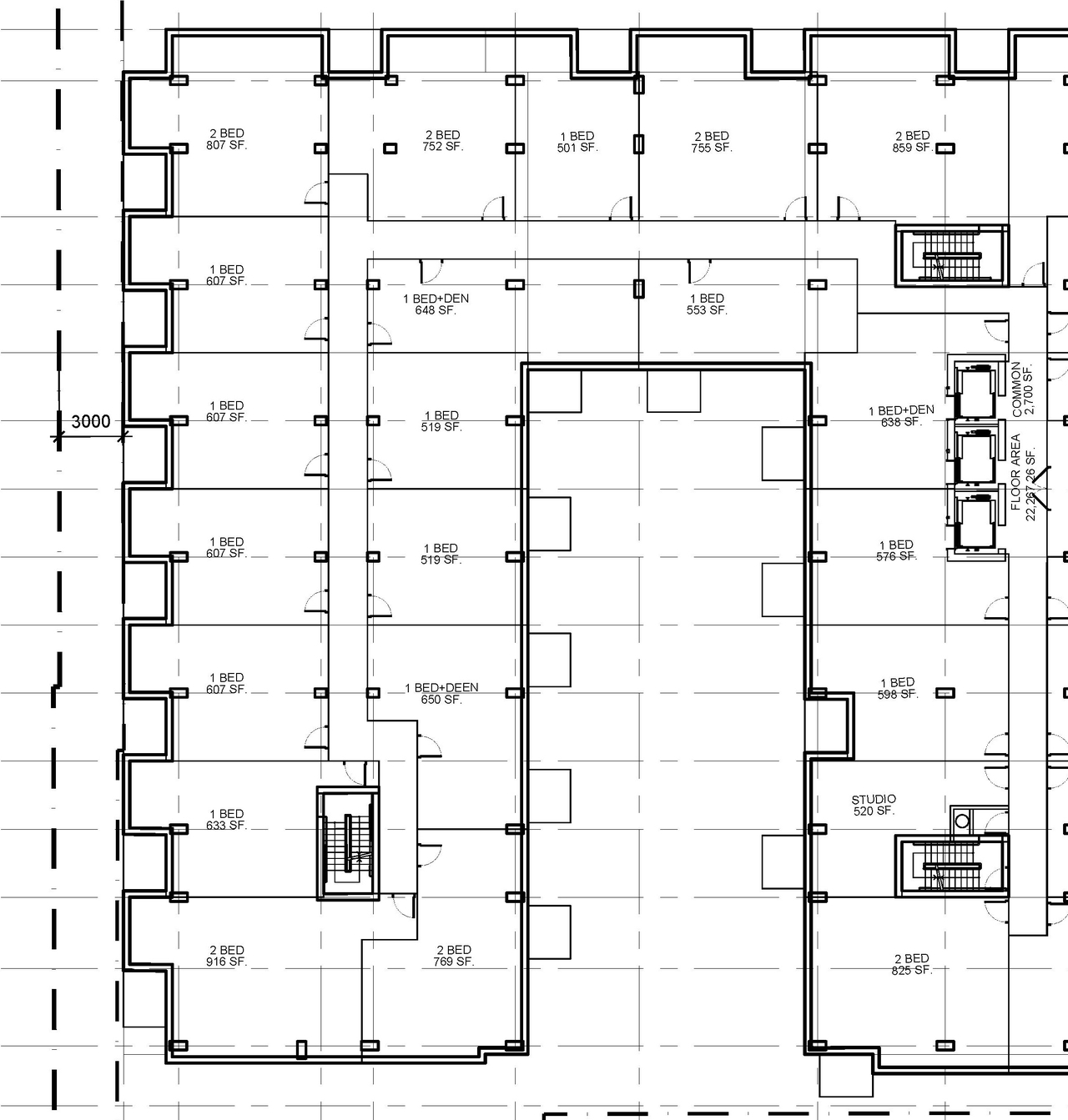
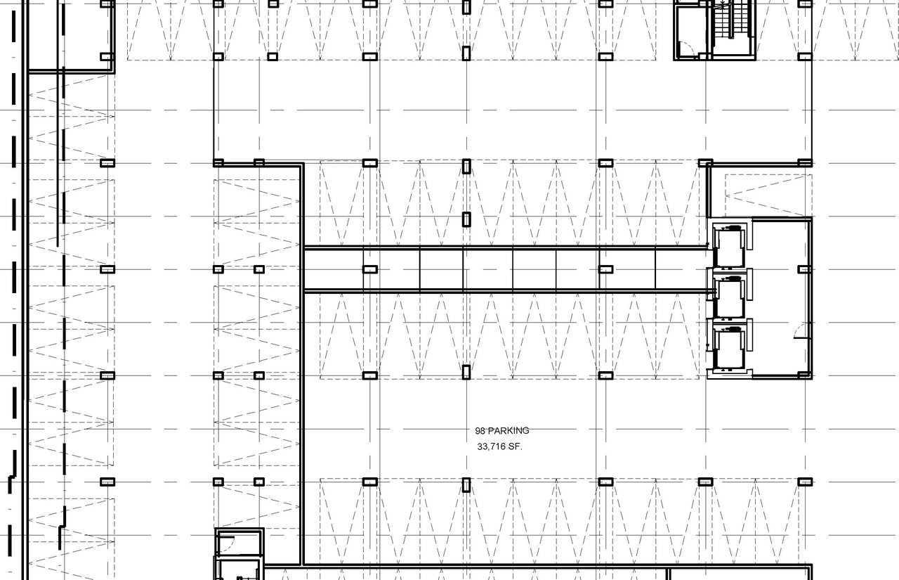
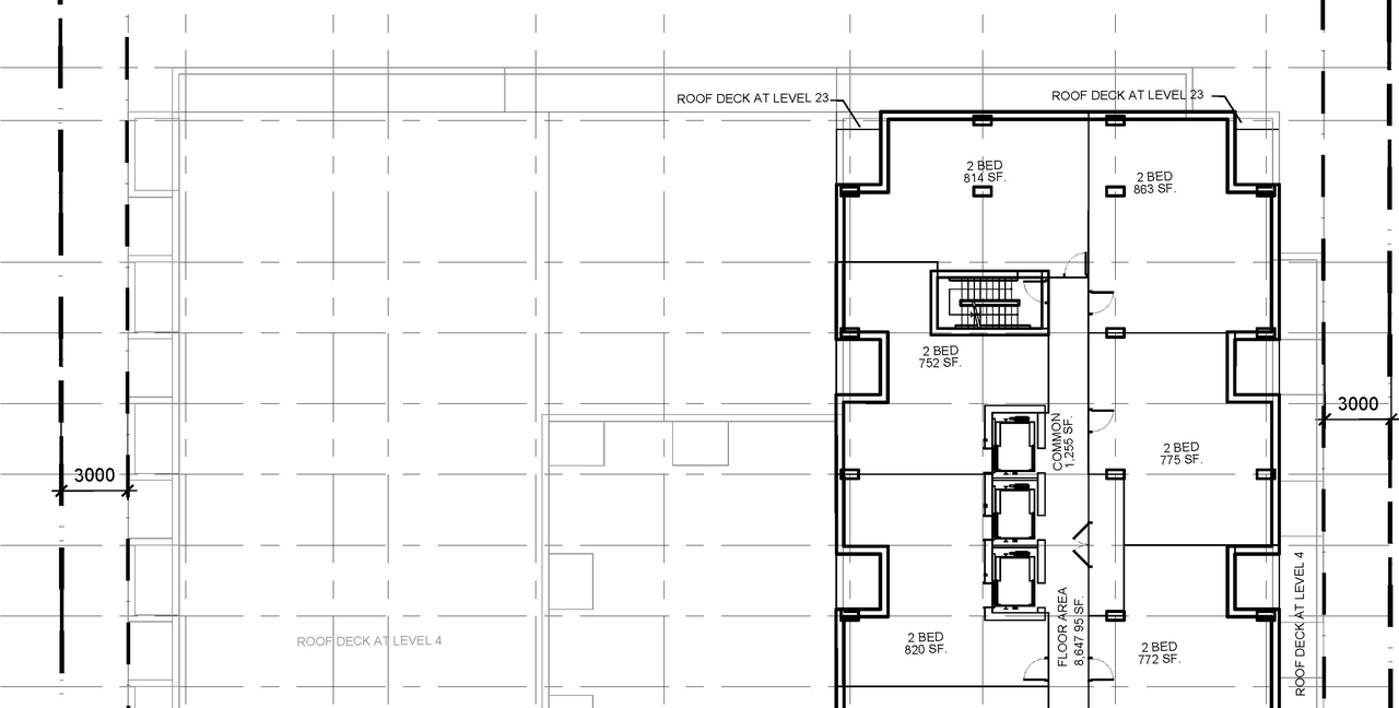
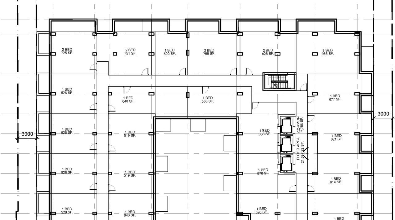
Site and Floor Plans #

  • Floor plan for project from page 1 of the file '2023-06-12 - Floor, Perspective Views, Shadow Plans - D07-12-23-0076'
  • Floor plan for project from page 2 of the file '2023-06-12 - Floor, Perspective Views, Shadow Plans - D07-12-23-0076'
  • Construction site plan for project from page 5 of the file '2023-06-12 - Design Brief - D07-12-23-0076'
  • Construction site plan for project from page 6 of the file '2023-06-12 - Design Brief - D07-12-23-0076'
  • Construction site plan for project from page 8 of the file '2023-06-12 - Design Brief - D07-12-23-0076'
  • Construction site plan for project from page 9 of the file '2023-06-12 - Design Brief - D07-12-23-0076'
  • Construction site plan for project from page 12 of the file '2023-06-12 - Design Brief - D07-12-23-0076'
  • Construction site plan for project from page 13 of the file '2023-06-12 - Design Brief - D07-12-23-0076'
  • Construction site plan for project from page 16 of the file '2023-06-12 - Design Brief - D07-12-23-0076'
  • Floor plan for project from page 1 of the file '2023-06-12 - Floor, Perspective Views, Shadow Plans - D07-12-23-0076'
  • Floor plan for project from page 2 of the file '2023-06-12 - Floor, Perspective Views, Shadow Plans - D07-12-23-0076'
  • Construction site plan for project from page 5 of the file '2023-06-12 - Design Brief - D07-12-23-0076'
  • Construction site plan for project from page 6 of the file '2023-06-12 - Design Brief - D07-12-23-0076'
  • Construction site plan for project from page 8 of the file '2023-06-12 - Design Brief - D07-12-23-0076'
  • Construction site plan for project from page 9 of the file '2023-06-12 - Design Brief - D07-12-23-0076'
  • Construction site plan for project from page 12 of the file '2023-06-12 - Design Brief - D07-12-23-0076'
  • Construction site plan for project from page 13 of the file '2023-06-12 - Design Brief - D07-12-23-0076'
  • Construction site plan for project from page 16 of the file '2023-06-12 - Design Brief - D07-12-23-0076'

Files #

TypeNameLinks
Application Summary2023-07-14 - Application Summary - D07-12-23-0076Download PDF
Architectural Plans2024-05-28 - Site Plan Phase 1 - D07-12-23-0076 (2)Download PDF
Architectural Plans2024-05-28 - Site Plan Phase 1 - D07-12-23-0076Download PDF
Architectural Plans2024-05-28 - Plan and Profile - D07-12-23-0076 (3)Download PDF
Architectural Plans2024-05-28 - Plan and Profile - D07-12-23-0076 (2)Download PDF
Architectural Plans2024-05-28 - Plan and Profile - D07-12-23-0076Download PDF
Architectural Plans2023-10-10 - Site Plan Phase I - D07-12-23-0076Download PDF
Architectural Plans2023-10-10 - Site Plan Overall - D07-12-23-0076Download PDF
Architectural Plans2023-10-10 - Architectural Drawing Package - Phase 1 - D07-12-23-0076Download PDF
Architectural Plans2023-10-10 - Architectural Drawing Package - Full Buildout - D07-12-23-0076Download PDF
Architectural Plans2023-06-12 - Site Plan Phase 1 - D07-12-23-0076Download PDF
Architectural Plans2023-06-12 - Site Plan Overall - D07-12-23-0076Download PDF
Architectural Plans2025-06-30 - APPROVED Site Plan Phase 1 Enlargement - D07-12-23-0076Download PDF
Architectural Plans2025-06-30 - APPROVED Site Plan Phase 1 - D07-12-23-0076Download PDF
Architectural Plans2025-06-30 - APPROVED Site Plan Overall - D07-12-23-0076Download PDF
Architectural Plans2025-06-30 - APPROVED Site Plan Authority Report - D07-12-23-0076Download PDF
Architectural Plans2025-06-30 - APPROVED Plan and Profile C203 - D07-12-23-0076Download PDF
Architectural Plans2025-06-30 - APPROVED Plan and Profile C202 - D07-12-23-0076Download PDF
Architectural Plans2025-06-30 - APPROVED Plan and Profile C201 - D07-12-23-0076Download PDF
Architectural Plans2025-06-30 - APPROVED Building Elevations - D07-12-23-0076Download PDF
Architectural Plans2025-07-24 - APPROVED Site Plan Phase 1 Enlargement - D07-12-23-0076Download PDF
Architectural Plans2025-07-24 - APPROVED Site Plan Phase 1 - D07-12-23-0076Download PDF
Architectural Plans2025-07-24 - APPROVED Site Plan Overall - D07-12-23-0076Download PDF
Architectural Plans2025-07-24 - APPROVED Site Plan Authority Report - D07-12-23-0076Download PDF
Civil Engineering Report2024-05-18 - Civil Plan - D07-12-23-0076Download PDF
Civil Engineering Report2023-10-10 - Civil Drawing Package - D07-12-23-0076Download PDF
Civil Engineering Report2023-06-12 - Civil Plan - D07-12-23-0076Download PDF
Design Brief2023-06-12 - Design Brief - D07-12-23-0076Download PDF
Environmental2024-05-28 - Phase One Environmental Site Assessment - D07-12-23-0076Download PDF
Environmental2023-10-10 - Phase 1 Environmental Site Assessment - D07-12-23-0076Download PDF
Environmental2023-06-12 - Phase Two Environmental Site Assessment and Geotechnical Investigation - D07-12-23-0Download PDF
Existing Conditions2024-05-28 - Existing Conditions and Removals Plan - D07-12-23-0076Download PDF
Geotechnical Report2024-05-28 - Geotechncial Investigation - D07-12-23-0076Download PDF
Geotechnical Report2023-10-10 - Soil Characterizaton Report - D07-12-23-0076Download PDF
Geotechnical Report2023-06-12 - Geotechnical Investigation - D07-12-23-0076Download PDF
Geotechnical Report2025-06-30 - APPROVED Grading Drainage and Erosion Sediment Control Plan - D07-12-23-0076Download PDF
Landscape Plan2024-05-28 - Landscape Plan - D07-12-23-0076Download PDF
Landscape Plan2023-06-12 - Landscape Plan - D07-12-23-0076Download PDF
Noise Study2023-06-12 - Roadway Traffic Noise Assessment - D07-12-23-0076Download PDF
Planning2023-10-10 - Zoning Schedule - D07-12-23-0076Download PDF
Planning2023-10-10 - Planning and Urban Design Memo - D07-12-23-0076Download PDF
Rendering2023-06-12 - Floor, Perspective Views, Shadow Plans - D07-12-23-0076Download PDF
Site Servicing2024-05-28 - Site Servicing Plan - D07-12-23-0076Download PDF
Site Servicing2024-05-28 - Servicing and Stormwater Managment Report - D07-12-23-0076Download PDF
Site Servicing2023-10-10 - Servicing and Stormwater Management Report - D07-12-23-0076Download PDF
Site Servicing2023-06-12 - Site Servicing Plan - D07-12-23-0076Download PDF
Site Servicing2023-06-12 - Servicing and Stormwater Management Report - D07-12-23-0076Download PDF
Site Servicing2024-08-27 - Servicing Report - D07-12-23-0076Download PDF
Site Servicing2025-06-30 - APPROVED Site Servicing Plan - D07-12-23-0076Download PDF
Surveying2023-10-10 - Plan of Survey - D07-12-23-0076Download PDF
Surveying2023-06-12 - Topographic Plan - D07-12-23-0076Download PDF
Transportation Analysis2024-05-28 - Transportation Impact Assessment - D07-12-23-0076Download PDF
Transportation Analysis2023-10-10 - Transportation Impact Assessment - ZBLA - D07-12-23-0076Download PDF
Transportation Analysis2023-10-10 - Transportation Impact Assessment - SPA - D07-12-23-0076Download PDF
Transportation Analysis2023-06-12 - Transportation Impact Assessment - D07-12-23-0076Download PDF
Tree Information and Conservation2023-10-10 - Tree Conservation Report and Landscape Plan - D07-12-23-0076Download PDF
Tree Information and Conservation2025-06-30 - APPROVED Tree Conservation Report and Landscape Plan - D07-12-23-0076Download PDF
Tree Information and Conservation2025-07-24 - APPROVED Tree Conservation Report and Landscape Plan - D07-12-23-0076Download PDF
Wind Study2023-10-24 - Pedestrian Level Wind Study - D07-12-23-0076Download PDF
Wind Study2023-06-12 - Pedestrian Level Wind Study - D07-12-23-0076Download PDF
2024-01-17 - Potential Effects of Structural Sunlight Obstruction on AAFC Plots - D07-12-23-0076Download PDF
2024-01-17 - Heritage Impact Assessment - D07-12-23-0076Download PDF
2023-10-10 - Updated Heritage Impact Assessment - D07-12-23-0076Download PDF
2023-10-10 - ParaTranspo Turning Movements Interim & Ultimate - D07-12-23-0076Download PDF
2024-08-27 - SPC Round 3 - D07-12-23-0076Download PDF
2024-08-27 - SP-2 Ph-1 - D07-12-23-0076Download PDF
2024-08-27 - land scape - D07-12-23-0076Download PDF
2024-08-27 - CCO-22-0952C203REV04 - D07-12-23-0076Download PDF
2024-08-27 - CCO-22-0952C202REV04 - D07-12-23-0076Download PDF
2024-08-27 - CCO-22-0952C201REV04 - D07-12-23-0076Download PDF
2024-08-27 - CCO-22-0952C102REV04 - D07-12-23-0076Download PDF
2024-08-27 - CCO-22-0952C100REV03 - D07-12-23-0076Download PDF