40 Frank Nighbor (D07-12-23-0061)

40 Frank Nighbor (D07-12-23-0061) #

Summary #

Application StatusPost Approval
Review StatusReceipt of Agreement from Owner Pending
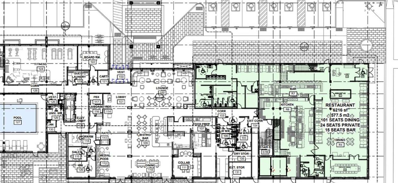
DescriptionA Site Plan Control application to construct a hotel and restaurant six (6) storeys in height, with one hundred fifteen (115) guest suites, one hundred sixty (160) parking spaces, and a total GFA of 8,036 square metres.
WardWard 23 - Allan Hubley
Date Initiated2023-05-16
Last Updated2025-11-25

Renders #

  • Rendering of building from page 14 of the file '2023-05-16 - Elevations & Floor Plans - D07-12-23-0061'
  • Rendering of building from page 14 of the file '2023-05-16 - Elevations & Floor Plans - D07-12-23-0061'

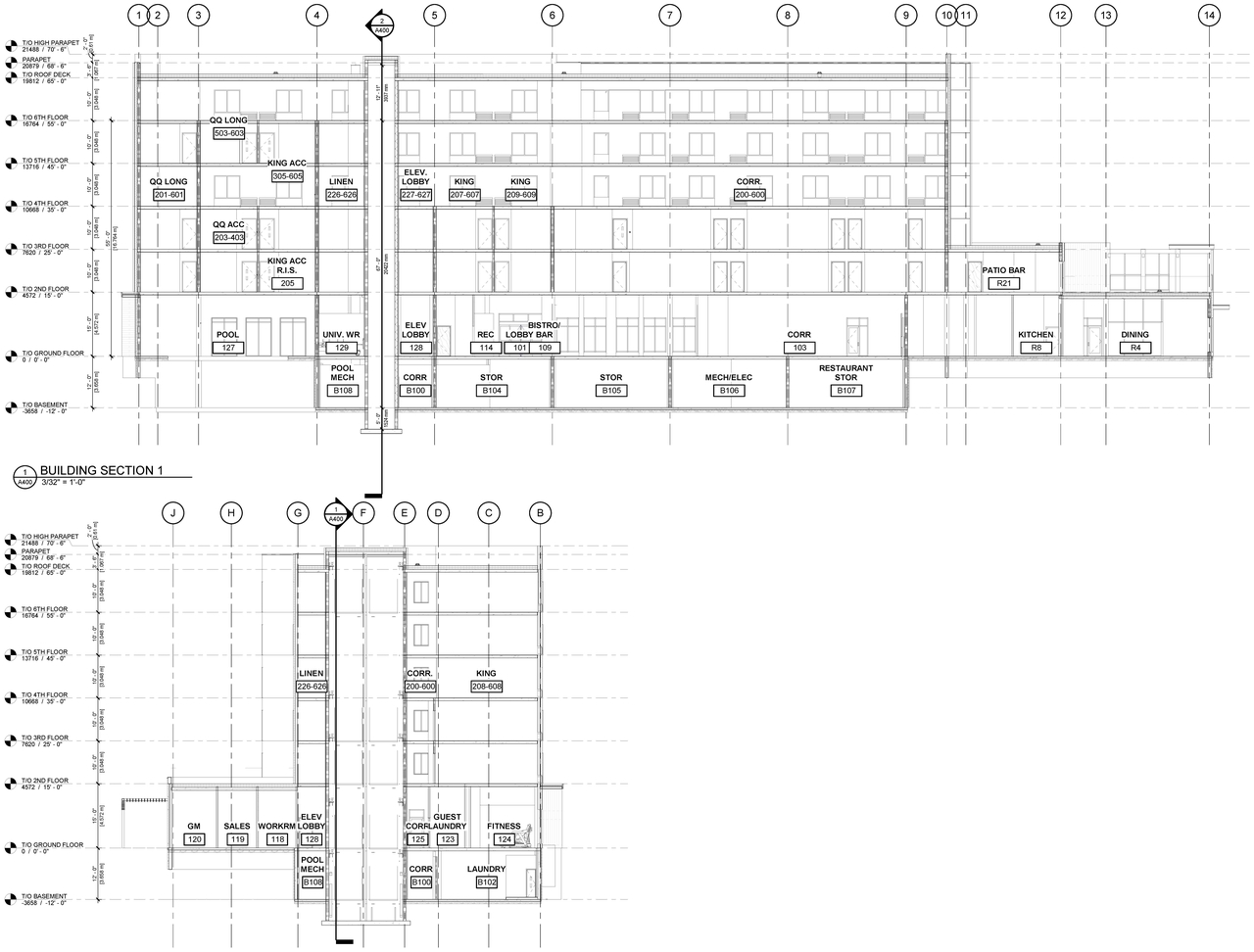
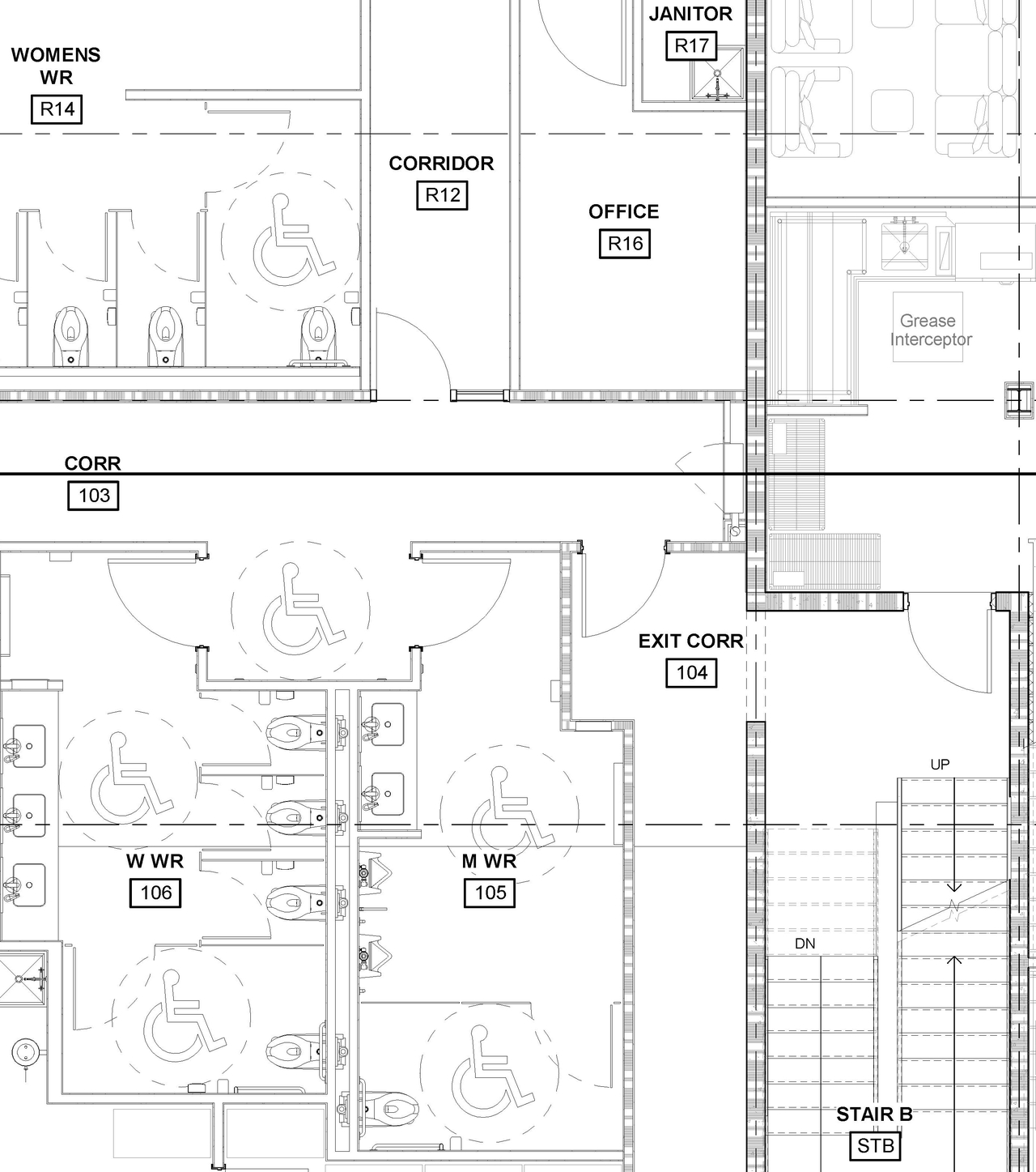
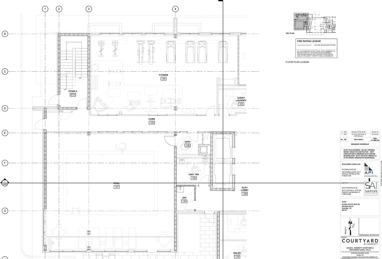
Site and Floor Plans #

  • Floor plan for project from page 2 of the file '2023-10-16 - Floor Plans - D07-12-23-0061'
  • Floor plan for project from page 3 of the file '2023-10-16 - Floor Plans - D07-12-23-0061'
  • Floor plan for project from page 6 of the file '2023-05-16 - Elevations & Floor Plans - D07-12-23-0061'
  • Construction site plan for project from page 9 of the file '2023-05-16 - Design Brief - D07-12-23-0061'
  • Construction site plan for project from page 14 of the file '2023-05-16 - Design Brief - D07-12-23-0061'
  • Floor plan for project from page 16 of the file '2023-05-16 - Design Brief - D07-12-23-0061'
  • Construction site plan for project from page 22 of the file '2023-05-16 - Design Brief - D07-12-23-0061'
  • Floor plan for project from page 2 of the file '2023-10-16 - Floor Plans - D07-12-23-0061'
  • Floor plan for project from page 3 of the file '2023-10-16 - Floor Plans - D07-12-23-0061'
  • Floor plan for project from page 6 of the file '2023-05-16 - Elevations & Floor Plans - D07-12-23-0061'
  • Construction site plan for project from page 9 of the file '2023-05-16 - Design Brief - D07-12-23-0061'
  • Construction site plan for project from page 14 of the file '2023-05-16 - Design Brief - D07-12-23-0061'
  • Floor plan for project from page 16 of the file '2023-05-16 - Design Brief - D07-12-23-0061'
  • Construction site plan for project from page 22 of the file '2023-05-16 - Design Brief - D07-12-23-0061'

Documents #

TypeDocument
Application Summary2023-06-16 - Application Summary - D07-12-23-0061
Architectural Plans2023-10-16 - Site Plan - D07-12-23-0061
Architectural Plans2023-10-16 - General Plan of Services - D07-12-23-0061
Architectural Plans2023-10-16 - Elevations - D07-12-23-0061
Architectural Plans2023-05-16 - Site Plan - D07-12-23-0061
Architectural Plans2023-05-16 - PRE-DEVELOPMENT STORM DRAINGE PLAN - D07-12-23-0061
Architectural Plans2023-05-16 - General Plan of Services - D07-12-23-0061
Architectural Plans2024-11-27 - APPROVED Site Plan - D07-12-23-0061
Architectural Plans2024-11-27 - APPROVED General Plan of Services - D07-12-23-0061
Architectural Plans2024-11-27 - APPROVED Elevation South and West - D07-12-23-0061
Architectural Plans2024-11-27 - APPROVED Elevation North and East - D07-12-23-0061
Civil Engineering Report2023-10-16 - Civil Details Plan - D07-12-23-0061
Civil Engineering Report2024-11-27 - APPROVED Civil Details Plan - D07-12-23-0061
Design Brief2023-05-16 - Design Brief - D07-12-23-0061
Environmental2023-05-16 - Phase II Environmental Site Assessment - D07-12-23-0061
Environmental2023-05-16 - Phase I Environmental Site Assessment - D07-12-23-0061
Environmental2023-05-16 - Environmental Impact Statement - D07-12-23-0061
Floor Plan2023-10-16 - Floor Plans - D07-12-23-0061
Floor Plan2023-05-16 - Elevations & Floor Plans - D07-12-23-0061
Geotechnical Report2023-10-16 - Grading and Erosion & Sediment Control Plan - D07-12-23-0061
Geotechnical Report2023-05-16 - GRADING AND EROSION & SEDIMENT CONTROL PLAN - D07-12-23-0061
Geotechnical Report2023-05-16 - Geotechnical Investigation - D07-12-23-0061
Geotechnical Report2024-11-27 - APPROVED Grading and Erosion and Sediment Control Plan - D07-12-23-0061
Landscape Plan2023-10-16 - Landscape Plans - D07-12-23-0061
Landscape Plan2023-05-16 - Landscape Plan - D07-12-23-0061
Landscape Plan2024-11-27 - APPROVED Landscape Plans - D07-12-23-0061
Noise Study2023-05-16 - Noise Impact Study - D07-12-23-0061
Site Servicing2023-10-16 - Servicing Study and Stormwater Management Report - D07-12-23-0061
Stormwater Management2023-10-16 - Pre and Post Development Storm Drainage Area Plan - D07-12-23-0061
Stormwater Management2023-05-16 - POST-DEVELOPMENT STORM DRAINAGE PLAN - D07-12-23-0061
Stormwater Management2023-05-16 - DEVELOPMENT SERVICING STUDY & STORMWATER MANAGMENT REPORT - D07-12-23-0061
Stormwater Management2024-11-27 - Development Servicing Study and Stormwater Management Report - D07-12-23-0061
Stormwater Management2024-11-27 - APPROVED Post Development Storm Drainage Area Plan - D07-12-23-0061
Surveying2023-05-16 - Topographic Plan of Survey - D07-12-23-0061
Tree Information and Conservation2023-11-15 Tree Conservation Report D07-12-23-0061
Tree Information and Conservation2023-05-16 - Tree Conservation Report - D07-12-23-0061
2023-11-15 Environmental Impact Statement D07-12-23-0061
2023-10-16 - Cover Page - D07-12-23-0061
2024-11-27 - APPROVED Delegated Authority Report - D07-12-23-0061