224 Preston St. (D07-12-23-0060)

224 Preston St. (D07-12-23-0060) #

Summary #

Application StatusInactive
Review StatusNotice of Decision Sent
DescriptionConstruction of a 6 storey mid-srise,mixed-use building with 2 commercial units on the ground floor and a total of 28 residential units; 19 bachelor units and 9 one-bedroom units. A total of 149 square metres of amenity space is provided via private balconies, communal terraces and outdoor patio space.
WardWard 14 - Ariel Troster
Date Initiated2023-05-16
Last Updated2024-08-16

Renders #

  • Rendering of building from page 1 of the file '2024-07-23 - 3D Massing View - D07-12-23-0060'
  • Rendering of building from page 1 of the file '2024-07-23 - 3D Massing View - D07-12-23-0060'

Location #

Select a marker to view the address.

Site and Floor Plans #

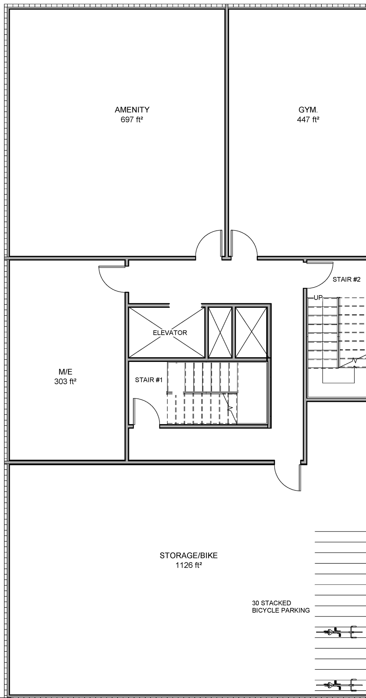
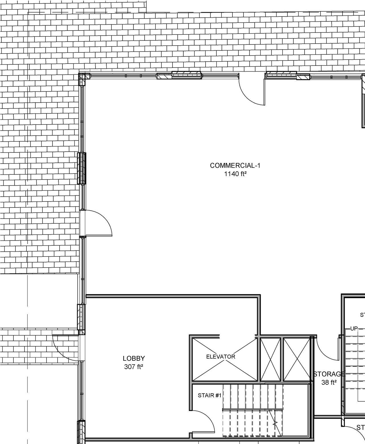
  • Floor plan for project from page 1 of the file '2024-02-26 - Basement & Ground Floor Plan - D07-12-23-0060'
  • Floor plan for project from page 1 of the file '2023-05-17 - floor plans - D07-12-23-0060'
  • Construction site plan for project from page 1 of the file '2024-08-16 - Approved Site Plan & Ex Floor Plans - D07-12-23-0060'
  • Floor plan for project from page 1 of the file '2024-02-26 - Basement & Ground Floor Plan - D07-12-23-0060'
  • Floor plan for project from page 1 of the file '2023-05-17 - floor plans - D07-12-23-0060'
  • Construction site plan for project from page 1 of the file '2024-08-16 - Approved Site Plan & Ex Floor Plans - D07-12-23-0060'

Documents #

TypeDocument
Application Summary2023-06-02 - Application Summary - D07-12-23-0060.pdf
Architectural Plans2024-07-23 - Site Plan - D07-12-23-0060
Architectural Plans2024-07-23 - Roof Plan - D07-12-23-0060
Architectural Plans2024-07-23 - Elevations - D07-12-23-0060
Architectural Plans2024-07-23 - Architectural Plans - D07-12-23-0060
Architectural Plans2024-02-26 -Civil Plans - D07-12-23-0060
Architectural Plans2024-02-26 - Site Plan - D07-12-23-0060
Architectural Plans2024-02-26 - Roof Plan - D07-12-23-0060
Architectural Plans2024-02-26 - Elevations - D07-12-23-0060
Architectural Plans2023-12-08 - Site Plan - D02-02-23-0040_D07-12-23-0060
Architectural Plans2023-12-08 - Elevations - D02-02-23-0040_D07-12-23-0060
Architectural Plans2023-12-08 - Architectural Drawings - D02-02-23-0040_D07-12-23-0060
Architectural Plans2023-05-17 - SITE Plan - D07-12-23-0060
Architectural Plans2023-05-17 - Parking Plan - D07-12-23-0060
Architectural Plans2023-05-17 - architectural plans - D07-12-23-0060
Architectural Plans2024-08-16 - Approved Roof Drainage Plan - D07-12-23-0060
Architectural Plans2024-08-16 - Approved Elevations - D07-12-23-0060
Civil Engineering Report2023-12-08 - CIvil Plans - D02-02-23-0040_D07-12-23-0060
Civil Engineering Report2023-05-17 - Civil Plans - D07-12-23-0060
Electrical Plan2024-07-23 - Site Lighting - D07-12-23-0060
Electrical Plan2023-05-17 - Light Certificate - D07-12-23-0060
Environmental2024-07-23 - Phase I ESA - D07-12-23-0060
Environmental2024-07-23 - Environmental Noise Control Study - D07-12-23-0060
Environmental2023-12-08 - Phase I Environmental Site Assessment - D02-02-23-0040_D07-12-23-0060
Environmental2023-05-17 - Phase 1 Environmental Site Assessment - D07-12-23-0060
Erosion And Sediment Control Plan2024-08-16 - Approved Erosion and Sediment Control Plan - D07-12-23-0060
Existing Conditions2024-07-23 - Existing Conditions and Removals Plan - D07-12-23-0060
Existing Conditions2024-08-16 - Approved Existing Conditions and Removals Plan - D07-12-23-0060
Floor Plan2024-02-26 - Basement & Ground Floor Plan - D07-12-23-0060
Floor Plan2023-05-17 - floor plans - D07-12-23-0060
Floor Plan2024-08-16 - Approved Site Plan & Ex Floor Plans - D07-12-23-0060
Geotechnical Report2024-07-23 - Grading Plan - D07-12-23-0060
Geotechnical Report2024-07-23 - Geotechnical Investigation - D07-12-23-0060
Geotechnical Report2023-12-08 - Geotechnical Investigation - D02-02-23-0040_D07-12-23-0060
Geotechnical Report2023-05-17 - Geotechnical Investigation - D07-12-23-0060
Geotechnical Report2024-08-16 - Approved Grading Plan - D07-12-23-0060
Landscape Plan2024-07-23 - Landscape Plan - D07-12-23-0060
Landscape Plan2023-12-08 - Landscape Plan - D02-02-23-0040_D07-12-23-0060
Landscape Plan2023-05-17 - Landscape Plan - D07-12-23-0060
Noise Study2023-12-08 - Noise Study - D02-02-23-0040_D07-12-23-0060
Noise Study2023-05-17 - Noise Attenuation Study - D07-12-23-0060
Planning2024-07-23 - Planning Rationale - D07-12-23-0060
Planning2023-05-17 - Planning Rationale - D07-12-23-0060
Rendering2024-07-23 - 3D Massing View - D07-12-23-0060
Shadow Study2024-07-23 - Shadow Study - D07-12-23-0060
Shadow Study2023-05-17 - SHADOW STUDY - D07-12-23-0060
Site Servicing2024-07-23 - Site Servicing Plan - D07-12-23-0060
Site Servicing2024-07-23 - Servicing Study and SWM Report - D07-12-23-0060
Site Servicing2024-02-26 - Site Servicing & SWMR - D07-12-23-0060
Site Servicing2023-12-08 - Servicing Report - D02-02-23-0040_D07-12-23-0060
Site Servicing2023-05-17 - Site Servicing and Stormwater Management Report - D07-12-23-0060
Site Servicing2024-08-16 - Approved Site Servicing Plan - D07-12-23-0060
Stormwater Management2024-08-16 - Approved Storm Watershed Plan - D07-12-23-0060
Surveying2024-07-23 - Plan of Survey - D07-12-23-0060
Surveying2023-05-17 - Topographic Plan of survey - D07-12-23-0060
Tree Information and Conservation2024-02-26 - Landscape Plan & TCR - D07-12-23-0060
Tree Information and Conservation2024-08-16 - Approved TCR & Landscape Plan - D07-12-23-0060
2024-08-16 - Signed Delegated Authority Report - D07-12-23-0060