3745 St-Joseph (D07-12-23-0059)

3745 St-Joseph (D07-12-23-0059) #

Summary #

Application StatusPost Approval
Review StatusReceipt of Agreement from Owner Pending
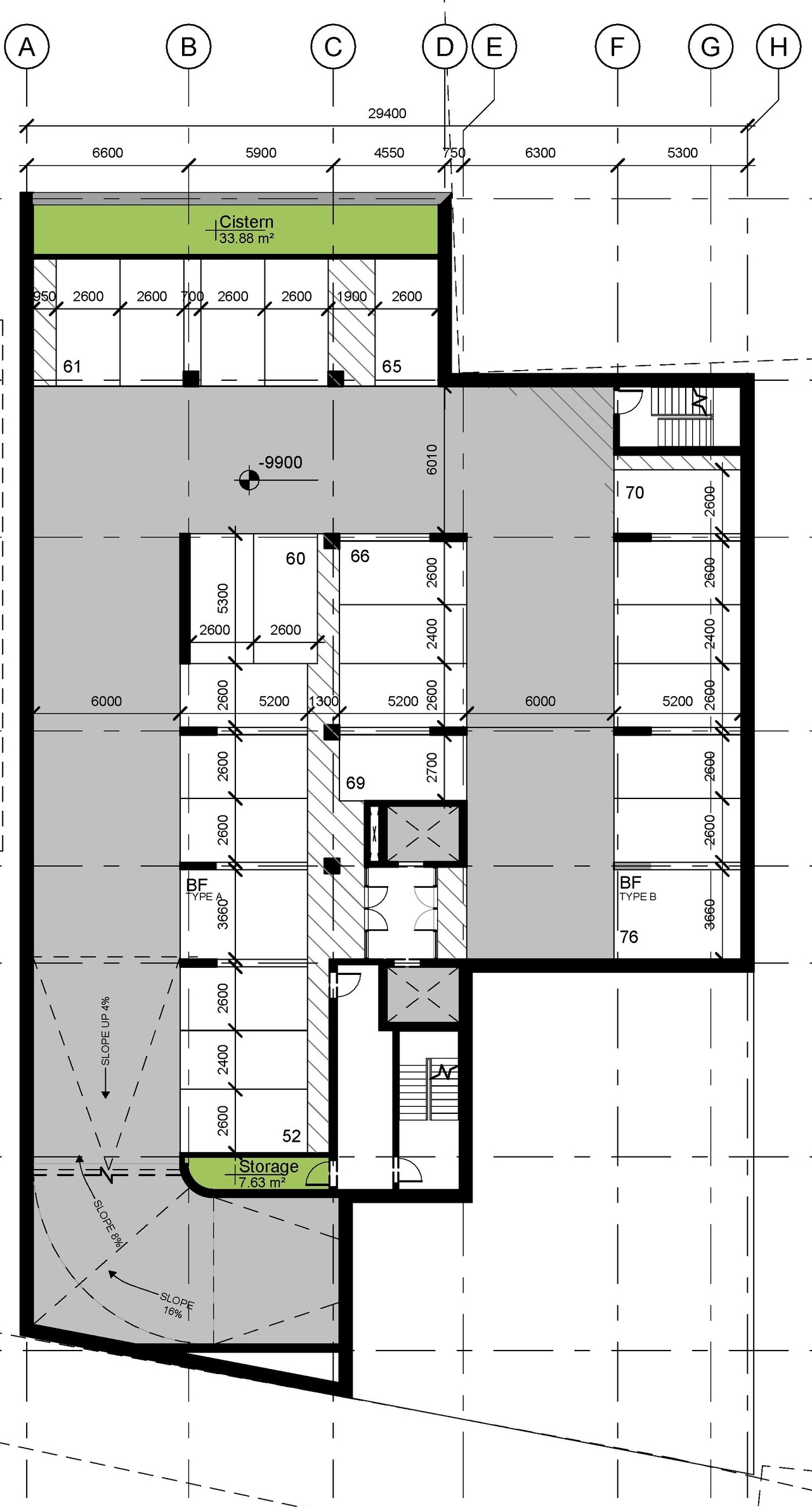
DescriptionThe proposed development is a six-storey mixed use building. Proposed uses include hotel and associated cafe and restaurant, gym and co-working spaces, as well as smaller commercial and services uses. The proposed building would also include three-storeys of underground parking with 76 parking spaces and four surface parking spaces.
WardWard 1 - Matthew Luloff
Date Initiated2023-05-15
Last Updated2025-09-02

Renders #

  • Rendering of building from page 5 of the file '2023-05-15 - Design Brief - D07-12-23-0059'
  • Rendering of building from page 9 of the file '2023-05-15 - Design Brief - D07-12-23-0059'
  • Rendering of building from page 8 of the file '2023-05-15 - Design Brief - D07-12-23-0059'
  • Rendering of building from page 7 of the file '2023-05-15 - Design Brief - D07-12-23-0059'
  • Rendering of building from page 6 of the file '2023-05-15 - Design Brief - D07-12-23-0059'
  • Rendering of building from page 6 of the file '2023-05-15 - Design Brief - D07-12-23-0059'
  • Rendering of building from page 7 of the file '2023-05-15 - Design Brief - D07-12-23-0059'
  • Rendering of building from page 3 of the file '2023-05-15 - Design Brief - D07-12-23-0059'
  • Rendering of building from page 4 of the file '2023-05-15 - Design Brief - D07-12-23-0059'
  • Rendering of building from page 8 of the file '2023-05-15 - Design Brief - D07-12-23-0059'
  • Rendering of building from page 11 of the file '2023-05-15 - Design Brief - D07-12-23-0059'
  • Rendering of building from page 3 of the file '2023-05-15 - Design Brief - D07-12-23-0059'
  • Rendering of building from page 3 of the file '2023-05-15 - Design Brief - D07-12-23-0059'
  • Rendering of building from page 5 of the file '2023-05-15 - Design Brief - D07-12-23-0059'
  • Rendering of building from page 9 of the file '2023-05-15 - Design Brief - D07-12-23-0059'
  • Rendering of building from page 8 of the file '2023-05-15 - Design Brief - D07-12-23-0059'
  • Rendering of building from page 7 of the file '2023-05-15 - Design Brief - D07-12-23-0059'
  • Rendering of building from page 6 of the file '2023-05-15 - Design Brief - D07-12-23-0059'
  • Rendering of building from page 6 of the file '2023-05-15 - Design Brief - D07-12-23-0059'
  • Rendering of building from page 7 of the file '2023-05-15 - Design Brief - D07-12-23-0059'
  • Rendering of building from page 3 of the file '2023-05-15 - Design Brief - D07-12-23-0059'
  • Rendering of building from page 4 of the file '2023-05-15 - Design Brief - D07-12-23-0059'
  • Rendering of building from page 8 of the file '2023-05-15 - Design Brief - D07-12-23-0059'
  • Rendering of building from page 11 of the file '2023-05-15 - Design Brief - D07-12-23-0059'
  • Rendering of building from page 3 of the file '2023-05-15 - Design Brief - D07-12-23-0059'
  • Rendering of building from page 3 of the file '2023-05-15 - Design Brief - D07-12-23-0059'

Location #

Select a marker to view the address.

Site and Floor Plans #

  • Construction site plan for project from page 1 of the file '2024-04-12 - Site and Floor Plans - D07-12-23-0059'
  • Construction site plan for project from page 1 of the file '2024-04-12 - Site and Floor Plans - D07-12-23-0059'
  • Construction site plan for project from page 1 of the file '2023-10-23 - Site Plan and Floor Plans - D07-12-23-0059'
  • Construction site plan for project from page 1 of the file '2023-10-23 - Site Plan and Floor Plans - D07-12-23-0059'
  • Construction site plan for project from page 1 of the file '2024-04-12 - Site and Floor Plans - D07-12-23-0059'
  • Construction site plan for project from page 1 of the file '2024-04-12 - Site and Floor Plans - D07-12-23-0059'
  • Construction site plan for project from page 1 of the file '2023-10-23 - Site Plan and Floor Plans - D07-12-23-0059'
  • Construction site plan for project from page 1 of the file '2023-10-23 - Site Plan and Floor Plans - D07-12-23-0059'

Documents #

TypeDocument
Application Summary2023-06-20 - Application Summary - D07-12-23-0059
Architectural Plans2024-08-01 - Approved Site Plan - D07-12-23-0059
Architectural Plans2024-08-01 - Approved Removals Erosion and Sediment Control Plan -D07-12-23-0059
Architectural Plans2024-08-01 - Approved PreDev Drainage Plan D07-12-23-0059
Architectural Plans2024-08-01 - Approved Post Development Drainage Area Plan - D07-12-23-0059
Architectural Plans2024-08-01 - Approved Elevations - D07-12-23-0059
Architectural Plans2024-07-10 - Site Plan - D07-12-23-0059
Architectural Plans2024-07-10 - Elevations - D07-12-23-0059
Architectural Plans2024-04-12 - Removals, Erosion and Sediment Control Plan -D07-12-23-0059
Architectural Plans2024-02-13 - Site, Floor, Elevation Plans - D07-12-23-0059
Architectural Plans2023-10-31 - Site Serving Plan - D07-12-23-0059
Architectural Plans2023-10-31 - Removals, Erosion and Sediment Control Plan - D07-12-23-0059
Architectural Plans2023-10-31 - Post Development Drainage Area Plan - D07-12-23-0059
Architectural Plans2023-10-31 - MEMO - Grading and Servicing Plan Review- D07-12-23-0059
Architectural Plans2023-10-31 - Site Plan - D07-12-23-0059
Architectural Plans2023-10-23 - MEMO Grading & Servicing Plan Review - D07-12-23-0059
Architectural Plans2023-05-15 - Site Plan - D07-12-23-0059
Architectural Plans2023-05-15 - Removals Erosion & Sediment Control & Grading & Drainage Plan - D07-12-23-0059
Civil Engineering Report2024-02-13 - Civil Plan - D07-12-23-0059
Design Brief2023-05-15 - Design Brief - D07-12-23-0059
Environmental2023-06-15 - Phase One Environmental Site Assessment Update - D07-12-23-0059
Environmental2023-06-15 - Phase One Environmental Site Assessment - D07-12-23-0059
Environmental2023-05-15 - Phase I Environmental Site Assessment - D07-12-23-0059 (2)
Environmental2023-05-15 - Phase I Environmental Site Assessment - D07-12-23-0059
Floor Plan2024-04-12 - Site and Floor Plans - D07-12-23-0059
Floor Plan2023-10-23 - Site Plan and Floor Plans - D07-12-23-0059
Geotechnical Report2023-10-31 - Geotechnical Investigation - D07-12-23-0059
Geotechnical Report2023-10-23 - Geotechnical Investigation - D07-12-23-0059
Geotechnical Report2023-05-15 - Geotechnical Report - D07-12-23-0059
Landscape Plan2023-10-23 - Landscape Plan - D07-12-23-0059
Noise Study2023-05-15 - Noise & Vibration Assessment - D07-12-23-0059
Planning2024-02-13 - Planning Rationale - D07-12-23-0059
Planning2023-10-31 - Planning Rationale - D07-12-23-0059
Planning2023-10-23 - Planning Rationale - D07-12-23-0059
Planning2023-05-15 - Planning Rationale - D07-12-23-0059
Site Servicing2024-08-01 - Approved Site Servicing Plan - D07-12-23-0059
Site Servicing2024-04-12 - Site Servicing Plan - D07-12-23-0059
Site Servicing2024-02-13 - Site Servicing Plan - D07-12-23-0059
Site Servicing2023-10-31 - Servicing and Stormwater Management Report - D07-12-23-0059
Site Servicing2023-10-23 - Site Servicing Plan - D07-12-23-0059
Site Servicing2023-10-23 - Servicing and SWM Report - D07-12-23-0059
Site Servicing2023-05-15 - Site Servicing Plan - D07-12-23-0059
Site Servicing2023-05-15 - Servicing & Stormwater Management Report - D07-12-23-0059
Surveying2023-05-15 - Topographic Plan of Survey - D07-12-23-0059
Transportation Analysis2024-04-30 - TIA Report - D07-12-23-0059
Transportation Analysis2023-10-31 - Transportation Impact Assessment Report - D07-12-23-0059
Transportation Analysis2023-10-23 - Transportation Impact Assessment Report - D07-12-23-0059
Transportation Analysis2023-05-15 - Transportation Impact Assessment Design Report - D07-12-23-0059
Tree Information and Conservation2024-08-01 - Approved Tree Conservation Report - D07-12-23-0059
Tree Information and Conservation2024-04-12 - Tree Conservation Report - D07-12-23-0059
Tree Information and Conservation2024-02-13 - Tree Conservation Report - D07-12-23-0059
Tree Information and Conservation2023-07-17 - Tree Conservation Report & Landscape Plan - D07-12-23-0059
2024-08-01 - Delegated Authority Report - D07-12-23-0059
ProjectLast UpdatedDate Initiated
3745 St-Joseph D02-02-23-0039
2024-07-252023-05-15