1485 Upper Canada (D07-12-23-0051)

1485 Upper Canada (D07-12-23-0051) #

Summary #

Application StatusPost Approval
Review StatusReceipt of Agreement from Owner Pending
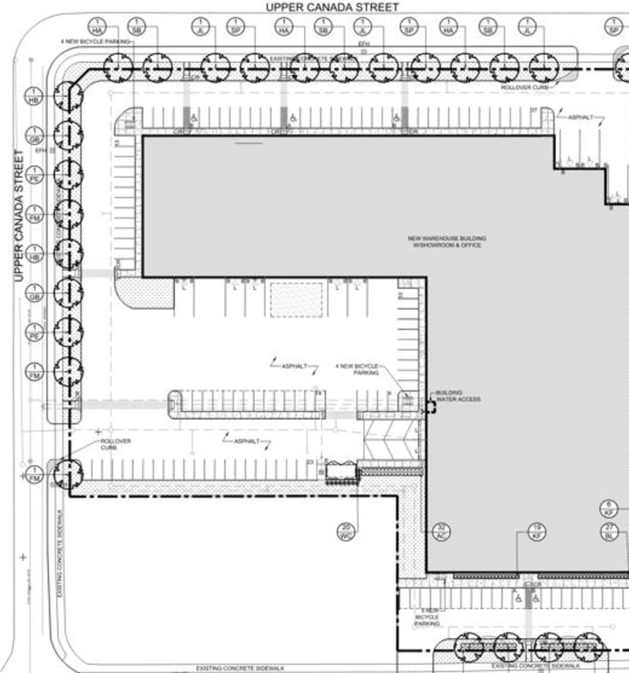
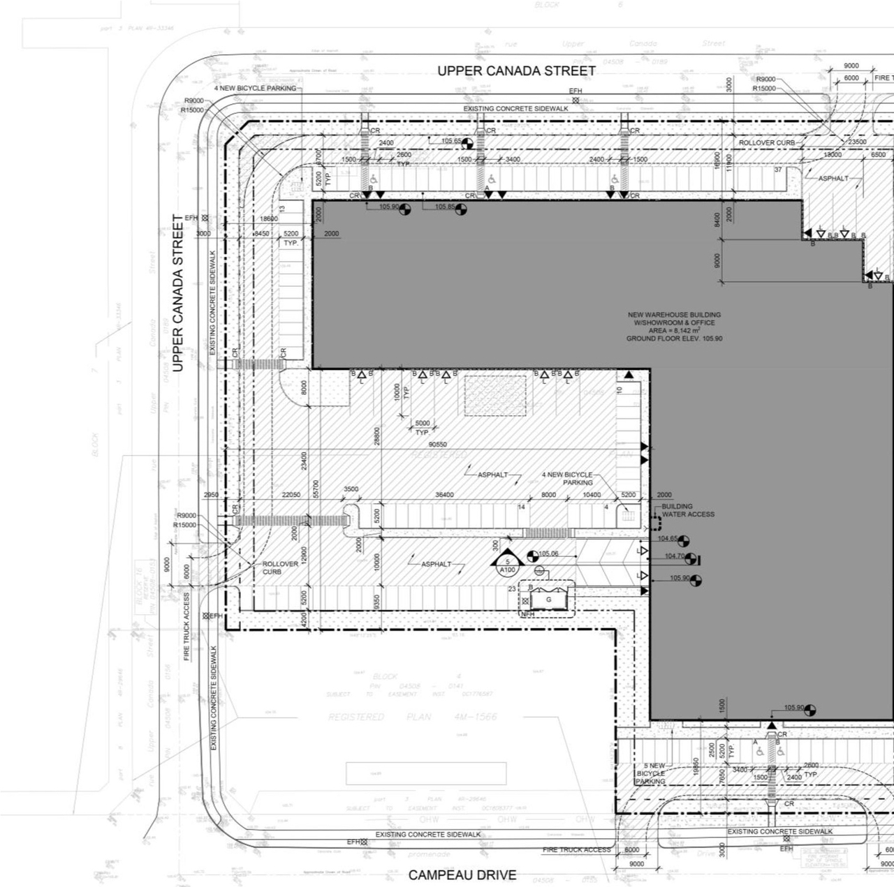
DescriptionA Site Plan Control application to construct a single storey multi-tenant warehouse building with a gross floor area of 8,142 square metres and 116 associated parking spaces.
WardWard 4 - Cathy Curry
Date Initiated2023-05-02
Last Updated2025-06-10

Renders #

  • Rendering of building from page 10 of the file '2023-05-02 - Design Brief - D07-12-23-0051'
  • Rendering of building from page 9 of the file '2023-05-02 - Design Brief - D07-12-23-0051'
  • Rendering of building from page 16 of the file '2023-05-02 - Design Brief - D07-12-23-0051'
  • Rendering of building from page 10 of the file '2023-05-02 - Design Brief - D07-12-23-0051'
  • Rendering of building from page 9 of the file '2023-05-02 - Design Brief - D07-12-23-0051'
  • Rendering of building from page 10 of the file '2023-05-02 - Design Brief - D07-12-23-0051'
  • Rendering of building from page 9 of the file '2023-05-02 - Design Brief - D07-12-23-0051'
  • Rendering of building from page 16 of the file '2023-05-02 - Design Brief - D07-12-23-0051'
  • Rendering of building from page 10 of the file '2023-05-02 - Design Brief - D07-12-23-0051'
  • Rendering of building from page 9 of the file '2023-05-02 - Design Brief - D07-12-23-0051'

Site and Floor Plans #

  • Construction site plan for project from page 2 of the file '2023-05-02 - Design Brief - D07-12-23-0051'
  • Construction site plan for project from page 3 of the file '2023-05-02 - Design Brief - D07-12-23-0051'
  • Construction site plan for project from page 3 of the file '2023-05-02 - Design Brief - D07-12-23-0051'
  • Construction site plan for project from page 13 of the file '2023-05-02 - Design Brief - D07-12-23-0051'
  • Floor plan for project from page 13 of the file '2023-05-02 - Design Brief - D07-12-23-0051'
  • Construction site plan for project from page 2 of the file '10-13-2023 - Architectural Design Brief - D07-12-23-0051'
  • Construction site plan for project from page 5 of the file '10-13-2023 - Architectural Design Brief - D07-12-23-0051'
  • Construction site plan for project from page 2 of the file '2023-05-02 - Design Brief - D07-12-23-0051'
  • Construction site plan for project from page 3 of the file '2023-05-02 - Design Brief - D07-12-23-0051'
  • Construction site plan for project from page 3 of the file '2023-05-02 - Design Brief - D07-12-23-0051'
  • Construction site plan for project from page 13 of the file '2023-05-02 - Design Brief - D07-12-23-0051'
  • Floor plan for project from page 13 of the file '2023-05-02 - Design Brief - D07-12-23-0051'
  • Construction site plan for project from page 2 of the file '10-13-2023 - Architectural Design Brief - D07-12-23-0051'
  • Construction site plan for project from page 5 of the file '10-13-2023 - Architectural Design Brief - D07-12-23-0051'

Documents #

TypeDocument
Application Summary2023-06-07 - Application Summary - D07-12-23-0051
Architectural Plans2023-05-02 - Site, Truck Turning, Elevation Plans - D07-12-23-0051
Architectural Plans2023-05-02 - Site Grading Plan - D07-12-23-0051 (2)1
Architectural Plans2023-05-02 - Site Grading Plan - D07-12-23-0051
Architectural Plans10-13-2023 - Site Plan D07-12-23-0051
Architectural Plans10-13-2023 - Notes and Legend Plan D07-12-23-0051
Architectural Plans2024-12-04 - APPROVED Site Plan - D07-12-23-0051
Architectural Plans2024-12-04 - APPROVED Site Grading Plan-2 - D07-12-23-0051
Architectural Plans2024-12-04 - APPROVED Site Grading Plan-1 - D07-12-23-0051
Architectural Plans2024-12-04 - APPROVED Building Elevations A301 - D07-12-23-0051
Architectural Plans2024-12-04 - APPROVED Building Elevations A300 - D07-12-23-0051
Design Brief2023-05-02 - Design Brief - D07-12-23-0051
Design Brief10-13-2023 - Architectural Design Brief - D07-12-23-0051
Environmental2023-05-02 - Phase I Environmental Site Assessment - D07-12-23-0051
Erosion And Sediment Control Plan2023-05-02 - Erosion & Sediment Control Plan - D07-12-23-0051
Erosion And Sediment Control Plan10-13-2023 - Erosion and Sediment Control Plan - D07-12-23-0051
Erosion And Sediment Control Plan2024-12-04 - APPROVED Erosion and Sediment Control Plan - D07-12-23-0051
Geotechnical Report2023-05-02 - Geotechnical Investigation Report - D07-12-23-0051
Geotechnical Report10-13-2023 - Grading Plan 2 - D07-12-23-0051
Geotechnical Report10-13-2023 - Grading Plan 1 - D07-12-23-0051
Landscape Plan2023-05-02 - Landscape Plan - D07-12-23-0051
Landscape Plan10-13-2023 - Landscape Plan - D07-12-23-0051
Landscape Plan2024-12-04 - APPROVED Landscape Plan - D07-12-23-0051
Site Servicing2023-05-02 - Site Servicing Plan - D07-12-23-0051 (2)
Site Servicing2023-05-02 - Site Servicing Plan - D07-12-23-0051
Site Servicing2023-05-02 - Site Servicing & Stormwater Management Report - D07-12-23-0051
Site Servicing10-13-2023 - Site Servicing Plan 2 - D07-12-23-0051
Site Servicing10-13-2023 - Site Servicing Plan 1 D07-12-23-0051
Site Servicing10-13-2023 - Servicing and Stormwater Management Report - D07-12-23-0051
Site Servicing2024-12-04 - Site Servicing & Stormwater Management Report - D07-12-23-0051
Site Servicing2024-12-04 - APPROVED Site Servicing Plan-2 - D07-12-23-0051
Site Servicing2024-12-04 - APPROVED Site Servicing Plan-1 - D07-12-23-0051
Stormwater Management2023-05-02 - Post-Development Storm Drainage Plan - D07-12-23-0051
Stormwater Management10-13-2023 Storm Drainage Plan D07-12-23-0051
Stormwater Management2024-12-04 - APPROVED Post-Development Storm Drainage Plan - D07-12-23-0051
Surveying2023-05-02 - Topographic Plan - D07-12-23-0051
Transportation Analysis2023-05-02 - Transportation Impact Assessment Screening Form - D07-12-23-0051
2023-05-02 - Notes & Legends - D07-12-23-0051
2024-12-04 - Signed Delegated Authority Report - D07-12-23-0051
2024-12-04 - APPROVED Notes and Legend Sheet - D07-12-23-0051