266 Park Rd. (D07-12-23-0038)

266 Park Rd. (D07-12-23-0038) #

Summary #

Application StatusPost Approval
Review StatusReceipt of Agreement from Owner Pending
DescriptionThe City of Ottawa has received a Zoning By-law Amendment and Site Plan Control application to permit the construction of a low-rise apartment building consisting of 18 dwelling units. No vehicle parking is proposed; however, 10 bicycle parking spaces will be provided in a dedicated parking room at grade.
WardWard 12 - Stéphanie Plante
Date Initiated2023-03-31
Last Updated2025-07-08

Renders #

  • Rendering of building from page 1 of the file '2023-04-03 - Renderings - D07-12-23-0038'
  • Rendering of building from page 2 of the file '2023-04-03 - Renderings - D07-12-23-0038'
  • Rendering of building from page 1 of the file '2023-04-03 - Renderings - D07-12-23-0038'
  • Rendering of building from page 2 of the file '2023-04-03 - Renderings - D07-12-23-0038'

Location #

Select a marker to view the address.

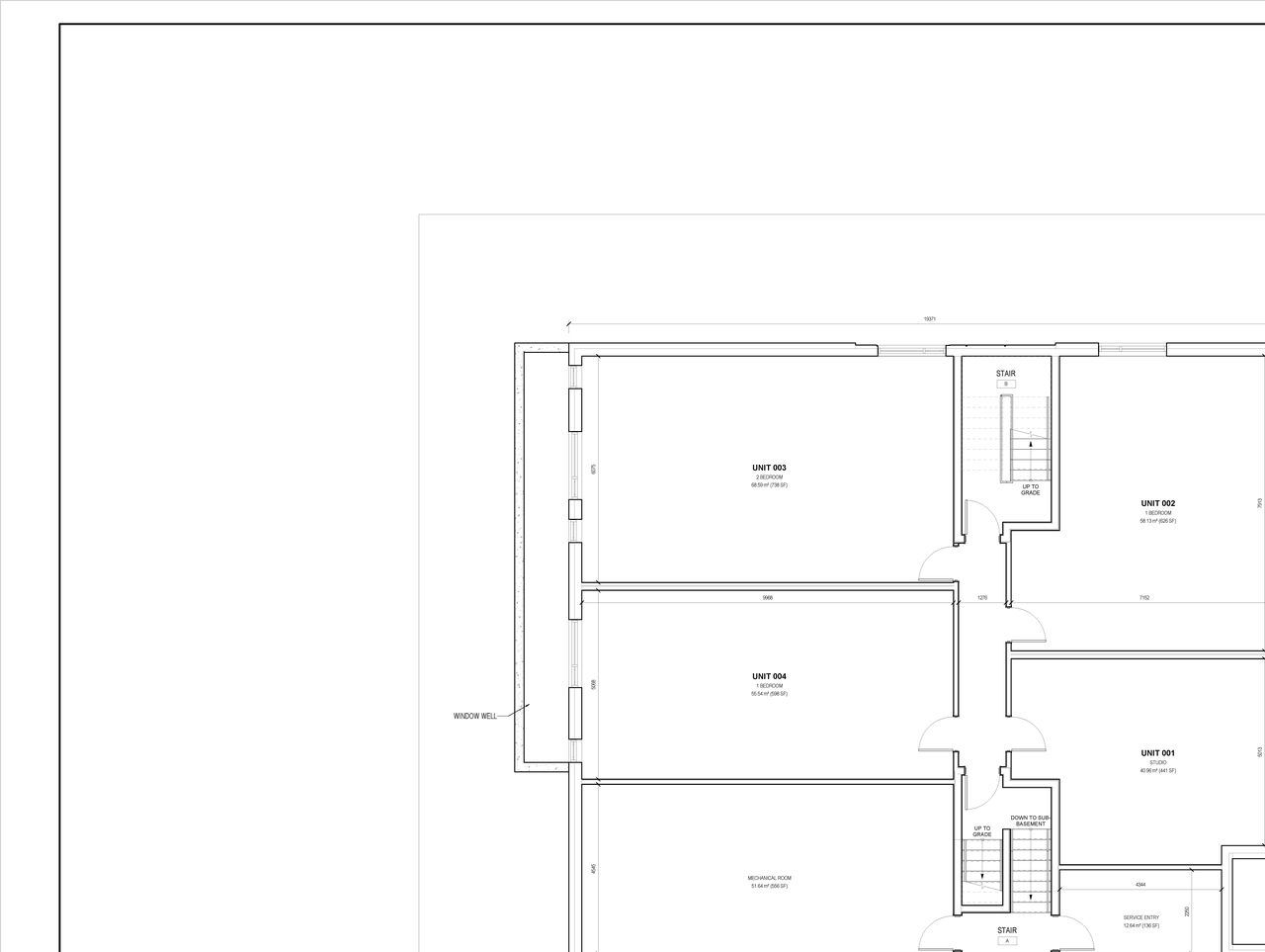
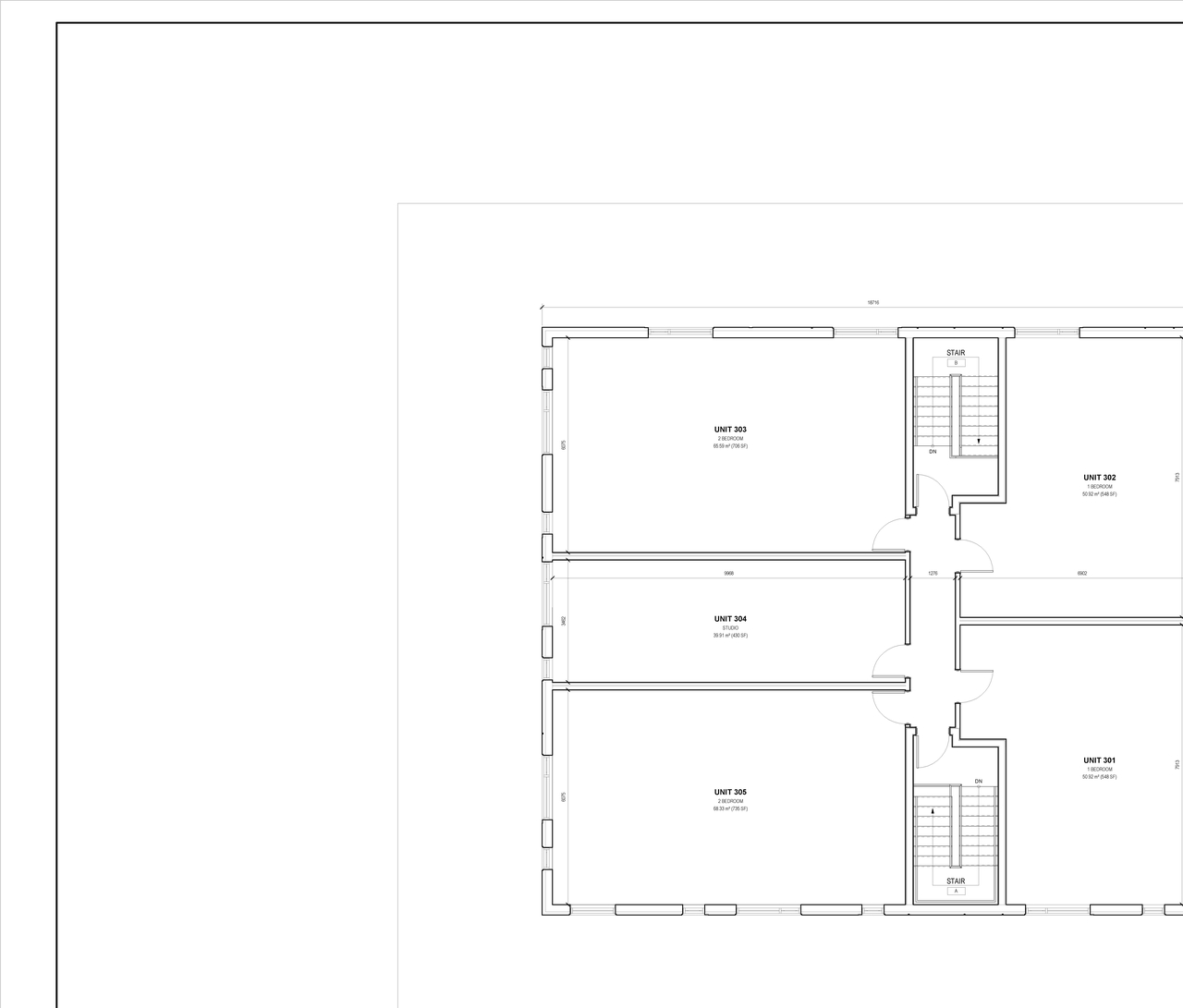
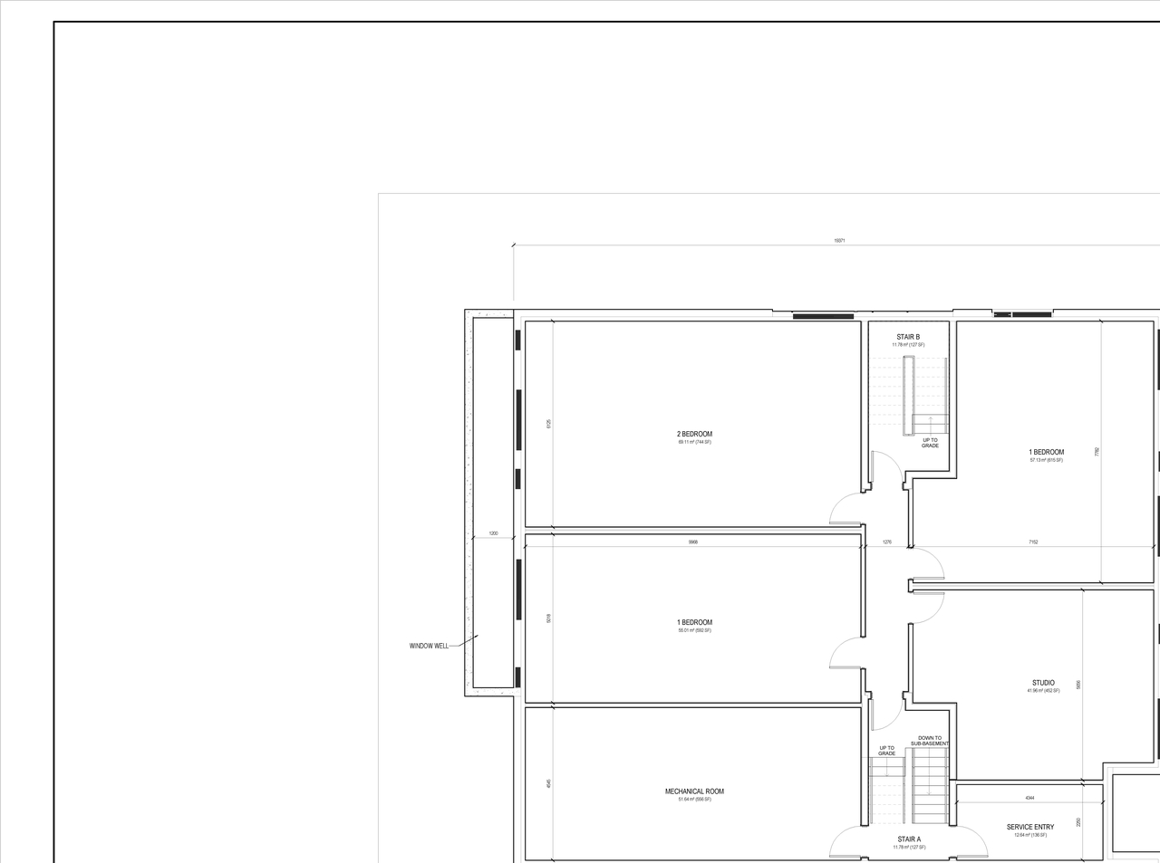
Site and Floor Plans #

  • Floor plan for project from page 1 of the file '2024-07-29 - Floor Plans - D07-12-23-0038'
  • Floor plan for project from page 2 of the file '2024-07-29 - Floor Plans - D07-12-23-0038'
  • Floor plan for project from page 3 of the file '2024-07-29 - Floor Plans - D07-12-23-0038'
  • Floor plan for project from page 1 of the file '2024-09-06 - Floor Plans - D07-12-23-0038'
  • Floor plan for project from page 2 of the file '2024-09-06 - Floor Plans - D07-12-23-0038'
  • Floor plan for project from page 3 of the file '2024-09-06 - Floor Plans - D07-12-23-0038'
  • Floor plan for project from page 1 of the file '2024-07-29 - Floor Plans - D07-12-23-0038'
  • Floor plan for project from page 2 of the file '2024-07-29 - Floor Plans - D07-12-23-0038'
  • Floor plan for project from page 3 of the file '2024-07-29 - Floor Plans - D07-12-23-0038'
  • Floor plan for project from page 1 of the file '2024-09-06 - Floor Plans - D07-12-23-0038'
  • Floor plan for project from page 2 of the file '2024-09-06 - Floor Plans - D07-12-23-0038'
  • Floor plan for project from page 3 of the file '2024-09-06 - Floor Plans - D07-12-23-0038'

Documents #

TypeDocument
Application Summary2023-04-27 - Application Summary - D07-12-23-0038
Architectural Plans2024-07-29 - Site Plan - D07-12-23-0038
Architectural Plans2024-07-29 - Elevations - D07-12-23-0038
Architectural Plans2024-07-26 - Site Plan - D07-12-23-0038
Architectural Plans2023-04-03 - Site Plan - D07-12-23-0038
Architectural Plans2023-04-03 - Pre & Post Development Plan - D07-12-23-0038
Architectural Plans2023-04-03 - Elevations - D07-12-23-0038
Architectural Plans2024-09-06 - Site Plan - D07-12-23-0038
Architectural Plans2024-09-06 - Park Elevations - D07-12-23-0038
Architectural Plans2024-10-22 - Site Plan - D07-12-23-0038
Architectural Plans2024-10-22 - Pre & Post Development Drainage Plans - D07-12-23-0038
Architectural Plans2024-10-31 - Site Plan - D07-12-23-0038
Architectural Plans2024-11-22 - Approved Site Plan - D07-12-23-0038
Architectural Plans2024-11-22 - Approved Pre & Post Development Drainage Plans - D07-12-23-0038
Architectural Plans2024-11-22 - Approved Elevations - D07-12-23-0038
Drainage Plan2024-07-26 - Drainage Plan - D07-12-23-0038
Environmental2024-07-26 - Environmental Noise Control Study - D07-12-23-0038
Environmental2023-07-17 - Phase 1 Environmental Site Assessment - D07-12-23-0038
Environmental2023-04-03 - Environmental Noise Control Study - D07-12-23-0038
Environmental2024-11-22 - Phase II ESA - D07-12-23-0038
Environmental2024-11-22 - Phase I ESA - D07-12-23-0038
Erosion And Sediment Control Plan2024-07-26 - Erosion & Sediment Control Plan - D07-12-23-0038
Erosion And Sediment Control Plan2023-04-03 - Erosion & Sediment Control Plan - D07-12-23-0038
Erosion And Sediment Control Plan2024-10-22 - Erosion and Sediment Control Plan - D07-12-23-0038
Erosion And Sediment Control Plan2024-11-22 - Approved Erosion and Sediment Control Plan - D07-12-23-0038
Floor Plan2024-07-29 - Floor Plans - D07-12-23-0038
Floor Plan2023-04-03 - Floor Plans - D07-12-23-0038
Floor Plan2024-09-06 - Floor Plans - D07-12-23-0038
Geotechnical Report2024-07-26 - Grading Plan - D07-12-23-0038
Geotechnical Report2023-04-03 - Grading Plan & Details - D07-12-23-0038
Geotechnical Report2023-04-03 - Geotechnical Investigation - D07-12-23-0038
Geotechnical Report2024-10-22 - Grading Plan & Details - D07-12-23-0038
Geotechnical Report2024-11-22 - Soil & Groundwater Quality Memo - D07-12-23-0038
Geotechnical Report2024-11-22 - Geotechnical Investigation - D07-12-23-0038
Geotechnical Report2024-11-22 - Approved Grading Plan & Details - D07-12-23-0038
Landscape Plan2024-07-26 - Landscape Plan - D07-12-23-0038
Landscape Plan2023-04-03 - Landscape Plan - D07-12-23-0038
Landscape Plan2024-10-01 - Landscape Plans - D07-12-23-0038
Landscape Plan2024-10-22 - Landscape Plan & Details - D07-12-23-0038
Landscape Plan2024-11-22 - Approved Landscape Plan & Details - D07-12-23-0038
Planning2023-04-03 - Planning Rationale - D07-12-23-0038
Rendering2023-04-03 - Renderings - D07-12-23-0038
Site Servicing2024-07-26 - Site Servicing Plan - D07-12-23-0038
Site Servicing2023-04-03 - Site Servicing Plan - D07-12-23-0038
Site Servicing2023-04-03 - SITE SERVICING & STORMWATER MANAGEMENT REPORT - D07-12-23-0038
Site Servicing2024-10-22 - Site Servicing Plan - D07-12-23-0038
Site Servicing2024-11-22 - Approved Site Servicing Plan - D07-12-23-0038
Stormwater Management2024-09-06 - SWM Report - D07-12-23-0038
Surveying2023-04-03 - topographical survey - D07-12-23-0038
Tree Information and Conservation2024-07-26 - Tree Conservation Report V2 - D07-12-23-0038
Tree Information and Conservation2023-04-03 - Tree Conservation Report - D07-12-23-0038
2024-07-26 - Notes, Schedules & Details - D07-12-23-0038
2023-04-03 - Record of Site Condition Request Letter - D07-12-23-0038
2023-04-03 - Notes Schedules & Details - D07-12-23-0038
2024-09-06 - SPC Park Street - D07-12-23-0038
2024-10-31 - SPC Park Street - D07-12-23-0038
2024-11-22 - Signed Delegated Authority Report - D07-12-23-0038
2024-11-22 - Approved Notes, Schedules & Details - D07-12-23-0038