370 Cambridge (D07-12-23-0036)

370 Cambridge (D07-12-23-0036) #

Summary #

Application StatusInactive
Review StatusAgreement Registered - Securities Held
DescriptionA Site Plan Control application to construct four-storey low-rise residential apartment building with 20 residential units, indoor garbage storage room, bicycle parking (10 indoors and four outdoors), and four surface parking spaces in the rear. Existing three two-storey townhouses are to be demolished.
WardWard 14 - Ariel Troster
Date Initiated2023-03-29
Last Updated2024-11-15

Renders #

  • Rendering of building from page 2 of the file '2023-03-28 - Elevations-3D Rendering and Perspective Views - D07-12-23-0036'
  • Rendering of building from page 1 of the file '2023-03-28 - Elevations-3D Rendering and Perspective Views - D07-12-23-0036'
  • Rendering of building from page 2 of the file '2023-03-28 - Elevations-3D Rendering and Perspective Views - D07-12-23-0036'
  • Rendering of building from page 1 of the file '2023-03-28 - Elevations-3D Rendering and Perspective Views - D07-12-23-0036'

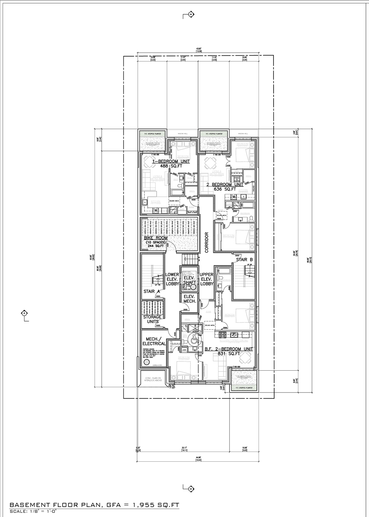
Site and Floor Plans #

  • Floor plan for project from page 1 of the file '2023-03-28 - Building Elevations-Floor Plans-Building Sections - D07-12-23-0036'
  • Floor plan for project from page 2 of the file '2023-03-28 - Building Elevations-Floor Plans-Building Sections - D07-12-23-0036'
  • Floor plan for project from page 1 of the file '2023-03-28 - Building Elevations-Floor Plans-Building Sections - D07-12-23-0036'
  • Floor plan for project from page 2 of the file '2023-03-28 - Building Elevations-Floor Plans-Building Sections - D07-12-23-0036'

Files #

TypeNameLinks
Adequacy Of Public Services2023-12-14 - Serviceability Report - D07-12-23-0036Download PDF
Adequacy Of Public Services2023-10-18 - Serviceability Report R-821-155A - Rev1 - D07-12-23-0036Download PDF
Adequacy Of Public Services2023-03-28 - Serviceability Report - D07-12-23-0036Download PDF
Application Summary2023-05-01 - Application Summary - D07-12-23-0036Download PDF
Architectural Plans2024-06-11 - Approved Site Plan - D07-12-23-0036Download PDF
Architectural Plans2024-06-11 - Approved Elevations - D07-12-23-0036Download PDF
Architectural Plans2023-12-14 - Architectural Package - D07-12-23-0036Download PDF
Architectural Plans2023-10-20 - Architectural Package - Rev Oct 11 2023 - D07-12-23-0036Download PDF
Architectural Plans2023-10-18 - Sloped Excavation Plan - D07-12-23-0036Download PDF
Architectural Plans2023-03-28 - Site Plan - D07-12-23-0036Download PDF
Electrical Plan2023-12-14 - Site Lighting Certification Letter - D07-12-23-0036Download PDF
Environmental2023-03-28 - Phase I Environmental Site Assessment report - D07-12-23-0036Download PDF
Erosion And Sediment Control Plan2024-06-11 - Approved Erosion & Sediment Control Plan - D07-12-23-0036Download PDF
Erosion And Sediment Control Plan2023-12-14 - Erosion & Sediment Cntrol Plan - D07-12-23-0036Download PDF
Erosion And Sediment Control Plan2023-10-18 - Erosion & Sediment Control Plan - 821-155-ESC-1 - Rev2 - D07-12-23-0036Download PDF
Erosion And Sediment Control Plan2023-03-28 - Erosion & Sediment Control Plan - D07-12-23-0036Download PDF
Floor Plan2023-03-28 - Building Elevations-Floor Plans-Building Sections - D07-12-23-0036Download PDF
Geotechnical Report2024-06-11 - Approved Grading & Servicing Plan - D07-12-23-0036Download PDF
Geotechnical Report2023-12-14 - Grading & Servicing Plan - D07-12-23-0036Download PDF
Geotechnical Report2023-10-18 - Grading & Servicing Plan - 821-155-G-1 - Rev4 - D07-12-23-0036Download PDF
Geotechnical Report2023-03-28 - Grading Plan - D07-12-23-0036Download PDF
Geotechnical Report2023-03-28 - Geotechnical Report -D07-12-23-0036Download PDF
Landscape Plan2024-01-19 - Landscape Plan - D07-12-23-0036Download PDF
Landscape Plan2023-12-14 - Landscape Plan - D07-12-23-0036Download PDF
Noise Study2023-12-14 - On-Site Stationary Source Noise - IDX Reporting Letter - D07-12-23-0036Download PDF
Noise Study2023-12-14 - Noise Impact Assessment Study - D07-12-23-0036Download PDF
Noise Study2023-10-18 - Noise Study - Scaled Drawings - D07-12-23-0036Download PDF
Noise Study2023-03-28 - Noise Impact Assessment Study - D07-12-23-0036Download PDF
Noise Study2024-11-08_Noise Certification Letter - Clearing ConditionDownload PDF
Planning2023-10-18 - Planning Statement - D07-12-23-0036Download PDF
Planning2023-03-28 - Planning Statement - D07-12-23-0036Download PDF
Rendering2023-03-28 - Elevations-3D Rendering and Perspective Views - D07-12-23-0036Download PDF
Stormwater Management2024-06-11 - Approved Storm Drainage Area Plan - D07-12-23-0036Download PDF
Stormwater Management2024-06-11 - Approved Rooftop SWM Plan - D07-12-23-0036Download PDF
Stormwater Management2023-12-14 - Storm Drainage Area Plan - D07-12-23-0036Download PDF
Stormwater Management2023-12-14 - Rooftop SWM Plan - D07-12-23-0036Download PDF
Stormwater Management2023-10-18 - Storm Water Management Plan 821-155-SWM-1 - Rev2 - D07-12-23-0036Download PDF
Stormwater Management2023-10-18 - Storm Drainage Report R-821-155 - Rev1 - D07-12-23-0036Download PDF
Stormwater Management2023-10-18 - Storm Drainage Area Plan - 821-155-D-1 - Rev2 - D07-12-23-0036Download PDF
Stormwater Management2023-03-28 - Stormwater Management Report - D07-12-23-0036Download PDF
Stormwater Management2023-03-28 - Storm Drainage Report - D07-12-23-0036Download PDF
Stormwater Management2023-03-28 - Post Development Storm Drainage Area Plan - D07-12-23-0036Download PDF
Surveying2023-03-28 - Surveyor’s Real Property Report Part 2 - D07-12-23-0036Download PDF
Surveying2023-03-28 - Surveyor’s Real Property Report - D07-12-23-0036Download PDF
Transportation Analysis2023-12-14 - TDM Checklist - D07-12-23-0036Download PDF
Transportation Analysis2023-03-28 - Traffic Impact Assesment Screening - D07-12-23-0036Download PDF
Tree Information and Conservation2024-06-11 - Approved TCR & Landscape Plan - D07-12-23-0036Download PDF
Tree Information and Conservation2023-10-18 - TCR & Landscape Plan - D07-12-23-0036Download PDF
Tree Information and Conservation2023-03-28 - Tree Conservation Report & Landscape Plan - D07-12-23-0036Download PDF
2024-06-11 - Signed Delegated Authority Report - D07-12-23-0036Download PDF
2024-01-19 - Roof Flow Control Declaration - D07-12-23-0036Download PDF
2023-12-14 - Roof Flow Control Declaration Form - D07-12-23-0036Download PDF
2023-10-20 - Memorandum - Response to Geotech & ESAPhaseI comments - D07-12-23-0036Download PDF
2023-10-18 - Water Data Card - D07-12-23-0036Download PDF
2023-10-18 - PhaseIESA - Rev June 27, 2023 - D07-12-23-0036Download PDF
2023-03-28- COVER SHEET - D07-12-23-0036Download PDF