381 Kent St. (D07-12-23-0031)#
Summary#
| Application Status | File Pending |
| Review Status | Application File Pending |
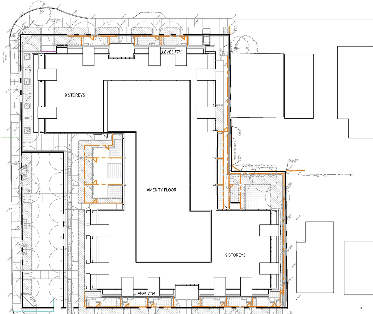
| Description | 9-storey mixed use residential building. Commercial uses are proposed at the ground floor in the northwest corner of the site. A total commercial gross floor area of 171m2 is proposed. The remainder of the ground floor envisions walk-out residential apartment units. The upper floors consist of apartment uses. A total of 218 units are proposed. |
| Ward | Ward 14 - Ariel Troster |
| Date Initiated | 2023-03-22 |
| Last Updated | 2025-03-22 |
Renders#
Location#
Select a marker to view the address.


































































