1806 Scott St. (D07-12-23-0006)

1806 Scott St. (D07-12-23-0006)#

Summary#

Application StatusPost Approval
Review StatusReceipt of Agreement from Owner Pending
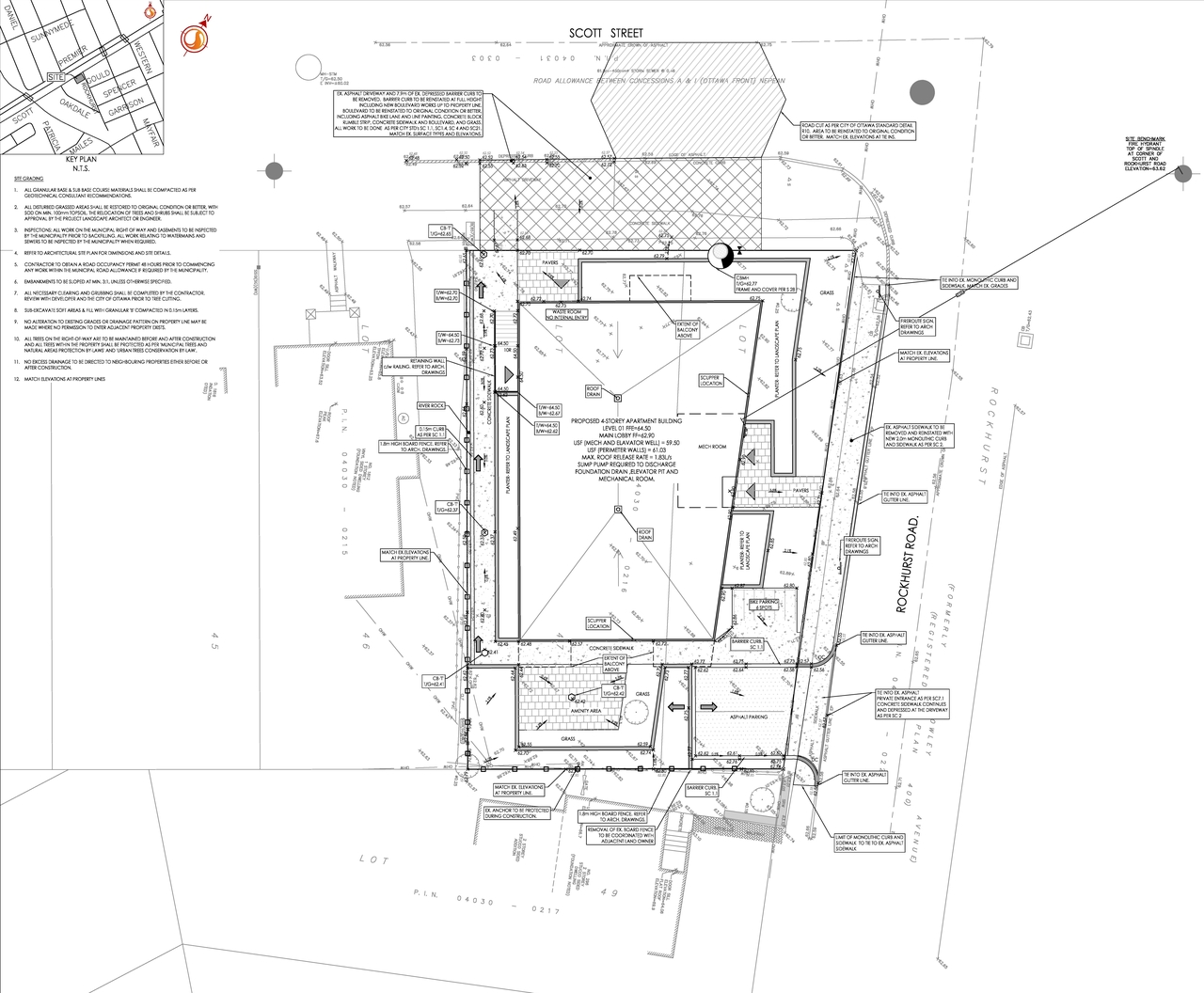
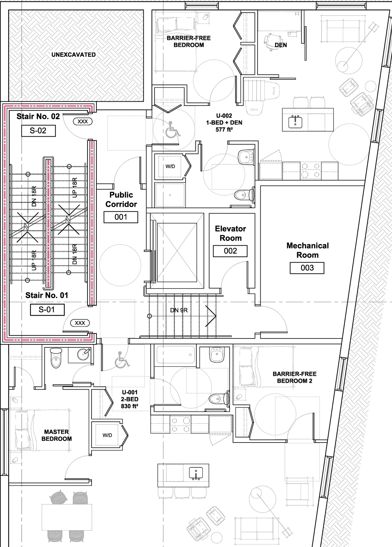
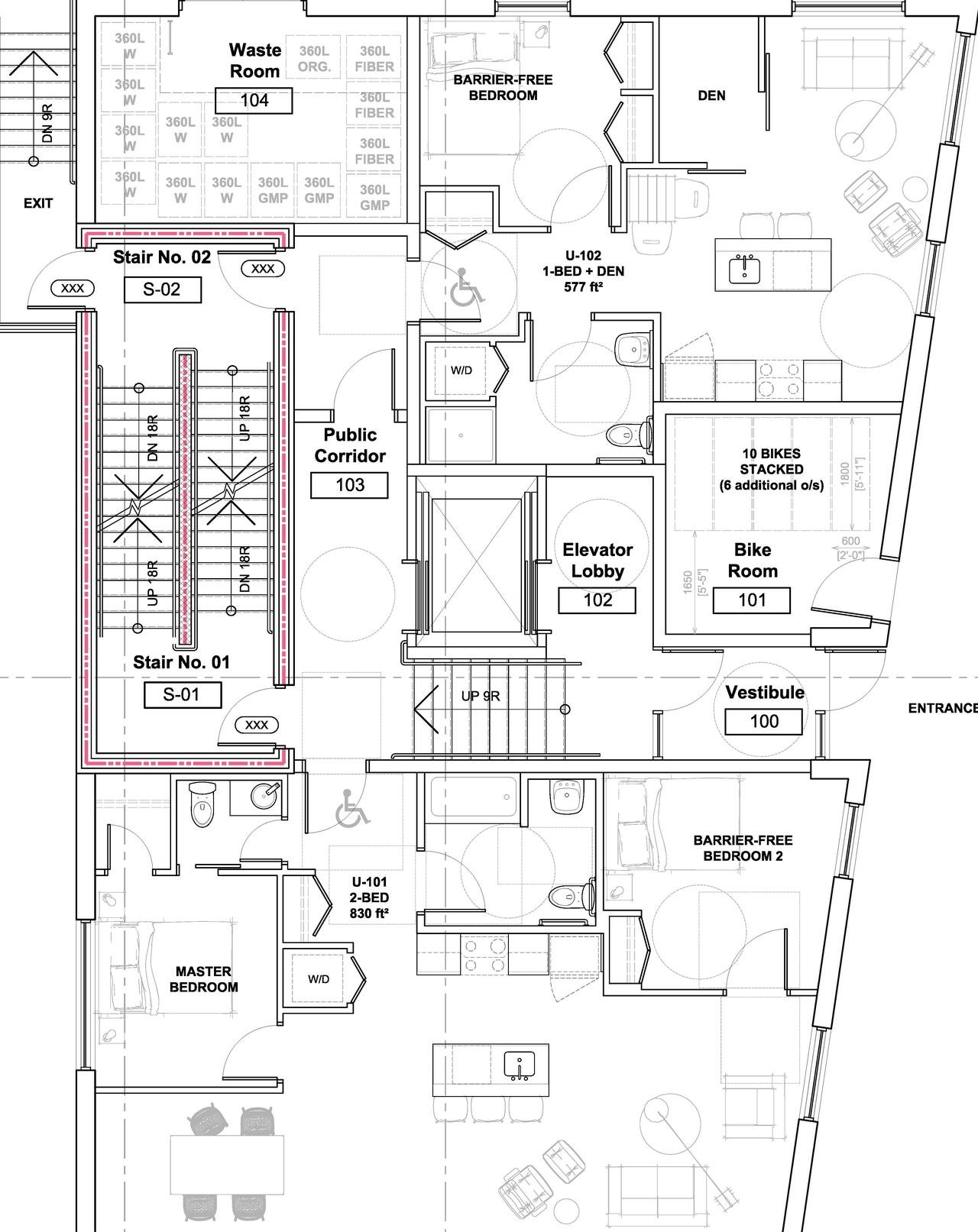
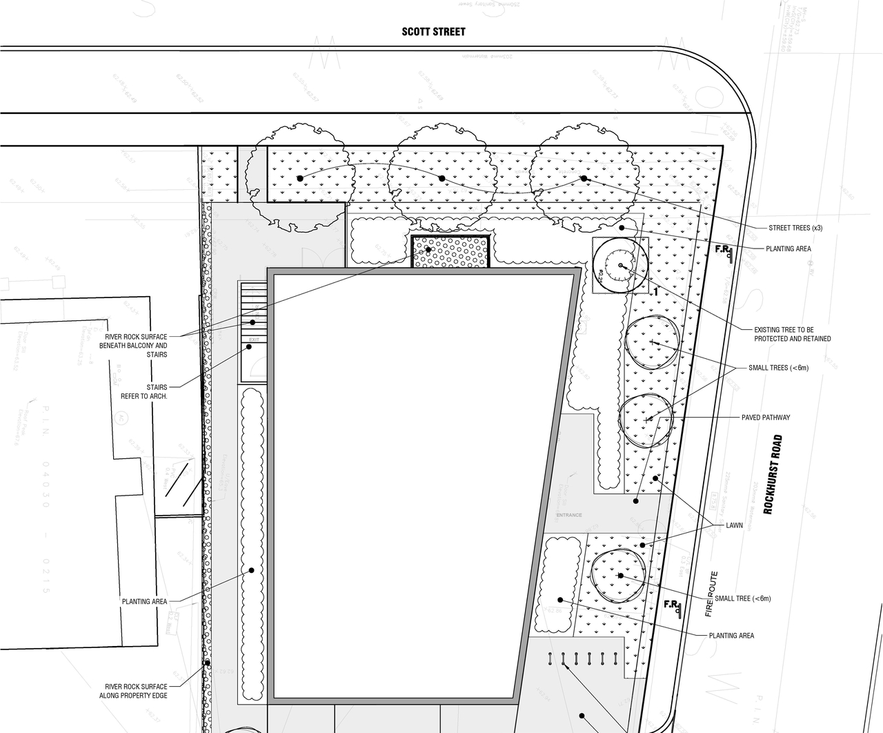
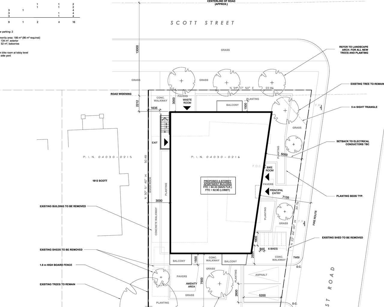
DescriptionThe City of Ottawa has received a Zoning By-law Amendment and Site Plan Control application to construct a four-storey low-rise apartment building, with a total of 16 dwelling units. There will be two visitor parking space and 16 bicycle parking spaces provided.
WardWard 15 - Jeff Leiper
Date Initiated2023-01-30
Last Updated2025-09-16

Renders#

Location#

Select a marker to view the address.

Site Plans, Elevations and Floor Plans#

  • Image from page 8 of the file '2023-01-30 - Design Brief - D07-12-23-0006'
  • Image from page 25 of the file '2023-01-30 - Design Brief - D07-12-23-0006'
  • Image from page 25 of the file '2023-01-30 - Design Brief - D07-12-23-0006'
  • Image from page 25 of the file '2023-01-30 - Design Brief - D07-12-23-0006'
  • Image from page 25 of the file '2023-01-30 - Design Brief - D07-12-23-0006'
  • Image from page 10 of the file '2023-01-30 - Design Brief - D07-12-23-0006'
  • Image from page 11 of the file '2023-01-30 - Design Brief - D07-12-23-0006'
  • Image from page 10 of the file '2023-01-30 - Design Brief - D07-12-23-0006'
  • Image from page 10 of the file '2023-01-30 - Design Brief - D07-12-23-0006'
  • Image from page 5 of the file '2023-01-30 - Design Brief - D07-12-23-0006'
  • Image from page 6 of the file '2023-01-30 - Design Brief - D07-12-23-0006'
  • Image from page 6 of the file '2023-01-30 - Design Brief - D07-12-23-0006'
  • Image from page 7 of the file '2023-01-30 - Design Brief - D07-12-23-0006'
  • Construction site plan for project from page 29 of the file '2023-01-30 - Design Brief - D07-12-23-0006'
  • Construction site plan for project from page 20 of the file '2023-01-30 - Design Brief - D07-12-23-0006'
  • Construction site plan for project from page 16 of the file '2023-01-30 - Design Brief - D07-12-23-0006'
  • Construction site plan for project from page 29 of the file '2023-01-30 - Design Brief - D07-12-23-0006'
  • Construction site plan for project from page 28 of the file '2023-01-30 - Design Brief - D07-12-23-0006'
  • Construction site plan for project from page 27 of the file '2023-01-30 - Design Brief - D07-12-23-0006'
  • Construction site plan for project from page 29 of the file '2023-01-30 - Design Brief - D07-12-23-0006'
  • Construction site plan for project from page 29 of the file '2023-01-30 - Design Brief - D07-12-23-0006'
  • Construction site plan for project from page 28 of the file '2023-01-30 - Design Brief - D07-12-23-0006'
  • Construction site plan for project from page 18 of the file '2023-01-30 - Design Brief - D07-12-23-0006'
  • Construction site plan for project from page 22 of the file '2023-01-30 - Design Brief - D07-12-23-0006'
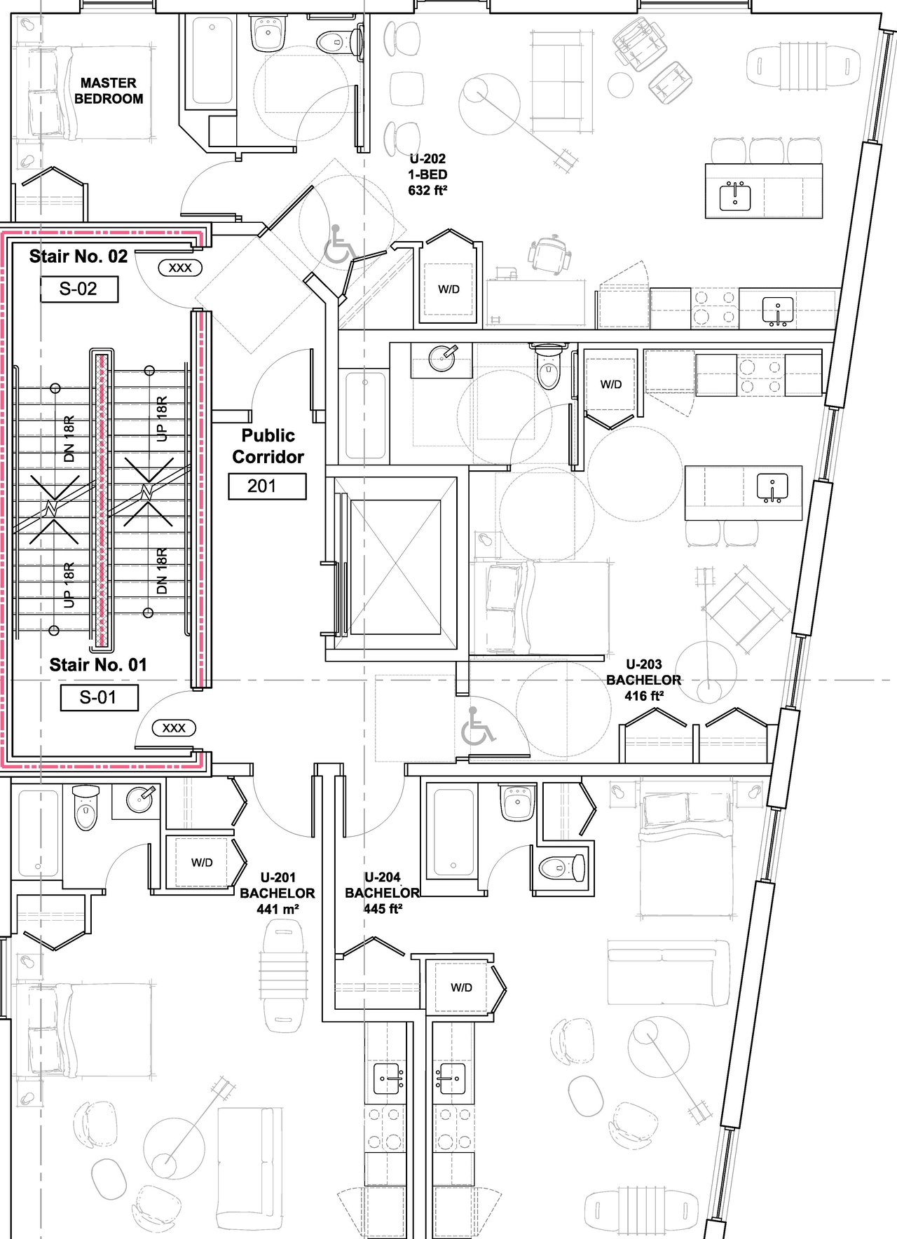
  • Floor plan for project from page 23 of the file '2023-01-30 - Design Brief - D07-12-23-0006'
  • Floor plan for project from page 22 of the file '2023-01-30 - Design Brief - D07-12-23-0006'
  • Floor plan for project from page 16 of the file '2023-01-30 - Design Brief - D07-12-23-0006'
  • Floor plan for project from page 16 of the file '2023-01-30 - Design Brief - D07-12-23-0006'
  • Image from page 8 of the file '2023-01-30 - Design Brief - D07-12-23-0006'
  • Image from page 25 of the file '2023-01-30 - Design Brief - D07-12-23-0006'
  • Image from page 25 of the file '2023-01-30 - Design Brief - D07-12-23-0006'
  • Image from page 25 of the file '2023-01-30 - Design Brief - D07-12-23-0006'
  • Image from page 25 of the file '2023-01-30 - Design Brief - D07-12-23-0006'
  • Image from page 10 of the file '2023-01-30 - Design Brief - D07-12-23-0006'
  • Image from page 11 of the file '2023-01-30 - Design Brief - D07-12-23-0006'
  • Image from page 10 of the file '2023-01-30 - Design Brief - D07-12-23-0006'
  • Image from page 10 of the file '2023-01-30 - Design Brief - D07-12-23-0006'
  • Image from page 5 of the file '2023-01-30 - Design Brief - D07-12-23-0006'
  • Image from page 6 of the file '2023-01-30 - Design Brief - D07-12-23-0006'
  • Image from page 6 of the file '2023-01-30 - Design Brief - D07-12-23-0006'
  • Image from page 7 of the file '2023-01-30 - Design Brief - D07-12-23-0006'
  • Construction site plan for project from page 29 of the file '2023-01-30 - Design Brief - D07-12-23-0006'
  • Construction site plan for project from page 20 of the file '2023-01-30 - Design Brief - D07-12-23-0006'
  • Construction site plan for project from page 16 of the file '2023-01-30 - Design Brief - D07-12-23-0006'
  • Construction site plan for project from page 29 of the file '2023-01-30 - Design Brief - D07-12-23-0006'
  • Construction site plan for project from page 28 of the file '2023-01-30 - Design Brief - D07-12-23-0006'
  • Construction site plan for project from page 27 of the file '2023-01-30 - Design Brief - D07-12-23-0006'
  • Construction site plan for project from page 29 of the file '2023-01-30 - Design Brief - D07-12-23-0006'
  • Construction site plan for project from page 29 of the file '2023-01-30 - Design Brief - D07-12-23-0006'
  • Construction site plan for project from page 28 of the file '2023-01-30 - Design Brief - D07-12-23-0006'
  • Construction site plan for project from page 18 of the file '2023-01-30 - Design Brief - D07-12-23-0006'
  • Construction site plan for project from page 22 of the file '2023-01-30 - Design Brief - D07-12-23-0006'
  • Floor plan for project from page 23 of the file '2023-01-30 - Design Brief - D07-12-23-0006'
  • Floor plan for project from page 22 of the file '2023-01-30 - Design Brief - D07-12-23-0006'
  • Floor plan for project from page 16 of the file '2023-01-30 - Design Brief - D07-12-23-0006'
  • Floor plan for project from page 16 of the file '2023-01-30 - Design Brief - D07-12-23-0006'

Documents#

TypeDocument
Application Summary2023-03-23 - Application Summary - D07-12-23-0006
Architectural Plans2024-01-24 - Site Plans and Roof Plan - D07-12-23-0006
Architectural Plans2024-01-24 - Plan 4R - D07-12-23-0006
Architectural Plans2023-09-06 - Architectural package - D07-12-23-0006
Architectural Plans2023-01-30 - Storm Drainge Plan - D07-12-23-0006
Architectural Plans2023-01-30 - Site Plan - D07-12-23-0006
Architectural Plans2024-09-27 - Site Plan - D07-12-23-0006
Architectural Plans2024-09-27 - Elevations - D07-12-23-0006
Civil Engineering Report2024-01-24 - Civil Drawings - D07-12-23-0006
Civil Engineering Report2024-09-27 - Civil Drawings - D07-12-23-0006
Design Brief2023-01-30 - Design Brief - D07-12-23-0006
Environmental2023-01-30 - Phase 1 Environmental Site Assessment - D07-12-23-0006
Erosion And Sediment Control Plan2023-09-06 - Erosion Control Plan and Detail Sheet - D07-12-23-0006
Erosion And Sediment Control Plan2023-01-30 - Erosion Control Plan & Detail Sheet - D07-D07-12-23-0006
Existing Conditions2023-09-06 - Existing Storm Drainage Plan - D07-12-23-0006
Existing Conditions2023-09-06 - Existing Conditions and Removals Plan - D07-12-23-0006
Existing Conditions2023-01-30 - Existing Storm Drainage Plan - D07-12-23-0006
Existing Conditions2023-01-30 - Existing Conditions & Removal Plans - D07-12-23-0006
Geotechnical Report2023-09-06 - Grading Plan - D07-12-23-0006
Geotechnical Report2023-01-30 - Grading Plan - D07-12-23-0006
Geotechnical Report2023-01-30 - Geotechnical Report - D07-12-23-0006
Landscape Plan2024-07-12 - Landscape Plan - D07-12-23-0006
Landscape Plan2024-01-24 - Landscape Plan and Details - D07-12-23-0006
Landscape Plan2023-09-06 - Landscape Plan and Details - D07-12-23-0006
Landscape Plan2024-09-27 - Landscape Plan - D07-12-23-0006
Landscape Plan2024-09-27 - Landscape Details - D07-12-23-0006
Noise Study2023-01-30 - Transportation Noise & Vibration - D07-12-23-0006
Planning2024-01-24 - Planning Rationale Addendum No 2 - D07-12-23-0006
Planning2023-09-06 - Planning Rationale Addendum - D07-12-23-0006
Planning2023-01-30 - Planning Rationale - D07-12-23-0006
Site Servicing2024-01-24 - Servicing and Stormwater Management Report - D07-12-23-0006
Site Servicing2023-09-06 - Site Servicing Plan - D07-12-23-0006
Site Servicing2023-01-30 - Site Servicing Plan - D07-12-23-0006
Stormwater Management2023-09-06 - Storm Drainage Plan - D07-12-23-0006
Stormwater Management2023-01-30 - Stormwater Management Report - D07-12-23-0006
Surveying2024-01-24 - Topographic Plan - D07-12-23-0006
Surveying2023-01-30 - Topographic Plan - D07-12-23-0006
Tree Information and Conservation2023-01-30 - Tree Conservation Report - D07-12-23-0006
Tree Information and Conservation2023-01-30 - Tree Conservation Plan - D07-12-23-0006
Tree Information and Conservation2024-09-27 - Tree Conservation Plan - D07-12-23-0006
2023-09-06 - Streetscape Character Analysis - D07-12-23-0006
2024-10-01 - Delegated Authority Report - D07-12-23-0006