2663 Innes (D07-12-22-0182)

2663 Innes (D07-12-22-0182) #

Summary #

Application StatusInactive
Review StatusNotice of Decision Sent
DescriptionA Site Plan Control application to construct a four-storey mixed-use building with 18 residential units, three office spaces, and 2,121 square metres of gross floor area (GFA) with 28 vehicle parking spaces and 10 bicycle parking spaces.
WardWard 2 - Laura Dudas
Date Initiated2022-12-22
Last Updated2023-11-10

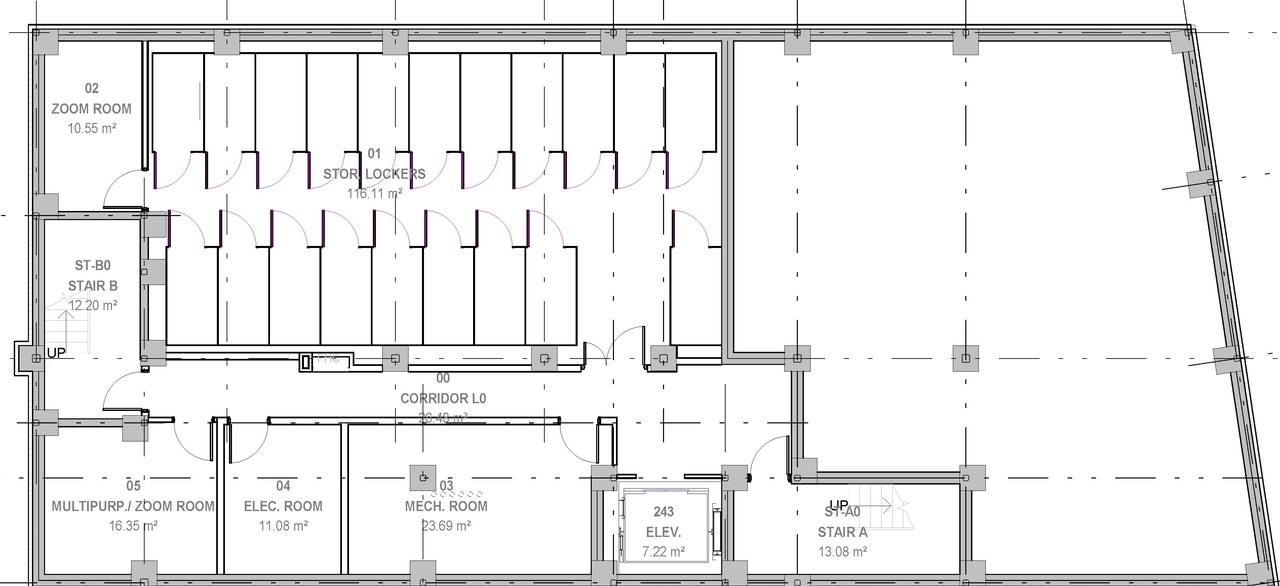
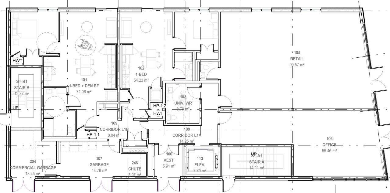
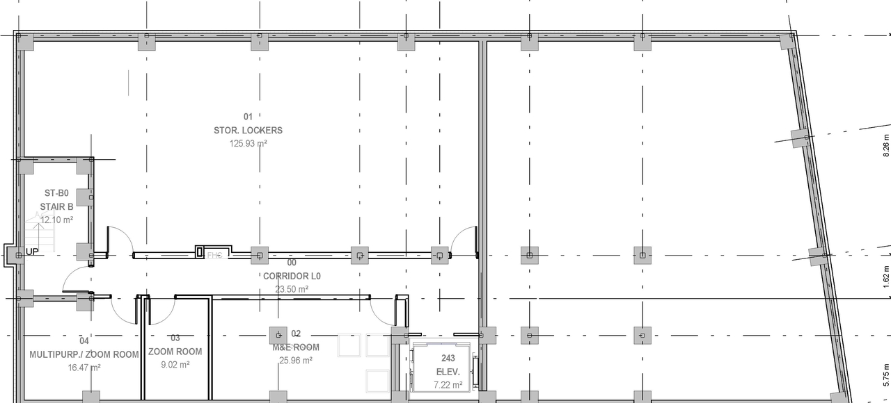
Site and Floor Plans #

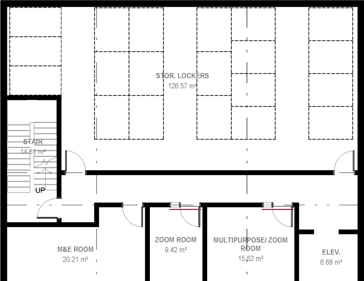
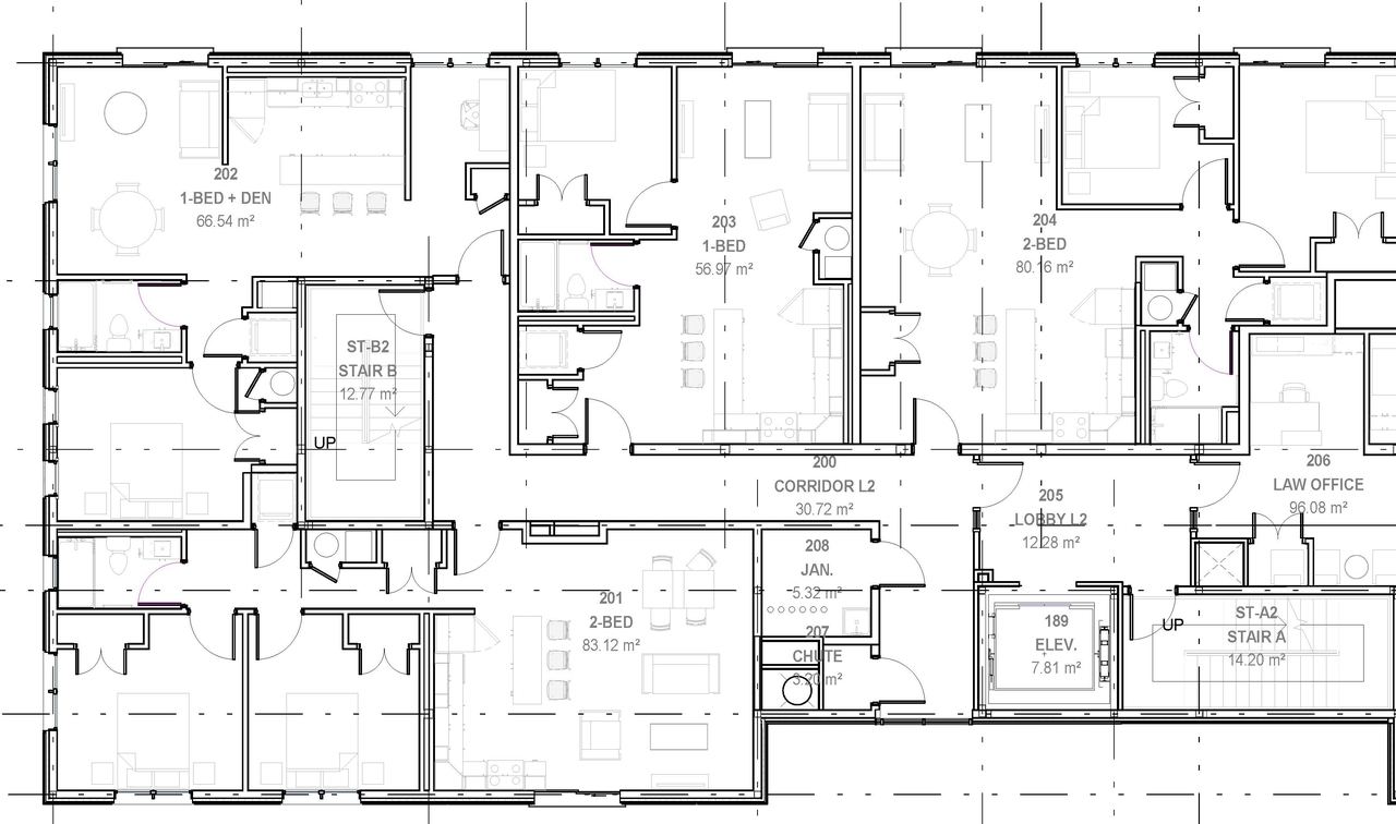
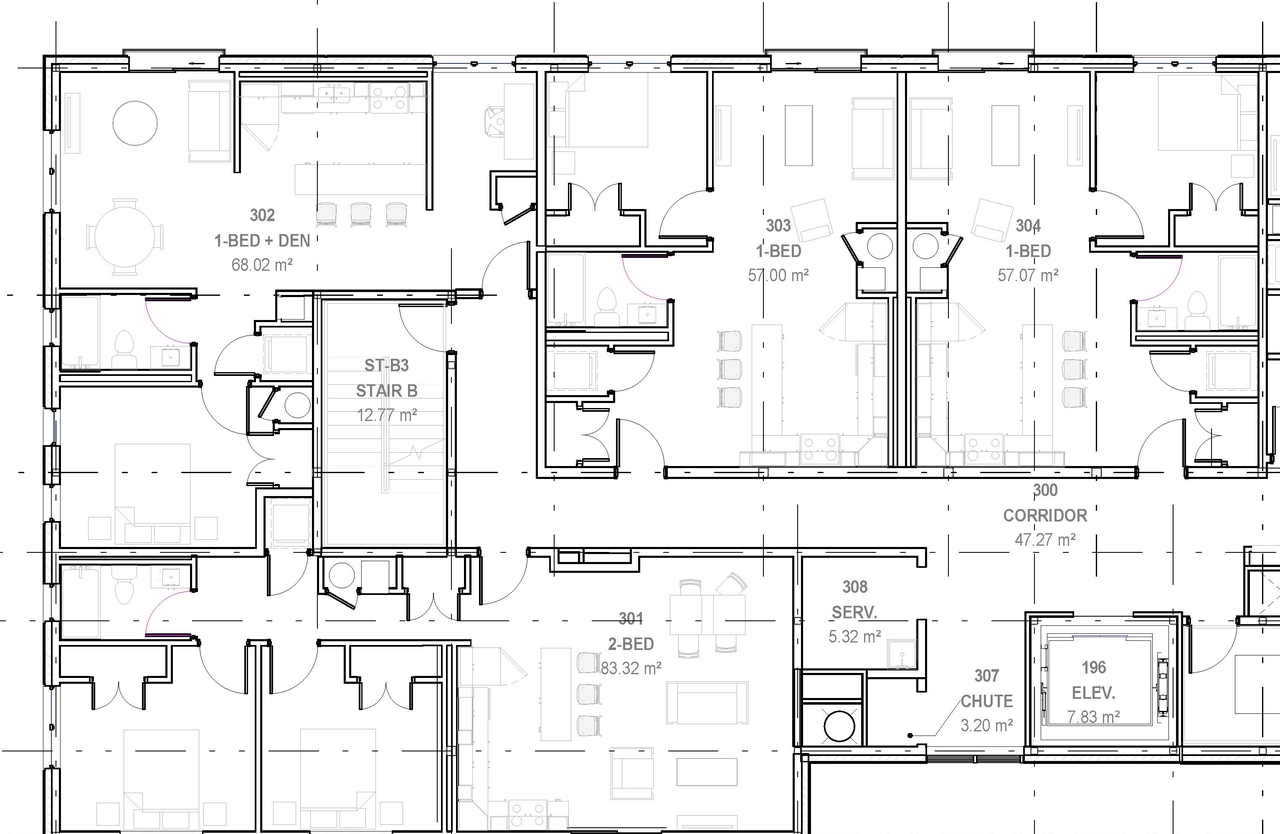
  • Floor plan for project from page 1 of the file '2022-12-22 - Floor Plan Levels 2 & 3 - D07-12-22-0182'
  • Floor plan for project from page 1 of the file '2022-12-22 - Floor Plan Basement and level 1 - D07-12-22-0182'
  • Floor plan for project from page 1 of the file '2022-12-22 - Floor Plan Levels 2 & 3 - D07-12-22-0182'
  • Floor plan for project from page 1 of the file '2022-12-22 - Floor Plan Basement and level 1 - D07-12-22-0182'

Files #

TypeNameLinks
Application Summary2023-03-24 - Application Summary - D07-12-22-0182Download PDF
Architectural Plans2023-11-09 - Approved Site Plan - D07-12-22-0182Download PDF
Architectural Plans2023-11-09 - Approved Removals, Erosion and Sediment Control Plan - D07-12-22-0182Download PDF
Architectural Plans2023-11-09 - Approved Exterior Elevations - D07-12-22-0182Download PDF
Architectural Plans2023-10-05- SITE SERVICING PLAN - D07-12-22-0182Download PDF
Architectural Plans2023-10-05- Site Plan - D07-12-22-0182Download PDF
Architectural Plans2023-09-05 - REMOVALS, EROSION & SEDIMENT CONTROL PLAN - D07-12-22-0182Download PDF
Architectural Plans2023-09-05 - L-01 LANDSCAPE & PLANTING PLAN - D07-12-22-0182Download PDF
Architectural Plans2023-08-05 - SITE PLAN - D07-12-22-0182Download PDF
Architectural Plans2023-07-19 - Site Plan - D07-12-22-0182Download PDF
Architectural Plans2023-07-13 - SITE PLAN - D07-12-22-0182Download PDF
Architectural Plans2023-07-13 - REMOVALS, EROSION & SEDIMENT CONTROL PLAN - D07-12-22-0182Download PDF
Architectural Plans2023-07-13 - LOT GRADING & DRAINAGE PLAN - D07-12-22-0182Download PDF
Architectural Plans2023-07-13 - BUILDING ELEVATIONS - D07-12-22-0182Download PDF
Architectural Plans2023-02-06 - SITE PLAN - D07-12-22-0182Download PDF
Architectural Plans2022-12-22 - Site Plan - D07-12-22-0182Download PDF
Architectural Plans2022-12-22 - Removals, Grading, Drainage, Erosion & Sediment Control Plan - D07-12-22-0182Download PDF
Architectural Plans2022-12-22 - Exterior Elevations - D07-12-22-0182Download PDF
Electrical Plan2022-12-22 - Site Lighting Plans - D07-12-22-0182Download PDF
Environmental2023-03-20 - Phase Two Environmental Site Assessment - D07-12-22-0182Download PDF
Environmental2023-03-20 - Phase One Environmental Site Assessment - D07-12-22-0182Download PDF
Floor Plan2023-07-19 - Floor Plans - D07-12-22-0182Download PDF
Floor Plan2023-07-13 - Floor Plans - D07-12-22-0182Download PDF
Floor Plan2022-12-22 - Floor Plan Levels 4 & Roof - D07-12-22-0182Download PDF
Floor Plan2022-12-22 - Floor Plan Levels 2 & 3 - D07-12-22-0182Download PDF
Floor Plan2022-12-22 - Floor Plan Basement and level 1 - D07-12-22-0182Download PDF
Geotechnical Report2023-11-09 - Approved Roof Lounge Plan & Soil Volumes and Canopy Coverage - D07-12-22-0182Download PDF
Geotechnical Report2023-11-09 - Approved Grading and Drainage Plan - D07-12-22-0182Download PDF
Geotechnical Report2023-09-05 - L-02 ROOF LOUNGE PLAN, SOIL VOLUMES & CANOPY COVERAGE - D07-12-22-0182Download PDF
Geotechnical Report2023-09-05 - GRADING & DRAINAGE PLAN - D07-12-22-0182Download PDF
Geotechnical Report2023-07-13 - ROOF LOUNGE PLAN, SOIL VOLUMES & CANOPY COVERAGE - D07-12-22-0182Download PDF
Geotechnical Report2022-12-22 - Geotechnical Investigation - D07-12-22-0182Download PDF
Landscape Plan2023-11-09 - Approved Landscape & Planting Plan - D07-12-22-0182Download PDF
Landscape Plan2023-10-05 - LANDSCAPE & PLANTING PLAN - D07-12-22-0182Download PDF
Landscape Plan2023-07-13 - Landscape Plan Details - D07-12-22-0182Download PDF
Landscape Plan2023-07-13 - LANDSCAPE & PLANTING PLAN - D07-12-22-0182Download PDF
Landscape Plan2022-12-22 - Landscape Plans - D07-12-22-0182Download PDF
Noise Study2023-07-13 - NOISE STUDY - D07-12-22-0182Download PDF
Noise Study2022-12-22 - Noise Impact Study - D07-12-22-0182Download PDF
Planning2023-09-05 - PLANNING RATIONALE & DESIGN BRIEF - D07-12-22-0182Download PDF
Planning2023-07-19 - Planning Rationale and Design Brief - D07-12-22-0182Download PDF
Planning2023-07-13 - PLANNING RATIONALE & DESIGN BRIEF - D07-12-22-0182Download PDF
Planning2022-12-22 - Planning Rationale and Design Brief - D07-12-22-0182Download PDF
Site Servicing2023-11-09 - Approved Site Servicing Plan - D07-12-22-0182Download PDF
Site Servicing2023-09-05 - SITE SERVICING STUDY - D07-12-22-0182Download PDF
Site Servicing2023-09-05 - SITE SERVICING PLAN - D07-12-22-0182Download PDF
Site Servicing2023-07-13 - SITE SERVICING STUDY - D07-12-22-0182Download PDF
Site Servicing2023-07-13 - SITE SERVICING PLAN - D07-12-22-0182Download PDF
Site Servicing2023-02-21 - Servicing and Stormwater Management Report - D07-12-22-0182Download PDF
Site Servicing2023-02-06 - SITE SERVICING PLAN - D07-12-22-0182Download PDF
Site Servicing2022-12-22 - Site Servicing Plan - D07-12-22-0182Download PDF
Surveying2023-07-13 - SURVEYORS NOTE - D07-12-22-0182Download PDF
Surveying2022-12-22 - Topographical Survey - D07-12-22-0182Download PDF
Transportation Analysis2022-12-22 - Transportation Impact Assessment Scoping Report - D07-12-22-0182Download PDF
Tree Information and Conservation2022-12-22 - Tree Conservation Report - D07-12-22-0182Download PDF
2023-11-09 - Signed Delegated Authority Report - D07-12-22-0182Download PDF
2023-11-09 - Approved Details - D07-12-22-0182Download PDF
2023-09-05 - L-03 DETAILS - D07-12-22-0182Download PDF
2023-09-05 - BASEMENT & LEVEL 01 - D07-12-22-0182Download PDF
2023-07-13 - PROPOSED DEVELOPMENT AND CONSERVED VEGETATION - D07-12-22-0182Download PDF
2023-02-06 - REMOVALS GRADING DRAINAGE EROSION AND SEDIMENT CONTROL - D07-12-22-0182Download PDF
2022-12-22 - Phase 1 Enviromental Site Assessment - D07-12-22-0182Download PDF