864 Lady Ellen Pl. (D07-12-22-0175)

864 Lady Ellen Pl. (D07-12-22-0175) #

Summary #

Application StatusPost Approval
Review StatusReceipt of Agreement from Owner Pending
DescriptionTwo (2) new storage warehouse are proposed to be constructed. First building A will be four storey in height for self storage units. Second building B will be one storey and containing storage units
WardWard 16 - Riley Brockington
Date Initiated2022-12-16
Last Updated2024-11-06

Renders #

  • Rendering of building from page 1 of the file '2022-12-21 - Preliminary Renderings - D07-12-22-0175'
  • Rendering of building from page 2 of the file '2022-12-21 - Preliminary Renderings - D07-12-22-0175'
  • Rendering of building from page 1 of the file '2022-12-21 - Preliminary Renderings - D07-12-22-0175'
  • Rendering of building from page 2 of the file '2022-12-21 - Preliminary Renderings - D07-12-22-0175'

Location #

Select a marker to view the address.

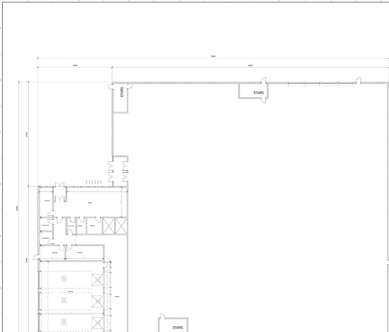
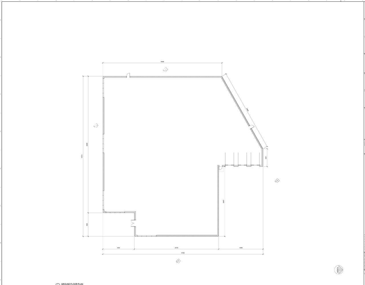
Site and Floor Plans #

  • Floor plan for project from page 1 of the file '2022-12-21 - Elevations and Floor Plans - D07-12-22-0175'
  • Floor plan for project from page 2 of the file '2022-12-21 - Elevations and Floor Plans - D07-12-22-0175'
  • Construction site plan for project from page 6 of the file '2022-12-21 - Elevations and Floor Plans - D07-12-22-0175'
  • Floor plan for project from page 1 of the file '2022-12-21 - Elevations and Floor Plans - D07-12-22-0175'
  • Floor plan for project from page 2 of the file '2022-12-21 - Elevations and Floor Plans - D07-12-22-0175'
  • Construction site plan for project from page 6 of the file '2022-12-21 - Elevations and Floor Plans - D07-12-22-0175'

Documents #

TypeDocument
Application Summary2023-01-19 - Application Summary - D07-12-22-0175
Architectural Plans2023-06-23 - Site Plan - D07-12-22-0175
Architectural Plans2023-04-27 - Site Plan - D07-12-22-0175
Architectural Plans2022-12-21 - Site Plan - D07-12-22-0175
Civil Engineering Report2023-06-23 - Civil Plans - D07-12-22-0175
Civil Engineering Report2023-04-27 - Civil Drawings - D07-12-22-0175
Civil Engineering Report2022-12-21 - Civil Plans - D07-12-22-0175
Environmental2022-12-21 - Phase 2 Environmental Site Assessment Update - D07-12-22-0175
Environmental2022-12-21 - Phase 2 Environmental Site Assessment - D07-12-22-0175
Environmental2022-12-21 - Phase 1 Environmental Site Assessment Update - D07-12-22-0175
Environmental2022-12-21 - Phase 1 Environmental Site Assessment - D07-12-22-0175
Floor Plan2022-12-21 - Elevations and Floor Plans - D07-12-22-0175
Geotechnical Report2023-06-23 - Supplemental Soil Vapour Sampling Technical Memo - D07-12-22-0175
Geotechnical Report2023-04-27 - Geotechnical Investigation - D07-12-22-0175
Geotechnical Report2023-04-27 - Geotechnical Grading Review Memo - D07-12-22-0175
Geotechnical Report2022-12-21 - Geotechnical Investigation - D07-12-22-0175
Landscape Plan2023-06-23 - Landscape Plan - D07-12-22-0175
Landscape Plan2023-06-23 - Landscape Details - D07-12-22-0175
Landscape Plan2023-04-27 - Landscape Plan - D07-12-22-0175
Landscape Plan2023-04-27 - Landscape Details - D07-12-22-0175
Landscape Plan2022-12-21 - Landscape Plan - D07-12-22-0175
Landscape Plan2022-12-21 - Landscape Details - D07-12-22-0175
Noise Study2023-04-27 - Noise Impact Assessment - D07-12-22-0175
Noise Study2022-12-21 - Noise Impact Assessment - D07-12-22-0175
Planning2022-12-21 - Planning Rationale and Design Brief - D07-12-22-0175
Rendering2022-12-21 - Preliminary Renderings - D07-12-22-0175
Site Servicing2023-06-23 - Servicing Report - D07-12-22-0175
Site Servicing2023-04-27 - Servicing Report - D07-12-22-0175
Site Servicing2022-12-21 - Servicing Report - D07-12-22-0175
Stormwater Management2023-06-23 - Stormwater Management Report - D07-12-22-0175
Stormwater Management2023-04-27 - Stormwater Management Report - D07-12-22-0175
Stormwater Management2022-12-21 - Stormwater Management Report - D07-12-22-0175
Surveying2022-12-21 - Topographic Plan - D07-12-22-0175
Transportation Analysis2022-12-21 - Transportation Impact Assessment Screening Form Memo - D07-12-22-0175
Tree Information and Conservation2023-06-23 - Tree Conservation Report - D07-12-22-0175
Tree Information and Conservation2023-04-27 - Tree Conservation Report - D07-12-22-0175
Tree Information and Conservation2022-12-21 - Tree Conservation Report - D07-12-22-0175
2023-06-23 - Flow Control Roof Drainage Declaration - D07-12-22-0175