15 Oblats, Av Des/17 Oblats, Av Des (D07-12-22-0124)

15 Oblats, Av Des/17 Oblats, Av Des (D07-12-22-0124) #

Summary #

Application StatusPost Approval
Review StatusReceipt of Agreement from Owner Pending
DescriptionThe proposed development is a 1,019 square metre addition to the existing building and the conversion of the existing building to rental units. A total of 284 residential units are proposed, with 20 vehicular parking spaces, 291 bicycle parking spaces, and 2,834 square metres of amenity space (indoor and outdoor)
WardWard 17 - Shawn Menard
Date Initiated2022-08-23
Last Updated2025-09-08

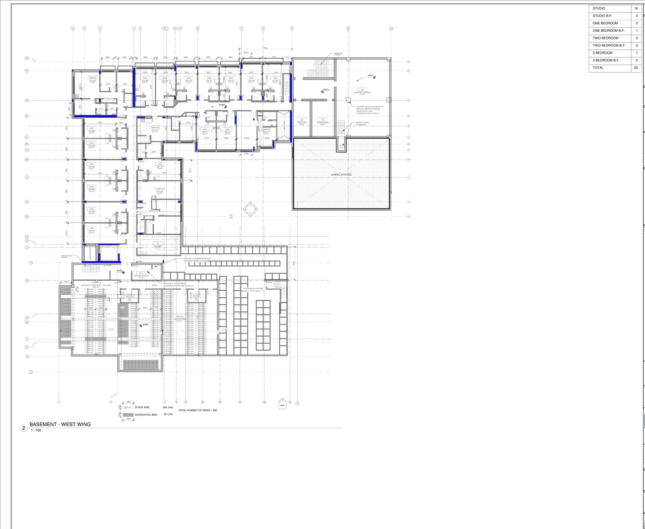
Site and Floor Plans #

  • Floor plan for project from page 2 of the file '2023-03-30 - Floor Plans - D07-12-22-0124'
  • Floor plan for project from page 2 of the file '2023-03-30 - Floor Plans - D07-12-22-0124'

Files #

TypeNameLinks
Application Summary2022-09-21 - Application Summary - D02-02-22-0083 & D07-12-22-0124Download PDF
Architectural Plans2023-03-30 - Site Plan - D07-12-22-0124Download PDF
Architectural Plans2023-03-30 - Removal Plan - D07-12-22-0124Download PDF
Architectural Plans2023-03-30 - Elevations - D07-12-22-0124Download PDF
Architectural Plans2022-08-23 - Site Plan - D07-12-22-0124Download PDF
Architectural Plans2022-08-23 - Floor & Elevation Drawings - D07-12-22-0124Download PDF
Architectural Plans2022-08-23 - Conservation Plan - D07-12-22-0124Download PDF
Architectural Plans2024-09-11 - Site Plan - D07-12-22-0124Download PDF
Architectural Plans2024-09-11 - Removal Plan - D07-12-22-0124Download PDF
Architectural Plans2024-09-11 - Elevations - D07-12-22-0124Download PDF
Architectural Plans2024-11-15 - Typical 2B Corner Unit Plan - D07-12-22-0124Download PDF
Architectural Plans2024-11-15 - Site Plan - D07-12-22-0124Download PDF
Architectural Plans2024-11-15 - Removal Plan - D07-12-22-0124Download PDF
Architectural Plans2024-11-15 - Partial North Elevation - D07-12-22-0124Download PDF
Architectural Plans2025-02-11 - Approved Site Plan - D07-12-22-0124Download PDF
Architectural Plans2025-02-11 - Approved Planting Plan - D07-12-22-0124Download PDF
Architectural Plans2025-02-11 - Approved Elevations - D07-12-22-0124Download PDF
Civil Engineering Report2022-08-23 - Civil Plans - D07-12-22-0124Download PDF
Civil Engineering Report2025-02-11 - Approved Civil Plans - D07-12-22-0124Download PDF
Electrical Plan2024-11-15 - Lighting Calculation - D07-12-22-0124Download PDF
Environmental2022-08-23 - Phase Two Environmental Site Assessment - D07-12-22-0124Download PDF
Environmental2022-08-23 - Phase 1 Environmental Site Assessment - D07-12-22-0124Download PDF
Erosion And Sediment Control Plan2023-03-30 - Erosion and Sediment Control - D07-12-22-0124Download PDF
Erosion And Sediment Control Plan2024-09-11 - Erosion and Sediment Control Plan - D07-12-22-0124Download PDF
Erosion And Sediment Control Plan2024-11-15 - Erosion and Sediment Control Plan - D07-12-22-0124Download PDF
Floor Plan2023-03-30 - Floor Plans - D07-12-22-0124Download PDF
Geotechnical Report2023-03-30 - Grading Plan - D07-12-22-0124Download PDF
Geotechnical Report2023-03-30 - Grading & Servicing Plan Review Memo - D07-12-22-0124Download PDF
Geotechnical Report2023-03-30 - Geotechnical Investigation - D07-12-22-0124Download PDF
Geotechnical Report2022-08-23 - Geotechnical Investigation Report - D07-12-22-0124Download PDF
Geotechnical Report2024-09-11 - Grading Plan - D07-12-22-0124Download PDF
Geotechnical Report2024-09-11 - Geotechnical Investigation Report - D07-12-22-0124Download PDF
Geotechnical Report2024-11-15 - Grading Plan - D07-12-22-0124Download PDF
Geotechnical Report2024-11-15 - Geotechnical Investigation Report - D07-12-22-0124Download PDF
Landscape Plan2022-08-23 - Landscape Plan - D07-12-22-0124Download PDF
Landscape Plan2024-09-11 - Landscape Plan - D07-12-22-0124Download PDF
Landscape Plan2024-11-15 - Landscape Plan - D07-12-22-0124Download PDF
Noise Study2023-03-30 - Roadway Traffic Noise Addendum Letter - D07-12-22-0124Download PDF
Noise Study2022-08-23 - Traffic Noise - D07-12-22-0124Download PDF
Noise Study2024-11-15 - Noise Addendum Letter - D07-12-22-0124Download PDF
Planning2023-03-30 - Planning Rationale Addendum - D07-12-22-0124Download PDF
Planning2023-03-30 - Planning Rationale - D07-12-22-0124Download PDF
Planning2022-08-23 - Planning Rationale & Design Brief -D07-12-22-0124Download PDF
Shadow Study2023-03-30 - Shadow Study - D07-12-22-0124Download PDF
Site Servicing2023-03-30 - Site Servicing Report - D07-12-22-0124Download PDF
Site Servicing2023-03-30 - Servicing Plan - D07-12-22-0124Download PDF
Site Servicing2022-08-23 - Site Servicing Report - D07-12-22-0124Download PDF
Site Servicing2024-09-11 - Site Servicing Report - D07-12-22-0124Download PDF
Site Servicing2024-09-11 - Servicing Plan - D07-12-22-0124Download PDF
Site Servicing2024-11-15 - Servicing Plan - D07-12-22-0124Download PDF
Stormwater Management2023-03-30 - Stormwater Management Report - D07-12-22-0124Download PDF
Stormwater Management2022-08-23 - Stormwater Management Report - D07-12-22-0124Download PDF
Stormwater Management2024-09-11 - Stormwater Management Report - D07-12-22-0124Download PDF
Surveying2022-08-23 - Topographical Plan of Survey - D07-12-22-0124Download PDF
Transportation Analysis2023-03-30 - Transportation Impact Assessment - D07-12-22-0124Download PDF
Transportation Analysis2022-08-23 - Transportation Impact Assessment -D07-12-22-0124Download PDF
Tree Information and Conservation2023-03-30 - Tree Conservation Report & Landscape Plan - D07-12-22-0124Download PDF
Tree Information and Conservation2024-09-11 - Tree Conservation Report - D07-12-22-0124Download PDF
Tree Information and Conservation2024-11-15 - Tree Conservation Report - D07-12-22-0124Download PDF
2023-03-30 - Unit Mix Analysis - D07-12-22-0124Download PDF
2022-09-27 - Exterior Aerial 2 - D07-12-22-0124Download PDF
2022-09-27 - Exterior Aerial 1 - D07-12-22-0124Download PDF
2024-09-11 - Sections - D07-12-22-0124Download PDF
2024-09-11 - Project Statistics - D07-12-22-0124Download PDF
2024-09-11 - FloorPlans - D07-12-22-0124Download PDF
2024-11-27 - Undertaking Letter - D07-12-22-0124Download PDF
2025-02-11 - Delegated Authority Report SIGNED - D07-12-22-0124Download PDF