29 Russell Ave. (D07-12-22-0115)

29 Russell Ave. (D07-12-22-0115) #

Summary #

Application StatusFile Pending
Review StatusApplication File Pending
DescriptionThe original building is proposed to be retained, and a new low-rise (3 storey) residential use addition is proposed attached to the rear. The addition will provide a total of 21 units including 14 in the existing building, and 7 in the new building.
WardWard 12 - Stéphanie Plante
Date Initiated2022-07-25
Last Updated2023-06-15

Renders #

  • Rendering of building from page 10 of the file '2023-04-25 - Floor Plans & Elevations - D07-12-22-0115'
  • Rendering of building from page 5 of the file '2023-10-18 - Phase 2 Fire Rating Plans and Floor Plans - D07-12-22-0115'
  • Rendering of building from page 4 of the file '2023-10-18 - Phase 2 Fire Rating Plans and Floor Plans - D07-12-22-0115'
  • Rendering of building from page 4 of the file '2022-08-15 - Floor & Elevations & Rendering Plans - D07-12-22-0115'
  • Rendering of building from page 9 of the file '2023-04-25 - Floor Plans & Elevations - D07-12-22-0115'
  • Rendering of building from page 8 of the file '2023-04-25 - Floor Plans & Elevations - D07-12-22-0115'
  • Rendering of building from page 5 of the file '2022-08-15 - Floor & Elevations & Rendering Plans - D07-12-22-0115'
  • Rendering of building from page 7 of the file '2022-08-15 - Floor & Elevations & Rendering Plans - D07-12-22-0115'
  • Rendering of building from page 8 of the file '2022-08-15 - Floor & Elevations & Rendering Plans - D07-12-22-0115'
  • Rendering of building from page 10 of the file '2023-04-25 - Floor Plans & Elevations - D07-12-22-0115'
  • Rendering of building from page 5 of the file '2023-10-18 - Phase 2 Fire Rating Plans and Floor Plans - D07-12-22-0115'
  • Rendering of building from page 4 of the file '2023-10-18 - Phase 2 Fire Rating Plans and Floor Plans - D07-12-22-0115'
  • Rendering of building from page 4 of the file '2022-08-15 - Floor & Elevations & Rendering Plans - D07-12-22-0115'
  • Rendering of building from page 9 of the file '2023-04-25 - Floor Plans & Elevations - D07-12-22-0115'
  • Rendering of building from page 8 of the file '2023-04-25 - Floor Plans & Elevations - D07-12-22-0115'
  • Rendering of building from page 5 of the file '2022-08-15 - Floor & Elevations & Rendering Plans - D07-12-22-0115'
  • Rendering of building from page 7 of the file '2022-08-15 - Floor & Elevations & Rendering Plans - D07-12-22-0115'
  • Rendering of building from page 8 of the file '2022-08-15 - Floor & Elevations & Rendering Plans - D07-12-22-0115'

Location #

Select a marker to view the address.

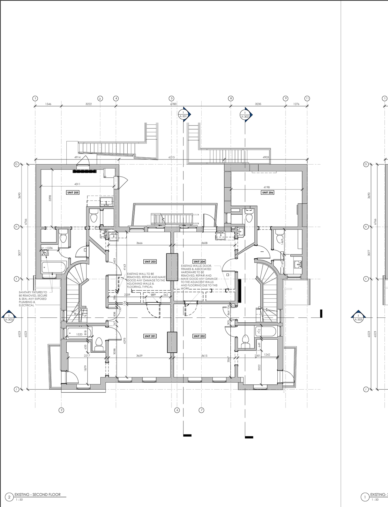
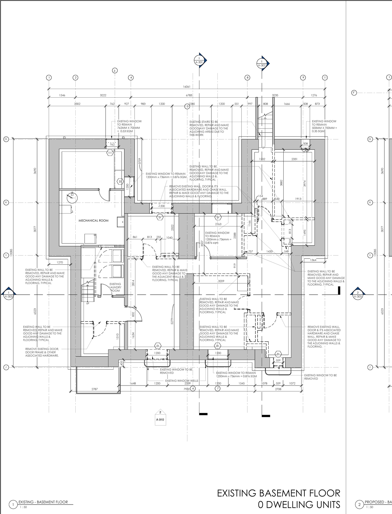
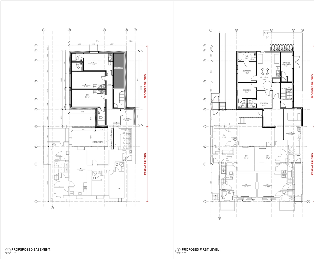
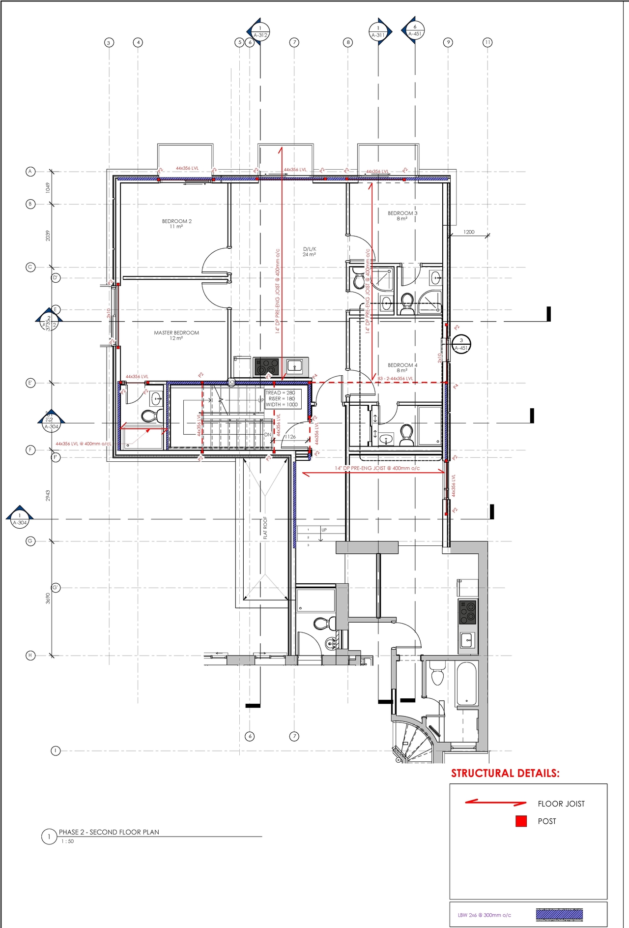
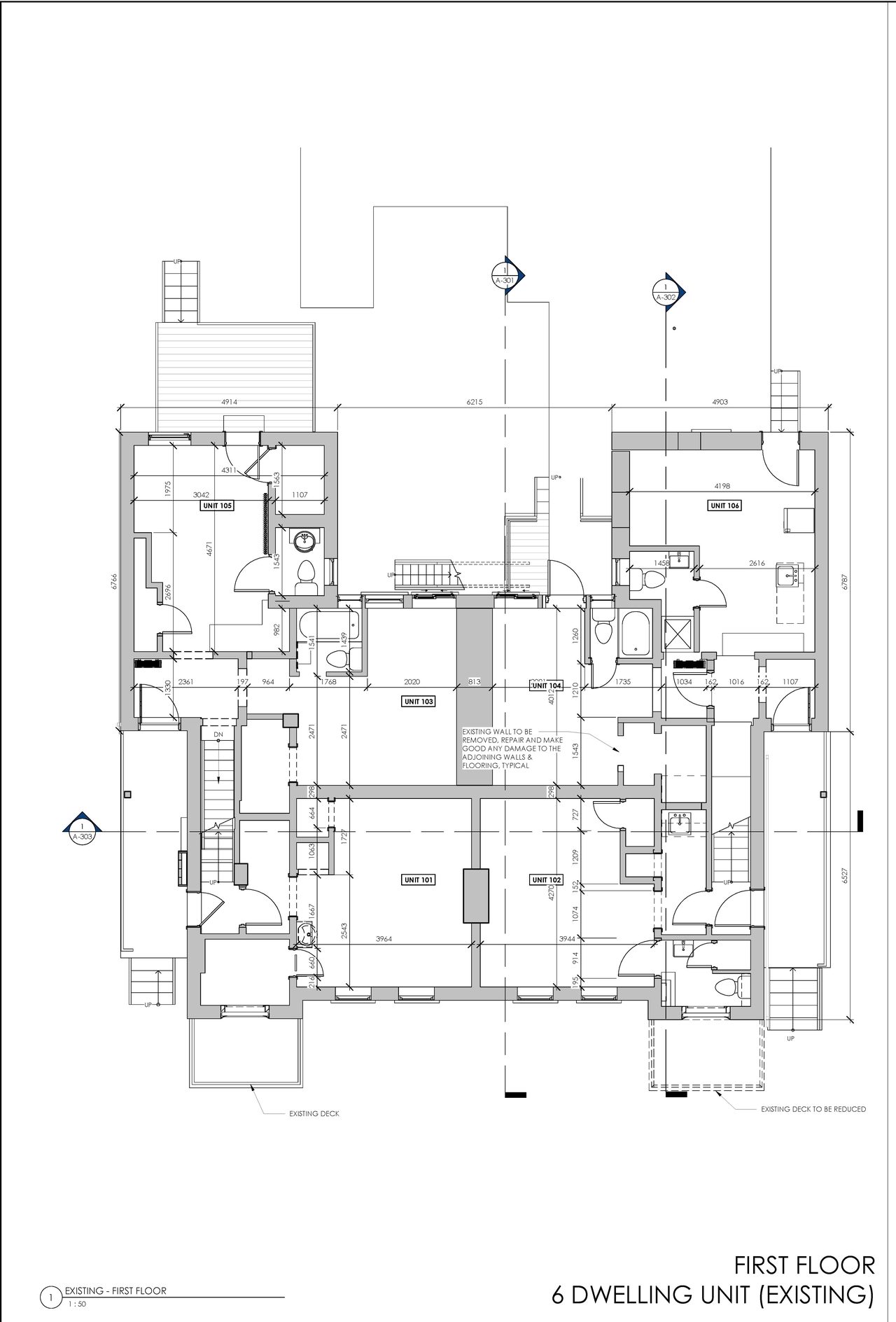
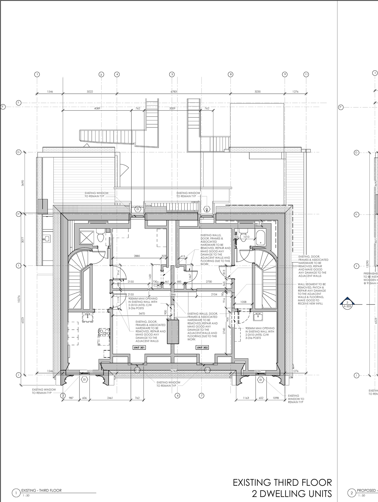
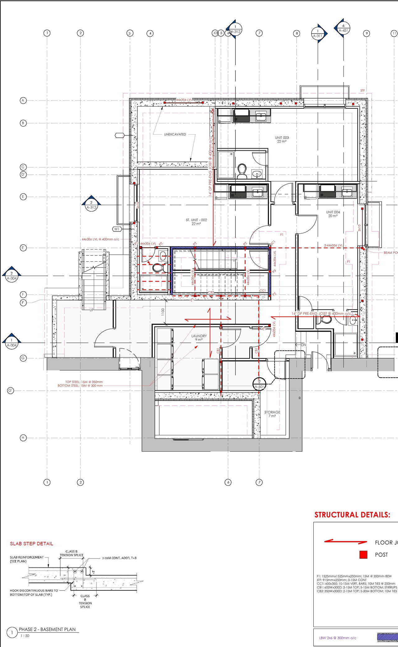
Site and Floor Plans #

  • Floor plan for project from page 1 of the file '2023-10-18 - Phase 2 Fire Rating Plans and Floor Plans - D07-12-22-0115'
  • Floor plan for project from page 3 of the file '2023-10-18 - Phase 2 Fire Rating Plans and Floor Plans - D07-12-22-0115'
  • Floor plan for project from page 1 of the file '2023-04-25 - Floor Plans & Elevations - D07-12-22-0115'
  • Floor plan for project from page 2 of the file '2023-04-25 - Floor Plans & Elevations - D07-12-22-0115'
  • Floor plan for project from page 3 of the file '2023-04-25 - Floor Plans & Elevations - D07-12-22-0115'
  • Floor plan for project from page 5 of the file '2023-04-25 - Floor Plans & Elevations - D07-12-22-0115'
  • Floor plan for project from page 1 of the file '2022-08-15 - Floor & Elevations & Rendering Plans - D07-12-22-0115'
  • Floor plan for project from page 2 of the file '2022-08-15 - Floor & Elevations & Rendering Plans - D07-12-22-0115'
  • Floor plan for project from page 1 of the file '2023-10-18 - Phase 2 Fire Rating Plans and Floor Plans - D07-12-22-0115'
  • Floor plan for project from page 3 of the file '2023-10-18 - Phase 2 Fire Rating Plans and Floor Plans - D07-12-22-0115'
  • Floor plan for project from page 1 of the file '2023-04-25 - Floor Plans & Elevations - D07-12-22-0115'
  • Floor plan for project from page 2 of the file '2023-04-25 - Floor Plans & Elevations - D07-12-22-0115'
  • Floor plan for project from page 3 of the file '2023-04-25 - Floor Plans & Elevations - D07-12-22-0115'
  • Floor plan for project from page 5 of the file '2023-04-25 - Floor Plans & Elevations - D07-12-22-0115'
  • Floor plan for project from page 1 of the file '2022-08-15 - Floor & Elevations & Rendering Plans - D07-12-22-0115'
  • Floor plan for project from page 2 of the file '2022-08-15 - Floor & Elevations & Rendering Plans - D07-12-22-0115'

Documents #

TypeDocument
Application Summary2022-08-23 - Application Summary - D07-12-22-0115
Architectural Plans2023-10-18 - Site Plan - D07-12-22-0115
Architectural Plans2023-10-18 - Elevations - D07-12-22-0115
Architectural Plans2023-06-12 - Site Plan - D07-12-22-0115
Architectural Plans2023-06-12 - Architectural Plans and Elevations - D07-12-22-0115
Architectural Plans2023-04-25 - Site Plan - D07-12-22-0115
Architectural Plans2023-04-25 - Site Grading & Servicing Plan - D07-12-22-0115
Architectural Plans2023-04-25 - Pre-development Storm Catchment Plan - D07-12-22-0115
Architectural Plans2023-04-25 - Post-development Storm Catchment Plan - D07-12-22-0115
Architectural Plans2023-01-16 - Site plan -D02-02-22-0076
Architectural Plans2023-01-16 - Elevations Plans - D02-02-22-0076
Architectural Plans2022-08-15 - Site Plan - D07-12-22-0115
Architectural Plans2022-08-15 - Engineering Plan - D07-12-22-0115
Architectural Plans2022-07-25 - Site plan - D07-12-22-0115
Architectural Plans2022-07-25 - Plans - D07-12-22-0115
Civil Engineering Report2023-10-18 - Civil Engineering Drawings - D07-12-22-0115
Civil Engineering Report2023-06-12 - Civil Engineering Drawings - D07-12-22-0115
Civil Engineering Report2023-04-25 - Civil Notes & Details - D07-12-22-0115
Civil Engineering Report2023-01-16 - Civil Plans - D02-02-22-0076
Environmental2022-07-25 - Phase One Environmental Site Assessment - D07-12-22-0115
Erosion And Sediment Control Plan2023-04-25 - Erosion Protection & Removals Plan - D07-12-22-0115
Floor Plan2023-10-18 - Phase 2 Fire Rating Plans and Floor Plans - D07-12-22-0115
Floor Plan2023-04-25 - Floor Plans & Elevations - D07-12-22-0115
Geotechnical Report2023-10-18 - Geotechnical Investigation - D07-12-22-0115
Geotechnical Report2023-06-12 - Geotechnical Review of Latest Grading and Servicing Plan Letter - D07-12-22-0115
Geotechnical Report2023-06-12 - Geotechnical Investigation - D07-12-22-0115
Geotechnical Report2023-04-25 - Geotechnical Investigation -D07-12-22-0115
Geotechnical Report2022-08-15 - Geotechnical Report - D07-12-22-0115
Geotechnical Report2022-07-25 - Geotechnical Investigation - D07-12-22-0115
Landscape Plan2023-10-18 - Landscape Plan - D07-12-22-0115
Landscape Plan2023-04-25 - Landscape Plan - D07-12-22-0115
Landscape Plan2023-01-16 - Landscape Plan - D02-02-22-0076
Landscape Plan2022-08-15 - Landscape Plan - D07-12-22-0115
Landscape Plan2022-07-25 - Landscape Plan - D07-12-22-0115
Noise Study2023-01-16 - Noise Attenuation Study - D02-02-22-0076
Planning2022-08-15 - Planning Rationale & Design Brief - D07-12-22-0115
Planning2022-07-25 - Planning Rationale - D07-12-22-0115
Rendering2022-08-15 - Floor & Elevations & Rendering Plans - D07-12-22-0115
Stormwater Management2023-10-18 - Stormwater Management & Servicing Report - D07-12-22-0115
Stormwater Management2023-01-16 - Stormwater Management Report & Servicing Report - D02-02-22-0076
Stormwater Management2022-08-15 - Stormwater Management & Servicing Report - D07-12-22-0115
Stormwater Management2022-07-25 - Stormwater Management & Servicing Report - D07-12-22-0115
Surveying2022-08-15 - Topographic Plan of Survey - D07-12-22-0115
Surveying2022-07-25 - Topographic Plan Of Survey - D07-12-22-0115
Tree Information and Conservation2024-01-03 - Tree Conservation Report Addendum - D07-12-22-0115
Tree Information and Conservation2023-06-12 - Tree Conservation Report & Landscape Plans - D07-12-22-0115
2023-10-18 - Pre-Construction CCTV Inspection Report - D07-12-22-0115
2023-10-18 - Heritage Permit Application - Project Description - D07-12-22-0115
2023-10-18 - Confirmation of Garbage Collection from WM - D07-12-22-0115
2023-10-18 - CCTV Footage Certification - D07-12-22-0115
2023-10-18 - Bike Structure - D07-12-22-0115
2023-06-12 - Transmittal 3rd Submission Documents - D07-12-22-0115
2023-06-12 - Horizontal Bicycle Rack Detail - D07-12-22-0115
2023-04-25 - Bicycle Parking Design Detail - D07-12-22-0115
2022-07-25 - Drawings - D07-12-22-0115
ProjectLast UpdatedDate Initiated
29 Russell Ave. D02-02-22-0076
2024-02-152022-07-25
29 Russell Ave. D09-04-23-0004
2023-12-052023-01-17