393 Mcarthur (D07-12-22-0102)

393 Mcarthur (D07-12-22-0102) #

Summary #

Application StatusPost Approval
Review StatusRequest for Agreement Received
DescriptionSix-storey mixed-use building including three commercial units and 66 residential apartment units.
WardWard 12 - Stéphanie Plante
Date Initiated2022-06-23
Last Updated2024-07-03

Renders #

  • Rendering of building from page 4 of the file '2023-11-14 - Perspective Views - D07-12-22-0102'
  • Rendering of building from page 1 of the file '2023-11-14 - Perspective Views - D07-12-22-0102'
  • Rendering of building from page 3 of the file '2023-11-14 - Perspective Views - D07-12-22-0102'
  • Rendering of building from page 1 of the file '2022-12-20 - Perspective Views - D07-12-22-0102'
  • Rendering of building from page 2 of the file '2023-11-14 - Perspective Views - D07-12-22-0102'
  • Rendering of building from page 3 of the file '2022-12-20 - Perspective Views - D07-12-22-0102'
  • Rendering of building from page 7 of the file '2022-06-23 - Design Brief - D07-12-22-0102'
  • Rendering of building from page 2 of the file '2022-12-20 - Perspective Views - D07-12-22-0102'
  • Rendering of building from page 6 of the file '2022-06-23 - Design Brief - D07-12-22-0102'
  • Rendering of building from page 7 of the file '2022-06-23 - Design Brief - D07-12-22-0102'
  • Rendering of building from page 6 of the file '2022-06-23 - Design Brief - D07-12-22-0102'
  • Rendering of building from page 9 of the file '2022-06-23 - Design Brief - D07-12-22-0102'
  • Rendering of building from page 9 of the file '2022-06-23 - Design Brief - D07-12-22-0102'
  • Rendering of building from page 10 of the file '2022-06-23 - Design Brief - D07-12-22-0102'
  • Rendering of building from page 7 of the file '2022-06-23 - Design Brief - D07-12-22-0102'
  • Rendering of building from page 4 of the file '2023-11-14 - Perspective Views - D07-12-22-0102'
  • Rendering of building from page 1 of the file '2023-11-14 - Perspective Views - D07-12-22-0102'
  • Rendering of building from page 3 of the file '2023-11-14 - Perspective Views - D07-12-22-0102'
  • Rendering of building from page 1 of the file '2022-12-20 - Perspective Views - D07-12-22-0102'
  • Rendering of building from page 2 of the file '2023-11-14 - Perspective Views - D07-12-22-0102'
  • Rendering of building from page 3 of the file '2022-12-20 - Perspective Views - D07-12-22-0102'
  • Rendering of building from page 7 of the file '2022-06-23 - Design Brief - D07-12-22-0102'
  • Rendering of building from page 2 of the file '2022-12-20 - Perspective Views - D07-12-22-0102'
  • Rendering of building from page 6 of the file '2022-06-23 - Design Brief - D07-12-22-0102'
  • Rendering of building from page 7 of the file '2022-06-23 - Design Brief - D07-12-22-0102'
  • Rendering of building from page 6 of the file '2022-06-23 - Design Brief - D07-12-22-0102'
  • Rendering of building from page 9 of the file '2022-06-23 - Design Brief - D07-12-22-0102'
  • Rendering of building from page 9 of the file '2022-06-23 - Design Brief - D07-12-22-0102'
  • Rendering of building from page 10 of the file '2022-06-23 - Design Brief - D07-12-22-0102'
  • Rendering of building from page 7 of the file '2022-06-23 - Design Brief - D07-12-22-0102'

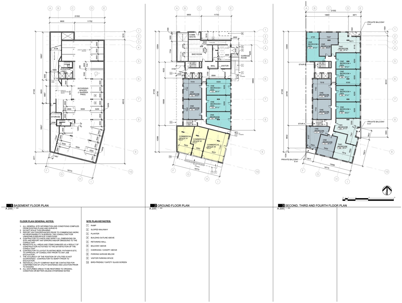
Site and Floor Plans #

  • Floor plan for project from page 1 of the file '2023-11-14 - Floor Plans - D07-12-22-0102'
  • Construction site plan for project from page 1 of the file '2023-06-12 - Floor Plans - D07-12-22-0102'
  • Floor plan for project from page 1 of the file '2023-11-14 - Floor Plans - D07-12-22-0102'
  • Construction site plan for project from page 1 of the file '2023-06-12 - Floor Plans - D07-12-22-0102'

Files #

TypeNameLinks
Application Summary2022-07-26 - Application Summary - D02-02-22-0058 & D07-12-22-0102Download PDF
Architectural Plans2024-06-25 - Approved Site Plan - D07-12-22-0102Download PDF
Architectural Plans2024-06-25 - Approved Roof Plan and Drainage Plan - D07-12-22-0102Download PDF
Architectural Plans2024-06-25 - Approved Notes Plan - D07-12-22-0102Download PDF
Architectural Plans2023-11-14 - Site Plan - D07-12-22-0102Download PDF
Architectural Plans2023-11-14 - Elevations - D07-12-22-0102Download PDF
Architectural Plans2023-06-12 - Site Plan - D07-12-22-0102Download PDF
Architectural Plans2023-06-12 - Elevations - D07-12-22-0102Download PDF
Architectural Plans2022-12-20 - Site Plan - D07-12-22-0102Download PDF
Architectural Plans2022-12-20 - Roof Plan and Drainage Plan - D07-12-22-0102Download PDF
Architectural Plans2022-12-20 - Notes Plan C-4 - D07-12-22-0102Download PDF
Architectural Plans2022-12-20 - Elevations - D07-12-22-0102Download PDF
Architectural Plans2022-06-23 - Site Plan - D07-12-22-0102Download PDF
Architectural Plans2022-06-23 - Roof Plan and Drainage Plan - D07-12-22-0102Download PDF
Architectural Plans2022-06-23 - Engineering Notes Plan - D07-12-22-0102Download PDF
Architectural Plans2022-06-23 - Elevations - D07-12-22-0102Download PDF
Design Brief2022-06-23 - Design Brief - D07-12-22-0102Download PDF
Environmental2022-08-25 - Phase Two Environmental Site Assessment - D07-12-22-0102Download PDF
Environmental2022-06-23 - Phase One Environmental Site Assessment - D07-12-22-0102Download PDF
Existing Conditions2024-06-25 - Approved Existing Conditions, Grading and Sediment Control Plan - D07-12-22-0102Download PDF
Existing Conditions2022-12-20 - Existing Conditions, Grading Plan and Sediment Control Plan - D07-12-22-0102Download PDF
Existing Conditions2022-06-23 - Existing Conditions Grading Plan and Sediment Control Plan - D07-12-22-0102Download PDF
Floor Plan2023-11-14 - Floor Plans - D07-12-22-0102Download PDF
Floor Plan2023-06-12 - Floor Plans - D07-12-22-0102Download PDF
Floor Plan2022-12-20 - Floor Plans - D07-12-22-0102Download PDF
Floor Plan2022-06-23 - Floor Plans (2) - D07-12-22-0102Download PDF
Floor Plan2022-06-23 - Floor Plans - D07-12-22-0102Download PDF
Geotechnical Report2022-06-23 - Geotechnical Investigation - D07-12-22-0102Download PDF
Landscape Plan2024-06-25 - Approved Landscape Plan & Details - D07-12-22-0102Download PDF
Landscape Plan2024-03-14 - Landscape Plan - D07-12-22-0102Download PDF
Landscape Plan2023-11-14 - Landscape Plan - D07-12-22-0102Download PDF
Landscape Plan2023-06-12 - Landscape Plan - D07-12-22-0102Download PDF
Landscape Plan2022-12-20 - Landscape Plan - D07-12-22-0102Download PDF
Landscape Plan2022-06-23 - Landscape Plan - D07-12-22-0102Download PDF
Noise Study2022-06-23 - Roadway Traffic Noise Assessment - D07-12-22-0102Download PDF
Planning2022-06-23 - Planning Rationale - D07-12-22-0102Download PDF
Rendering2023-11-14 - Perspective Views - D07-12-22-0102Download PDF
Rendering2023-06-12 - Perspective Views - D07-12-22-0102Download PDF
Rendering2022-12-20 - Perspective Views - D07-12-22-0102Download PDF
Site Servicing2024-06-25 - Approved Site Servicing Plan - D07-12-22-0102Download PDF
Site Servicing2022-12-20 - Site Servicing Plan - D07-12-22-0102Download PDF
Site Servicing2022-06-23 - Site Servicing Study & Stormwater Management Report - D07-12-22-0102Download PDF
Site Servicing2022-06-23 - Site Servicing Plan - D07-12-22-0102Download PDF
Surveying2022-07-28 - Survey Plan - D07-12-22-0102Download PDF
Transportation Analysis2022-12-20 - Transportation Impact Assessment - D07-12-22-0102Download PDF
Tree Information and Conservation2023-11-14 - Tree Conservation Plan - D07-12-22-0102Download PDF
Tree Information and Conservation2022-12-20 - Tree Conservation Report - D07-12-22-0102Download PDF
Tree Information and Conservation2022-06-23 - Tree Conservation Report - D07-12-22-0102Download PDF
2024-06-25 - Signed Delegated Authority Report - D07-12-22-0102Download PDF
2022-12-20 - Future Urban Context Drawing - D07-12-22-0102Download PDF
2022-06-23 - Parking and Transportation Demand Management Memo - D07-12-22-0102Download PDF