436 Athlone (D07-12-22-0086)

436 Athlone (D07-12-22-0086) #

Summary #

Application StatusInactive
Review StatusNotice of Decision Sent
DescriptionProposed three-storey, 16 unit apartment building.
WardWard 15 - Jeff Leiper
Date Initiated2022-05-24
Last Updated2024-07-09

Renders #

  • Rendering of building from page 20 of the file '2022-05-24 - Design Brief - D07-12-22-0086'
  • Rendering of building from page 20 of the file '2022-05-24 - Design Brief - D07-12-22-0086'
  • Rendering of building from page 1 of the file '2022-05-24 - Design Brief - D07-12-22-0086'
  • Rendering of building from page 8 of the file '2022-05-24 - Design Brief - D07-12-22-0086'
  • Rendering of building from page 23 of the file '2022-05-24 - Design Brief - D07-12-22-0086'
  • Rendering of building from page 14 of the file '2022-05-24 - Design Brief - D07-12-22-0086'
  • Rendering of building from page 14 of the file '2022-05-24 - Design Brief - D07-12-22-0086'
  • Rendering of building from page 19 of the file '2022-05-24 - Design Brief - D07-12-22-0086'
  • Rendering of building from page 20 of the file '2022-05-24 - Design Brief - D07-12-22-0086'
  • Rendering of building from page 20 of the file '2022-05-24 - Design Brief - D07-12-22-0086'
  • Rendering of building from page 1 of the file '2022-05-24 - Design Brief - D07-12-22-0086'
  • Rendering of building from page 8 of the file '2022-05-24 - Design Brief - D07-12-22-0086'
  • Rendering of building from page 23 of the file '2022-05-24 - Design Brief - D07-12-22-0086'
  • Rendering of building from page 14 of the file '2022-05-24 - Design Brief - D07-12-22-0086'
  • Rendering of building from page 14 of the file '2022-05-24 - Design Brief - D07-12-22-0086'
  • Rendering of building from page 19 of the file '2022-05-24 - Design Brief - D07-12-22-0086'

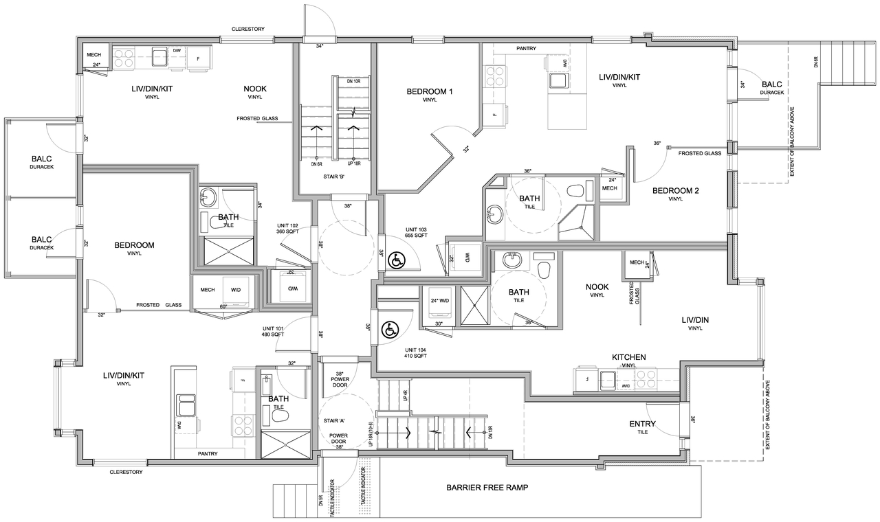
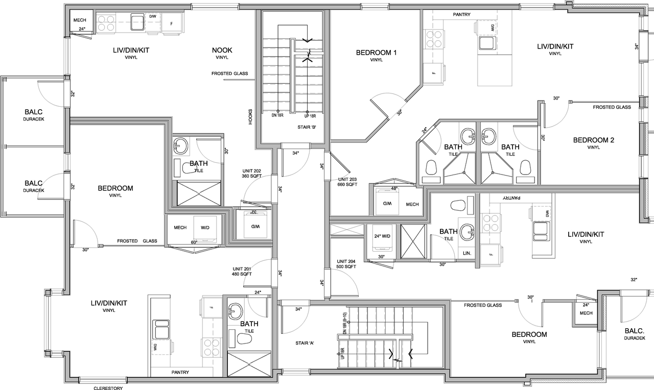
Site and Floor Plans #

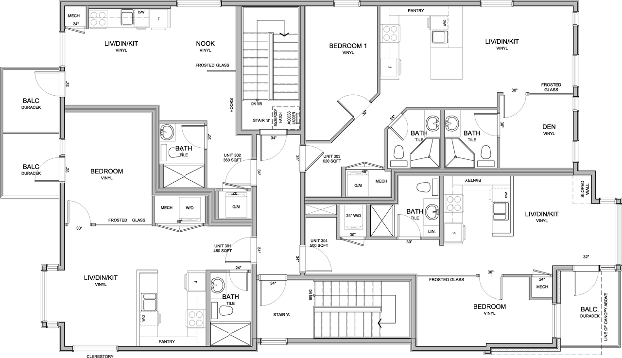
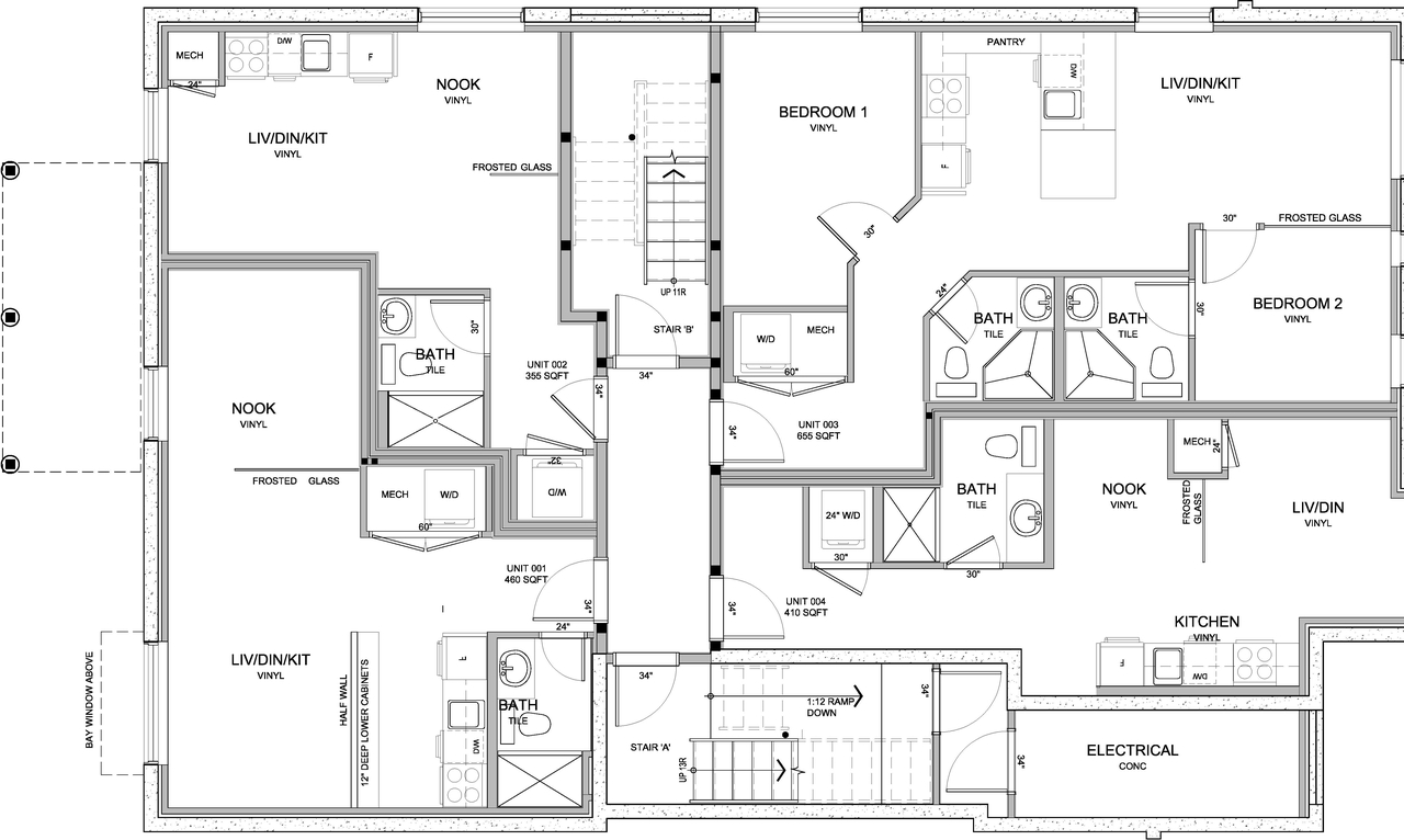
  • Floor plan for project from page 1 of the file '2023-04-17 - Floor Plans - D07-12-22-0086'
  • Floor plan for project from page 2 of the file '2023-04-17 - Floor Plans - D07-12-22-0086'
  • Floor plan for project from page 3 of the file '2023-04-17 - Floor Plans - D07-12-22-0086'
  • Floor plan for project from page 4 of the file '2023-04-17 - Floor Plans - D07-12-22-0086'
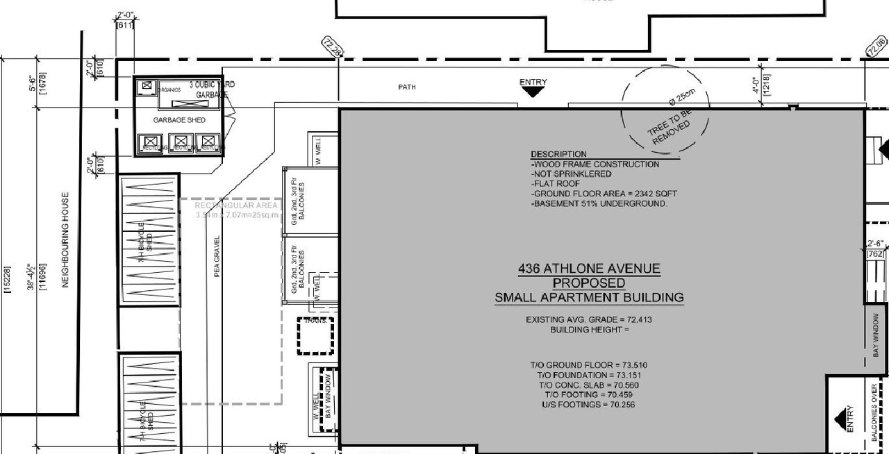
  • Construction site plan for project from page 2 of the file '2022-05-24 - Design Brief - D07-12-22-0086'
  • Floor plan for project from page 6 of the file '2022-05-24 - Design Brief - D07-12-22-0086'
  • Floor plan for project from page 7 of the file '2022-05-24 - Design Brief - D07-12-22-0086'
  • Construction site plan for project from page 13 of the file '2022-05-24 - Design Brief - D07-12-22-0086'
  • Floor plan for project from page 1 of the file '2023-04-17 - Floor Plans - D07-12-22-0086'
  • Floor plan for project from page 2 of the file '2023-04-17 - Floor Plans - D07-12-22-0086'
  • Floor plan for project from page 3 of the file '2023-04-17 - Floor Plans - D07-12-22-0086'
  • Floor plan for project from page 4 of the file '2023-04-17 - Floor Plans - D07-12-22-0086'
  • Construction site plan for project from page 2 of the file '2022-05-24 - Design Brief - D07-12-22-0086'
  • Floor plan for project from page 6 of the file '2022-05-24 - Design Brief - D07-12-22-0086'
  • Floor plan for project from page 7 of the file '2022-05-24 - Design Brief - D07-12-22-0086'
  • Construction site plan for project from page 13 of the file '2022-05-24 - Design Brief - D07-12-22-0086'

Files #

TypeNameLinks
Application Summary2022-06-21 - Application Summary - D07-12-22-0086Download PDF
Architectural Plans2024-07-08 - Approved Site Plan - D07-12-22-0086Download PDF
Architectural Plans2024-07-08 - Approved Notes & Details plan - D07-12-22-0086Download PDF
Architectural Plans2024-07-08 - Approved Elevations - D07-12-22-0086Download PDF
Architectural Plans2024-07-05 - Site Plan - D07-12-22-0086Download PDF
Architectural Plans2024-07-05 - Notes & Drainage Plan - D07-12-22-0086Download PDF
Architectural Plans2024-05-23 - Site Plan - D07-12-22-0086Download PDF
Architectural Plans2024-05-23 - Notes and Drainage Plan - D07-12-22-0086Download PDF
Architectural Plans2023-04-17 - Site Plan - D07-12-22-0086Download PDF
Architectural Plans2023-04-17 - Notes & Drainage Plan - D07-12-22-0086Download PDF
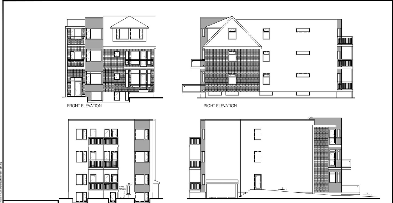
Architectural Plans2023-04-17 - Building Elevations - D07-12-22-0086Download PDF
Architectural Plans2022-05-24 - Site Plan - D07-12-22-0086Download PDF
Architectural Plans2022-05-24 - Engineering Notes and Drainage Plan - D07-12-22-0086Download PDF
Architectural Plans2022-05-24 - Elevations - D07-12-22-0086Download PDF
Design Brief2022-05-24 - Design Brief - D07-12-22-0086Download PDF
Environmental2022-05-24 - Phase 1 Environmental Site Assessment - D07-12-22-0086Download PDF
Existing Conditions2024-07-08 - Approved Existing Conditions, Grading & Sediment Control Plan - D07-12-22-0086Download PDF
Existing Conditions2024-07-05 - Existing Conditions, Grading Plan & Sediment Control Plan - D07-12-22-0086Download PDF
Existing Conditions2024-05-23 - Existing Conditions, Grading and Sediment Control Plan - D07-12-22-0086Download PDF
Existing Conditions2023-04-17 - Existing Conditions, Grading & Sediment Control Plan - D07-12-22-0086Download PDF
Existing Conditions2022-05-24 - Existing Conditions and Grading & Sediment Control Plan - D07-12-22-0086Download PDF
Floor Plan2023-04-17 - Floor Plans - D07-12-22-0086Download PDF
Geotechnical Report2023-04-17 - Geotechnical Investigation Report - D07-12-22-0086Download PDF
Geotechnical Report2022-05-24 - Geotechnical Investigation - D07-12-22-0086Download PDF
Landscape Plan2024-05-23 - Landscape Plan - D07-12-22-0086Download PDF
Shadow Study2022-05-24 - Shadow Study - D07-12-22-0086Download PDF
Site Servicing2024-07-08 - Approved Site Servicing Plan - D07-12-22-0086Download PDF
Site Servicing2024-07-05 - Site Servicing Plan - D07-12-22-0086Download PDF
Site Servicing2024-05-23 - Site Servicing Plan - D07-12-22-0086Download PDF
Site Servicing2023-04-17 - Site Servicing Plan - D07-12-22-0086Download PDF
Site Servicing2022-05-24 - Site Servicing Plan - D07-12-22-0086Download PDF
Site Servicing2022-05-24 - Servicing Study and Stormwater Management Report - D07-12-22-0086Download PDF
Surveying2022-05-24 - Survey - D07-12-22-0086Download PDF
Tree Information and Conservation2024-07-08 - Approved Landscape Plan & TCR - D07-12-22-0086Download PDF
Tree Information and Conservation2024-07-05 - Landscape Plan & TCR - D07-12-22-0086Download PDF
Tree Information and Conservation2023-04-17 - Landscape Plan & Tree Conservation Report - D07-12-22-0086Download PDF
Tree Information and Conservation2022-05-24 - Tree Conservation Report and Landscape Plan - D07-12-22-0086Download PDF
2024-07-08 - SIGNED Delegated Authority Report - D07-12-22-0086Download PDF
2025-04-09 - CWN - Letter of Undertaking - D07-12-22-0086Download PDF