1600 James Naismith (D07-12-22-0084)

1600 James Naismith (D07-12-22-0084) #

Summary #

Application StatusPost Approval
Review StatusReceipt of Agreement from Owner Pending
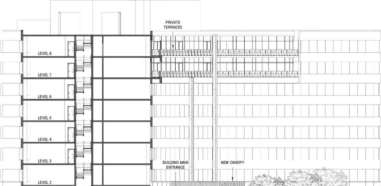
DescriptionAn application to convert the existing 8-storey office building into a multi-residential rental apartment building consisting of 218 dwelling units, with a total of 236 surface parking spaces proposed on site.
WardWard 11 - Tim Tierney
Date Initiated2022-05-20
Last Updated2024-10-09

Renders #

  • Rendering of building from page 18 of the file '2022-05-24 - UDRP Design Presentation - D07-12-22-0084'
  • Rendering of building from page 19 of the file '2022-05-24 - UDRP Design Presentation - D07-12-22-0084'
  • Rendering of building from page 1 of the file '2022-05-24 - View from South - D07-12-22-0084'
  • Rendering of building from page 20 of the file '2022-05-24 - UDRP Design Presentation - D07-12-22-0084'
  • Rendering of building from page 21 of the file '2022-05-24 - UDRP Design Presentation - D07-12-22-0084'
  • Rendering of building from page 33 of the file '2022-05-24 - UDRP Design Presentation - D07-12-22-0084'
  • Rendering of building from page 31 of the file '2022-05-24 - UDRP Design Presentation - D07-12-22-0084'
  • Rendering of building from page 28 of the file '2022-05-24 - UDRP Design Presentation - D07-12-22-0084'
  • Rendering of building from page 34 of the file '2022-05-24 - UDRP Design Presentation - D07-12-22-0084'
  • Rendering of building from page 30 of the file '2022-05-24 - UDRP Design Presentation - D07-12-22-0084'
  • Rendering of building from page 18 of the file '2022-05-24 - UDRP Design Presentation - D07-12-22-0084'
  • Rendering of building from page 19 of the file '2022-05-24 - UDRP Design Presentation - D07-12-22-0084'
  • Rendering of building from page 1 of the file '2022-05-24 - View from South - D07-12-22-0084'
  • Rendering of building from page 20 of the file '2022-05-24 - UDRP Design Presentation - D07-12-22-0084'
  • Rendering of building from page 21 of the file '2022-05-24 - UDRP Design Presentation - D07-12-22-0084'
  • Rendering of building from page 33 of the file '2022-05-24 - UDRP Design Presentation - D07-12-22-0084'
  • Rendering of building from page 31 of the file '2022-05-24 - UDRP Design Presentation - D07-12-22-0084'
  • Rendering of building from page 28 of the file '2022-05-24 - UDRP Design Presentation - D07-12-22-0084'
  • Rendering of building from page 34 of the file '2022-05-24 - UDRP Design Presentation - D07-12-22-0084'
  • Rendering of building from page 30 of the file '2022-05-24 - UDRP Design Presentation - D07-12-22-0084'

Site and Floor Plans #

  • Floor plan for project from page 1 of the file '2022-10-07 - Floor Plans - D07-12-22-0084'
  • Construction site plan for project from page 2 of the file '2022-05-24 - UDRP Design Presentation - D07-12-22-0084'
  • Construction site plan for project from page 3 of the file '2022-05-24 - UDRP Design Presentation - D07-12-22-0084'
  • Construction site plan for project from page 6 of the file '2022-05-24 - UDRP Design Presentation - D07-12-22-0084'
  • Construction site plan for project from page 6 of the file '2022-05-24 - UDRP Design Presentation - D07-12-22-0084'
  • Construction site plan for project from page 7 of the file '2022-05-24 - UDRP Design Presentation - D07-12-22-0084'
  • Construction site plan for project from page 8 of the file '2022-05-24 - UDRP Design Presentation - D07-12-22-0084'
  • Construction site plan for project from page 9 of the file '2022-05-24 - UDRP Design Presentation - D07-12-22-0084'
  • Construction site plan for project from page 10 of the file '2022-05-24 - UDRP Design Presentation - D07-12-22-0084'
  • Construction site plan for project from page 11 of the file '2022-05-24 - UDRP Design Presentation - D07-12-22-0084'
  • Construction site plan for project from page 17 of the file '2022-05-24 - UDRP Design Presentation - D07-12-22-0084'
  • Floor plan for project from page 34 of the file '2022-05-24 - UDRP Design Presentation - D07-12-22-0084'
  • Floor plan for project from page 35 of the file '2022-05-24 - UDRP Design Presentation - D07-12-22-0084'
  • Floor plan for project from page 1 of the file '2022-05-24 - Floor Plans - D07-12-22-0084'
  • Floor plan for project from page 3 of the file '2022-05-24 - Floor Plans - D07-12-22-0084'
  • Floor plan for project from page 1 of the file '2022-10-07 - Floor Plans - D07-12-22-0084'
  • Construction site plan for project from page 2 of the file '2022-05-24 - UDRP Design Presentation - D07-12-22-0084'
  • Construction site plan for project from page 3 of the file '2022-05-24 - UDRP Design Presentation - D07-12-22-0084'
  • Construction site plan for project from page 6 of the file '2022-05-24 - UDRP Design Presentation - D07-12-22-0084'
  • Construction site plan for project from page 6 of the file '2022-05-24 - UDRP Design Presentation - D07-12-22-0084'
  • Construction site plan for project from page 7 of the file '2022-05-24 - UDRP Design Presentation - D07-12-22-0084'
  • Construction site plan for project from page 8 of the file '2022-05-24 - UDRP Design Presentation - D07-12-22-0084'
  • Construction site plan for project from page 9 of the file '2022-05-24 - UDRP Design Presentation - D07-12-22-0084'
  • Construction site plan for project from page 10 of the file '2022-05-24 - UDRP Design Presentation - D07-12-22-0084'
  • Construction site plan for project from page 11 of the file '2022-05-24 - UDRP Design Presentation - D07-12-22-0084'
  • Construction site plan for project from page 17 of the file '2022-05-24 - UDRP Design Presentation - D07-12-22-0084'
  • Floor plan for project from page 34 of the file '2022-05-24 - UDRP Design Presentation - D07-12-22-0084'
  • Floor plan for project from page 35 of the file '2022-05-24 - UDRP Design Presentation - D07-12-22-0084'
  • Floor plan for project from page 1 of the file '2022-05-24 - Floor Plans - D07-12-22-0084'
  • Floor plan for project from page 3 of the file '2022-05-24 - Floor Plans - D07-12-22-0084'

Files #

TypeNameLinks
Architectural Plans2023-08-09 - Approved Site Plan - D07-12-22-0084Download PDF
Architectural Plans2023-08-09 - Approved Retaining Walls Plan - D07-12-22-0084Download PDF
Architectural Plans2023-01-24 - Site Plan Phases 2 ,3 - D07-12-22-0084Download PDF
Architectural Plans2023-01-24 - Site Plan - D07-12-22-0084Download PDF
Architectural Plans2023-01-24 - Retaining Walls Plan - D07-12-22-0084Download PDF
Architectural Plans2022-12-22 - Site Plan Full Phases - D07-12-22-0084Download PDF
Architectural Plans2022-12-22 - Phase 1 Site Plan - D07-12-22-0084Download PDF
Architectural Plans2022-10-07 - Site Plan Phases 1 2 and 3 - D07-12-22-0084Download PDF
Architectural Plans2022-10-07 - Site Plan - D07-12-22-0084Download PDF
Architectural Plans2022-10-07 - Retaining Wall Plan & Sections - D07-12-22-0084Download PDF
Architectural Plans2022-05-24 - Site Plan Phases 1-3 - D07-12-22-0084Download PDF
Architectural Plans2022-05-24 - Site Plan Phase 1 - D07-12-22-0084Download PDF
Architectural Plans2022-05-24 - Key Plan - D07-12-22-0084Download PDF
Architectural Plans2022-05-24 - Elevations - D07-12-22-0084Download PDF
Civil Engineering Report2023-08-09 - Approved Civil Drawings Full Set - D07-12-22-0084Download PDF
Civil Engineering Report2023-01-24 - Civil Drawings Full Set - D07-12-22-0084Download PDF
Civil Engineering Report2022-10-07 - Civil Drawings - D07-12-22-0084Download PDF
Design Brief2022-05-24 - UDRP Design Presentation - D07-12-22-0084Download PDF
Floor Plan2022-10-07 - Floor Plans - D07-12-22-0084Download PDF
Floor Plan2022-05-24 - Floor Plans - D07-12-22-0084Download PDF
Geotechnical Report2022-10-07 - Geotechnical Investigation - D07-12-22-0084Download PDF
Landscape Plan2023-08-09 - Approved Landscape Plans - D07-12-22-0084Download PDF
Landscape Plan2023-01-24 - Landscape Plans - D07-12-22-0084Download PDF
Landscape Plan2022-12-22 - Landscape Plan - D07-12-22-0084Download PDF
Landscape Plan2022-10-07 - Landscape Plan - D07-12-22-0084Download PDF
Landscape Plan2022-05-24 - Landscape Plan - D07-12-22-0084Download PDF
Noise Study2022-05-24 - Roadway Traffic Noise Study - D07-12-22-0084.pdfDownload PDF
Planning2022-05-24 - Planning Rationale and Design Brief - D07-12-22-0084Download PDF
Rendering2022-05-24 - View from South - D07-12-22-0084Download PDF
Site Servicing2022-05-24 - Servicing and Stormwater Management Report - D07-12-22-0084Download PDF
Site Servicing2022-05-24 - Servicing and Civil Plans - D07-12-22-0084Download PDF
Stormwater Management2022-10-07 - Stormwater Management Report - D07-12-22-0084Download PDF
Surveying2022-05-24 - Topographical Survey - D07-12-22-0084Download PDF
Transportation Analysis2022-05-24 - Transportation Impact Assessment Guidelines - D07-12-22-0084Download PDF
Transportation Analysis2022-05-24 - Transportation Demand Management Design Infrastructure Checklist - D07-12-22-0084Download PDF
Transportation Analysis2022-05-24 - Transportation Demand Management Checklist - D07-12-22-0084Download PDF
Tree Information and Conservation2022-12-22 - Tree Conservation Report - D07-12-22-0084Download PDF
Tree Information and Conservation2022-10-07 - Tree Conservation Report - D07-12-22-0084Download PDF
Tree Information and Conservation2022-05-24 - Tree Conservation Report - D07-12-22-0084Download PDF
2023-08-09 - DELEGATED AUTHORITY REPORT SIGNED - D07-12-22-0084Download PDF
2022-10-07 - Turning Analysis - D07-12-22-0084Download PDF
2022-05-25 - REVISED Phase One Environmental Site Assessment - D07-12-22-0084Download PDF
2022-05-24 - South West Corner - D07-12-22-0084Download PDF
2022-05-24 - Section Diagrams - D07-12-22-0084Download PDF
2022-05-24 - MAIN ENTRANCE - D07-12-22-0084Download PDF
2022-05-24 - Limit of Construction - D07-12-22-0084Download PDF
2022-05-24 - East Entrance - D07-12-22-0084Download PDF